国  分  寺  の  塔  跡   及  び  概  要

国分寺塔跡および概要

陸奥国分寺跡(史蹟)

 陸奥国分寺

出羽国分寺

天台宗護国山柏山寺(山形市)金堂を国分寺薬師堂(本尊薬師如来)と称し、これを現存国分寺とする。
寺伝では「聖武天皇の詔により、行基開山、鎮守府将軍大野東人が七堂伽藍を造営、一萬畝歩を寺領として献ず」という。
「日本後記」の承和4年(837)3月の条:「従五位下勲六等小野朝臣宗成の司るところの国分二寺」とあるという。
現在の国分寺は正平11年(1356)斯波兼頼が庄内地方から移すとも戦国末期最上義光が新庄付近から遷したともいわれる。
しかし、当初国分寺の場所を具体的に示す文献はなくまた明確な遺跡の出土を見ず、その場所は不明とするしかないのが現状と思われる。
 当初の国分寺想定地は以下がある。
酒田城輪柵(国府説もある)附近の八幡町「堂の前遺跡」が当初の国分寺ではないか。
また、平安末期から鎌倉初頭に国府が酒田城輪から山形北方府中に移動した記録もあるとのことで、国分寺も酒田から山形に移動した可能性は十分にあるとされる。
なお、国分寺薬師堂(柏山寺金堂)は明治44年焼失、その後、真言宗宝幢寺本堂を移築したという。

常陸国分寺跡(特別史跡)

 常陸国分寺址及び伽藍御堂塔址

上野国分寺跡(史蹟)

2019/05/17追加:
○事の発端:
 過日、某氏より、次の趣旨のメールを頂く。
「5年ほど前の発掘調査で、中門は従来想定されていた位置より南で発掘され、金堂跡も今まで全く想定されていない位置でその堀込地業が発見され、従来知られていた金堂跡は実は講堂跡であったことが判明する。云々」と。
 全く、承知していなかったことであり、急遽Webで検索すると、ご指摘の事実が判明したので、ページを更新する。
幸いにして「史跡上野国分寺跡第2期発掘調査概報」がアップロードされており、この「調査概報」を要約・転載させて頂く。
●「史跡上野国分寺跡第2期発掘調査概報」群馬県教育委員会、平成28年(2018) より
◇緒言:
 群馬県では、平成24年度(2014)から史跡上野国分寺跡の整備事業を再開する。
これに伴い、整備に向けた基礎情報を取得するため、24年ぶりに発掘調査を実施する。
今回の調査によって、これまで不明であった中門・回廊がはじめて確認されたほか、100年近くにわたって金堂とされてきた建物の前面で、本来の金堂が発見されるなど、これまで想像されてきた上野国分寺の姿を大きく塗り替える成果があがる。
◇第2期調査に至る経緯:
 昭和55〜63年度(1980〜1988)にわたって史跡整備に伴う発掘調査が実施され、塔や金堂、南大門、東大門、南辺築垣が確認される。
調査と並行して、昭和57年度に『史跡上野国分寺跡整備基本計画』、昭和62年度に『史跡上野国分寺跡整備基本設計書』(以下、『基本設計書』という)が策定され、整備の基本方針が示される。そして、9か年にわたる発掘調査の成果及び『基本設計書』に基づき、平成2〜5年度(1990〜1993)にかけて塔と金堂の基壇、南辺築垣の一部が復元される。また、ガイダンス施設が建設され、平成6年6月1日から一般に公開されている(第1期整備)。しかし、さまざまな事情により、『基本設計書』に示された整備の完成を見ずに、第1期整備事業は中断となる。
 史跡上野国分寺跡現況図:第2期発掘調査が始まる前の現況である。
◇上野国分寺の概要
 上野国分寺の寺域は東西220m、南北235m程と想定され、東西軸の中央に伽藍中軸線を設定し、南から南大門、中門、金堂、講堂が、建物の中心を揃えて一直線に配置されている。
これまで、金堂が寺域の中央に置かれ、中門と回廊で結ばれて聖域である金堂院を形成すると考えられてきた。
しかし、今回の調査によって想定位置より南で中門・回廊が発見され、さらには塔の東側で本来の金堂が発見されたことから、寺域南半に主要伽藍が配置されていたことが明らかとなる。
これにより、これまで金堂とされてきた建物は、講堂であることが確実となる(第3図)。
七重塔は金堂院の外、金堂と並ぶように西側に置かれ、聖武天皇が書写した護国経典である「金光明最勝王経」が納められる。
講堂の北には僧侶が居住する僧房が置かれていたと考えられるが、建物跡が確認できておらず判然としない。また、こうした主要伽藍のほかにも管理・運営施設等の建物があったと考えられるが、上野国分寺ではよく分かっていない。
 上野国分寺跡新旧伽藍配置:第2期調査によって修正された伽藍配置(左:第2期調査以前 右:第2期調査以降)
◇第2期発掘調査
1)発掘調査概要
 中門は、東西約15m(50尺)、南北約12m(40尺)の掘込地業が確認される。上面が削平されているため、原位置にある礎石、根石等は確認できず。但し、後世に掘削された堀の斜面に落ち込む礎石2基を検出する。
 回廊は部分的ではあるが、東西南北の4面すべてにおいて掘り込み地業を確認する。
 金堂については、基壇が復元されていた建物(旧金堂)の南側で、掘込地業を確認する。トレンチでは北東角及び北縁を確認する。
南半や西縁については、後世の耕作による攪乱や地形改変により確認はできず。また、1期調査時に確認されていた落とし込まれた礎石1基を再確認するも、全体的に削平が著しく、新たな礎石、根石等は確認はできず。
 南大門については、第1期調査区の再調査を行い、確認されていた東側柱に当たる3基の礎石を再確認する。さらに、第1期調査時に調査区外とされた後世の堀の部分を調査したところ、堀斜面に落ち込んだ礎石2基を新たに検出する。
 東大門は、第1期調査において落とし込まれた礎石が1基確認されていたほか、旧群馬町教育委員会によって平成3年度に原位置の礎石1基が確認されていたが、今般の発掘調査では、新たな礎石等は確認できず。しかし、調査区南端において、4枚の平瓦を円形に組んだ瓦組遺構を検出した。
 ※この遺構の性格については言及がない。
 伽藍中心部発掘全体図     平成26年度調査区全景
2)中門
これまでの調査・研究:
 中門については、今まで、今般の発掘で確認された中門位置の北側約30mの地点と想定されてきた。
上野国分寺跡に関する研究の嚆矢である福島武雄氏の論考(福島1921)以来、太田静六氏(太田他1942)、石田茂作氏(石田1959)など、一貫してこの位置に想定されている。
福島氏は、「村の古老に聞くに明治初年迄は此処迄捨場の土壇が延びていて礎石も沢山在ったとの事である」とし、また太田氏は、金堂跡の南縁から南方約180尺の所に、道路に沿って1個の礎石が埋没しているが、この他にも3個が最近まで8尺程の間隔で規則正しく並んでいたことは古老のよく知る所であると報告している。
調査の概要:
 掘込地業:中央部は後世の堀によって破壊されているが、その両脇、東端部及び西端部の掘込地業を確認する。掘込地業は総地業で、規模は東西約15m(50尺)、南北約12m(40尺)を測る。
 礎石等:上面が削られているため、原位置にある礎石・根石は皆無であったが、堀斜面に落ち込む礎石2基を検出する。
所見:
 掘り込み地業の規模、ずり落ちた礎石の位置から、中門は八脚門であったと考えられる。角閃石安山岩切石が2点出土しており、角閃石安山岩切石による壇上積み基壇であった可能性が高い。
 中門・回廊南東部・南大門趾:写真中央やや西寄りが中門趾の東半、その東が回廊南東部、下中央寄りが南大門跡の東半
 中門跡全景     中門跡礎石
3)金堂
これまでの調査・研究:
 今般講堂跡と確定された位置に土壇の高まりが残り、礎石の一部も残存していたことから、この建物跡が金堂とされてきた。中門の項で触れた先学諸氏の研究においても、一貫してこの土壇が金堂であるとされており、第1期調査でも金堂として調査が実施されている。今回、新たに発見した金堂の地区は、昭和60年度29次調査区として調査が行われているが、建物の痕跡の報告はない。公有地化前の地目は畑であり、土壇や礎石は失われ、往時の痕跡を全くとどめていなかった。
調査の概要:
 掘り込み地業:トレンチにて金堂北東角にあたる掘込地業を確認し、さらに別のトレンチで、北東角から続くと考えられる掘込地業の北縁を確認する。
トレンチ南部では、耕作が掘込地業底面より深くにまで及んでいるため、金堂南東角や南縁は確認できず。
そのため、掘り込み地業の明確な規模は不明であるが、伽藍中軸線上に中心を合わせていること、塔と中心を揃えていることと想定し、中軸線及び塔との心々線で折り返すと、東西28.5m、南北19m程の規模が推定できる。
 礎石等:昭和60年度に確認された礎石を再確認する。径130cm程の大形の石であり、また金堂の推定範囲内にあることから、金堂の礎石と判断してよいであろう。
所見:
 掘り込み地業の規模がそのまま基壇規模になるわけではないが、金堂は講堂(基壇規模30.6m×20.1m)より一回り小さい建物だったと考えられる。
 塔・北面回廊・金堂・講堂跡:写真下部西から塔跡・北面回廊・金堂跡、上部は講堂跡
 金堂礎石:落とし込まれた金堂礎石     塔・北面回廊・講堂跡:塔跡から北面回廊・講堂跡を望む
備考:
 今回、新たに見つかった金堂の場所は、土壇の高まりや礎石など建物があった痕跡は全く失われ、平坦な畑になっていた。先学諸氏による現地踏査時も同様な状況であり、特に注意は払われなかったようである。
 しかし、福島武雄氏の論考(福島1921)によると、「中門趾と思われる所は金堂趾の南30間餘道の北側にある。村の古老に聞くに明治初年迄は此処迄捨場(金堂基壇)の土壇が延びていて礎石も沢山在ったとの事である。今金堂趾の南20間の道の東側にある礎石は土壇を崩して桑畑にする時端の方へ運んだのであろう。」 という記述がある。
このことから、今回見つかった新たな金堂の場所には、明治初年までは土壇と礎石が残っていたことが確認できる。では、それらがいつ消滅したのか。
 国分寺跡整備前塔跡
 明治20年、宗教団体が塔基壇を利用して道場を造成する(第17 図)。その際、心礎や礎石上に石碑を建てるとともに、基壇上部を削った土を用いて西及び南側に土壇を広げたとされているが、ざっと土量計算してみる限り、基壇上部を削ったくらいでは到底足りる土量ではない。
塔基壇を含めた土壇全体の土量(約830立米)から塔基壇の土量(430立米)を差し引くと、およそ400立米もの土が余分であり、その量はほぼ28m×18m× 0.8mの土壇に相当する。これは金堂の規模に近いものがあり、金堂基壇を切り崩して塔基壇へと運び、道場を造成した可能性が高い。
土壇の南側にも礎石状の石が多くあったとのことであり、塔院回廊の礎石と推定されたこともあったが、この石は金堂礎石を打ち欠いて運んだものであろう。
 金堂地区の旧地主の人に聞き取りを行ったが事実確認はできず、あくまで推測の域を出ないが、年代的、土量的にも合致するものであり、あえて史跡地外から土を運び込むより金堂基壇の築土を移動するほうがはるかに効率的である。事実、造成した土壇の中からは大量の国分寺瓦が出土しており、このことから史跡地外から土を運び入れたのではなく、寺域内の土を移動したことは明らかである。
この仮説が正しいとすれば、本来あった基壇と礎石を一気に削っているため、土壇がすっかり消滅したこと、落とし込まれた礎石がほとんどないこと、の理由も説明がつく。
4)南大門
これまでの調査・研究
 南大門については、第1期調査の昭和58年度23次、昭和59年度23次西拡張区として、東部及び西部の調査が行われている。中央部分については、後世に大規模な堀が掘削されているため、調査対象外とされる。
この調査によって、東側柱に当たる3基の礎石が検出され、梁行2間、柱間10.5尺(315cm)の構造であったことが確認されている。
 「上野国交替実録帳」には、「南大門壹宇 長伍丈尺 廣壹丈伍尺 高壹丈参尺」とあって梁行15尺と書かれているが、これとは異なるものであった。また、乱石積み基壇の基壇縁と考えられる石列が2条検出されており、建て替えの可能性が指摘される。23次西拡張区は、堀によって壊されており南大門に関連する遺構は確認されなかったが、堀の埋土中に動かされた礎石1基が検出されている。
 南大門跡全景・南から     南大門跡全景・西南から
5)伽藍配置
 塔が金堂院の外側に配置される、いわゆる東大寺式伽藍配置となるが、塔と金堂の心々を合わせて東西に並立させる配置に特色がある。
同様の配置をもつ例は、
陸奥<→陸奥国分寺跡>、近江(甲賀寺)<→第1次近江国分寺(史跡紫香楽宮跡・甲可寺 <甲賀寺>跡)>、但馬<但馬国分寺跡
にある。
 伽藍配置想定図     上野国分寺伽藍配置
----以上2019/05/17追加:終わり----

榛名山東南山麓の扇状地に続く台地に位置する。
南大門・中門・金堂・講堂・北面僧房が一直線に配置される伽藍と推定される。(南大門・金堂・塔は確認済。中門・僧坊などは未確認。)
回廊は中門から東西に金堂に取付くと推定。
 上野国分寺推定伽藍図:上野国分寺館 リーフレット     上野国分寺模型:上野国分寺館
◆塔は中門・金堂の(廻廊外)西に建立され、塔の基壇は一辺19.2m、高さは1.2m、塔の一辺は10.8m (柱間は3.6m)という。基壇は榛名山産出の安山岩の壇上積基壇であった。
心礎および塔礎石15個が残される(四天柱礎・脇柱礎各1が亡失)。
 上野国分寺塔跡復元図
基壇復元前は、塔基壇上に礎石が露出した状態で残されていた。
 上野国分寺復元前塔跡:心礎上には御嶽大権現碑、側柱礎の一つにも石碑が建つ。
天平感宝元年(749)頃に主要伽藍が完成。長元3年(1030)<上野国交替実録帳>には金堂・講堂は健在であったが、その他の堂宇は既に退転した旨の記載があると云う。14世紀後半には金堂跡も墓地と化す。天明6年(1786)には礎と瓦が残るだけの畑地となると云う。
塔跡は現在基壇が復元され、礎石が整備される。
 上野国分寺塔基壇      上野国分寺塔礎石2004/08/05「X」氏撮影
2005/08/28撮影:
  上野国分寺復元基壇1       上野国分寺復元基壇2      上野国分寺復元基壇3
 上野国分寺塔礎石1         上野国分寺塔礎石2
心礎は現存する。・・・・・○「幻の塔を求めて西東」:心礎の大きさは330×166cm、径62cmの円形出枘を穿つ。
 上野国分寺心礎1      上野国分寺心礎2      上野国分寺心礎3
写真のように、心礎中央は上掲「上野国分寺復元前塔跡」に写るように、石碑「御嶽大権現」の台石となり、破壊を受ける。
即ち、心礎中央にあったであろう円形出枘(円形造出・この痕跡は微かに残る)は削平され 、さらに石碑を据えた三日月形の孔が穿たれる。
◆金堂基壇及び礎石も復元整備される。詳細は不詳ながら礎石の幾つかは復元礎石と思われる。
 上野国分寺復元金堂基壇     上野国分寺金堂礎石1     上野国分寺金堂礎石2      上野国分寺金堂礎石3
なお寺跡には「上野国分寺館」が付設:七重塔模型・国分寺模型・出土品などが展示される。
 上野国分寺七重塔模型1     上野国分寺七重塔模型2      上野国分寺七重塔模型3
 上野国分寺七重塔復元図:上野国分寺館リーフレット
2006/08/14追加:
○「柴田常恵写真資料」 より:
大正15年撮影  
 上野国分寺塔跡1     上野国分寺塔跡2      上野国分寺塔跡3      上野国分寺塔跡4
2009/01/05追加:
○「上野國分寺伽藍の研究」太田静六・添田正一(「建築學會論文集 (27)」1942 所収) より
 上野国分寺伽藍実測図     上野国分寺伽藍復原図
塔跡は金堂西南に土壇を残す。礎石は心礎を含め、15個を残し、僅かに2個を欠失する。
心礎は上に御嶽大明神の石碑を建てる際、礎石上端を削り、加工の原形は留めないが、それでも中央に径約13.5寸程度の出枘(円形造出)の痕跡を残す。また北列の3個を除き、礎石は原位置を保つと思われる。
礎石の実測から塔初重一辺は36天平尺で、各間は1間12天平尺の等間である。
 上野国分寺塔跡実測図
金堂跡は近年次第に侵食され、礎石は土壇上に9個を残す。金堂平面は7間×4間と復原できる。
礎石は埋もれたものを含めると、36個中14個を残す。内3個は柱座付であるが残りは自然石である。
 上野国分寺金堂址実測図     上野国分寺金堂礎石
2009/09/14追加:
○「国分寺址之研究」堀井三友、堀井三友遺著刊行委員会編、昭和31年 より
塔土壇には15個の礎石(輝石安山岩質の自然石)が残る。心礎は11尺×5尺5寸で、表面に径3尺5寸の円形造出と思われものがある。
礎石間距離は11尺8寸で、一辺35尺2寸8分(天平尺で36尺であろう)を測る。心礎上には御岳大神の碑が建つ。その他3個の礎石上にも北斗星社・大黒天・三笠山刀利天宮の碑が建つ。
 上野国分寺塔・金堂礎石実測図:上が塔跡、下は金堂跡     上野国分寺址平面図
2017/01/31追加あ:
○「群馬県史蹟名勝天然紀念物調査報告. 第1輯」群馬県史蹟名勝天然紀念物調査会編、三明社、昭和7年(1932) より
 上野国分寺跡礎石配置図
 上野国分寺塔跡寺測圖
塔跡の中央にチの心礎を置き、周囲に14個の礎石が方形に据えられる。西北隅は掘り取られし痕跡を留め、ニ・オ間の一個も全く失われる。
礎石は何れも輝石安山岩の自然石で、短径45尺より長径56尺に達する巨石を使用し、心礎たるチは東西5尺5寸、南北は約11尺に及ぶ。
但しその表面に径約3尺5寸の円形を呈する削取の痕を存する。
そして各礎石の間隔を芯々にて計るに、正確に11尺8寸宛あり、塔の大きさが方35尺4寸であることを示す。但し北辺のイ・ホ・リの3個は北方へ滑る。
 心礎には御嶽大神の碑(高さ約10尺、幅3尺56寸、根府川石製)が建てられ、大成教管長平山省斎の書せるもので、明治20年3月建立の旨が刻される。その他の礎石上にも小型の碑の建てられしものあり、リには北斗星社、オには大黒天、カには三笠山刀利天宮と刻せられ、何れも同人の書で、時を同じうして建てられしものである。大黒天の碑は建さ4尺ほどある安山岩の自然石で、ここに存する礎石と同質であるから、或はこれを利用せしかとの疑いもあるが、他の2者は孰れも根府川石である。別にニには明治34年2月に建てし棟を刻する蠺影大神の碑があるがこれも根府川石で造られている。これらの碑石は嘗てこの地方に御嶽教の信仰盛んなりし際、・・建てられたもので・・・心礎に存せし造出を削り去った疑いも生ずるに至る・・・
 ※上記の記録より、心礎の大きさは約11尺(330cm)×5尺5寸(167cm)で、径約3尺5寸(105cm)の柱座(造出)が削平された形跡があることが分かる。
(金堂趾)
 上野国分寺金堂跡実測図
ここに存する礎石は塔跡におけると同質の自然石であるが、左程大きくはなく、径34尺のもののみ12個存する。
<以下金堂趾に関する詳細な論述があるが、煩雑なので省略する。ただ、内務省嘱託の柴田常恵の発掘は大正15年に行われたことが分かる。>

下野国分寺跡(史蹟)

栃木県下都賀郡国分寺町国分(史跡)。国分寺と尼寺は浅い谷を挟んで東西に並ぶ。
平地林中に、金堂・講堂・塔・経蔵(鐘楼)の基壇及び築地跡が良好な状態で遺存する。
伽藍配置は、南大門・中門・金堂・講堂が一直線に並び、回廊は中門から金堂に取り付き、塔が南大門・中門の東方に置かれ、鐘楼・経蔵を金堂・講堂の東西に配する。
昭和57年から平成4年の11年間に渡り調査される。その結果、主要堂塔を囲む伽藍地の塀が、板塀から築地塀に建て替わること、寺域が幅2m、深さ 0.8mの溝で囲まれ、寺域は東西413m、南北457mであることなどが判明。また、金堂よりも古い仮設の仏堂も発見。
近年の調査によって、下野国分寺・尼寺跡は上総・下総・武蔵などと同じく、伽藍地の外側を広く溝で囲むことがわかってきた。
現国分寺は、尼寺跡の北約1kmの位置に薬師堂・釈迦堂を保つ。この国分寺薬師堂・釈迦堂には国分寺・尼寺の礎石が再利用されると云う。ただし無住と云う。
2000年01月16日:発掘調査の結果、金堂の基壇・階段を確認(基壇は東西36m、南北21m。南面の階段部分は三段で延長12m。建物の周囲は大谷石を貼る。)
 下野国分寺七重塔模型(しもつけ風土記の丘資料館)
○「幻の塔を求めて西東」:
心礎は一重円孔式、大きさは242×212cm、径84cmの円穴を彫る。
○2004/04/23撮影:
現状塔跡は明瞭に土壇の高まりを残す。
塔跡からは心礎・四天柱礎1個(北東)、脇柱礎4個が発掘されたと思われるが、残念ながら、これらは埋め戻されて(推定)見ることはできない。
 下野国分寺塔跡      同   塔跡土壇      同    散乱瓦
  同   心礎・四天柱礎・・・北東から撮影したもの
  同    塔跡略図・・・・・・しもつけ風土記の丘資料館
  同   七重塔模型1      同          2・・・・いずれも、しもつけ風土記の丘資料館
○「下野国分寺跡」国分寺町教育委員会発行パンフレットから転載:
 下野国分寺復元図  下野国分寺金堂基壇
○2005/02/22:追加:「2005/02月・下野新聞記事」より
町教委が塔跡発掘調査結果を発表。基壇の一辺は16.8m、礎石は変色していて、塔は焼失したと思われる。(これ迄の調査で瓦などの状態で判明していたことが裏づけられた。)
さらに出土瓦や炭化材が塔跡南側に集中、これまでの通説とは逆に、南側に崩壊した可能性が高いことが判明。
2004年10月からの調査で、心礎、四天柱礎石4、側柱礎石5個を確認。塔南側では凝灰岩製階段(約3.6m)および三角形の羽目石、釘(鉄製・長さ約21cm)約80点、泥塔約150点も発掘したという。
2009/09/14追加;
○「国分寺址之研究」堀井三友、堀井三友遺著刊行委員会編、昭和31年 より
塔土壇は一辺約29間、高さ約3尺4寸、礎石7個(?)が地下約1尺の所に残る。心礎は8尺9寸×7尺を測る。
 下野国分寺址実測図:右は塔址、左は付近平面図
2017/01/31追加:
○「栃木県史蹟名勝天然紀念物調査報告. 第1輯」栃木県編、大正14年(1926) より
下野国分寺跡
・・・金堂趾講堂趾並に東塔趾は今山林となり土壇をほぼ完存し、殊に東塔趾には最近3個の礎石を発見せり。・・・
礎石は夙に他に搬出使用せられたるもの少なからず、現に今の国分寺(旧趾の北東方約78町を隔つ)の接続地内所在、薬師堂境内なる釈迦堂の礎石に流用されあるを見る如きはその一例なり。最近東塔趾より3個の礎石を発見・・・・塔心柱の大礎石を中心として、その後方に2個の礎石を併置し・・・・
 下野国分寺実測平面図
  2023/02/05追加:
  ○「播磨上代寺院阯の研究」鎌谷木三次、成武堂、昭和17年 より
   下野国分寺址実測図:據・内務省史蹟調査報告書
○Webサイト:下野市>下野国分寺跡のページ より
 下野国分寺塔跡発掘1     下野国分寺塔跡発掘2
 ※上記は塔跡発掘調査の写真であるが、上記の2枚の写真から、礎石として心礎及び四天柱礎4個、側柱礎は少なくとも5個が残存しているように見える。上記の「栃木県史蹟名勝天然紀念物調査報告. 第1輯 」では塔跡には心礎と四天柱礎2個の計3個の礎石を発見というも、実際は少なくとも合計10個の礎石が残存するのであろうか。
発掘調査報告書などで確認を要する。何れ確認を行う予定である。
 下野国分寺伽藍規模概略図
○各種Webサイト情報 より
現在は、次のような概要の史跡整備がなされた模様である。
 →上掲の下野国分寺伽藍規模概略図を参照
---------------------------------------------------------------------------------------------
◇南大門
構造:五軒三戸と推定される。
基壇規模:東西約21m(70尺)・南北約9.6m(32尺)、礎石位置や階段の幅・出幅は不明。
◇中門
基壇規模から五間三戸と推定
規模:東西約21m(70尺)、南北約9.6m(32尺)。
礎石は全て抜き取られる。階段の幅・出幅は不明。
◇回廊
構造:単廊。
規模:北面69.6mm(推定全長232尺)、西面51.9mm(総長173尺)、梁行幅4.8m(16尺)。
◇経蔵
※基壇と階段・礎石と柱の太さの表示実施。
基壇規模:南北12m」(40尺)・東西9m(30尺)
建物規模:桁行三間・9m(30尺)、桁行二間・6m(20尺)
※経蔵と鐘楼は同規模で、ほぼ同構造のため、どちらが経蔵で鐘楼かは不明、東を経蔵、西を鐘楼とする。
◇講堂
建物構造:桁行七間(21m)・桁行四間(12.6m)。
基壇規模:東西25.2m(84尺)、南北16.8m(56尺)
礎石が残存する。※礎石、基壇、石階を復元。
◇僧坊
構造:桁行十一間69.3m(231尺)、梁行四間12.6m(42尺)の切妻造。中央間が6.3m(21尺)と広く、馬道(通路)と推定される。
 東西にそれぞれ五部屋(西五房・東五房)がある。 
基壇規模:東西74m(247尺)・南北16.8m(56尺)
 基壇外装は羽目石のみで、上面は三和土(たたき)仕上げ。
 ※礎石:6個が現存。(埋め戻し)
◇鐘楼
※基壇の規模のみ表示。
基壇規模:南北12m」(40尺)・東西9m(30尺)
建物規模:桁行三間・9m(30尺)、桁行二間・6m(20尺)
◇塔
※階段と礎石の位置・規模は実物大を表示。基礎の位置や階段の幅・出幅は不明のため復元表示をせず。
構造:心柱の直径(推定)90cm、床は30cmx30cmの凝灰岩製切石敷。
基壇規模 :18m四方(約60尺)
階段:四方向に階段。
礎石:残っていた礎石を表示。(丸い礎石は柱座をイメージして位置を復元)
---------------------------------------------------------------------------------------------
2017/02/10追加:
○「下野国分寺跡, 14<遺構編>栃木県埋蔵文化財調査報告220集」栃木県文化振興事業団埋蔵文化財センター、1995/3 より
本報告書においても、塔跡の具体的姿は詳らかにならず。
◇塔跡: 金堂の南東約100mに遺存する一辺約30m高さ約1.2mの基壇である。基壇上には凝灰岩製の心礎・四天柱礎、側柱礎が露出している。塔の礎石は大正年中すでに露出しており、昭和に入って太田静一により、一辺36尺と発表されている。
◇研究史: 本格的な発掘調査はなされていない。(昭和56年から本格的な発掘調査が行われる以前の状況は次の通りである。)
 「下野国分寺の古瓦」田中笑、1896(「考古学会雑誌1-1」)では
櫟林の中に・・三個の大石鼎足状に存せり、案内の者は塔の礎石也と語りぬ・・
 「諸国国分寺址」柴田常恵、1926(「古蹟」2-4)では
現今の国分寺は・・本堂、庫裡、薬師堂、大いなる三基の五輪塔相並びて立てり。村民は之を聖武天皇、光明皇后、行基菩薩の塔にて往時の国分寺遺跡から運びたりしものなりと云へり。・・・
 「下野国分寺」太田静六、1938
塔跡の簡単な調査が行われたというので、本著に塔跡の記述があるとも思われる。<未見>

上総国分寺跡(史蹟)

伽藍配置:南門・中門・金堂がほぼ中軸線上に一直線に並ぶが、講堂は中軸線から南南西にぶれているとされる。
塔は回廊内の東に一基・寺域は不確定ながら、最大東西500m・南北600mを測る。
塔跡には塔土壇および心礎を残す。心礎は出枘式で、現在出枘・心礎表面はかなり荒れている。
「幻の塔を求めて西東」:心礎は出枘式、170×170cm、径33×15cmの出枘を持つ。
金堂土壇が薬師堂南西すぐに残存する。
現在上総国分寺には仁王門及び薬師堂を残す。薬師堂:3×3間1間の向拝付設、入母屋造り茅葺き、称徳5年(1715)頃の建立(墨書銘)とされる。
2006/08/14追加:「柴田常恵写真資料」より
大正もしくは昭和初頭撮影か?
 上総国分寺心礎1   上総国分寺塔跡1   上総国分寺塔跡2   上総国分寺塔跡3    上総国分寺心礎2
 上総国分寺T      上総国分寺2       上総国分寺3
この写真によると、心礎は台円錐状に加工されていたようであり、またかなりの塔礎石も残すようである。
2022/12/28追加:
 上総国分寺心礎11   上総国分寺塔跡11   上総国分寺塔跡12   上総国分寺塔跡13   上総国分寺心礎12
2006/09/01撮影;
  上総国分寺塔土壇      上総国分寺塔跡
  上総国分寺心礎1      上総国分寺心礎2      上総国分寺心礎3       上総国分寺金堂土壇
  上総国分寺仁王門      上総国分寺薬師堂
上総国分寺塔模型:市原市役所ロビーに展示
  上総国分寺塔模型1    上総国分寺塔模型2     上総国分寺塔模型3     上総国分寺塔模型4
2009/09/14追加:
「国分寺址之研究」堀井三友、堀井三友遺著刊行委員会編、昭和31年 より
現寺は境内8000余坪、西面する仁王門があり、その正面に薬師堂、左手に本堂がある。薬師堂の南方畑地の塔の土壇がある。
塔土壇は一辺約8間、高さ2尺を測る。心礎および四天柱礎3個を残す。
心礎は5尺9寸×4尺4寸、中央に径1尺6寸高さ5寸の繰出がある。
 上総国分寺塔址礎石実測図

下総国分寺跡(史蹟)

 江戸名所圖會→「下総国分寺」

安房国分寺跡

現国分寺(館山市国分に真言宗日色山国分寺がある)付近とされる。
しかし当時上総と合併・分離した経緯があり、安房国分寺の存在は疑問視する見解も存在する。
昭和51〜53年の調査で現在の庫裏西側から古代国分寺使用のものと思われる平瓦や布目瓦、礎石などが発見され、東側からは金堂基壇も確認されたという。但し、それ以外の遺物・遺跡は明確でない。
要するに何らかの寺院施設があったのは確実と思われるが、この遺跡が国分寺であるのかどうかは不明とするしかないとも思われる。
2009/09/14追加:
「国分寺址之研究」堀井三友、堀井三友遺著刊行委員会編、昭和31年 より
現寺境内に礎石様のもの4個あり、1個は上面を円形の3段に造り出し、底部の径は2尺3寸あり、他の3個は自然石のまま。

武蔵国分寺跡(史蹟)

 武蔵国分寺

相模国分寺跡(史蹟)

 相模国分寺跡・・・心礎亡失

甲斐国分寺跡(史蹟)

寺域は南北3町半、東西2町で、2重の築地と溝を廻らす。金堂、五重塔、講堂、中門、廻廊の礎石を残す。
現在講堂跡、塔跡、金堂跡、参道跡の遺構を見ることが出来る。
塔の基壇は一辺17m、礎石は四天柱礎南の2個と西側柱礎1個を欠くが、14個が残存する。
○甲斐叢記:巻之5:国分寺址:記事
「・・・この寺の域に、古昔のおほてらの址なりとて礎石在り。古き瓦の欠けたる、多く出ず。・・・(今の国分寺は臨済宗にて、・・寺領七石あり。その境内は古の護摩堂の跡なりと言ふ。)」  注)挿絵はなし。
○「幻の塔を求めて西東」:心礎は円柱座造出一重円孔式、280×220cm、径122×1cmの円柱座造出し、径43×27cmの後円孔がある。
○2009/09/26追加:「国分寺址之研究」堀井三友、堀井三友遺著刊行委員会編、昭和31年 より
現国分寺(臨済宗)は南面した本堂とその左右の薬師堂・庫裏を残す。庫裏の南方桑畑中に塔址がある。礎石14個(第2列の4、第3列の2、3の3個を欠く)が残る。心礎は9尺2寸×8尺2寸で、表面に径4尺の円柱座を造出し、その中央に径1尺4寸5分深さ7寸5分の枘孔を穿つ。
四隅の礎石は7尺2寸〜5尺9寸×6尺3寸〜5尺5寸で、何れも径8寸深さ3寸6分ほどの枘孔を持つ。塔一辺は31尺6寸余(天平尺32尺5寸)を測る。
塔址の西南約31尺に1個の枘孔を持つ礎石あり、その東方24尺に3個の礎石があり、南大門址であろう。
その北方約24間(現鐘楼後方)の西寄りに2個、東寄りに3個の礎石があり、各々鼓楼址、鐘楼址と伝える。
現薬師堂の背面(現墓地)に25個の礎石を残す。7間四面の堂があったと推定される。金堂跡であろう。
その東北端から東方斜めに高さ3尺幅9尺の土壇が73尺続き、さらにその先端は同規模の土壇が70尺にわたり丁字形に交わる、これは廻廊址と云うも不明。なお以上のほか、礎石は薬師堂背面・金堂跡の前面・本堂背面の泉水・庫裏東側小庭などにあり、碑石の台石などに転用されている。
 甲斐国分寺塔址     甲斐国分寺平面実測図
  ※現在発掘調査が進み、本堂の建っていた所が金堂跡で、上記の金堂跡とする所は講堂跡とされる。
  遺跡上に建っていた本堂・庫裏などは近くに移建される。
○2010/05/23追加:
「日本の木造塔跡」:
心礎は2.55×2.35mで、径120cnの円形柱座を造り出し、その中央に径35cm深さ26cmの円穴を彫る。四天柱も巨石を用いる。塔一辺は9.65m。
さてこの国分寺にはもう一つの心礎が本堂の側にある。
この心礎は円孔が貫通する。(伊予長隆寺<伊予来住廃寺>心礎と同形)
心礎は四角形(一辺は各々1.55、1.59、1.48、1,30m)で厚さは45cm、底まで貫通する孔の径は40〜50cm。現在は6個に割れているが、本来は4分割した(するつもり)心礎であろう。但し長隆寺の心礎は楔で2分割し、そのうえで周囲に結合するための工夫(溝を彫る)があるが、この心礎には何もない。このままでは心礎を立て固定するには不安があるので、この心礎は放置されたのであろう 。
<勿論もう一つの心礎とは石製露盤のことである。>
 甲斐国分寺塔跡01: (「甲斐国分寺跡・甲斐国分尼寺跡」リーフレット、笛吹市教委 より)
2010/05/30撮影:
 甲斐国分寺塔跡02
 甲斐国分寺塔跡11       同      12       同      13       同      14       同   心礎11
   同      12        同      13       同      14       同      15       同      16
   同   脇柱礎1       同   脇柱礎2       同   中門礎石

甲斐国分寺石造露盤 → 甲斐国分寺石造露盤

○2010/06/13追加:甲斐国分尼寺跡
参考:付近に甲斐国分尼寺跡がある。金堂及び講堂跡を明瞭に残す。
 甲斐国分尼寺金堂跡:土壇上に礎石18個を残す。建物は5×4間と推定される。(20.4×13,2m)
 甲斐国分尼寺講堂跡:金堂より一段低い基壇上に礎石12個が残る。建物は5×4間と推定される。(20.1×13.8m)

伊豆国分寺跡 (史跡)

○昭和31年の調査で、南門から中門・金堂・講堂が一直線に並ぶ伽藍配置が確認された。回廊は金堂に取り付く。
塔は回廊外の中門西に配置されたとされる。塔跡(史蹟)は、現国分寺の本堂裏手に、北半分の礎石8個を残す(心礎は亡失)。
礎石8個にはいずれも枘孔と思われる孔を穿つ。
「わが心の国分寺」によると、「平安末期には、真言宗の寺院としてかなりの規模を持ち、門前の左右に塔頭寺院がならんでいた」とあると云う。また、天文年間(1532〜1554)以降、北条氏と武田氏の兵火で焼亡。
現国分寺は、三島代官・井出正次が慶長5年(1600)に法華宗蓮行寺として再興し、さらに昭和29年に伊豆国分寺と改称すると云う。
 2016/12/12追加:現在は重須本門寺直末。
心礎については亡失という。
 「亡失心礎」の「伊豆国分寺
 ※寺院を再興した井出正次は今川家臣であったが、後には家康に仕え、初代・三代の三島代官を務める。法華宗日興門派に対する信仰が篤く、重須本門寺・大宮本光寺・吉原本国寺・蒲原妙隆寺・長窪円蔵寺等に寺領を寄進する。慶長5年廃寺同様の当寺を再興する。
2004/07/31撮影:
 伊豆国分寺塔跡1     同       2     同       3     同       4     同   伽藍図1     同   伽藍図2
2006/08/13追加:
○「柴田常恵写真資料」より:大正もしくは昭和初頭撮影か?
 伊豆国分寺塔跡1     伊豆国分寺塔跡2     伊豆国分寺塔跡3(東ヨリ)     伊豆国分寺塔跡4(東ヨリ)
 伊豆国分寺塔跡5     伊豆国分寺塔跡6     伊豆国分寺塔跡7
2022/12/28追加:
○「柴田常恵写真資料」より:大正12年10月19撮影
 伊豆国分寺塔跡・礎石1    伊豆国分寺塔跡・礎石2    伊豆国分寺塔跡・礎石3    伊豆国分寺塔跡・礎石4
 伊豆国分寺塔跡・礎石5    伊豆国分寺塔跡・礎石6    伊豆国分寺塔跡・礎石7
2009/05/06追加:
○「新修国分寺の研究」 より:
 昭和31年斉藤忠によって、抜き取られた心礎の位置確認のための発掘調査が行われる。この発掘調査によって東西に4個ずつ、南北に2列に並ぶ8個の礎石の南側中央部に心礎の抜き取り穴と根石が確認され、現存する礎石は北側2列の礎石であることが判明した。
 抜き取られた心礎は小松宮別邸(現在の楽寿園)に運ばれ、茶室の蹲踞として使われていたが、後に東京に運ばれ亡失と云う。→<※1
さらに、軽部慈恩による発掘調査によって、各伽藍の位置が確認され、創建の伊豆国分寺はこの地であることが確定された。
 従前は創建伊豆国分寺の位置については諸説があった。例えば「増訂伊豆志稿」昭和42年 では
1.宝樹山蓮行寺は寺伝に国分寺の旧地なりと伝ふれど詳ならず(七重の塔の残礎と云石存在せしも近年小松宮彰仁親王の別業に移す)
2.廃国分寺・・・延喜式に曰く山興寺為国分寺・・・・此寺往古三島大社の東にありて神宮寺とも称したり。三島大社暦応元年・・文書に伊豆國三島社神宮寺号国分寺云々とあり・・・。(神祠部三島大社の条に三級浮屠<※2>は祠東塔ノ森と云処にあり蓋国分寺の塔なりとあり)・・・此寺往古田方郡田中郷より三島に移転すと云説あり。三級浮屠は大社境内に移し現存す。
  ※三島大明神三重塔中の塔の森廃寺の項を参照。
3.金剛山慶寿院(田方郡宗光寺村)・・・矢田家次一宇を創建し相光寺と号す(延喜式に山興寺為国分寺・・・・或者云ふ此村其旧地にして相光寺は山興寺の転訛なる可し)此村中往々古瓦を出だす是山興寺の遺物なるべしと
4.廃久昌寺(田方郡御門村)・・・或云此地往古国分寺の旧地なりと(泊々文藻、蔵春院板仏記曰く久昌寺は昔の国分寺にして・・・今はただ六角堂と云るささやかなる跡のみ残れり) と云う。
 以上の例示のように、国府の位置を含め、国分寺の位置は諸説が入り乱れた状態であったが、斉藤・軽部の発掘調査で蓮行寺の塔跡が創建国分寺の塔跡と認識されるに至った。 なお廃久昌寺付近からは古代瓦や国分寺関連の遺物・遺構は出土せず、宗光寺廃寺は出土瓦から白鳳期の寺院跡と判明した。 山興寺は三島社神宮寺説と宗光寺廃寺(相光寺)説とがあるが、創建国分寺が衰退した後、国分寺の代替とされたと思われる。
 ◇塔跡遺構:
 伊豆国分寺塔跡礎石実測図   伊豆国分寺塔跡発掘調査図:平成6年蓮行寺庫裏建替に伴う発掘調査図
礎石は高さ1尺の土壇状をなしたる上に、8個(東西に2列に並ぶ)残存する。その中の東側6個はほぼ創建当時の位置を替えていないものと考えられる。西側2個は昭和30年周囲の保存柵を作るときに移動して柵内に適宜配列したものである。この2個以前から墓地の中に転がされていて、内1個は横転して投げ出されていた。
礎石は自然石で、その大きさは概ね5尺ないし6尺を測り、何れも枘孔を穿つ。枘孔は径3寸1分から3寸5分で、深さは2寸5分から3寸6分となっている。ほぼ原位置を保つと思われる6個の礎石の枘孔間の距離は11尺7寸から11尺2寸であり、天平尺12尺の等間で設計されたものと思われる。そして発掘調査によって、塔中央部に相当する位置から根固め石が確認された。
なお基壇辺は南東隅で発見され、その距離は側柱礎から凡そ天平尺12尺の位置であり、従って基壇の大きさは塔一辺である(12尺×3)天平尺36尺に24尺を加えた天平尺60尺であることが明らかとなった。(以上「三島市誌」より)
 ◇その他の金堂跡・講堂跡・僧坊跡・回廊跡・中門跡・南大門跡・鐘楼跡・経蔵跡については、現地が住宅密集地・墓地・伊豆箱根鉄道駿豆線路盤であり発掘調査できるような空地はなかったが、軽部慈恩はそれでも墓石の間・家の庭・線路際・道路など掘れそうなところは交渉して発掘し、得られた遺構の一部を図上に記入し、次第に創建伊豆国分寺の姿を明らかにしていった。
 伊豆国分寺伽藍配置図:「三島市誌」・・・軽部慈恩の調査の集大成の 概要の図と思われる。
>「遠江国分寺の礎石」柴田常恵(「歴史地理 第30巻第2号」昭和3年 所収) では「・・・・伊豆国分寺の礎石が三島町に小松宮の御別邸造営の折、町民より献納する所と為り、後ち宮家にては東京浅草なる橋場の御邸内に移されし由を拝聞する・・・・」とある。
※2>浮屠:1.仏陀・ほとけ(梵語Buddha)、2.塔・卒塔婆(梵語Stupa)、3.仏寺・僧侶  とある。(「広辞苑」)
2017/01/25追加:
○「静岡県史蹟名勝天然紀念物調査報告. 第1集」静岡県、大正14年(1925) より
・・・今蓮行寺に存する礎石は下図の如くにして123567は正しき距離を有すれども4と8とは掘り起こされて3と7の傍に顧ぜり、而して嘗て小松宮家より召されて奉りきといふ心礎は地勢より考ふれば當に67の後方中間にありしなるべく・・・
 伊豆国分寺塔跡礎石配置

信濃国分寺跡(史蹟)

現在は史蹟公園(遺構は埋め戻しによる基壇復元方式)として整備、また信濃国分寺資料館も付設され公開される。
 <国分寺南東から西北西に遺跡を遮断して旧信越本線、旧丸子電鉄線(廃線・信越線増線)が国分寺跡を横断する。>
国分寺跡は千曲川北岸の河岸段丘上にある。
一方現存する現国分寺は、天慶元年(938)平将門の乱で焼失した後、源頼朝によって再建され、旧地の北方、もう一段上の河岸段丘上に、現在も三重塔などの伽藍を伝える。
  ※ → 現国分寺及び現存する三重塔
発掘調査の結果、江戸期に現国分寺仁王門のあった場所に礎石および土壇が残り、これが講堂跡と確認される。
伽藍配置は南大門?、中門、金堂、講堂が直線に並び、回廊は中門から講堂に取り付く。
塔は回廊外、金堂東南位置に確認される。
残念ながら講堂跡礎石を除き、礎石の遺存はなく、心礎も栗石群の発見でその位置が推定されただけで、心礎そのものは不明 とされる。
塔基壇は13.2m四方、中央間3.0m・両脇間2.4m?の規模と推定される。
八幡宮(国分神社)巨石:
 東北隅にある国分神社の西の高麗社前の巨石(1.8m×1.26m)が塔跡あたりから搬入したとの伝承があると云う。
 (実見せず→2022/04/21実見)
しかし柱座あるいは心礎独特の加工などはなく、また当時の心礎とするには大きさも若干小さいようで 心礎とするのは無理であろう。
なお現国分寺境内に柱座を持つ礎石(割れている)が1個あるという。(未見)
 なお国分尼寺については西に隣接して建立され、国分寺と同様に史跡整備されている。
2002/09/05撮影
  信濃国分寺跡塔土壇1     信濃国分寺跡塔土壇2     信濃国分寺講堂跡     信濃国分寺伽藍配置図
2006/11/03追加、2022/09/02追加:
○「各地の国分寺 史跡の整備とその現状」大垣市歴史民俗資料館、昭和58年 より
寺域は東西177m南北178m(約100間、585尺)。
 信濃国分寺伽藍概要図
 発掘調査は昭和38年から46年にかけて実施され、ほぼ僧寺と尼寺のほぼ全容を明らかにする。
古来僧寺金堂跡という土壇と礎石群があったが、この遺構は講堂跡と確認される。そしてその南側に金堂跡、さらに南に中門跡が明らかとなり、塔跡は金堂跡東南で確認される。なお塔跡の基壇一辺は13.2mと推認される。
尼寺跡は発掘調査で僧寺の西に接近して確認される。伽藍配置も僧寺とほぼ同様で、その寺域は148m(80間)四方と確認される。
2022/04/21撮影:
 信濃国分寺跡模型    信濃国分尼寺跡模型    信濃国分寺跡と尼寺跡:何れも「信濃国分寺資料館」展示
 信濃国分寺中門跡1    信濃国分寺中門跡2     信濃国分寺中門跡3
 信濃国分寺塔跡復元基壇1    信濃国分寺塔跡復元基壇2:手前は回廊跡
 信濃国分寺塔跡復元基壇3    信濃国分寺塔跡復元基壇4
 信濃国分寺金堂・講堂跡:中央向かって左が金堂跡
 信濃国分寺金堂跡復元基壇1    信濃国分寺金堂跡復元基壇2    信濃国分寺金堂跡復元基壇3
 信濃国分寺講堂跡1    信濃国分寺講堂跡2    信濃国分寺講堂跡3    信濃国分寺講堂跡4    信濃国分寺講堂跡5
 信濃国分寺講堂跡礎石1    信濃国分寺講堂跡礎石2
 信濃国分寺廻廊跡
 国分八幡宮巨石1     国分八幡宮巨石2
○「信濃国分寺跡」信濃国分寺資料館、昭和57年 より
塔跡
辛うじて、心礎の根固めの栗石と認められる遺構を発見、その他は削平されほぼ痕跡を留めない。
 信濃国分寺塔跡平面図    信濃国分寺心礎据付穴・栗石

佐渡国分寺跡(史蹟)

佐渡金北山妙見山を望む
○佐渡国分寺跡は現国分寺西に位置する。伽藍は南面する。
段丘崖から30尺で南大門(5×2間・礎石4個を残す)があり、南大門中心から70尺で中門(5×2間・礎石1個を残す)に至る。
中門左右に単廊廻廊があり6間の柱間で北に折れ、さらに11間で折れ、金堂に接続する。中門中心から金堂中心は128尺を測る。
金堂(5×5間・59×44尺)跡には4.5×3.5尺程度の自然石礎石21個を残す。
金堂中心から東291尺(約60m)で塔心礎がある。金堂東北東に5間四方の堂跡があるが方位が違い、新造の旧薬師如来堂とされる。
この新堂は平安期の建物とされ、5×5間で自然石の礎石28個を残す。
講堂は通常無いとされるも、昭和31年に金堂北方で国分寺北遺跡、国分寺西北遺跡が発見され、各々講堂跡・食堂跡に比定される。
寺伝では正安年中(1299-)雷火により七重塔焼失、享禄2年(1529)失火で堂宇灰燼に帰すと云う。
明治維新に寺家、末寺の全てが廃寺、門徒の大部が廃寺となる。
2007/04/03撮影:
 佐渡国分寺跡1:南より南大門跡・中門跡、金堂跡  佐渡国分寺跡2:中門東部廻廊跡(西から撮影)
 佐渡国分寺跡3:金堂跡(東から撮影)                  佐渡国分寺跡4:新堂跡(西南より撮影)
塔は金堂東、回廊外(東60m)にある。塔跡には心礎が残存する。
現状2つに割れ、粗く柱座を彫り込み、中央に小孔が穿孔される。
○「幻の塔を求めて西東」:
心礎は一重円孔式、189×145cmの大きさで、径29×深さ12cmの円孔を穿つ。
○「佛教考古学論攷」:
 佐渡国分寺心礎実測図
2007/04/03撮影:
 佐渡国分寺塔心礎1   佐渡国分寺塔心礎2   佐渡国分寺塔心礎3   佐渡国分寺塔心礎4   佐渡国分寺塔土壇
なお、心礎西北方、西南方に各々一個の側柱礎を残す。大きさは5尺2寸×5尺4寸、3尺5寸×3尺2寸、両者の間隔は31尺7寸。
そのほか瑠璃堂前の3尺4寸×3尺1寸の灯篭台石は塔礎石とされる。
 ※現在塔跡に置かれている心礎は瑠璃堂前の灯篭台石となっていた半片を戻し復原しているものと思われる。
2006/11/03追加:
○「各地の国分寺」 より
伽藍は中軸線上に南門・中門・廻廊・金堂が並び金堂東方60mに塔がある。これ等の堂塔の土壇・礎石多数が現存する。
塔土壇は33尺(天平尺)一辺、高さ2尺3寸、半欠された心礎、側柱礎2個が残存する。
金堂東北の新堂は平安期の建築とされる。
 佐渡国分寺伽藍概要図
○2006/11/03追加:以下の情報もある。
瑠璃堂(寛文6年・1666建立)脇の手水鉢の台は、かつての佐渡国分寺七重塔の礎石を半分に割りとったものという。
かっては瑠璃堂に薬師如来(国文)が安置されていたが、いまは宝物殿に安置という。
延喜式に見える「新造薬師仏」がこの薬師仏であり、新堂に安置されたと推定される。
2016/07/15追加:
○「日本の美術 171 国分寺」至文堂、昭和55年 より
 佐渡国分寺本尊薬師如来坐像:重文、平安前期の造立であろう、像高135cm(半丈六仏)。
○2007/03/27追加:
「佐渡国誌」:
・・・又七重塔一区ありたるなり塔礎は今も当寺の境内に在りて昔を偲ばしむ、又当寺の南小渓を隔てたる吉岡の地にも塔礎一個あり是れ或は新薬師寺の遺跡なりしか・・・
 ※以上の記載があり、国分寺南(西南)の小渓を隔てた吉岡にも心礎があり、新薬師寺のものとされるとも解釈される。
  但し、詳細は全く不明。
「明細帳」:
本尊 薬師如来・・・  堂宇 本堂、庫裏、客殿、玄関、書院、廻廊、台所、廊下、宝蔵、経蔵、土蔵3、鐘楼、中門、通用門、仁王門、納屋2、護摩堂、聖天堂、十王堂   境内 5493坪
「寺社帳」:寺家 5ヶ寺、末寺 12ヶ寺、門徒 37ヶ寺
「佐渡志」:山城醍醐報恩院末・・・
子院5 普賢院、宝珠院、寂静坊、夕寂坊、観行坊
属下門末 吉岡村真楽寺、正明寺村宝性寺、真野村真輪寺、北方村円通寺、畑本郷玉林寺、井内村神宮寺、上新穂村宝性院、下新穂村弥勒坊、田ノ沢村菩薩寺、畑本郷地尊院、真野村上光坊、真野村隆昌院、真野村宝光坊、真野村愛染坊、真野村円蔵坊、真野村妙浄坊、真野村大智坊、真野村大徳坊、真野村観智坊、真野村南陽坊、吉岡村西報寺、三宮村長徳寺、三宮村円満寺、三宮村神宮寺、三宮村正覚寺、三宮村本覚坊、三宮村深山坊、三宮村金乗坊、宮浦村上ノ坊、宮浦村行泉坊、竹田村円満坊、北方村明王院、北方村善意寺、北方村万福寺、下新穂村曼荼羅院、下新穂村宝蔵寺、下新穂村儀乗坊、下新穂村乗光坊、下新穂村三諦坊、下新穂村金剛院、谷塚村多門坊、長畝村蓮峯寺、二方潟村玄祐坊、瓜生屋村泉流寺、瓜生屋村今熊寺、潟上村世尊院、田野沢村円蔵坊、下戸村金光寺 通計56ヶ寺
○現国分寺薬師堂(瑠璃堂)は寛文5年(1665)再興、本尊薬師如来坐像は重文。
 2007/04/03撮影:
  佐渡国分寺境内1:薬師堂方面から仁王門を撮影(西から撮影)、北側は現国分寺本堂?客殿?庫裏?の一画
  佐渡国分寺境内2:仁王門方向から薬師堂を撮影(東から撮影)
○2009/09/29追加:
「国分寺址之研究」堀井三友、堀井三友遺著刊行委員会編、昭和31年<堀井三友は昭和17年歿> より
 現国分寺(新義真言宗)は山門の右手に仁王門・本堂・庫裏の一郭があり、西正面に瑠璃堂(国宝・現重文薬師如来像を安置)がある。
堂前に標柱石の土台となる4尺5寸大の柱座を持つ礎石がある。
 瑠璃堂の背面約30間に塔址礎石群がある。その西方20間許に方形をなせるやゝ小なる礎石の群第ニがあり、その西方更に10間許に方形の大なる礎石の群第三がある。第三の礎石群南方18間のところを中心として左右に凹字形に並べる礎石群第四、更にその南58尺の所に一直線に並ぶ礎石群第五がある。
 塔土壇はその西側にて高さ4尺8寸、長さ48尺5寸許で、東側・北側は削られて明確でない。
土壇上中央の心礎は6尺5寸×4尺2寸で、その上の中心をやや外したところに径9寸8分、深さ4寸の枘孔(底は緩い碗状)を持つ。
但しこの枘孔は本来は中央にあったもので、後年礎石が割れ現在の形(2分される)になったのであろう。
心礎の一半は瑠璃堂前の手水鉢の台石になっている。これを合わせると心礎はほぼ整形を呈する。
心礎の西北及び西南約22尺許の所に礎石があり、さらに東北・東南には礎石抜取穴と思われる凹所がある。
以上から塔一辺は31尺6寸ほど(天平尺32尺)であろう。
 群第ニは5間五面の建物と知れる。これを新堂と称する。当国分寺には講堂跡が遺存礎石からも見出せないが、この遺構の礎石の大きさから、この群第ニの建物は奈良期の講堂などの建築ではなく、平安期に降るものと思われ、「延喜式」の「新造薬師仏燈料500束」の記述に照する新造薬師仏を祀る堂と考えられる。今瑠璃堂に安置する国宝(重文)薬師如来は平安初期の様式であり、新造薬師仏とはこの像と推定される。故にこの遺構は新堂跡と称する。
 群第三は5×4間の建物であり、金堂であろう。群第4は廻廊跡、第五は南大門跡であろう。
 佐渡国分寺金堂址実測図     佐渡国分寺新堂址実測図
 なお尼寺址については明らかでない。
真野村吉岡の薬師堂の地は好適の地で、国分寺跡出土と同様の瓦も出土する。今薬師堂須彌壇下に存する礎石は、方形で約3尺8寸高さ2尺2寸、中央に径2尺4寸深さ7寸7分の円形柱座がある。こうした柱座がある点、やや小さいが塔の心礎とも見られ、この地を軽々しく尼寺跡と見るを得ない。この吉岡の字竪小路付近原田の地を尼寺跡とする説もあるが兆証を得ない。
阿仏房の妙宣寺も尼寺跡に好適の地(吉田東伍)というも、寺域には何の遺物・遺跡もない。
竹田の太運寺は南に山迫り北は低く、奈良期に寺址には不適当であろう。
 佐渡吉岡薬師堂心礎

越後国分寺

天平創建時の伽藍地は全く不明、海中に没したとも云われる。
近年は高田平野の中央にある本長者原廃寺(今は全く破壊)の可能性が高いとも云われる。
 越後本長者原廃寺
現国分寺(五智国分寺)は永禄5年(1562)春日山城主上杉謙信によって、現在地に再建と云う。
現国分寺は元禄2年(1689)、寛政6年(1794)火災焼失、昭和63年本堂(文政4年1821再興堂)焼失、平成9年現本堂再建。
 越後五智国分寺

越中国分寺:高岡市伏木一宮国分堂

現在は薬師堂一宇を残す。薬師堂の残る一画で、金堂もしくは講堂であろうと推定される土壇の残欠が存在する。(不明瞭)
また、約20m南東の墓地は土壇様の高まりを残し、塔跡と推定されている。(土檀は不明瞭、塔跡とする根拠は薄弱)
現地は宅地化し、上記以外の遺跡は確認されていない。
2009/09/14追加:
「国分寺址之研究」堀井三友、堀井三友遺著刊行委員会編、昭和31年 より
「国分寺薬師如来堂」と称する江戸期の堂宇が残る。境内に礎石と思われる石が2個見られる。堂内には弘仁期の破損した天部2躯、弘仁末期帝釈天像、南北朝期の文殊菩薩坐像、鎌倉期の毘沙門天像・地蔵菩薩像がある。この内文殊・地蔵の2躯は明治維新の時、神仏分離で一宮気多社から移した本地仏である。因みにこの薬師堂は気多社別当慶高寺(元禄期再興)の末寺であった。
 越中国分寺薬師堂     越中国分寺薬師堂東側
 越中国分寺推定塔跡1    越中国分寺推定塔跡2     薬師堂前土壇残欠1     薬師堂前土壇残欠2

能登国分寺跡(史跡):七尾駅の南1.5 km、国分町・古府町地内にある。

2010/10/12訪問:
塔跡:発掘調査で花崗岩の自然石を用いた側柱礎7個を発掘。柱間は等間で150cm(5尺)と判明する。復元基壇は凝灰岩製の切石でもって壇上積基壇として復原され、欠けた礎石は補充し、心礎位置には「草塚 」に伝えられた心礎(「イボ石」と呼ばれていた)をそのまま据え付ける。
心礎の大きさ(実測値)は175×130cm、高さは埋められているため、不明。表面中央に「洗面器」様の円孔がある。(心礎にしては不自然か)円孔の上辺の経は約28cm、下辺の経は約26cm、さらに上辺の縁は喇叭の先のような状態を呈する。円孔の深さは約11cm。
底は水平ではなく、やや球状に抉られる。
金堂跡:通称「草塚」と呼ばれていたところで、小宇と心礎があったと云う。
発掘により22×18mの基壇と礎石5個が発掘され、5間×4間の建物と判明する。復元基壇は玉石積基壇で復元され、基壇上には欠けた礎石を補充して、復原される。
講堂跡:発掘調査により7間×4間の建物が発掘される。基壇は玉石積で復原され、欠けた礎石は補充される。
2016/11/26再訪
無印は2010/10/12撮影、○印は2016/11/26撮影:
 ○復原南大門/中門跡1     ○復原南大門/中門跡2
 能登国分寺金堂・中門・塔:左:金堂、中央:中門跡      能登国分寺塔・講堂・金堂:左:塔、中央手前:講堂 、中央遠方:中門跡
 能登国分寺復原南門・塀     ○能登国分寺復元南大門1     ○能登国分寺復元南大門2
 ○能登国分寺中門跡1      ○能登国分寺中門跡2

 能登国分寺塔復原基壇1      能登国分寺塔復原基壇2
 ○能登国分寺復原塔基壇3   ○能登国分寺復原塔基壇4   ○能登国分寺復原塔基壇5   ○能登国分寺復原塔基壇6
 能登国分寺心礎1       能登国分寺心礎2         能登国分寺心礎3        能登国分寺心礎4
 能登国分寺心礎5       能登国分寺心礎6          能登国分寺心礎7
 ○能登国分寺心礎5      ○能登国分寺心礎6       ○能登国分寺心礎7       ○能登国分寺心礎8
 ○能登国分寺心礎9
 能登国分寺塔礎石1       能登国分寺塔礎石2
 ○能登国分寺塔礎石3     ○能登国分寺塔礎石4     ○能登国分寺塔礎石5     ○能登国分寺塔礎石6

 能登国分寺復原金堂跡1     能登国分寺復原金堂跡2     能登国分寺復原金堂跡3
 ○能登国分寺金堂跡4       ○能登国分寺金堂跡5      ○能登国分寺金堂跡6      ○能登国分寺金堂跡7
 能登国分寺復原講堂跡1     能登国分寺復原講堂跡2
 ○能登国分寺講堂跡3       ○能登国分寺講堂跡4

「石川県の文化財」昭和60年 より
能登国分寺は、承和10年(843)定額寺である大興寺を昇格させて設置するとされる。
昭和45年(1970)からの3ヶ年にわたる調査で全貌が判明。寺域はほぼ2町四方(東西200m弱・南北200m強)と推定される。
中軸線上、南大門の48m北に中門、中門から東西にのびる築地塀があり中門の北48mの地点の東側に塔、西側に金堂が、距離48mで並ぶ。さらに北30mに講堂がある。(法起寺式伽藍配置)。
塔跡は心礎と四天柱礎石以外の側柱礎石が遺存(基壇は削平されている)し、塔の柱間は1.5mと小さく、三重塔かと推定される。
心礎は原位置ではないが、2m×1,25mの自然石に径30cm?深さ10cmの孔を穿つ。
素縁複弁八葉蓮華文軒丸瓦が出土し、それにより8世紀初頭の創建と考えられる。
元慶6年(882)風雷のため堂塔が破損し、修理を加えた(『三代実録』)とされるが、塔の再建はなされず瓦塔をおさめて代用したことが確かめられる。
「幻の塔を求めて西東」:一重円孔式、大きさ190×130cm、円孔は径30×11cm。
2008/07/16追加:
「石川県史蹟名勝調査報告 第2輯」石川県編、大正13年 より
能登国分寺:
中世に至り、天正の頃附近は戦乱の巷と化し、堂舎は荒廃し田園となりたる。寺院伝承地は1個の塔礎石と小形の草塚(又は石塚)を残すのみ。然るに近年の調査で残礎を水田下に発見する事態にも至れり。
 能登國分寺舊跡實側圖
・礎石:
小径の傍にあり、俗に「イボ石」と云い、卵形の花崗岩である、その大きさは6尺2寸×4尺5寸×高2尺5寸(地表上)、中央に刻せし円孔は径9寸5分・深3寸5分、表面に近き部分の縁は著しく削磨せり。
伝説によればこの礎石はかって他に運搬せん為に引き上げしことありと云う。
・草塚:
水田中にあり面積1畝歩高さ水田面より2尺5寸、北及び西の縁辺には石材を配置、外表面には何らの石類なし。国分寺の遺跡と伝える。
・東方礎石群:
南北に通じる小径の東方・水田底に一群(8個)の残礎石あり。その配置は図の如くであるが多少動いていて如何なる堂舎かは不明。
・大門礎石:
草塚の南60余間の水田中に一群の礎石あり、この地の字を大門と云う。
2009/09/14追加:
「国分寺址之研究」堀井三友、堀井三友遺著刊行委員会編、昭和31年 より
能登国分寺は全く廃絶し、遺跡は僅か田圃の中に礎石と土壇様のものを存するに過ぎない。
七尾街道から分岐し中川原に至る小径の傍らに塔心礎がある。心礎は卵形の花崗岩で、大きさは6尺2寸×4尺5寸高さ2尺5寸で、径9寸5分深さ3寸5分の円孔を穿つ。かって道路改修の時、東へ5〜6尺移動したと云う。この付近に塔跡が想定できるであろう。
 能登国分寺心礎121
塔址の東北約10間の水田中に8個の礎石と1個の礎石の痕跡がある。恐らく礎石は動かされている。
塔跡の西約12間半に草塚と云う土壇があり、西辺北辺に礎石が残る。ここは近世初期まで国分寺の草堂があったところと推定される。
塔礎石の南方約67間余の水田中に8個の礎石がある。この付近を大門と称し、恐らく南大門跡であろう。
 能登国分寺址礎石実測図:礎石実測図ならびに心礎図
補足:
昭和45年から9次に渡る発掘調査が行われる。その結果塔をはじめ多くの遺構が発掘される。
塔の発掘で一辺は4.5m、柱間は5尺(1.5m)と判明、心礎以外に側柱礎石7個(花崗岩の自然石)が発見される。
 能登国分寺塔跡検出状況:七尾市教育委員会1990『史跡能登国分寺跡−第八次発掘調査報告書−』所収
 能登国分寺整備状況:七尾市教育委員会1994『史跡能登国分寺跡整備事業報告書−史跡等活用特別事業「ふるさと歴史の広場」−』所収

加賀国分寺

2012/03/13追加・修正
弘仁14年(823)越前から
江沼郡と加賀郡を割いて分国し加賀国が成立。承和8年(841)勝興寺を国分寺とすると云う。(「続日本後記」など
 ※同年、江沼郡の北部を能美郡とし、加賀郡の南部を石川郡とし、4郡となる。
しかし勝興寺の所在場所についての明記はなく、諸説(推定地)があるというのが現状である。
 加賀国分寺(勝興寺)推定地は凡そ以下がある。
これらの諸説についても、決定的な遺物・遺構の出土を見ず、何れとも決めがたいというのが実情であろう。
1)能美郡古府町(村)
ジュウクドウヤマ(十九堂山)遺跡:昭和初頭に耕地整理で殆ど削平され、遺構はほぼ消滅と思われる。
 心礎はフナンヤマ府南社に動かされ現存と云う。
 →加賀ジュウクドウヤマ遺跡
 なお、この地古府に国分寺(小松市古府)という寺院があるが、この寺院は近年小松から古府に寺院移転をし、その際に古府に因み国分寺を号したと云う。従って、古代国分寺とは全く無関係である。
2)
石川郡末松廃寺 →末松廃寺
3)江沼郡宮地廃寺 →宮地廃寺 ※江沼郡にはさらに2箇所ほどの候補地があるとも云う。

越前国分寺

国分寺創建の地は不明である。
既存の遺跡では、大虫廃寺(平安前期に国分寺が移されるという説もあり)あるいは深草廃寺(現国分寺や推定国府跡に隣接)とも云われるが、決め手はないのが現状のようである。
なお大虫廃寺を創建国分寺とするには、塔の規模などから、伽藍規模が小さすぎて否定説が強い。
創建国分寺は不明ではあるが越前府中(武生市街)に国分寺と号する寺院(現国分寺)が存在する。しかし、それ自体は近世のものであろう。
○越前府中現国分寺(越前武生現国分寺)
2009/04/07撮影:
 
越前現国分寺
2017/11/28撮影:
 越前現国分寺本堂     越前現国分寺境内
 越前現国分寺道石碑:現国分寺境内に置かれるが、かっては国分寺参詣道に置かれていた石碑であろうか。
 現国分寺石塔石仏類:国分寺本堂前に置かれる。
→ 大虫廃寺・深草廃寺については「甲信越北陸諸国の塔跡」の越前の該当項目を参照

駿河国分寺

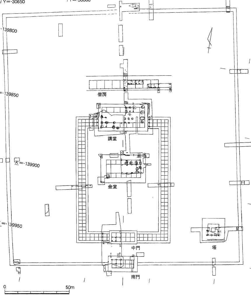
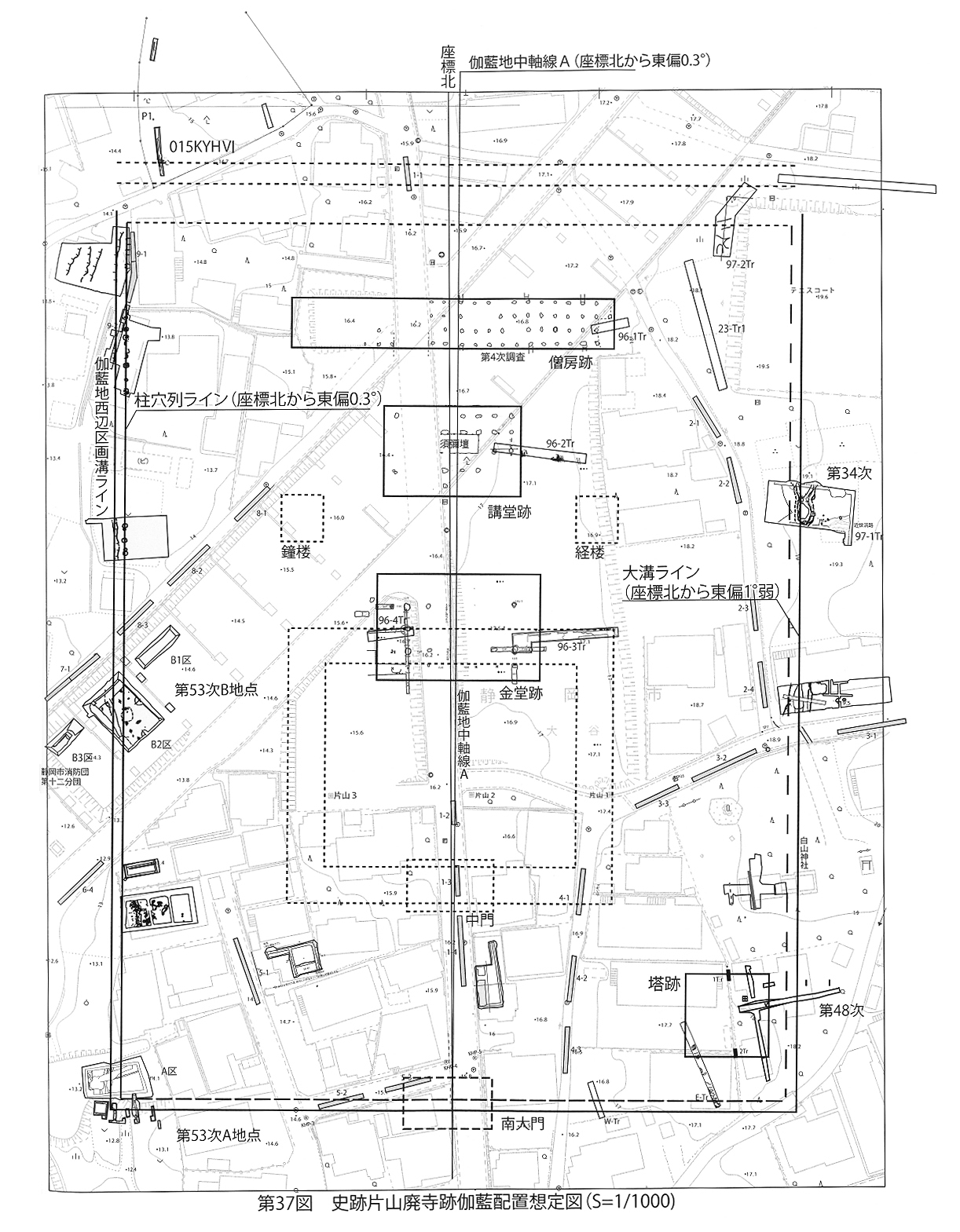
創建駿河国分寺は現国分寺の所在する地なのか静岡市大谷片山廃寺なのか結論が出ていない状態である。
しかし、平成20年片山廃寺主要伽藍の東南の地で方向が一致する堀込地業が発掘され、これは塔跡であることが極めて高いことが判明する。この推定塔跡の発掘により、現今では駿河片山廃寺が駿河国分寺跡であるという見方が主流になる。
なお、駿河国分寺心礎と伝わる心礎が菩提樹院に残る。

 現駿河国分寺付近

2009/09/26追加:
○「国分寺址之研究」堀井三友、堀井三友遺著刊行委員会編、昭和31年 より
駿府城址北1町許に泉動院の址(現在の泉動院国分寺)があり、もと国分寺と称していた寺院の址である。
 駿河国分寺址及び付近
     ・・・どの付近であるのかは不明であるが、泉動院の址付近の写真と思われる。(今は全く市街地化していると推定される。)
今は何等の遺物・遺跡を残さないが、泉動院は現国分寺付近を中央にして、東西南北40〜50間の寺地を占めていたものと推定される。
享禄3年(1530)「新長谷寺堺地文書」では以下のように新長谷寺の界地を定めたと云う。
「駿河新長谷寺かい地の事  ・・・・国分寺の内、給主安西寺がた(方)、国大工がた(方)熊野領のうち、新野がた(方)、東は道をがぎり33間、西は薬師の道をがぎり15間、南おもての路50間、北は42間、合1200坪このほか国大工がたおもて(面)の路の分42坪、法(のり)、永、地頭のいろひなく、当屋敷に相定めをはんぬ。・・・・」
以上によれば、新長谷寺の西に薬師の道があり、薬師の道は今の静岡中学(現高校)に通ずる道であり、国分寺薬師の参道と考えられ、であるならば、新長谷寺は国分寺(泉動院)の境内の東半を割いたものと考えられる。即ち薬師の道は新長谷寺と泉動院との間の南北に通じる道である。この道延長線に金堂などを想定するならば、静岡中学の敷地も創建国分寺の境内であったと考えられる。
なお泉動院は国分寺の一院とも思われる。(「山科宮継卿日記」の弘治2年(1556)12月8日の条では「報土寺、浅間常光院之庭、国分寺之内仙憧院の座敷、同庭等一身見物了」
 またこの地に何等の遺物遺構を残さないのは家康の駿府城築城で礎石等は運ばれたためと云う論者もいる。
今城址内日赤静岡支部の庭先にある手水鉢は6尺7寸×4尺5寸×2尺2寸5分の大きさで、表面に径1尺5寸深さ6寸5分〜8寸の円孔を穿つ。塔心礎と考えられるが、国分寺の心礎と考えられなくはない。
 赤十字病院所在心礎・・・・・ → 駿河長谷寺心礎(伝駿河国分寺心礎)を参照。
 大谷地区の片山の廃寺は2つの礎石群・古瓦を残す。奈良期の寺院址であることは確かであろう。南方の礎石群には大規模な7間四面の堂が想定される。北方の礎石群は講堂が想定される。
2009/09/26追加:
竜池山泉動院国分寺(廃寺):かっては安東(静岡中学付近・現長谷町など)にあった。近世末に廃寺、音羽山清水寺に合併と思われる。
音羽山清水寺に「新長谷寺堺地文書」などの古文書は移され、現存する。
なお、初瀬山長谷寺は明治11年に廃寺となると云う。
2020/03/07撮影:
現国分寺の経緯が少々分かり難いが、現在の国分寺(泉動院跡)を中心として、国分寺を称していた寺院(泉動院)があった。
その泉動院(千灯院/仙憧院)は国分寺の一院と考えられ、駿河国分寺の後継と考えられる。
中世、長谷寺(新長谷寺)がおそらく創建され、その寺地は泉動院の東半分を割いたものであったと推定される。
近世末、竜池山泉動院国分寺は廃寺とり、音羽山清水寺に合併する。
明治11年初瀬山長谷寺(新長谷寺)が廃寺となる。
そして、時期不詳であるが、現在の竜池山国分寺が再興されたのであろう。
 なお、次のようなことも伝えられる。(史料は不明)
永禄11年(1568)今川氏が武田信玄に滅ばされたとき、泉動院も兵火に遭って焼失する。本尊丈六薬師如来銅像は潰され、頭部だけが池の中に投棄される。後日その頭部を拾い、本尊とした僧覚雄がいた。これを知った家康は、慶長15年(1610)国分寺を再興させ、覚雄を浅間社の社僧とする。 近世末、この国分寺は廃寺となり、清水寺と合併したことで、薬師如来の頭部は清水寺にあるという。
近世の繪圖
 駿府城下町絵図・全図:年代不詳、年紀は不明。
  駿府城下町絵図・部分図:御城の北方に「国分寺薬師」「長谷寺観音」が描かれる。
 駿府名勝一覧之図・全図:江戸・大和屋喜兵衛、江戸後期:この全図は久能山東照宮のページに掲載した図である。
  駿府名勝一覧之図・部分図:駿府城の北方に「真 国分寺ヤクシ」「真 長谷寺」が描かれる。
 「駿府并近郊図」慶応4年/明治元年(1868)発行
  駿府并近郊図・部分図:御城の北方に「国分寺・薬師」「真言宗長谷寺」が描かれる。
現駿河国分寺
 現駿河国分寺     石塔・石仏類その1     石塔・石仏類その2
 現駿河国分寺聖天堂:聖天堂の扁額を掲げる堂が本堂に付属する。

 伝駿河国分寺心礎(長谷寺心礎)

    → 駿河長谷寺心礎(伝駿河国分寺心礎):菩提樹院に所在する。

 駿河片山廃寺
 昭和23年第1次調査、昭和31年第2次調査により、金堂・講堂・僧房跡が確認される。
その結果、寺域の大きさや建物規模は国分寺に相応しいことや出土瓦などから時代は奈良期の創建とされ、この廃寺は駿河国分寺とする見解も出されるが、塔跡が発見されておらず、国分寺跡とするには至らなかった。
ところが、平成21年(2009)の調査で塔跡と推定される版築が見つかり、国分寺とする見解が大勢となる。
2009/09/26追加:
 片山廃寺(史蹟): 昭和5年大沢和夫(静岡高校教諭)が遺跡廻りで生徒を引率、付近の店の井土端で布目瓦を拾う。付近の畑で規則性を持つ礎石を発見したことで世に出る。
昭和23年から数次の発掘が行われ、金堂(100尺×56尺)、講堂(82尺×52尺)、僧坊(232尺×30尺)、南大門〈36尺×18尺)の規模及び回廊等の存在が判明した。
昭和41年東名高速道の建設で、発掘調査を実施、史蹟公園となる。
なお、塔址および塔関連の遺物は発掘されず、このことが当廃寺を国分寺址とし得ない最大の弱点であろう。
2020/04/27追加:
○「片山廃寺跡リーフレット」静岡市 より
 駿河片山廃寺跡     駿河片山廃寺塔跡堀込地業版築
2020/04/27追加:
○「国指定史跡片山廃寺跡確認調査報告書」大川敬夫(静岡市内遺跡群発掘調査報告書(平成20年度) 所収) より
片山廃寺跡全体図
2020/04/27追加:
○「静岡市内遺跡群発掘調査報告書 平成20年度」、平成21年(2009)3月 では次のように云うという。・・・未見・・・
 白山権現に接した南の地(駿河区大谷895−1)でアパート建設が計画され、平成20年11月に発掘調査が行われる。
その結果、建物の掘込地業が発見され、その大きさは南北16.5m(東西は西側が調査区域外のため不明)を測る。
因みに、この大きさは三河国分寺塔跡の16.8mにほぼ一致するという。
地業は片山廃寺跡の生活面(表土下77cm前後)から掘り込まれ、その地業の方向も確認された金堂・講堂・僧房跡と一致し、そしてこの出土場所は金堂等の東南に位置する。
 つまり、以上のことから、出土した掘込地業は塔跡であることが極めて高くなったと云える。
2020/04/27追加:
○「史跡片山廃寺跡発掘調査報告書(主要遺構調査編)」静岡市教育委員会、2016(平成28年) では次のように云う。
 塔跡:
掘込地業跡のみ確認する。
昭和5年の聞き取り調査で白山神社南側に礎石存在とあり、当時は礎石・基壇ともに残存していた可能性がある。
現在白山神社中にある礎石は塔から移動されたものがあるとみられる。
地業規模は16.5×16.5mほどか。
東・北辺では掘込地業のすぐ外側に接する形で溝状の掘り込みがあり、これは木製基壇外装の据付痕の可能性がある。
これにより、基壇規模も16.5×16.5m程度と想定できる
 金堂跡:
建物規模は5間四面(桁行7間梁間4間)と確認、30.9×17.0mである。
 桁行柱間(m)は廂3.64+身舎(4.55+4.55+5.45+4.55+4.5)+廂3.64、梁行柱間(m)は廂3.64+身舎(4.85+4.85)廂3.64
東妻中央間は礫混じりの瓦列が基壇土を掘り込んで据えられる。壁持ちの地覆か地覆座とみられる。瓦列には割れ瓦が利用され、創建時のものではない可能性がある。
礎石は自然石で、大小2種類あり。1例のみ荒削りの柱座を造り出すものある。基壇外装は乱石積基壇である。
 講堂跡:
建物規模は5間四面(桁行7間梁間4間)と確認、25.5×15.8mである。
 基壇上面にはタタキを施す。全面より焼土検出。壁体、炭化木材など、火災痕跡がある。
中央に10.9×4.2m残存高20cmの須弥壇あり。外縁に径25cmの平石を4尺間隔で配し、これを束石とした木製外装を伴っていたとみられる。須弥壇南側では大理石製の塼あり。須弥壇上は塼敷きと思われる。
礎石は自然石だが1石のみ円形柱座を造り出すものある。
 僧房:
建物規模は間口23間(68.2m:推定)、奥行3間(9.1m)と推定される。
 駿河片山廃寺伽藍配置想定図     駿河片山廃寺金堂跡平・断面図     駿河片山廃寺講堂跡平・断面図
 駿河片山廃寺推定塔跡発掘図
2020/03/06撮影:
○静岡市埋蔵文化財センター展示を撮影。
 推定塔跡出土前伽藍想定図:塔跡が不明であった以前の伽藍想定図
 推定塔跡出土後伽藍配置図:塔と推定される遺構の出土後の伽藍想定図
 片山廃寺出土軒丸瓦その1     片山廃寺出土軒丸瓦その2     片山廃寺出土軒平瓦
 片山廃寺出土鬼瓦     片山廃寺出土磚:大理石と瓦
2020/03/07撮影:
上述のように「昭和5年の聞き取り調査で白山神社南側に礎石存在とあり、当時は礎石・基壇ともに残存していた可能性がある。」ということであるが、現状は更地のままで何も地上には残らない。残念なことである。
 駿河片山廃寺推定塔跡1     駿河片山廃寺推定塔跡2
さらに、「現在白山神社中にある礎石は塔から移動されたものがあるとみられる。」ということであるが、白山権現には多くの石があるが、どれが塔から移されたかは判然とはしない。
 白山権現社殿:写真中央、向かって右端奥に草地があるが、それが推定塔跡である。
 石碑と石の集積:石碑の台石は礎石の可能性はある。もし塔の基壇外装が金堂と同様な乱石積基壇であれば、集積された石は塔基壇の外装であった可能性はあるだろう。
 石碑の台石:法量は150×90cmの平面で高さ40cm、砂岩、表面は平に削平され、塔などの礎石であった可能性はあるだろう。
白山権現手水石:一番の大石である。現在穿孔されている面が上面とすると、長径は180cmほどあり、やや小ぶりではあるが、心礎であった可能性はあると思われるが、上面に対して垂直ではない角度の孔が穿たれていて、もし心礎であったとしても、孔や出枘の形態は全く分からない状態である。観察した感じでは、心礎ではなく、大きな自然石に斜め方向に孔を穿っただけの手水石である可能性が高いと思われる。
 白山権現手水石1     白山権現手水石2     白山権現手水石3     白山権現手水石4     白山権現手水石5
白山権現
○「現地説明板」 より
白山神社、祭神はイザナミである。
創建の年代は不詳、延宝6年(1678)の棟札には白山妙理大権現の名が見え、浄光院の鎮守であったといわれる。
 ※要するに、国家神道は祭神を取り替え、権現の社号を神社に改称という暴挙をやったと告白をしているだけである。
 駿河片山廃寺金堂跡1     駿河片山廃寺金堂跡2     駿河片山廃寺金堂跡3     駿河片山廃寺金堂跡4
 駿河片山廃寺金堂跡5     駿河片山廃寺金堂跡6     駿河片山廃寺金堂跡7     駿河片山廃寺金堂跡8
 駿河片山廃寺金堂跡9     駿河片山廃寺金堂跡10:金堂西端部
 駿河片山廃寺講堂跡1     駿河片山廃寺講堂跡2     駿河片山廃寺講堂跡3     駿河片山廃寺講堂跡4
 駿河片山廃寺講堂跡5     駿河片山廃寺講堂跡6
 駿河片山廃寺僧坊跡1     駿河片山廃寺僧坊跡2     駿河片山廃寺僧坊跡3

遠江国分寺跡(特別史跡)

2002/01/05撮影:

 磐田市の市街地にありながら、早くから発掘調査が行われ(昭和26年に発掘調査)、公園として整備される。
伽藍配置:南大門・中門・金堂・講堂が直線に配置。塔は回廊外、すぐ西脇にあり、中門から1/3、金堂から2/3の位置にある。
寺院は平安中期までは存在していたとされ、その後も、規模を縮小して再建されつつ維持されたが、明治に無住となる。
現在は明治維新後の薬師堂だけが残る。
塔跡:土壇と心礎と1ヶの隅柱礎石(東南・自然石)を残す。心礎は2.1m×1,8mで、径約1.7mの柱座があり、中央は枘穴らしき窪みがある。基壇は15m四方とされる。
 遠江国分寺跡心礎1     遠江国分寺跡心礎2     遠江国分寺跡心礎3
 遠江国分寺跡土壇1     遠江国分寺跡土壇2     遠江国分寺薬師堂
  ※以下に掲る文献によると、心礎の中央の凹みは、枘穴や孔ではなくて、本来は凸形(出枘)であったと推定される。
磐田市役所に国分寺復元模型がある。
◆市役所内展示復元模型:100分の1の模型
 遠江国分寺塔模型1−1     遠江国分寺塔模型1−2     遠江国分寺塔模型1−3
さらに、JR磐田駅1Fに塔模型の展示がある。
◆復元模型2(JR磐田駅展示模型):おそらく30分の1くらいの模型と思われる。本格的造作の木造模型:ガラスケース入り。
七重塔は66mと推定されているので、2mを超える模型と思われる。
 遠江国分寺塔模型2−1     遠江国分寺塔模型2−2
  (JR磐田駅展示遠江国分寺塔復元模型。磐田青年会議所?寄贈静岡市宮崎金太郎氏となっている。)
 遠江国分寺塔 模型2−3:2004/03/07撮影「X」氏ご提供画像

2006/11/03追加:
○「各地の国分寺」 より
 塔基壇一辺は52尺(15.6m)、塔一辺は32尺(9.6m)、心礎及び東南の礎石が残存。
 遠江国分寺伽藍概要図

2009/01/05追加:
○「遠江國分寺伽伽藍復原考」黒田f義(「建築學會論文集 (19)」昭和15年<1940> 所収) より
 遠江国分寺跡は見付町付近にある。この地は遠江の国府の地であり近世は東海道見付宿であった。
近世、遠江国分寺は中泉代官中野七蔵によって再興される。
 ※中野七蔵は元和5年(1619)着任、寛永元年(1628)逝去とされる。この間に伽藍の復興が成ったものと思われる。
近世の国分寺概要は、「遠江風土記伝」(寛政元年刊)では朱印高12国余、「寛政10年書上帳」では朱印高12石余、境内は東西100間・南北13間(1130坪)、薬師堂・愛染堂・閻魔堂・寺(本堂あるいは庫裏か)・表門などを具備すると云う寺観であった。
 遠江国分寺位置図:見付宿南・中泉町北に位置する。
  ※この地図には光明電気鉄道線が描かれている。
  光明電気鉄道:東海道本線中泉駅(現・磐田駅、磐田郡中泉町、現・磐田市中泉)に隣接する新中泉駅から、
  磐田郡二俣町(現・浜松市天竜区二俣町)の二俣町駅までを結ぶ19.8kmを営業。
  磐田郡光明村(現・浜松市天竜区)船明(ふなぎら)まで開業させることを目的とする。
  昭和3年開業、昭和5年全線開業昭和10年破産・休止、同11年廃止というから、僅か6年の営業であった。
 江戸期景観推定図:愛染・閻魔堂は推定、薬師堂は現位置に想定。
その後安政の地震で薬師堂・愛染堂は倒壊、明治初年には全く廃滅と云う。
明治5年薬師堂(小宇)が再建、その後廃滅、大正10年今の粗末な薬師堂が再建される。現在は無住。
現在国分寺跡には3つの建築遺址を残す。即ち薬師堂のある土壇(西北には4個の礎石・西南隅には如法経石塔を存す)、その西南の雑木林に2個の礎石(これは塔跡であろう)、西辺には南北に連なる土壇(これは回廊跡か)である。
 遠江国分寺寺域実測図     遠江国分寺寺域全景:写真上のA.B.Cの記号は国分寺寺域実測図(左図)の記号に対応する。
さて「歴史地理 第30巻第2号」では柴田常恵が以下を報告していると云う。
  
2009/05/06追加:【憶測遠江国分寺東塔心礎】を参照
 「中泉町川出武平治氏宅には寺址より運べし、長さ6尺5寸(1.97m)、幅4尺(1.2m)、厚さ2尺(60cm)ほどの自然石にて其の中央に径2尺5寸(76cm)にして深さ8分(2.4cm)に掘り凹め、さらに其中央の部が径8寸(24cm)にして深さ1寸(3cm)に掘れるものあり、手水鉢として使用されり」
この川出氏宅の礎石は塔の心礎であることは容易に察せられる。

 東塔心礎推定図:上掲載の柴田氏報告に基づく。
 遠江伽藍復原図
  ※この復元図では、東塔が想定されているが、現状では、東塔跡は未発見のままであり、東塔の建立は疑わしい。
   →2009/05/06:柴田氏報告(「歴史地理 第30巻第2号」)の全文は下に掲載。
  ※この礎石は川出氏より他に譲られ、今は所在が不明である。
  ※また「遺瓦の残乱せる間に、柱の部は2寸の高さに円形に高められ、其中央に径1寸2分(3.6cm)深さ1寸(3cm)の
  凹みを造れるものあり」と柴田が目撃した礎石も既にない。
  ・・・・・(これは塔跡にはこの礎石もあったが、昭和15年当時既に亡失と云う意味か?)
西塔跡:
雑木林の礎石は巨大な円柱座を有し、心礎であると考えられる。
以上のように川出氏宅の心礎と塔跡にある心礎の2個の存在が知られ、当国分寺は東西2塔を有したものと思われる。
西塔の復元:西塔跡には2個の礎石があり、1個は心礎で、あとの1個は東南隅柱礎と考えられる。共に火痕を残す。また原位置を保つと思われる。心礎は凸式であるが、出枘は欠失。隅柱礎は損傷が激しく、僅かに円柱座の概形が残り、出枘の位置が察せられる状態である。この2個の礎石間は22.35尺であり、この値から塔一辺を計算すると31.57尺(=22.35尺×√2)となろう。 ※31.57尺は9.57m。
 西塔心礎実測図:柱座は54.5寸(165cm)・高さ2.5寸(7.6cm)、出枘の径は18寸(54.5cm)。
金堂址の残存礎石4個は近世のものと推定される。従って金堂建物の大きさは礎石からの推定はできない。
なお薬師堂前手水鉢も転用礎石と思われるが、これも形状から近世の礎石であろう。
 →2022/11/29追加:この薬師堂前手水石は磐田市教育委員会から塔の四天柱礎と断定される。
 下に掲載の2022/11/30追加:◆【塔四天柱礎と判明】 を参照。

○「遠江國分寺の伽藍規模に就いて」太田静六(「日本建築學會研究報告 No.8」昭和25年<1950> 所収) より
 今、不完全ながら3基の土壇跡を窺うことができる。これ等より凡その伽藍跡の概観を知ることが可能。
 遠江国分寺跡概要
塔婆跡は2個の礎石を残し、その内1個は心礎である。残りの東南隅礎石と心礎から塔婆平面一辺を推定すると31.6尺となろう。
心礎の形式は直径5尺4寸(164cm)・高さ2寸5分(7.6cm)程の円形柱座の中央に、更に直径1.8尺(54.5cm)・高さ1寸(3cm)程の枘を造りだしている。
なお柴田常恵氏の大正6年の調査によれば、中泉町川出氏邸の手水鉢が心礎であると推定される。
 
2009/05/06追加:【憶測遠江国分寺東塔心礎】を参照
その形状は6.5尺×4尺ほどで、その中央に径2.5尺・深さ8分ほどの淺い穴を設けたる上、径8寸・深さ1寸ほどの穴を穿ちたるものであると云う。実見はしていないが、おそらく心礎であろう。もしこれが国分寺から運んだものとすれば、それは当然東塔の心礎であろう。

しかし、もし発掘調査で東塔の跡が検出できないとすれば、当然東塔の造営はなく、この石が心礎であることは疑わしいものとなるであろう。
 ※ほとんどの国分寺の塔は1基であり、2基が建立されたのは上総と丹波(丹の字は推定・良く分からない)國分寺の2寺しか知られない。
 ※但し、上総も丹波も塔は1基しか知られていない。
 遠江国分寺復原図
  ※この復元図では、東塔が想定されているが、現状では、東塔跡は未発見のままであり、東塔の建立は疑わしい。
○磐田市観光協会のサイト:「遠江国分寺跡」の項 より
金堂基壇規模:34×21.5m・高さ0.9m、建物は7×4間(27.6×15.6m)、中央に石階。
講堂基壇規模:29.7×18.5mで、建物規模は不明。
塔基壇規模:一辺15.8m、心礎と東南隅側柱礎を残す。建物は一辺9.6m。
寺域は、近年の発掘により昭和26年の発掘当時の想定範囲より広いと判明し、現在寺域は南北253m東西180mと推定されている。
また従来回廊とされた西の土塁は築地塀と推定される。
 遠江国分寺CG復原画像     七重塔推定復原図     遠江国分寺塔心礎     遠江国分寺金堂石階

○「遠江国分寺の研究」石田茂作、昭和37年 より
 遠江国分寺心礎写真     遠江国分寺心礎測図     遠江国分寺塔址平面測図


○「平成18年度金堂跡発掘調査 現地説明会資料」 より
金堂跡からは火災の痕跡が多く出土、「類聚国史」で云う「弘仁10年(819)8月遠江国分寺が火災」を裏付けるものと判断された。
金堂基壇は、版築で構築される。また、基壇の西・北・南の縁から炭化した板材が検出され、少なくとも最終時期の基壇化粧は、基壇の縁が板で囲まれた「木製基壇」(「木造基壇)であることが判明。
 ※「木製基壇」の類例;三河国分寺塔跡、遠江国分尼寺金堂・講堂がある。

2022/11/30追加:
○「静岡県埋蔵文化財研究所調査報告 第65集 遠江国分寺跡の調査 ー平成6年度県立磐田南高等学校埋蔵文化財調査ー」静岡県埋蔵文化財調査研究所、1995 より
 昭和26年に、石田茂作民らを中心に実施された第1次調査で、塔・金堂・講堂・回廊・中門・南大門・土塁などの伽藍配置が確認され、その伽藍地は100間(180m)四方と推定された。
本報告書は昭和26年の第1次調査から平成6年度第111次調査までの発掘調査成果等を集成しその成果をとりまとめたものである。
 第1次調査等により調査された主要伽藍の概要は、石田茂作『遠江国分寺の研究』1962、また、斎藤忠「特別史跡 遠江国分寺跡」静岡県史 資料編 考古二』1990年に詳しい。
よって、要点を引用する。
 主要遺構
第1次調査で調査対象となったのは金堂・塔・講堂・中門・廻廊・南大門・土塁である。
講堂・金堂・中門・南大門が南北の主軸線上に配置され、金堂と中門を回廊でつなぐ。
塔は西側に1基ある。
 金堂跡
基壇は112尺(33.9m)×71尺(21.5m)×3尺(0.3m)と確認される。南縁正面の中央に石階がある。
礎石は原位置を動くも、4個ほど確認、根固めの栗石によって7間×4間の建物と確認。東西約27.9m(10尺+14尺+14尺+16尺+14尺+14尺+10尺)×南北約15.79cm(10尺+16尺+16尺+10尺)
 塔跡
伽藍中軸線より西へ28間(168尺/約50m)の所に心礎が存在する。
一辺50尺(15.15m)の基壇が確認され、心礎と東南隅の側柱礎が残存する。調査で根石が一カ所検出される。
心礎は7尺(2.12m)×6尺(1.8m)の不整形を呈するもので、上面に径5尺6寸(1.7m)高さ約3寸(9cm)の円形柱座を造り出し、柱座の中央に径1尺7寸(51.5cm)ぐらいの円形の出枘が造り出されている。所謂出枘式心礎である。塔一辺は32尺(9.7m)四方(10尺+12尺+10尺)で高さ224尺(約68m)の七重塔であったと推定される。
(講堂跡・中門跡・回廊・南大門跡・土塁跡は省略)
 ※現状は平成7年(1995)、第1次調査が昭和26年(1951)を示す。
 遠江国分寺塔跡現状     遠江国分寺心礎現状     遠江国分寺復元図
 第1次調査塔跡実測図     第1次調査心礎実測図     第1次調査心礎写真
 遠江国分寺七重塔復元図:(株)大林組とある。
○「寺院地と伽藍配置の復元」大脇潔(上記「静岡県埋蔵文化財研究所調査報告 第65集 遠江国分寺跡の調査」の「第X章 考察」に所収)
 『類緊国史』巻173災異部7によると、遠江国分僧寺は、完成からおよそ半世紀後の弘仁10年(819)8月29日に焼失したという。当寺に関する数少ない史料であるが、その後の沿革は、史料もなく詳細にしがたい。
しかし、大永2年(1522)銘を刻む鰐口によって薬師堂がこの頃あったことや、寛政2年(1790)に寺が寺社奉行に差しだした古図(第42図)によれば、本堂址・仮本堂・愛染堂・地蔵堂・庫裡・大黒堂・閣魔堂などの存在がわかり、法燈が伝えられていたことがうかがわれる。この古図には東海道に画して東に門を開く境内(古図には「庭」として色わけ)と、その南から西にかけてL字状に折れ曲がる「土居」に囲まれた「墓所」と「畑」が措かれており、この一郭も当時なお寺領であったことが確かめられる。なお、図の書き込みによれば、南側の土居は長さ96間(約174m)、高さ4尺(1.2m)、西側の土居は長さ78間(約142m)の規模があったことが知られる。
 寛政2年遠江国分寺繪圖     寛政2年遠江国分寺繪圖:文字入れ

2009/05/06追加:
【憶測遠江国分寺東塔心礎】
○柴田常恵報告「遠江国分寺心礎」(「歴史地理 第30巻第2号」昭和3年 所収)
本論文にて、柴田は国分寺東塔の心礎なるものを報告する。
ただ、形状は心礎と思われるも、国分寺心礎とするには礎石の大きさがやや小さいと思われる。
しかし何れにしろ、亡失ということであり、詳細は不詳。
○「遠江国分寺の礎石」柴田(「歴史地理 第30巻第2号」昭和3年 所収)
  この記事の署名は(柴田)と姓のみ記す。記事全文は以下であり、極めて短いものである。
「遠江の国分寺は今の磐田郡見付に在りしものにて、中泉町に近接せる字堺町に其遺跡を存し、遺瓦の散乱せる間に大方は取去られしも、尚礎石の横たわるあり。
柱の部は2寸の高さに円形に高められ、其中央に径1寸2分、深さ1寸の凹みを造れるものありしが、別に中泉町なる川出武平治氏宅には寺址より運びしものなりとて、長さ6尺5寸(1.97m)、幅4尺(1.2m)、厚さ2尺(60cm)ほどの自然石にて其の中央に径2尺5寸(76cm)にして深さ8分(2.4cm)に掘り凹め、さらに其中央の部が径8寸(24cm)にして深さ1寸(3cm)に掘れるものあり、手水鉢として使用されしを見たり。其のち川出氏は之を他に譲れしとの事なれば、今は此礎石何処にあるやしらざれど、伊豆国分寺の礎石が三島町に小松宮の御別邸造営の折、町民より献納する所と為り、後ち宮家にては東京浅草なる橋場の御邸内に移されし由を拝聞する如きことあれば、礎石の如き重量の大なるものにても、古来意外の地に移さるること少からざるべし。(柴田)」

2022/11/30追加:
【塔四天柱礎と判明】
○2022.11.10「静岡新聞>「磐田「遠江国分寺の塔」で新発見 隣接寺手水鉢は四天柱の礎石」
 国指定特別史跡「遠江国分寺跡」に隣接する参慶山国分寺(同市見付)の境内にある「手水鉢」が、遠江国分寺の塔の四天柱に使われた礎石だったことが市教委文化財課の調査で判明する。
手水鉢を塔四天柱礎と断定した根拠は次の通り。
手水鉢の石とほかの礎石の大きさがほぼ同じで岩質が共通していることに加え、側柱の礎石にはない柱の固定用の丸いくぼみが確認されたことから、四天柱の礎石と断定した。
手水鉢は元々、遠江国分寺の礎石だったとの言い伝えがあるが、どのような経緯で手水鉢に転用されたかは定かではないという。
市教委は、建築物の土台部分を囲っていた木装基壇の復元など、遠江国分寺跡の再整備を進めている。
 遠江国分寺塔四天柱礎1
○2022年11月11日磐田市文化財課のプレスリリース
 現在の国分寺に「手水鉢」として置かれている石が、奈良時代に建てられた遠江国分寺の塔の四天柱に使われた礎石であることが分かる。
 江国分寺塔四天柱礎2
市教育委員会文化財課の調査によると、この手水鉢は、遠江国分寺の礎石だという言い伝えがあり、発掘調査の成果もあわせて検討し、礎石が塔に使われた岩石と岩質と大きさが同じであること、手水鉢の上面に丸いくぼみがあり、側柱にはない内部の柱を据えた穴と考えられ、塔の四天柱の礎石と判断する。
 図式平面図     遠江国分寺復元CG
※本「手水鉢」の法量は不明。
※「柱の固定用の丸いくぼみ」もしくは「内部の柱を据えた穴」とは柱穴のことと思われるが、報道の写真・リリースされた写真ではその「柱穴」は明瞭ではない。
市教委文化財課に確認すると、写真では明瞭には分からないが、現物を見て貰えれば、「柱穴」の痕跡を観察することができるとの説明であった。

三河国分寺跡(史蹟)

塔跡の礎石が露出し、古くからその所在が知られていたと云う。昭和60年以降発掘調査が続けられる。
その結果寺域は約180m四方で築地で囲まれていたと判明、伽藍は南北方向に門・金堂・講堂並び、その西方に塔が配置されている配置であった。また、回廊は金堂に取り付くこと、塔は一辺 56尺の基壇とその外を飾る木造基壇があることが確認された。
平安期末には概ね荒廃したと推定される。
なお、東北400mには三河国分尼寺跡(現在、発見されている国分尼寺の中では最大のものといわれる)がある。現在は中世の再興になる曹洞宗国府山国分寺と国分尼寺の跡地には曹洞宗祗園山清光寺がある。
 三河国分寺塔跡  三河国分寺塔跡礎石?
2008/08/30追加:柴田常恵写真資料:大正12年撮影
 三河国分寺塔跡?  三河国分寺塔跡礎石?
2007/12/14追加:
「奈良朝以前寺院址の研究」たなかしげひさ、白川書院, 1978.8 より
昭和12年の現状:塔跡は本堂の西南方にあり。菱形の四天柱礎2基がある。1基は2.55×1.27×0.67m、もう1基は2.18×1.52m(高さ不明)で、土壇中央に心礎の抜取り穴が残る。抜取り穴は東西2.73m南北2.42m。土壇は崩れ、基壇一辺は不明。
2009/09/26追加:
「国分寺址之研究」堀井三友、堀井三友遺著刊行委員会編、昭和31年 より
現国分寺は本堂(薬師如来)・庫裏・鐘楼がある。塔址の土壇を残す。その土壇上南の隅に礎石1個原のままあり、塔心礎と思われる。
大きさは8尺3寸×4尺7寸で、発掘し動かされた痕が見られる。また東列の南から2番目の側礎が残存する。この礎石と心礎の距離から、塔一辺は30尺と推定される。
 三河国分寺塔址南隅礎石

尾張国分寺跡(平成23年史跡指定)

尾張国分寺跡は今も、下記掲載の江戸期(尾張名所図会)の様相を色濃く残す環境にある。
もっとも、現状は江戸期のような荒地ではなくて、植木畑に変ってはいるが、辛うじて、茫洋たる環境の中に礎石だけが残されている。
現状塔跡には心礎と礎石2個が残存する。
心礎の実測値:大きさは185×160cm、出枘径35cmで微かに凸が残る。出枘は近年に欠失したものと思われる。
 ※他に2個残る礎石には出枘は無いと思われ、この礎石には出枘があることまた大きさから判断してこの礎石が心礎と思われる。
附近からは耕作で大量の布目瓦の出土を見ると云う。
現在までに、塔と金堂と推定される遺構が確認され、塔跡では心礎と3個の礎石が発見されたという。また尾張国分寺は創建後まもなく水害で壊れたとも伝えられる。
2005/2/20撮影:
 尾張国分寺心礎1   同      2   同      3   同      4   同      5
  同     礎石:この写真礎石は2個残る礎石 で、左の奥の礎石は心礎。
尾張名所図会 後編巻之2より
記事:「 矢合村にありて、今も礎石残り、古瓦多く地中に埋れ、薄など生い茂りて、その古跡を存せり。・・・」
  尾張国分寺跡
「幻の塔を求めて西東」:心礎は出枘式、180×150cmで、出枘径36cmで突起は欠失。
  尾張国分寺心礎:「佛教考古学論攷」
2008/08/30追加:柴田常恵写真資料:大正末期から昭和初期の撮影
  尾張国分寺塔跡礎石1  尾張国分寺塔跡礎石2

美濃国分寺跡(史蹟)

○現在は史跡公園として整備される。・・・・・・・・・・・・    図       1     図        2
 美濃国分寺七重塔模型(大垣市歴史民俗資料館)
○2008/08/30追加:柴田常恵写真資料:大正9年撮影
 美濃国分寺心礎1     美濃国分寺心礎2     美濃国分寺塔土壇     美濃国分寺境内ニ存スル同寺阯ヨリ発見ノ石製品
○2006/10/08「岐阜県史」、「美濃国分寺ものがたり」
 美濃国分寺附近水田地割図:「岐阜県史」より、区画整理事業前地割図
 美濃国分寺塔土壇:「岐阜県史」より
大正5年より水田区画整理事業が実施される。
 整備前美濃国分寺跡:「美濃国分寺ものがたり」大垣市教育委員会、昭和57年
 美濃国分寺伽藍配置図:同上
 美濃国分寺塼積基壇1     美濃国分寺塼積基壇2     美濃国分寺塼積基壇3:同上
2016/07/15追加:
○「幻の塔を求めて西東」
心礎は出枘式、大きさは220×170cm、出枘の径60cm高さ13cm、出枘の周りに方行の刳り込み一辺 長150×深さ2/2.5cmがある。
2006/10/08撮影・追加:
○「各地の国分寺 史蹟の整備とその現状」大垣市歴史民俗資料館、昭和58年 などより
・伽藍配置は、南から南門、中門と塼積基壇建物 が南北中心線上に配置され、廻廊は中門から塼積基壇(金堂)に取り付く。芯芯間で廻廊東西幅は120.6m、南北92m、廻廊幅6m。
 美濃国分寺模型:大垣市歴史民俗資料館
※従来は塼積基壇建物が講堂、塔の西の建物が金堂と推定されたが、塔西建物は創建当初の建物ではなく、平安期のものとされ、塼積基壇建物の規模・威容から金堂と推定される。
・中門遺構は遺存状態が悪く全貌は不明。
・塔跡は良好に遺存。地覆石は川原石を並べる。基壇化粧は欠失するも、塼が多数出土し、塼積基壇と推定される。塔基壇は一辺19.2m、高さ1.2m、塔柱間は中央間・脇間とも3.6m。
基壇上には心礎を含め9個の礎石が原位置で残存。
心礎は2.1×1.9mの大きさで、径61×12cmの円形出枘を持つ。
  美濃国分寺心礎1    美濃国分寺心礎2    美濃国分寺心礎3    美濃国分寺心礎4
  美濃国分寺心礎5    美濃国分寺心礎6    美濃国分寺心礎7    美濃国分寺心礎8
   同 塔復元基壇     同 発掘中塔跡
   同 七重塔模型:大垣市歴史民俗資料館
・金堂は塼積基壇建物、基壇大きさは37.1×22.65m、高さ1.17m、建物規模は7間×4間と判明。礎石の一部が残存。
  美濃国分寺金堂復元基壇1    同            2
・廻廊東西に僧坊跡がある。塼積基壇後方に礎石建物1棟を検出、但しこの建物の時期・性格は不明。廻廊北西地点に鐘楼を検出、遺跡の残存状況は比較的良好 と云う。
・廻廊内建物は25.4×16.4mの大きさで、削平が著しく僅かに雨落溝のみを検出、瓦類は平安期のものが出土する。
  美濃国分寺廻廊内建物復元土壇
・土製露盤伏鉢:径54、高さ22.5cm、柱穴径8.5cm。
  美濃国分寺土製露盤伏鉢:大垣市歴史民俗資料館 (以前から出土していた模様、昭和12年重美に指定。)
・現国分寺は伽藍後方の丘の麓に再興され、近年隆盛の様子である。次の本尊を安置する。
  現美濃国分寺
・薬師如来坐像(本尊・平安前期・重文)欅の一本彫りと云う。像高3m超。
  美濃国分寺薬師如来
2016/07/15追加:
○「日本の美術 171 国分寺」至文堂、昭和55年 より
 美濃国分寺本尊薬師如来坐像:欅の一木彫成の巨像であるが、損傷が多い。頭部より体前面の中央部に当初の様相を留める。
○2009/09/14追加:
「国分寺址之研究」堀井三友、堀井三友遺著刊行委員会編、昭和31年 より
水田中に一辺約5間、高さ5尺の塔土壇がある。心礎は7尺5寸×6尺8寸で、径約2寸5分、高さ3〜4寸の枘を凸出する。土壇東南隅1個、東北隅1個、西北隅2個の礎石を残し、東南隅の礎石(7尺8寸×5尺5寸)は巨石で原位置を保つ。塔一辺は35尺6寸4分(天平尺で36尺)。
 美濃国分寺実測図:塔址礎石実測図ならびに心礎実測図
美濃代替国分寺(席田郡定額尼寺)・・・・・席田廃寺
「三代実録」には仁和3年(887)「美濃国司上言 国分寺災 梵宇仏殿 一時煨燼 席田郡定額尼寺 殿堂宏麗 令修御願 請為国分寺 許之」とあり、国分寺は火災、席田郡定額尼寺を国分寺と為すと云う。
席田郡席田村上石原(現本巣市石原)に八幡社があり、堂前・堂後の地名があり、堂後の北(法應山延命寺付近)に石原坊・多聞坊・祇園堂洞坊などの地名を残す。また奈良前期の古瓦の出土もあった。八幡社境内には付近から出土した礎石(3〜4尺×2尺3寸×1尺〜1尺5寸)がある。また大正3年北方円鏡寺楼門修理の折にも礎石が使用されたと云う。
この席田廃寺が「三代実録」の云う代替国分寺とすべきであろう。

飛騨国分寺

真言宗国分寺が現存する。
現三重塔のすぐ北に天平創建心礎(史蹟)が残る。大正時代に現在地へ移されたと云う。
心礎は2×2×1m、径133cm・高さ1cmの円柱座を持ち、中央に径58cm・深さ29cmの孔を穿つ。流紋岩製。
 飛騨国分寺心礎1       同        2      同        3      同        4
2009/11/11撮影:
 飛騨国分寺心礎11      同       12      同       13      同       14

 飛騨国分寺三重塔

伊賀国分寺跡(史蹟)

伊賀国分寺塔跡    同  塔跡(推定)  ・・・X氏ご提供画像
現在土壇跡を残す。礎石は近世上野城築城他に転用されたとされ、全部抜き取られ現存しない。
国分寺跡の現状は、野原の中に土壇が認められ、金堂跡・講堂跡・塔跡などの標が立てられ表示される。
塔跡は中門の西南方と東北方(こちらは塔跡の推定遺構)に2ヶ所ある 。「X」氏は、「発掘調査の結果、時期の異なる創建塔と再建塔の遺跡ということを期待して」いるとの所感であり、この点については、特に根拠があるわけではないが、同感する。
2002/10/21追加:
東西220m、南北240mの土塁状遺構に囲まれる。中門・金堂・講堂(後方付属建物あり)が南北の直線状に並ぶ。また廻廊は中門から金堂に取り付くと確認されたと思われる。塔は伽藍南西隅にあるとされる。また東廻廊の東方に推定塔跡が確認される。ただし礎石は全て抜き取られといると云い、何を根拠に塔跡とするのかは不明ではある。なお推定東塔跡の礎石らしき石が見えるが、これは近年のものと思われる。また推定塔跡の中央の窪(穴)の実態は不明。
 伊賀国分寺跡西塔跡1    同          2
  同     推定東塔跡1    同          2      同       伽藍跡      同        伽藍図
2009/09/14追加:
「国分寺址之研究」堀井三友、堀井三友遺著刊行委員会編、昭和31年 より
国分寺寺域は南北139間、東西117間半、周縁に幅約1間高さ3尺の堤塘がある。南の堤塘に約4間ほどの切れ間があるが門址であろう。
寺域に南西隅に方約4間高さ1尺の土壇があり礎石は無いが塔址であろう。南堤塘から北に24間の所に11間半×7間×7寸の土壇があり、礎石は無いが、中門址であろう。さらに北17間に13間×10間×7寸の土壇あり、礎石17個土中に埋没、7間四面の建物址であり金堂跡であろう。さらに北10間に15間×12間×7寸の土壇があり、40個の余る礎石を有する。蓋し講堂址か。
 伊賀国分寺址平面図

伊勢国分寺跡(史蹟)

 伊勢国分寺跡

志摩国分寺跡

江戸期の「志州答志郡国府国分寺古来之事」では礎石・塔跡の記載があるという。
現状、国分寺址は現国分寺内の山林のようで、発掘調査も未実施であり、詳細は不明。
2009/09/26追加:
「国分寺址之研究」堀井三友、堀井三友遺著刊行委員会編、昭和31年 より
現国分寺は山門、本堂、庫裏などを備え、本堂の下には礎石の大なるものがある。
「志州答志郡国府国分寺古来之事」:「往古は只今之寺後に野原御座候、是寺之旧跡にて礎等少々相残、大塔之跡杯も少は見へ申様に御座候。山王山、大門杯今に申ならはし候」
礎石、大塔の跡ともに今は見出されない。礎石は開墾の時破砕して石垣に積んだと云い、その石垣は今のこの地域に残る。

若狭国分寺跡(史蹟)

発掘された基壇から、南大門、中門、金堂、講堂が南北に配置され、東に塔を置く伽藍配置であることが判明する。
復元塔跡には心礎と云われる礎石が中央に置かれるも、心礎である確証は無いとされる。
塔の基壇一辺は約15m、初重一辺は約8mと推定される。塔跡では相輪の破片が30数個、発見される。
 (塔跡から発掘された金銅製の相輪の破片は、若狭歴史民俗資料館に保管される。)
堂塔はやや小規模であり、また瓦の出土を見ないことから、瓦葺ではない伽藍が建立されたと推定される。
なお、国分寺寺域内の塔の南西付近に径約50mの円墳(国分寺古墳・墳上には若狭姫神を祀る社がある)が取り込まれている。
蓋し、古墳が寺院造成にあたり削平されずに残されるには稀有のことなのであろう。
 現在の国分寺は、宝永2年(1705年)に再建され、釈迦堂西隣の薬師堂に本尊薬師如来坐像(鎌倉・重文) 、釈迦如来、阿弥陀如来の3如来が客仏として祀られ、それぞれは別の寺の本尊であったという。特に薬師如来は、もとは国分寺の近くにあった国分尼寺の本尊であったと伝える。(※像の膝前の内側に墨書があり、元禄6年(1693)尼寺庵住職玄心により、この像が尼寺庵の本尊として祀られたという。)
 金堂跡には釈迦堂<慶長15年(1610)創建、宝永2年再建>が残り、かつての若狭国分寺の本尊釈迦如来坐像(鎌倉期の再刻・丈六 の仏であり、大仏と云われる)が安置される。
2009/09/14:追加:
○「国分寺址之研究」堀井三友、堀井三友遺著刊行委員会編、昭和31年 より
現在の庫裏の南、鎮守の裏の叢に1個の巨大な礎石がある。ここには以前には更に数個の巨大な礎石があり、中には幅5、6分深さ1分の溝を刻したものもあったといい、塔跡であろうと伝承する。
礎石の1個は今民家(居関氏)の庭にある。大きさは7尺4寸5分×5尺5寸5分で、中央に径3尺3寸5分高さ2寸7分の円柱座の上に、径約1尺1寸5分高さ1寸3分の円形繰出がある。
 なお、当地を旧国分寺址とすることには種々の異説がある。
異説の内の有力なものは若狭太興寺廃寺説である。ここには手水鉢に転用された礎石が残る。
2016/07/15追加:
○「幻の塔を求めて西東」
心礎は出枘式、大きさは170×120cm、出枘の径は32/34cm出枘は欠失し、2.5cmほど残る。損傷著しい。
 ※「国分寺址之研究」でいう民家の庭の礎石とは大きさ、円柱座の存在などで齟齬がある。(要研究)
2002/01/12撮影:
○塔跡などは史蹟として整備される。
 若狭国分寺跡心礎 1      同          2
  同       塔跡1       同         2       同     円墳(手前は南大門跡)
2010/04/06撮影:
 国分寺塔跡復元基壇1     国分寺塔跡復元基壇2     塔跡復元基壇/礎石
 国分寺塔跡復元礎石1     国分寺塔跡復元礎石2     若狭国分寺心礎11       若狭国分寺心礎12
 若狭国分寺南大門跡     若狭国分寺中門跡     若狭国分寺釈迦堂        若狭国分寺金堂跡     若狭国分寺薬師堂
2007/12/26追加:
○「若狭の社寺建造物群と文化的景観」小浜市、2006 より
 若狭国分寺史跡図
2016/07/15追加:
○「日本の美術 171 国分寺」至文堂、昭和55年 より
 若狭国分寺塔跡:粘土・礫などで突き固めた遺構は良く遺存する。

近江国分寺跡:

諸説がある。そのうちの一説は以下の通り。
近江国分寺は紫香楽宮跡 (甲賀寺跡・甲可寺跡)に創建され、その後近江瀬田廃寺へ、さらに瀬田廃寺から近江国昌寺廃寺へと遷移した。
即ち、第1次近江国分寺は甲可寺、第2次近江国分寺は瀬田廃寺、第3次近江国分寺は国昌寺という見解である。
これは魅力的な説であり、当サイトではこの説を採用する。
 → 近江国分寺

山城国分寺跡(史蹟)

 → 山城国分寺跡

大和国分寺

 → 大和東大寺:総国分僧寺という。

しかし、東大寺とは別に大和国分寺は大和八木にあったという説があり、八木に大和国分寺が現存する。
 ↓
大和国分寺(大和八木)
勝満山と号す、現在は浄土宗。大和八木に所在する。
○Wikipedia では次のように云う。
「寺田一生録」(※不詳)でその存在を辿れるのは天正年間までである。
「大和志」(江戸期)では大和国国分寺を大和東大寺ではなく、この寺であると比定して以後、いずれを国分寺とするかについての議論がある。
実際に国分寺及びその周辺において古代に遡ることが可能な古瓦が出土されることや古代寺院の礎石と思われる石が残存していることから、全く根拠がない説とは言い難いが、今後の考古学的調査が必要とされるところである。
本尊の阿弥陀如来像および寺宝の十一面観音立像(重文)は平安期の作品という。
ただし、十一面観音立像は元は附近の延命院(補陀落山八木寺)のものであったという。
江戸期には高取藩の保護を受ける。本堂は宝暦11年(1761)建立であったが、2003年に焼失する(その後再建する)。
○2022/05/22撮影:
上記のように、本国分寺が東大寺とは別の「大和国分寺」として建立されたかどうかは不明である。
 大和国分寺入口路地     大和国分寺山門     大和国分寺山門前寺標
 大和国分寺本堂     大和国分寺境内     大和国分寺鐘楼     大和国分寺庫裏
 大和国分寺収蔵庫:十一面観音立像(重文)を安置

丹波国分寺跡(史蹟)

○「幻の塔を求めて西東」
心礎は出枘式、大きさは272×224cmで径45×3cmの出枘を持つ。
2008/01/17追加:
○「京都府史蹟勝地調査会報告 第1冊」京都府史蹟勝地調査会編、1919 より
 丹波国分寺礎石位置略図          丹波国分寺塔婆礎石配置図
 丹波国分寺塔婆礎石詳図:左の礎石Aは上の丹波国分寺塔婆礎石配置図のAに対応する。
 丹波国分寺堂礎石詳図:礎石のT、Uは各々上の丹波国分寺礎石位置略図のT、Uに対応する。
2003/11/10追加:
○「新修亀岡市史 本文編 第1巻」 より
1982年からの10次の発掘調査で、金堂跡・塔跡・講堂跡・中門跡・僧坊跡・鐘楼跡等を確認、また周囲を巾10mの空掘状遺構の発掘により寺域は約220mであることも確認された。
塔跡は17個の出枘式礎石が完存する。塔基壇は粗い版築で、瓦積で化粧し地覆部は2重の石列をなす。基壇が2重になっているのは創建時のものと平安末期の再建時のもの が重複して遺存するとされる。創建時の基壇一辺は15.6m、再建時は16.4mである。初重一辺は8.9mで中央間3.1m両脇間は各々2.9mを測る。
 丹波国分寺跡の遺構     丹波国分寺塔跡発掘図丹波国分寺塔跡発掘図2と同一の図)
金堂跡:創建時の瓦積基壇と平安末期の乱石積基壇が重複して発掘された。再建壇は19.6×15.4m、建物は根石から15.8×11.6m(5×4間)と推定、南面中央に巾9.5m、4段の階段を設ける。(基壇推定高は1,2m)。鎌倉後期に焼失。
講堂跡:江戸期の本堂と重複。基壇南面縁の延石列、地覆石列及び根石を検出。基壇規模は32.8×20.9m、建物規模は26.8×14.9(7×4間)と推定。
現国分寺:黒谷末、山門・本堂・鐘楼がある。安永3年(1774)〜9年にわたって護勇比丘によって再興。天正年中の明智光秀の進攻で焼亡するまで、室町期にも何らかの伽藍が存在したこと が諸記録に見える。
2013/10/26追加:
○「亀岡市文化財調査報告書 第16集 史跡丹波国分寺跡発掘調査」亀岡市教育委員会、1987 より
 丹波国分寺塔跡発掘図2:塔一辺は8.9m(中央間3.1m、両脇間2.9m 。(丹波国分寺塔婆礎石配置図と同一の図)
心礎は径1.3mの柱座を持ち、径50cmの枘を造り出す。
塔は修理あるいは再建が行われ、基壇は一辺16.4mのものと15.6mのものが遺存し、両石積とも2段目まで残る。いずれも自然石を用い、地覆にあたる最下段は縦積、二段目からは横積みである。また基壇は瓦積となり、内側が奈良時代、外側が平安時代末期のものと推定される。ただし、西縁部では石列は検出されず、抜き取り痕の外側には60cmの犬走り状のテラスがめぐり、その外側に幅40cmの素掘りの雨落ち溝が巡る。
2003/11/10追加:
○「第7回特別展 展示図録 国分寺」 より
近世の丹波国分寺について、「桑田記」江戸期編纂、未刊 では
「寺領3600石、塔頭35ヶ寺、5間四方の大塔の古跡礎の石17今に在、本堂9間に6間礎石あり、地蔵堂の跡、虹の堂の跡、十王堂の跡、各礎石在す。其余の礎石は天正乱後亀山の城に引と云。・・・」 と云う。
虹の堂とは尼寺の堂で国分尼寺の堂跡で、この記事が国分寺跡西方にあった国分尼寺跡も国分寺に含む認識で記述されているからと思われる。亀山城工事に転用されるまで、礎石は相当残存していた様子が覗える。
 丹波国分寺塔跡基壇全景  金堂跡基壇全景  金堂跡瓦積基壇  金堂跡乱石積基壇
○2005/12/28撮影:
 丹波国分寺心礎1      同       2      同       3      同       4       同       5
  心礎の出枘はかなり破壊され、径・高さ等は正確には計測不能。
 丹波国分寺塔跡:南西、築地壁外より撮影
  同   塔礎石1:北西より    同   塔礎石2:西より     同   塔礎石3:南西より     同   塔礎石4:北西より
  塔南脇柱礎石列:西より    塔西中央間(手前):手前より西中央間・四天柱礎・心礎・東中央間
  塔北脇柱礎石列:西より    塔西脇柱礎石列:南より撮影
 丹波国分寺跡全景:人家から離れた耕作地の中に荒涼たる寺跡を残す。左(西)金堂跡、中央山門、右(東)塔跡
  同  塔跡遠謀:南やや東寄りより撮影、堂宇は現本堂
  同 金堂跡遠望:南やや東寄りより撮影、背景手前堂宇は近年建設の収蔵庫、奥は庫裏と思われる。
  同  山門遠望:南より      同  山門・本堂       同    本堂:講堂跡に建つ
2022/12/11撮影;
 国分寺は中世に衰微するも、元禄年中(1688-1704)に再興される。
安永3年(17774)護勇比丘(※)によって本堂(入母屋造・妻入り・3間×3間、正面1間の唐破風造向拝が付設)が再建される。再建勧進は全国で行われるという。
山門・鐘楼も同時代の建築である。本尊木造薬師如来坐像は平安後期の作で重文、収蔵庫に収蔵と思われる。
なお、現在、環境整備事業が亀岡市によって実施されている。
 丹波国分寺整備案:亀岡市サイト より
※護勇比丘の墓碑は山門の南方竹藪中のある。(未見)
更に本史跡は「丹波国分寺跡 附 八幡神社跡」とあり、その説明に「尚東北ニ當リ其ノ鎮守社ト認メラルヽ八幡神社ノ阯アリ」とある。
しかし、本訪問では「八幡神社ノ阯」は確認に至らず。
 丹波国分寺全景2     丹波国分寺塔跡11    丹波国分寺塔跡12    丹波国分寺塔跡13
 丹波国分寺塔跡14    丹波国分寺塔跡15    丹波国分寺塔跡16    丹波国分寺塔跡17
 丹波国分寺塔跡18    丹波国分寺塔跡19    丹波国分寺塔跡20    丹波国分寺塔跡21
 丹波国分寺塔跡22    丹波国分寺塔跡23    丹波国分寺塔跡24
 丹波国分寺心礎11    丹波国分寺心礎12    丹波国分寺心礎13    丹波国分寺心礎14
 丹波国分寺山門     丹波国分寺山門前石灯篭     丹波国分寺山門前史跡碑
 丹波国分寺本堂1     丹波国分寺本堂2     丹波国分寺本堂3     丹波国分寺本堂扁額
 丹波国分寺本堂・鐘楼     丹波国分寺鐘楼2     丹波国分寺石仏類     丹波国分寺庫裡
 丹波国分寺収蔵庫     丹波国分寺経蔵跡     丹波国分寺鐘楼跡
 丹波国分寺北面僧坊跡1     丹波国分寺北面僧坊跡2
丹波国分寺と御上人林廃寺(この北方に妙圓寺がある)とを結ぶ道の丁度中間付近に2基の石碑(推定国分寺・こんぴら道標と推定題目石)が立つ。
 推定国分寺・こんぴら道標と推定題目石
 推定国分寺・こんぴら道標:頭の「九」の意味は不明、国分寺及びこんぴらの下にある文字は判読できない。国分寺方面には金比羅大権現の存在が確認できないが、既に退転か?。
 推定題目石:題目が刻まれると推定できるが、右に文字は判読不能、左側面に「天保2辛卯年(1831)3月」(誤読の可能性あり)と刻む。御上人林廃寺の北西に日蓮宗妙圓寺があるので、妙圓寺(妙見)への石碑であるかも知れない。

参考:丹波国分尼寺跡
 従前より御上人林廃寺と云われていた遺跡が尼寺跡に比定される。
僧寺とは古代の山陰道を挟んで位置し、寺域の南限は僧寺跡と同じ条里線上にある。遺蹟は宅地や更地であり、特に見るべきものはない。
寺域は1町半四方(約165メートル四方)で、伽藍は南大門・中門・金堂・講堂が南北一直線上に並ぶ東大寺式伽藍配置である。
主な遺構は次のとおりであある。
金堂は5間四面堂、東西約27m、南北約18m、講堂も5間四面堂、規模は東西25.8m、南北16.8m、南大門は東西約15m、南北約10mの規模である。本廃寺からは国分寺跡と同じ文様の瓦が出土する。
 丹波国分尼寺跡:御上人林廃寺:写真に写る現地説明板は南大門跡にある。
以下は現地説明板より
 国分寺・尼寺跡付近図:推定道標・妙圓寺は加筆     丹波国分尼寺想像図     国分尼寺伽藍想像図

丹後国分寺跡(史蹟)

 丹後天橋立・丹後智恩寺・丹後成相寺五重塔・丹後国分寺跡

但馬国分寺跡

昭和48年からの発掘調査で、南門・中門・金堂・講堂が一直線にならび、金堂・講堂間東西に経蔵・鐘楼、回廊は中門から金堂に取り付くと確認される。塔については金堂のほぼ西に築地に囲まれて建立されたことが判明する。その他東南隅築地跡等が発見される。
現状は民家・田畑の中に各伽藍跡の位置を示す立て札が立てられ、保存される。
2007/02/04追加:
○「古社寺の研究」より
国分寺薬師堂と称する小宇の南方田畑中に2個の礎石が現存する。東側の礎石は地上に露出すること約14cm弱で完好な凸起があり、西側のそれがない。・・凸起がある礎石は恐らく塔婆中心礎・・と想察せしむるもので、・・創建当時のままと・・思われる。・・近年までほかの礎石があったが井堰用水路等に使用・・門柱礎も既に亡失・・・」
 ※西南隅礎石を心礎と誤認している。(2016/06/06)
2009/09/14追加:
○「国分寺址之研究」堀井三友、堀井三友遺著刊行委員会編、昭和31年 より
現国分寺は方3間宝形造の薬師堂と庫裏を有するのみ(浄土宗)。現寺の南約3間許に所に通称「塔屋敷」と称する耕地に2個の礎石を残す。その一は心礎であり、大きさは7尺4寸5分×5尺5寸4分で、表面に径3尺3寸5分高さ2寸7分の柱座を繰出し、さらにその中央に径7寸高さ1寸3分の円形出枘を備える。心礎の東北に方6尺ばかりの礎石は地上に出ている。いずれも原位置を保つと思われる。
以上によって推定すると、塔一辺は32尺余(天平尺33尺)と計測される。
 ※同様に西南隅礎石を心礎と誤認している。(2016/06/06)
塔跡正南百余間に字大門があり、近年まで礎石があり南大門址と伝えていたと云う。礎石は用水路に運び、あるいは破砕するなどして今は残存しない。
 但馬国分寺心礎:実際は西南隅礎石(11)である。(2016/06/06)     但馬国分寺塔址:塔址実測図および心礎実測図
2016/06/06追加:
○「国分寺の研究(下)」角田文衛編、昭和13年(1938) より
 但馬国分寺塔心礎:実際は西南隅礎石(12)であるが心礎と誤認している。(2016/06/06)
参考:2003/2/22大安寺発掘調査現地説明会資料  より
 但馬国分寺跡出土風鐸
2016/06/06追加:
○「但馬国府と但馬国分寺」日高町、2002
 但馬国分寺伽藍配置
2016/06/06追加:
○「日高町文化財調査報告書 第1集 但馬国分寺跡T 昭和48年度調査概報」但馬国分寺跡発掘調査団、日高町教育委員会、1975 より
 但馬国分寺塔跡実測図:心礎及び南西隅礎石が発掘され、西側石階及び北側石階痕跡が見える。
礎石は2.3×1.6mで、花崗岩製。径102cm・高さ7.9cmの円形の柱座を造出し、さらに径27cm・高さ4.5cmの出枘がある。
 ※「但馬国府・国分寺館 展示図録」2006年 では次のようにいう。
  従来この礎石が心礎とされてきたが南西隅の礎石と判明する。塔身の加重負担が四隅に集中することを考慮したものと推定される。
  心礎は別途発掘され、その大きさは2.15×1.15mを測る。柱座造り出しを供えると思われるも、上面は破壊され不明である。
基壇外装は乱石積、基壇長は16m内外、高さ60cm。階段は西面と北面で検出。四面にとりついた可能性もあり。
なお、周辺部より隅木蓋瓦と風鐸が出土している。
 ※文化11年(1814)伽藍の礎石3個が存在するという。(伊能忠敬「測量日記」)
 ※現在は上記のように塔礎石2個及び南大門礎石1個が残るほか、原位置不詳の礎石6個(または5個)が周辺各地に伝わる。
2016/07/15追加:
○「日本の美術 171 国分寺」至文堂、昭和55年 より
 但馬国分寺塔跡(発掘):上に掲載の「但馬国分寺塔跡実測図」に対応する。
2018/08/05追加:
○「国府・国分寺の謎を探る」但馬国府・国分寺館、2006 より
 但馬国分寺塔跡:北西より撮影、上左が心礎、中央手前には階段が遺存する。中央右は西南隅柱礎で原位置を保つ。
 但馬国分寺心礎00:おそらく出枘式の心礎であったと思われるも、後世に上面を打ち欠かれる。原位置を保つ。
2001/08/25撮影:
 但馬国分寺塔跡     但馬国分寺心礎(13):実際は西南隅礎石である、当時は心礎と誤認。(2016/06/06)
 ※※以上は心礎を誤認していた記事であり、以下は認識を改めた記事である。※※
2018/03/11「X」氏撮影画像:
 但馬国分寺心礎01
2018/06/02撮影:
 但馬国分寺塔跡2:中央左が西南隅柱礎、中央やや上右が心礎である。
 但馬国分寺心礎11     但馬国分寺心礎12     但馬国分寺心礎13
 国分寺塔西南隅礎石14     国分寺塔西南隅礎石15
 但馬国分寺金堂跡
 現存国分寺入口     現存国分寺本堂     国分寺南大門礎石:在現存国分寺
 以下は「但馬国府・国分寺館」展示を撮影:
 但馬国分寺模型     但馬国分寺七重塔模型
 但馬国分寺風鐸02     但馬国分寺風鐸03     但馬国分寺水煙片
 但馬国分寺軒丸瓦1     但馬国分寺軒丸瓦2     但馬国分寺軒丸・軒平瓦     但馬国分寺隅軒平瓦     但馬国分寺丸瓦

摂津国分寺跡

以下の2説があるも、どちらも決め手を欠くと云う。あるいは未知の全く別の場所の可能性もあるとも思われる。
天王寺区国分寺公園:天王寺区国分
この地に天徳山国分寺(黄檗宗)があるが、この寺院は近世の創建(江戸初頭・明の南源の再興)とされる。
一方では、この付近から奈良期とされる蓮華文や唐草文軒瓦が出土し、この地に古代寺院が存在したと推定される。
しかし以上の他には何らの遺跡・遺物はなく、しかも寺院址の発掘は街中であるため困難であり、これ以上の確認の手段がないのが現状である。
真言宗国分寺派大本山国分寺:大阪市北区国分寺
真言宗国分寺派大本山護国山国分寺の寺伝では、孝徳天皇が大化元年(658)長柄豊崎宮の造営を立案するも、中挫する。大化2年、斉明天皇 、先帝の菩提のため道昭に勅し、この地に長柄寺を建立する、
天平13年(741)聖武天皇、国分僧寺・国分尼寺建立の詔を発し、長柄寺を摂津国の「金光明四天王寺護国之寺」となす。
爾来、幾多の盛衰を経て、今に伝燈を伝える。
但し、この地を創建国分寺とするに足る遺跡及び遺物の裏付けは皆無と云う。
なお、当寺は長柄国分寺とも通称し、鐘楼堂・慰霊堂を兼用したニ層塔がある。 → 「擬製塔婆」の摂津長柄国分寺の項を参照。

河内国分寺跡

「河内国分寺」水野正好(「新修国分寺の研究 第7巻 補遺」吉川弘文館、1997 所収)より
 河内国分寺の遺跡は全く忘れ去られて、今日に伝えられるところがない。では、河内国分寺はどこに求めるべきなのか。
河内国府の近隣の衣縫、片山、田辺、原山、鳥坂、青谷の各廃寺はいずれも飛鳥から白鳳期に創建された寺院で、時代が合わないし、各寺の背景に檀越とみられる氏族が想定でき国分寺とは区別されるものと思われる。
 では、国分寺跡とすべき遺跡を再度検討すると、東条廃寺(塔本廃寺)が時期も天平に始まり、塔跡も雄大で、候補地に浮かび上がってくるのである。
この東条廃寺を国分寺跡とする考えは、石井信一氏が昭和13年刊の「国分寺の研究」角田文衛編で示したところである。
さらに、昭和29年藤沢一夫氏による「河内東条廃寺即国分寺に就いて」という論攷で、東条廃寺がほぼ国分寺跡であると確定されたのである。
この論拠は、西琳寺旧蔵文書「河内国古市郡西琳寺領田畠目録」中に国分寺分として25町7段330歩があげられ、これが国分寺の廃絶後、その所有の地が西琳寺に帰属したことを記し、その記載の中に安宿郡塔本の地名があり、東条廃寺の地が塔本もしくは塔本千軒と呼ばれることと符合するからである。
また、同目録には塔本における国分寺の寺地は4町2反450歩と記載され、これは寺地を2町四方もしくは2町×2.5町を想定するのに相応しい面積をもつからである。
以上のような意味で東条廃寺を国分寺跡とするのは妥当と思われる。
 以上のような認識が芽生えつつあった東条廃寺であったが、大正5年に塔跡北半分の礎石7個が、また昭和9年には塔跡南半分の礎石4個が売却搬出され、塔跡は荒廃する。
こうした危機の中で、昭和9年には発掘調査が実施され、心礎及び3礎石が確認され、基壇及び石階の詳細が確認される。(但し報告書の刊行はなし。)
更に昭和31年には藤沢一夫氏の国分寺跡説に基づき大阪府は塔跡全体を公有化する。
次いで大阪府は昭和45年塔跡の一部および中門と想定される遺構の発掘調査を実施する。
塔跡は調査前、心礎・北東の四天柱礎・西側柱礎南2礎が露出していたが、新たに2礎を発見し、合計6個の礎石を確認した。さらに過去に搬出された礎石の抜取穴や根石なども検出し塔跡の旧観が明らかにされるにいたる。
 四天柱礎は1.3m四方の花崗岩製自然石で径93cm高さ約8cm」の円形柱座を造り出し中央に径20cm高さ4cmの土枘を持つ。
側柱礎の内、隅の礎石も花崗岩製自然石で、1.2×1.5mの大きさの石材に径96cm高さ約9cmの円座を造り、中心に径26cm高さ4.5cmの出枘を持つ。
中間の側柱礎は地覆座を造り出す。
-------------------------------------------------------------
南大門・中門・金堂・講堂・僧房が寺域の西1/3附近にある中軸線上に並ぶ。回廊は無かったとされ、築地で囲まれていたと推定される。
塔は一基で、金堂・中門の東方75m附近の位置に築地に囲まれた塔院を構え、院の中に建立される。
国分寺は東西200m、南北250mの規模を持つ。
 長年探索されていた河内国分寺跡は、この地で昭和45年に塔跡がほぼ完全に発掘され、確定される。
ただ立地している場所は台地上の削平地であり、単純な平地伽藍では無い。
そのため東方の金堂院とは別に区画された塔院の中に塔婆が建立する伽藍配置を採る。
ではなぜ、通常に見られるような平地に伽藍は建立されず、舌状台地に建立されたのであろうか。
それは、おそらくは国府の付近は土地狭小であり十分な敷地が手当できなかったものと思われ、さらにこの地は難波と飛鳥との要路であり、その要路から見上げられる高台であるため、遠方からもよく遠望でき、荘厳さの演出効果 を十二分に期待できる地であっただろうと想像されるからである。
2001/06/24撮影:
 河内国分寺塔跡1     河内国分寺塔跡2・・・礎石は埋め戻され、写真の礎石はコンクリートの復元模型である。
 河内国分寺塔跡3: 現地案内板から転載
2014/12/13撮影:
 河内国分寺復元塔跡4     河内国分寺復元塔跡5     河内国分寺復元塔跡6     河内国分寺復元塔跡7
 河内国分寺復元塔跡8     河内国分寺復元塔跡9:現地案内板から転載
 河内国分寺出土瓦:柏原市立歴史資料館展示
○2009/08/18追加:
「河内古代寺院巡礼」近つ飛鳥博物館、2007 より
 河内国分寺伽藍配置図:塔の基壇規模は、一辺19.2m(天平尺36尺)、高さ1.6m、石段の幅4,5m。
 河内国分寺塔跡:昭和45年発掘調査時。塔は凝灰岩切石を使用した壇上積基壇で、基壇上面も凝灰岩を敷き詰める。
○2009/09/26追加:
「国分寺址之研究」堀井三友、堀井三友遺著刊行委員会編、昭和31年 より
国分寺は国分町東條(現河内国分寺址)と河内片山廃寺に擬せられる。河内名所絵図などでは字磯ヶ辻付近を国分寺址とする説が行われたが、これは江戸期に国分寺旧跡が不明のまま、東條・西條・南代の中間に当るという理由で小宇を設け、国分寺と云ったもので、この地は到底国分寺などを建立する好地とは思われない。
東條の廃寺跡には土中に埋没する塔址があり6個の礎石を残す。中心礎石の円柱座は径3尺9寸を測る。なお塔址一辺は天平尺34尺である。
 東條廃寺塔址実測図     東條廃寺心礎実測図
○2014/12/23追加:
「新修国分寺の研究 第7巻 補遺」吉川弘文館 の「河内」江谷寛、1997 より
塔一辺10.386m、初重柱間は3.298+3.772+3.298m。
塔院を構える。基壇上面は凝灰岩切石の四半敷。礎石の中心線を主軸に凝灰岩の地覆石あり。幅94cm、厚さ27.3cmの凝灰岩を一段高く配し長押とする。その断面は14cmほど縁辺に向かい勾配を持つ。
基壇は地山削り出し、外装は切石積、基壇一辺は18.9m高さ1.542m、東・南・北の中央で石階を確認、石階の出は1.75m、石階は四方にあった可能性がある。
心礎;花崗岩、大きさは3.16×1.45m。径1.20m、高さ7.4cmの円座を造り出し、中心に径37.7cm高さ8.7cmの出枘を造り出す。出枘の周囲は径101cmと82cmの二重の圏線をめぐらす。
 河内国分寺塔跡南石階柱状図
○2014/12/23追加:
「柏原市国分東条町 河内国分寺跡発掘調査概要」大阪府教委、1970 より
 河内国分寺塔跡発掘図
○2014/12/23追加:
「柏原市文化財ガイドシリーズ8 河内国分寺」柏原市教委、1999 より
この地の廃寺跡は東条廃寺とか塔本廃寺とか呼ばれ、場所が大和川に落ち込むような狭小な場所であったが、国分寺塔に相応しい規模の塔跡が発掘され、現在は河内国分寺と想定されるに至る。国分寺の建立場所としては異例の場所である。しかしこの地は大和と難波を結ぶ交通の要所であり、眼前に大和川を望む景勝の場所であったため国分寺が建立されたのであろうという。(※この理由は多少眉唾ものであろう。)
また、この地の北方300mの大和川対岸には青谷遺跡があり、ここでは大型の礎石建物跡が発掘され、この遺構は聖武天皇らの竹原井頓宮跡ではないかと想定されるに至る。河内国分寺と同じ瓦も出土し、もし竹原井頓宮跡であるならば、国分寺が対岸に建立された補強材料であるのかも知れない。
但し、国分寺の伽藍については塔跡と中門の一部だけが調査されただけで、伽藍配置は全く分かっていないのも事実ではある。しかし、塔跡西側の舌状台地に金堂や講堂があるのはほぼ確実と推測される。
 河内国分寺塔跡発掘:向かって右端が心礎。      河内国分寺塔跡南石階

塔跡南上方には平成の初頭から真言宗河内国分寺の堂宇が順次建立されているが、古の国分寺の風格と比すべきものではない。

和泉国分寺跡

霊亀2年(716)河内国から和泉郡、日根郡、大鳥郡が和泉藍として分国。天平12年(740)河内国に合国。
天平勝宝8年(天平宝字元年、757)和泉国を再設置。
承和6年(839)当地の安楽寺を国分寺に編成と云う。
 「続日本後記」:「和泉郡安楽寺をもって国分寺となし、講師一員、僧十口を置く」
天正2年(1574)兵火により焼失と伝える。
「和泉名所絵図」では堂塔の礎石が存在するとある、また古瓦の出土も見るが、現在は集落の中にあり発掘が困難であり、実態は不明。
2009/09/14追加:
「国分寺址之研究」堀井三友、堀井三友遺著刊行委員会編、昭和31年 より
現在寺は泉北郡南池田村(現和泉市)国分
国分集落の西北に福徳寺と号する一寺があり、この寺院が国分寺址である。今は本堂と小祠を有する。礎石は今の本堂の前に2個と背後に2個があるが、原位置ではないであろう。泉州志によれば、延宝(1673-)頃には金堂・宝塔・中門・大門などの礎石が旧のままに存したと云う。時々寺域から古瓦を出土するが、古いものは平安期のものであろう。豊臣秀吉の根来・高野攻めの兵火に罹り焼失したと伝える。
 和泉国分寺本堂前礎石

紀伊国分寺跡(史蹟)

○紀伊国名所図会:三編巻之1:塔の芝
記事:「田畝の間に在りて、方1町ばかりの芝生なり。・・国分金光光明寺の廃跡なり。今は弥勒堂・大門・鎮守拝殿等の址のみ僅かに残れり。中にも大塔の礎石依然としてあり。・・・このあたり布目ある瓦礫の散乱するを見て・・・。元慶3年2月22日。紀伊国金剛明寺火あり。堂塔坊悉く灰燼となる。」
 国分寺・塔の芝(部分図):「塔の芝」に塔の心礎らしきものが描かれる。左の伽藍は医王院国分寺。
ただしこの塔址は国分寺塔址ではなく、現在西国分廃寺跡と呼ぶ塔跡である。
国分寺は元慶3年炎上、その後の沿革は明らかでなく、近世初頭には堂宇があり、根来寺末であったと云う。
2009/09/20追加:
○「国分寺址之研究」堀井三友、堀井三友遺著刊行委員会編、昭和31年 より
 現在、寺院は南入であり、入口右手(東)に塔址があり、北方30間に医王寺の本堂・庫裏が並び、その南方に鐘楼がある。
本堂と塔址との中間に溜池がある。
塔土壇は東西21尺、南北27尺を測り、土壇上には心礎と12個の側柱礎が殆ど全形を露出して並ぶ。
心礎は5尺×4尺の自然石で中央に径1尺8寸高さ1寸8分の枘を繰出す。側礎は大きさ径3尺乃至4尺5、6寸の自然石で中央に径8寸7分高さ2寸の枘を繰出す。塔一辺は礎石の多くが動いているが、30尺3寸8分・天平尺31尺である。
塔址には元々弁天堂があったが、昭和8年大風で倒壊すると云う。
 紀伊国分寺塔址礎石     紀伊国分寺心礎     紀伊国分寺塔址実測図
2002/11/19:
「祈りの造形 紀伊国神々の考古学 1」菅原正明、清文堂出版、2001より転載
近世初頭の伽藍は本堂(5×4間、薬師三尊安置)、三重塔(本尊大日)、尼寺堂、鐘楼、二天門、住坊、牛頭天王社、山王権現などがあり、天正年中兵火により悉く焼亡。
現本堂(5×4間、重層の堂々とした本堂)は元禄期にようやく再興。
2016/08/21追加:
「紀伊国分寺-紀伊国分寺跡・西国分廃寺の調査」和歌山県教育委員会、1979 より
 紀伊国分寺跡塔址全体実測図
2014/09/17追加:
「和歌山県文化財センター年報」1995 より
 塔跡の現状は心礎のほか16個の礎石が現状を保ち残る。
礎石配置は3間(10尺+11尺+11尺+10尺)・・・<10尺+11尺+10尺の間違いであろう>・・・四方である。基壇一辺は55尺(16.39m)であり、基壇化粧は半裁した平瓦を積み上げたものである。基壇北面では31枚の平瓦が1.65mの高さで遺存する。北面には平安初期に1.35m巾の石階が増設される。出土遺物から見て、平安初期以降塔の再建なされていないと判断される。
 紀伊国分寺塔跡基壇
2021/12/30追加:
○「庭石と水の由来」尼崎博正、昭和堂、2002 より
 心礎は点紋緑色片岩で、径55cmの凸枘が造り出される。
心礎以外の礎石は16基の礎石が完存しているが、四天柱礎の東北隅の一基は白色の珪石である。残り3基の四天柱礎と凸枘が造り出される12基の側柱礎は和泉砂岩である。
〇紀伊国分寺跡現況
□印は2001/12/24撮影、◇印は2006/02/25撮影:▽印は2019/02/14撮影:
2001年訪問時には主要伽藍跡の整備が終わり、周辺の整備工事が進むという状況であった。
伽藍は一直線に南門、中門(瓦積基壇、6×3間)、金堂(瓦積基壇、8×5)、講堂(瓦積基壇、8×5)、僧房?(掘建式)が並び、中門東北に塔(瓦積基壇、16個の柱礎石と心礎)、金堂前方左に鐘楼(3×4)、右に経蔵(3×4)が 並ぶ。回廊は中門から経蔵・鐘楼に取り付く。
 なお、×は桁行×梁間を示す。
塔の一辺は9m余の大型塔で、心礎は長径2.4m・短径1.6mで中央に出枘を彫り出す。
なお講堂上には再建国分寺本堂(元禄13年再建・修理済)が現存する。
 ◇紀国分寺伽藍配置図      ◇紀伊国分寺塔跡発掘写真      ◇中門・金堂・講堂基壇      ◇金堂基壇・講堂跡現本堂
 ▽紀伊国分寺復元南門跡1     ▽紀伊国分寺復元南門跡2
 ▽紀伊国分寺中門跡
 □紀伊国分寺塔心礎
 ◇紀伊国分寺塔心礎1      ◇紀伊国分寺塔心礎2      ◇紀伊国分寺塔心礎3      ◇紀伊国分寺塔心礎4
 ▽紀伊国分寺塔心礎11      ▽紀伊国分寺塔心礎12     ▽紀伊国分寺塔心礎13
 □紀伊国分寺跡塔礎石      □紀伊国分寺復元塔跡      □紀伊国分寺伽藍復元跡
 ◇紀伊国分寺塔礎石
 ◇紀伊国分寺復元塔跡1      ◇紀伊国分寺復元塔跡2      ◇紀伊国分寺復元塔跡3      ◇紀伊国分寺復元塔跡4
 ▽紀伊国分寺復元塔跡11     ▽紀伊国分寺復元塔跡12     ▽紀伊国分寺復元塔跡13     ▽紀伊国分寺復元塔跡14
 ▽紀伊国分寺復元塔跡15     ▽紀伊国分寺復元塔跡16     ▽紀伊国分寺復元塔跡17     ▽紀伊国分寺復元塔跡18
 ▽紀伊国分寺復元塔跡19
 ▽紀伊国分寺復元金堂跡11    ▽紀伊国分寺復元金堂跡12    ▽紀伊国分寺復元金堂跡13    ▽紀伊国分寺復元金堂跡14
 ▽紀伊国分寺復元金堂跡15    ▽紀伊国分寺復元金堂跡16
 ▽紀伊国分寺復元講堂跡11     ▽紀伊国分寺復元講堂跡12
 ▽元禄再興紀伊国分寺本堂1     ▽元禄再興紀伊国分寺本堂2
 ▽紀伊国分寺復元僧坊跡1     ▽紀伊国分寺復元僧坊跡2
 ▽紀伊国分寺復元鐘楼跡1     ▽紀伊国分寺復元鐘楼跡2     ▽紀伊国分寺復元鐘楼跡3
 ▽紀伊国分寺復元経蔵跡1     ▽紀伊国分寺復元経蔵跡2
 ▽紀伊国分寺寺務所
〇紀伊国分寺古代瓦展(於「紀の川市歴史民俗資料館」・旧打田町歴史民俗資料館) より
紀伊国分寺創建時の軒瓦は興福寺式軒瓦の文様が使用される。
興福寺式に最も忠実な軒瓦は軒丸瓦A2と軒平瓦a3であり、これは金堂・塔に用いられる。これは淡路国分寺と同笵である。
但し、その使用量は少なく、主体は軒丸瓦A1と軒平瓦a2である。
講堂は范傷のある軒丸瓦A1と軒平瓦a4の組み合わせ、南門では軒丸瓦Bと軒平瓦b、鐘楼は軒丸瓦Bと軒平瓦cの組み合わせが用いられる。
 軒丸瓦A1・軒平瓦a1     軒丸瓦A2     軒平瓦a2     軒平瓦a3     軒平瓦a4     軒丸瓦B     軒平瓦c
 軒丸瓦A1・范傷顕著     范(複製)
瓦の重量
創建時の軒丸瓦は4.2kg、軒平瓦は7.0kg、丸瓦は2.8kg、平瓦は3.6kg(いずれも平均値)を計量する。
軒丸瓦3、軒平瓦4、丸瓦6、平瓦16で復元した軒先約1平方mの重量は約115kgで、寺院瓦葺屋根の重量は非常に重たいことが分かる。
 紀伊国分寺瓦葺復元1     紀伊国分寺瓦葺復元2
〇「史跡紀伊国分寺跡」紀ノ川市(旧打田町)教育委員会 より
 紀伊国分寺跡調査状況     紀伊国分寺塔跡遺構実測図

播磨国分寺(史蹟)

塔跡・金堂・講堂・鐘楼・経蔵・中門・回廊・南大門等の各跡を残す。
寺域の北の一角に寛永16年(1639)に再興された現国分寺がある。
現在は他のいくつかの国分寺と同じように、(型どうりに)史蹟公園として整備される。
塔跡は瓦積み基壇(基壇一辺は18.9m)が復元され、ほぼ礎石が残る。
心礎の形状は菱形を呈し、その大きさは1.40m×1.26m×高さ1.11mであり、中央に径約25cm高さ8.5cmの出枘を造り出す。
他の礎石は自然石である。
塔の一辺は9.5mで、中央間3.3m、両脇間3.1mを測る。

○「播磨名所巡覧圖會」:巻之4より:記事:「・・・・地面に大礎の残りたる甚だ多し」
 国分寺全図
2009/09/14追加:
○「国分寺址之研究」堀井三友、堀井三友遺著刊行委員会編、昭和31年 より
塔跡は方30余尺、高さ3尺位の土壇が残り、17個の礎石が完存する。心礎は6尺1寸×4尺8寸で、中央に径9寸、高さ2寸の枘を繰出す。
 播磨国分寺塔址実測図:塔址実測図および心礎実測図
2010/09/06追加:
○「播磨上代寺院阯の研究」鎌谷木三次、成武堂、昭和17年 より
 播磨国分寺心礎実測図     播磨国分寺塔阯実測図<2023/02/05画像入替>
2023/02/05追加:
○「播磨上代寺院阯の研究」 より
播磨国分寺の研究は江戸期から興る。その内見るべきものは「播磨鑑」(※内容は省略)である。
・・・・・
 播磨国分寺現景     播磨国分寺跡実測図
塔址:
大正10年、塔址は史蹟に指定され、それと同時に補修を受け、今では一辺17m、高さ西側で1.5m、東側で1mを測る完全な形の土壇に造り変えられる。
しかしながら、元は、土壇の西側と南側は鋤鍬の浸食にあい、東側は部落民の土取りに任せてあった為、著しく崩壊し、それが原因で外郭列の礎石は原位置から幾分滑動したものさえあったという。
而して、心礎は出枘の加工のある形状であったが、他の礎石は自然石の上面を削平したものであった。そして、その中には被災により表面が焼け剥離したものもあり、東南の四天柱礎はチュ王から各々二つに割れている。
 礎石は少し移動し、また心礎以外の礎石は自然石のため、正確な実測図は造り得ないが、それでも、概要の実測図の作成は可能である。
 播磨国分寺塔跡     播磨国分寺心礎
播磨国分寺塔跡実測図
 :中央間約3.3m、両脇間約3.1mの値を得る。即ち一辺長は約9.5m(天平尺で32尺位)となる。
なお、西塔の可能性については、東塔の対称位置には何の遺構・遺物も見当たらないので、塔は1基であったと判断される。
金堂跡:
金堂跡と推定される場所には4個の自然石(計1m内外)が散在する。更に現本堂の西南にある野村勝蔵功績之碑の台石に使用する数個の巨石は金堂跡付近から搬出されたとの古老の言もある。
講堂跡:
現本堂の礎石には火中礎石が多く使用されている。この付近に講堂があったと想定される。
中門跡:
中門跡と想定される場所には径70cmほどの伽藍石が1個遺存する。
心礎:
形状はおよそ菱形で高さ24cmを露出させる。長径約210cm、短径約19cm、表面中央には出枘を造り出す。出程は高さ約8.5cm、上部径約約27cm、下部径約32cmを測る。
水煙:
残欠2個がある。
 出土青銅製水煙残欠     出土青銅製水煙残欠平面図
※播磨国分寺心礎の流出の可能性について
 諸資料を見る限り、国分寺塔の廃絶後、塔心礎は現地に継続してあり、他所に流失したことは無いと思われる。
(明治維新以降に他所に流出したような痕跡(記録)は見当たらないと思われる。)
また現塔跡(東塔)以外に西塔があったという形跡もなく、現に現存している心礎以外の心礎が他所に流出したこともまず有り得ないと思われる。
2010/11/05追加:
○「日本真景・播磨・垂水名所図帖」大正〜昭和初期 より
 国分寺七重塔礎石

2002/01/20撮影:
 国分寺塔跡1     国分寺塔跡3     国分寺塔跡4      国分寺塔跡5      国分寺塔跡6
2016/06/02撮影:
 播磨国分寺塔復元基壇1    播磨国分寺塔復元基壇2    播磨国分寺塔復元基壇3    播磨国分寺塔復元基壇4
 播磨国分寺塔礎石1     播磨国分寺塔礎石2     播磨国分寺塔礎石3     播磨国分寺塔礎石4
 播磨国分寺塔礎石5     播磨国分寺塔礎石6     播磨国分寺塔礎石7     播磨国分寺塔礎石8
 播磨国分寺塔心礎1     播磨国分寺塔心礎2     播磨国分寺塔心礎3     播磨国分寺塔心礎4
 播磨国分寺塔心礎5     播磨国分寺塔心礎6
 播磨国分寺南大門跡     播磨国分寺中門跡・燈籠跡     播磨国分寺中門跡1     播磨国分寺中門跡2
 播磨国分寺復元燈籠1     播磨国分寺復元燈籠2

2023/06/15追加:
在小田原松永記念館心礎
 小田原松永記念館に「播磨国国分寺心礎」と称する心礎が展示されている。
但し、本心礎は心礎であることは間違いないが、播磨国分寺心礎である可能性はほぼ無いと思われる。
  → 在小田原松永記念館心礎

淡路国分寺跡(塔跡は史蹟)

塔跡:塔心礎および円柱座に出臍を持つ礎石6個を残す。ただし原位置より北へ2m移動しているとされる。
塔跡には大日堂が建立され、心礎は大日堂内にあるが、現在は堂正面に鎧戸(シャッター)が取り付けられ、実見することはできず。
心礎はほぼ円形(径1.36m)で径75cm、高さ7cmの円柱座を造り、径26.6cm高さ4cmの出枘を持つ。
塔基壇の一辺は13.2mとされる。
国分寺は寛文5年(1665)再建され、現在は本堂・大日堂と仏像(丈六の釈迦如来)を残す。
2023/02/05追加:
○「播磨上代寺院阯の研究」鎌谷木三次、成武堂、昭和17年 より
>播磨国分僧寺の章の註7 に淡路国分寺心礎の実測値(以下)が掲載される。
 淡路国分寺の塔心礎は直径約1.7米の自然石を用ひ、その表面に直径85糎、高さ約1糎の圓形柱座を造り出し、更にその中心に直径約30糎、高さ約3糎を測る凸枘が加工されてゐる。(據・淡路國三原郡八木村大字笑原辻川永太郎氏實測)
2011/05/10追加;
○「淡路名所図会」天明2年(1782)以降成立 より
 淡路名所図会・淡路国分寺
○淡路國名所圖會:暁鐘成(木村明啓)編纂、明治26年刊(嘉永4年成立)
護国山国分寺:
記事:「七重塔の跡(本堂の向かふ左傍あり。今小堂を営み大日如来を安ず。堂の四面に古の塔の礎石あり。・・・今の大日堂は元禄年中に造営すと云ふ)」
 2011/05/10追加:2023/06/28画像入替:
  淡路國名所圖會・淡路国分寺:上に掲載図と同一のものである。
   次は当初掲載画像である。
    淡路寺国分寺全図     淡路国分寺部分図
2007/09/21追加:
○「兵庫の塔」寺師義正、光村推古書院、1994.3 より
大永5年(1525)僧俊泉によって再興、天正年間兵火によって焼失
寛文5年(1665)照運法印が再興、唐招提寺末となる。貞享元年(1684)本堂再興。
 淡路国分寺大日堂内塔心礎
2009/09/20追加:
○「国分寺址之研究」堀井三友、堀井三友遺著刊行委員会編、昭和31年 より
現国分寺は本堂(本尊釈迦如来坐像・暦応年中の銘)、本堂西南に羅漢堂、北方に客殿・庫裏、本堂東南12間に大日堂がある。
大日堂が塔址で5個の礎石を存する。堂床下中央に心礎があり、大きさは径約4尺5寸の自然石で、径3尺4寸7分高さ3分許の円柱座を繰出し、その上に径8寸8分高さ1寸3分の枘を繰出すも、全体に磨耗の痕が著しい。
堂の周囲に4個の礎石がある。何れも表面に2重の繰出を有する。就中東々南の礎石は完好で、大きさは径約3尺5寸で、径約2尺3寸の円柱座を繰出し、その中央に径7寸高さ1寸5分の枘を繰出す。なお塔の一辺は約23尺5寸と推定される。
淡路国分寺本尊釈迦如来坐像銘;
 暦応3年(1340)・・・開眼、・・・大願主僧盛尊(当寺住)・・・・
 結縁細工番匠 僧流泉(八木□月光寺住) 僧盛弘(上田八幡住) 僧明俊(上田□□寺住) 僧実尊(当寺住) 僧覚禪(上田八幡住) ・・・
  ※上田八幡とは賀集八幡宮を指す。(上田八幡は賀集八幡とは別途に存在するが、如何に?)
2011/10/28追加:
○「三原町埋蔵文化財発掘調査報告第2集」三原町教育委員会、1993 より
 淡路国分寺塔跡実測図

2023/06/28追加:
○国立情報学研究所>文化遺産オンライン>淡路国分寺塔跡 のページでは、次のように云う。
 心礎は円形造出しを施し、その上に薄い円柱座を重ね、中央に■(枘か)を造出している。堂外の礎石はその旧位置につき、なお考究を要するが、側柱礎と認められ、円柱座に■(枘か)を造出している。
心礎の形状・法量については、上述の「出所不明の形状・法量」、「播磨上代寺院阯の研究」、「国分寺址之研究」には、法量はバラバラであるが、概ね円形造出しを施し、その中央に出補を彫る形式であると云う。
しかし、下に掲載写真写真(久保考学氏ご提供写真)を一見すれば「文化遺産オンライン」で云う「心礎は円形造出しを施し、その上に薄い円柱座を重ね、中央に■(枘か)を造出している」という形状かと思われる。
2023/06/28追加:
久保考学氏ご提供(許諾)淡路国分寺心礎
 ※そもそも、今回のいきさつは
 淡路国分寺ご住職の友人とおっしゃる某氏から、「本心礎の保存処理予定」という情報と本心礎の写真とを頂く。
 で、本心礎は未見のままであり、かつ、拙ページに鮮明な心礎写真がないので、某氏に心礎写真掲載の許諾を願いする。
 それに対し、某氏は淡路国分寺ご住職に写真掲載の許諾を取って下さり、その許諾により心礎写真を掲載させて頂くこととなる。
淡路国分寺心礎は以前に訪問した時、見学することを得ず、未見のままで、詳細は不詳であった。
また、久保考学氏によれば、「近いうちに保存科学処理の予定」とのことであるが、その詳細は不明。
淡路国分寺心礎1:厨子中には大日堂本尊大日如来坐像を安置すると思われる。

淡路国分寺心礎2:左図拡大図

淡路国分寺心礎3

 ※なお、Wikipediaには次の記載(大意)と心礎写真の掲載がある。
淡路国分寺跡
 僧寺跡の寺域は、東西約170m・南北約210mで、築地塀と幅2mの溝をもって区画する。
主要伽藍として金堂・塔が認められるも、伽藍配置は明らかでない。
金堂:寺域ほぼ中央に位置する。盛り土および基壇の一部が検出される。
塔 :寺域東寄り、現在の大日堂に重複する。基壇は一辺13-14mを測る。
塔心礎と礎石5個が遺存する。心礎は北に約2m動く。直径約1.36mの円形の自然石で、直径約75cmの円柱座とその上に枘を造り出す。他の礎石5個もいずれも原位置を保つものではない。
伽藍配置は紀伊国分寺と同じと推測する説がある。また出土瓦のうち創建期の軒丸瓦は興福寺式であり、紀伊国分寺と同笵関係にある。そのほか重圏文・重郭文の組合せには阿波国分寺からの影響も推測される。
瓦の供給窯については、国分寺西側の国分遺跡(国分寺瓦窯跡)であることが確認される。
 淡路国分寺心礎4:Wikipediaより転載

○2003/022/011撮影:
 淡路国分寺塔跡1    淡路国分寺塔跡2     淡路国分寺塔跡3     淡路国分寺塔跡4     淡路国分寺塔跡5
   ※淡路国分寺塔跡6:本写真は「X」氏ご提供
○ルーフレット:「淡路国分寺」 より
 中世以降、大永5年(1525)諸堂の破壊と再建、天正年中(1572-92)焼失の記録が見える。
旧本堂は、江戸中期洲本城代稲田氏家臣・新庄村豪族藤江宇治が寄進したものという。
 本尊は釈迦如来座像【重文】、像高は丈六佛で、1丈6尺(295cm)、胎内に歴應3年(1340)の銘がある。しかし、土地の人々はこの像は創建当時の天平佛と堅く信じて疑わないという。
○現地案内板「国指定史跡 淡路国分寺塔跡」 より
 心礎は直径約1.36mの円形の自然石の表面を加工、径約75cmの円柱座と、さらにその上に枘を彫りだしている。
心礎の他に5個の礎石があるが、いずれも動かされている。塔跡は一辺13〜14mの基壇と推定され、また心礎は北へ約2m移動していると判明している。
 ※なお、大日堂には厨子が置かれ、退蔵界大日如来が安置されている。
2025/07/25撮影:
 淡路国分寺心礎11     淡路国分寺心礎12     淡路国分寺心礎13     淡路国分寺心礎14
 淡路国分寺心礎15     淡路国分寺心礎16     淡路国分寺心礎17     淡路国分寺心礎18
 淡路国分寺大日堂内部11    淡路国分寺大日堂内部12    淡路国分寺大日堂内部13
 淡路国分寺大日堂内部14    淡路国分寺大日堂内部15    淡路国分寺大日堂内部16
 大日堂本尊大日如来座像1    大日堂本尊大日如来座像2    大日堂本尊大日如来座像3
 大日堂本尊大日如来座像4    大日堂本尊大日如来座像5
 淡路国分寺大日堂     大日堂及び礎石1      大日堂及び礎石2     大日堂及び礎石3
 大日堂及び礎石4     大日堂及び礎石5
 出土古瓦:全て奈良期のものである、淡路区国分寺から出土
 複弁八葉蓮華紋軒丸瓦その1    複弁八葉蓮華紋軒丸瓦その2    単弁十二葉蓮華紋軒丸瓦その1
 単弁十二葉蓮華紋軒丸瓦その2    均正唐草紋軒平瓦その1    均正唐草紋軒平瓦その2
 淡路国分寺旧本堂:向かって左は十六羅漢堂、寛政3年(1791)に寄進された十六羅漢を祀る。
 淡路国分寺新本堂:本尊丈六釈迦如来座像を祀る。
 本尊釈迦如来座像1      本尊釈迦如来座像2
 淡路国分寺庫裡・客殿     淡路国分寺鎮守
 石造宝塔:詳細不明
 淡路国分寺石造宝塔1     淡路国分寺石造宝塔2     淡路国分寺石造宝塔3
 

因幡国分寺跡

2010/07/31撮影:現国分寺にある礎石は国分寺集落の南に田中から運んだと云う。その大きさから塔礎石であろうと推定される。その中で心礎の可能性のある出枘のある礎石の大きさは220×140cmを測る。
現国分寺東に細男神社があり、この境内が金堂跡と推定され、礎石と思われる石がある。
なお現国分寺は延宝2年(1674)黄檗宗として再興される。本尊薬師如来。
 因幡国分寺推定塔礎石1       同    推定塔礎石2       同    推定塔礎石3
 因幡国分寺有出枘礎石1       同    有出枘礎石2       同    有出枘礎石3       同    有出枘礎石4
 細男神社境内推定礎石      因幡国分寺現堂宇
○発掘により南門跡のみを確認、主要伽藍は現在の国分寺集落にあったとされる。
塔礎石などは現国分寺(最勝山と号する)境内に移し保存される。下の写真2の礎石(大きさは不明)には出枘が見られ、国分寺系の心礎の一類型とも思われ、心礎で ある可能性もあると思われる。
「X」氏2003/10/11撮影: 因幡国分寺礎石1       同       2
○「日本の木造塔跡」心礎なりや否かは不明
○2009/09/14追加:「国分寺址之研究」堀井三友、堀井三友遺著刊行委員会編、昭和31年 より
国分寺集落の西端に原国分寺(黄檗宗)があり、その南方字竹ノ下、東南塔ノ隈、東方細男神社境内に旧国分寺遺址が存する。
竹下には8個の礎石を存し、その中の最大のものは9尺5寸×5尺高さ4尺、最小のものは方2尺8寸ほど高さ1尺3寸ほど。その中の一個には径1尺5寸の円柱座の突起が微かに認められる。礎石は全て原位置を動き配置は不明であるが、礎石の巨大さから塔跡と比定すべきであろう。
竹下の東の塔隈の地の田圃中に5個の礎石を残す。最大の礎石は4尺5寸×3尺2寸、小なるものは2尺7寸×2尺2寸で、表面に繰出しと思われるものを存ずるものもある。 しかし「塔隈」の字に礎石はあるが、礎石の大きさから見て、この地は創建時の塔跡と到底思われない。
細男神社境内には数個の礎石があり、礎石転用と思われる手水鉢などもある。
この神社北約80間に墓地があり、その10間ほど西の田圃の畔にまさに転落せんとする礎石2個が残る。踏石は最大の礎石で4尺2寸×2尺8寸×1尺を測る。この薬師堂は金堂跡かと推測するのみで、他の遺構は全く残らない。
 因幡国分寺礎石121:竹下所在の礎石
○2010/07/11追加:(奈良文化財研究所>公開データベース)「因幡国府遺跡発掘調査報告書W」鳥取県教育委員会、1976 より
心礎:径80cmの柱座と27〜28cmの枘状造出し。
礎石下のみ壷掘り地業した跡が検出される。四天柱礎部は頭大の河原石を混入し築き固めたものである。礎石は国分寺境内に移転される。
 因幡国分寺伽藍配置図:推定      因幡国分寺塔跡実測図

伯耆国分寺跡(史蹟)

2010/08/01撮影:寺域は東西182m、南北160m。寺域西3/1の線上に南門、(中門)、金堂、講堂を配置し、塔を南東隅に配置する。
塔跡は基壇一辺13.6m、塔は一辺7.2mで、礎石および礎石抜き取り穴、地覆石、羽目石などが発見される。
心礎及び礎石は既に抜き取られ、抜取穴のみを確認と云う状況であるから、塔復元基壇上の心礎・礎石は復元礎石であるが、なぜ例えば心礎は小さい枘孔を穿ち、しかも中心を外す位置に穿ち、さらには半裁(復元の後に割れたのかどうかは不明)された形式に復元した根拠は全く分からない。
 伯耆国分寺塔復元基壇1      同     復元基壇2      同     復元基壇3      同     復元基壇4
   同     復元基壇5      同     復元心礎
 復元廻廊金堂講堂土壇     復元金堂・講堂土壇       伯耆国分寺推定礎石
X」氏2003/10/11撮影:
 
伯耆国分寺復元基壇        同     塔礎石        同      塔心礎
○2006/11/03追加「各地の国分寺」:
 伯耆国分寺伽藍概要図
○2009/09/14追加:「国分寺址之研究」堀井三友、堀井三友遺著刊行委員会編、昭和31年 より
国庁裏神社の北に接して「古寺屋敷」と云う地があり、ここが伯耆国分寺址である。現存寺は元禄6年に現在地(国府部落)に移転すると云う。
古寺屋敷には薬師堂一宇が残り、薬師堂土台および踏石として4個の礎石が残る。
○2010/07/11追加:(奈良文化財研究所>公開データベース)「特別展 伯耆国分寺」倉吉市立倉吉博物館、1983 より
心礎:心礎は柱穴を確認するのみで礎石は検出されず不明。
東側柱列と東縁は削平を受ける。基壇は安山岩の地覆の上に羽目石を立てた壇上積。地覆石と羽目石の一部は西辺6m北辺5.5mの範囲で残存する。地覆石の失われた部分では抜き取りの溝がめぐるが、西辺と北辺の中央部分がとくに深く、切石が落ち込む状態である。北・西・南各辺の中央部分に幅2m高さ10cmの歩道のような高まりがとりつく。火災に遭い西北方向へ倒れたと考えられ、この方向に焼土・瓦とともに風鐸が検出される。
 伯耆国分寺跡遺構図     伯耆国分寺塔跡実測図

出雲国分寺跡(史蹟)

 ★出雲国分寺塔跡:「N」氏1985年撮影画像
伽藍は南面し、南門・中門・金堂・講堂・僧房が一直線に並び、塔は金堂東前方(南門と中門の中間の東)に位置する配置である。
廻廊は中門から講堂に達し、金堂を囲む。
塔は一辺8.9mとされる。寺跡は史蹟の整備がなされる。
塔基壇などはほとんど復元基壇と思われる。塔跡には礎石は残存しないと思われる。
金堂跡には、かなり精巧に加工された礎石が残り、復元礎石(樹脂製?)と合わせて礎石が配置される。
 出雲国分寺塔跡1        同       2        同       3        同       4
  同 中門・金堂跡       同 金堂・講堂跡       同   金堂礎石        同    復元図
2006/11/03追加「各地の国分寺」:
 出雲国分寺伽藍概要図
2008/01/18追加:
 京都真々庵庭園に、出雲国分寺礎石と伝承する石が据えられているも、詳細は不詳。庭園は非公開。
2009/09/14追加:
「国分寺址之研究」堀井三友、堀井三友遺著刊行委員会編、昭和31年 より
寺地は前より北に次第に高まりゆく地形の中に一段高き方5間内外の土壇がある。通称ダトコサン(檀特山とも解される)といい土壇上および付近に8個の礎石がある。径5尺あるいは4尺内外の凝灰岩製の礎石で、表面に径2尺6寸乃至2尺3寸の円柱座を造出し、更にその中央に径1尺1寸乃至9寸5分の円形出枘を造出す。金堂跡とも解されるが、礎石が移動し、建物の形状の推定が不能である。もとはここに薬師如来を祀る草堂があったといい、その跡が残る。なおこの土壇付近から中竹矢の安国寺境内に3個、竹矢小学校に2個のほぼ同形の礎石が運び出されている。
この土壇の北東約30間に隆起せる3坪ばかりの土壇上の地がある。通称ハナツカといい、忠魂碑の台石に礎石が転用される。台石は削平されるも、径2尺5寸の円形繰出を見る。また付近の西側方向の畑にも数個の礎石がある。ダトコサンとはほぼ南北に対するから講堂跡の可能性がある。さらに付近の水田中にも数個の礎石があるが、移動している。塔跡も明らかでない。
 出雲国分寺礎石:ダトコサン所在の礎石
2010/02/11追加:
 出雲国分寺の礎石群:毎日新聞写真:1962年8月25日撮影、ダトコサン所在の礎石であろうか?。昭和37年頃にも柱座た出枘や柱穴を持つ礎石が放置されていたことが分かる。
2011/10/28追加:
○「出雲国分寺の発掘」石田茂作(「出雲・隠岐」地方史研究所編、平凡社、1963 所収)より
 出雲国分寺阯実測全図:整備以前の様子を窺うことができる資料である。
 出雲国分寺礎石実測図:礎石は径78〜80cmの円形柱座を造出、中央に出枘を設ける。礎石は全て原位置ではない。
  ※多くの礎石が掘り出され散逸したものと思われ、京都真々庵庭園にあると云う出雲国分寺礎石もこの流れの一つであろうか。
○「松江市文化財調査報告書 第96集 出雲国分寺跡発掘調査報告書」松江市教育委員会、2004 より
 出雲国分寺調査成果図:昭和45、46年度・平成5年度の発掘調査成果を集積したもの      出雲国分寺現況平面図
○「古代寺院跡」前島己基(「八雲立つ風土記の丘周辺の文化財」島根県教育委員会、1975 所収) より
塔阯では礎石は全て失われ据付穴のみ検出する。基壇及び掘り込み地業も検出できず。
塔一辺は8.91m(柱間は等間と思われる)と計測される。
 ※塔基壇は削平され、礎石は全て持ち出されていた状況が分かる。
 出雲国分寺塔阯実測図

石見国分寺跡(史蹟)

方2町の規模をもつ四天王寺式の伽藍であったと伝えられる。
現在は真宗金蔵寺の境内となり、門内に塔の土壇とその土壇に接する礎石と塔土壇とは遊離した若干の推定礎石を残すのみである。
2012/09/30撮影:
 石見国分寺塔跡11     石見国分寺塔跡12     石見国分寺塔跡13     石見国分寺塔跡14
 石見国分寺塔跡15     石見国分寺塔跡16
 石見国分寺塔跡礎石1     石見国分寺塔跡礎石2     石見国分寺塔跡礎石3     石見国分寺推定礎石
 国分寺塔跡出土遺物      国分寺塔跡出土軒平瓦     国分寺塔跡出土軒丸瓦     石見国分寺出土瓦
 国分寺出土塼     国分寺出土仏像◎     真宗金蔵寺
  ◎印は現地説明板を撮影
また下に掲載の堀井三友の「国分寺址之研究」によれば、天保5年辛うじて残っていた国分寺薬師堂草堂が焼失、嘉永6年頃石見国分尼寺跡に遷寺して再興され、東光山国分寺と称すると云う。しかるに近年この国分尼寺跡の国分寺も退転し、礎石を残すのみの状態であると云う。(未見) つまりは完全に石見国分寺は廃絶する。
国府物語→石見国 より 転載(2012/10/06追加)
 東光山国分寺廃屋1     東光山国分寺廃屋3:2005/05/20撮影画像と云う。
○島根県:歴史・観光・見所>浜田市観光>石見国分尼寺 より 転載(2012/10/06追加)
 東光山国分寺跡1     東光山国分寺跡2     東光山国分寺跡3
:撮影日時は不明であるが、上掲の2005/05/20の後に撮影したものであろう。
この地は石見国分尼寺跡でもある。
2009/09/14追加:
石見国分寺創建本尊残欠を発見との報道が一斉になされる。
 頭部は松か檜と推定される木製で、総高69.2cm、頭部の長さ42.6cm、幅26.6cmで、座高約120cmと推定される。
曖昧な形状と、焼け残った首の先端部に細かな塑土が残り、恐らく彫刻した後、さらに上から粘土を盛って仕上げる「木心塑像」の技法が使われたと推定される。これは奈良期・平安初頭の技法で ある。
仏像は2005年、石見国分寺から浜田市教委に寄贈されたもので、江戸期の火災で焼け、頭部のみが残ったとされ、石見国分寺の本尊薬師如来像と伝えられてきた像である。
 石見国分寺推定本尊残欠
◇因みに、「国分寺址之研究」堀井三友、堀井三友遺著刊行委員会編、昭和31年 <堀井三友は昭和17年歿>では以下のように記す。
江戸初期には石見国分寺は一農民の所有地に薬師如来の草堂を残すのみであった。寛文5年国分寺村に真宗金蔵寺が創立されるにあたり、旧国分寺址は買収され、薬師草堂も金蔵寺境内に残置された。薬師堂は横5間縦6間の地を占める。
天保5年国分寺薬師堂は火災焼失。よって寺地移転の義が起り、国分寺村尼御所(現在の曹洞宗東光山国分寺の地でありかつ石見国分尼寺址)に国分寺は遷寺することとなる。嘉永元年本寺龍雲寺によって発起され、同6年頃堂宇再興がなり、東光山国分寺となる。
 
※以上によれば、石見国分寺本尊は天保5年まで辛うじて伝えられ、同年の火災で焼失し、その残欠が伝えられたものと推定される。
2011/10/28追加:
「史跡石見国分寺跡・県史跡石見国分尼寺跡 平成14年度〜17年度市内遺跡発掘調査報告書」榊原博英、 浜田市教育委員会、2006 より
推定塔跡から基壇の地覆石と考えられる甎列を検出、さらに礎石は5個を検出し、その内西側の1個は原位置を留めると判明される。
以上などから、塔基壇は12〜14m四方、塔一辺は6〜8mmと推定されるに至る。
 石見国分寺塔阯実測図:昭和60年発掘調査

隠岐国分寺跡(史蹟)

境内から奈良期の瓦を出土するも、創建からの歴史については、記録もなく発掘調査も行われず、殆ど不明と云う。
近世の様子として、「隠州視聴合紀」:寛文年中(1661〜1673)には、「四天王寺有、仁王門有、鎮守山王二十一社、寺家六坊有、大乗坊、本蔵坊、安乗坊、大楽坊、岸本坊…」とあると云い、天台系であること・四天王寺と称する主要堂宇がある ・寺家6坊で護持されるなどの概要が知れる。
 ※寺院発行のパンフレットでは「金堂、三重塔、四天王寺、大門、中門、山王二十一社の鎮守、大乗坊、大楽坊、大蔵坊などが山麓一帯に、世にいう七堂伽藍が建てめぐらされ、まことに荘厳をきわめたものであります」とあると云う。
明治2年、神仏分離の処置に伴う廃仏で、本堂、庫裡、鐘楼、仁王門などの堂宇が焼払われる。(明治12年国分寺再興)
この本堂跡は現在礎石(5×4間?)を残し、後醍醐天皇の行在所という理由で史跡指定を受ける。
昭和29年本堂再興。
2007/11/29追加:
平成19年(2007/02/25)昭和再興本堂、失火で焼失。
 焼失する隠岐国分寺本堂               
2009/09/14追加:
○「国分寺址之研究」堀井三友、堀井三友遺著刊行委員会編、昭和31年 より
真言宗禪尾山国分寺境内が旧国分寺境内である。寺域は次第に高まりゆく丘陵地で、参道の途中に仁王門跡があり、方4尺余の礎石を2個残す。地名は大門と云う。参道を更に登ると東側に台地があり塔跡かと思われるも、何の遺構も残さない。
参道を上りきったところに平坦地があり、礎石38個を残す。礎石大きさは径2乃至3尺の自然石で、4間×6間の配列となる。但し、当初の金堂の礎石ではない。
 隠岐国分寺金堂跡礎石配列
金堂跡背後の丘に鎮守山王権現と四天王堂がある。四天王堂は四天王寺の後身とする。現本堂は金堂跡の東北の低き地にある。
2011/10/28追加:
「隠岐」内田律雄(「新修国分寺の研究 第7巻 補遺」吉川弘文館 1997 より
 隠岐国分寺測量図:1987年測量
2012/03/13追加:
先日、「T」氏から「隠岐国分寺には明治2年に破却(放火焼失)された三重塔があったと思われる。」とのご教示があった。
さらに複数のWebサイトに、上記のご教示と同一内容の掲載が見られる。
確かに、隠岐では過酷な明治の神仏分離・廃仏毀釈が行われたことが知られ、その過酷な廃仏の中で諸堂・伽藍が焼かれたのは事実であろう。しかし、明治維新まで三重塔が存在したことあるいは明治2年に塔が焼失したことなどの確証がないのが現状である。
従って、明治2年に塔焼失とのことつまり明治2年まで三重塔があったことは、確証がなく、現段階では不明とするしかない。

備前国分寺跡(史蹟)

○廃寺跡は両宮山古墳の西方約200mの、北から南 へ緩かに降る傾斜地に位置する。
田中の高まりの中に七重石塔(鎌倉期、相輪欠、高さ約3m)があり、この台石が通説では「心礎」とされる。
しかし心礎である確証があるわけではなく、常識的に考えて、心礎である可能性が高いということであろう。
なお礎石については「県道の工事で、ほとんどの礎石は、割って道路工事に使った」という伝聞もある。
発掘調査により、南門・中門・金堂・講堂・僧房が一直線に並び、塔は中門東69mの位置に建立されたことが確認されている。
寺域は東西約180m、南北約220mと推定されている。
 両宮山古墳:墳丘全長約120m、前方部幅約120m、後円部径約100m、高さ約20m、三段構築、くびれ部に造出し、周辺の水を湛えた周溝を持つ。5世紀後半の構築と推定。備前最大 の長径を持つ古墳であり、吉備では第3位(造山古墳・作山古墳に次ぐ)規模を有する。
 備前国分寺塔跡1       同      2      同      3      同      4      同      5     伽藍配置
 両宮山古墳
○2008/12/25追加:「岡山県埋蔵文化財発掘調査報告010−備前国分寺跡」、1975 より
昭和49年発掘調査を実施、実施のトレンチは「発掘調査図」の通り。
調査の結果、南門・中門・金堂・講堂・塔の遺構と僧坊・南、西、東の築地跡を検出し、ほぼ伽藍の概要が解明される。
塔跡には以前から塔心礎とされる大石(170×150×80cm)がある。この石は現在半割され、その上に七重石塔が置かれる。
さらに明治27・8年頃、県道工事(旧山陽道)で、この付近にあった基壇を崩し、礎石は割って搬出したと伝える。
この大石を挟んでトレンチを設定したが、その結果この大石は腐葉土の上に載り、原位置には無いことが判明した。しかしその下には心礎据付穴と推定される堀込穴と根石と推定される石が存在する。 基壇規模については、版築層が薄く、規模の確定は出来なかった。
この大石の上面には造出や円穴などは見られない。ということは、天地逆転してほぼ元の位置に置かれたのであろうか。
南門は東西70尺(21m)南北36尺(10,8m)の基壇上に5×2間の建物が載り、備中国分寺と同規模である。
中門は後世に攪乱されているが、南門とほぼ同規模と想定される。
金堂と講堂はほぼ同規模で、東西100尺(30m)南北70尺(21m)の基壇上に5×4間の建物が想定される。
塔跡は後世の削平が著しいが、想定心礎は原位置より動くも、あまり大きくは動いていないと思われる。
 備前国分寺発掘調査図       同   塔跡発掘図      同  想定塔心礎・根石
○2009/09/14追加:
「国分寺址之研究」堀井三友、堀井三友遺著刊行委員会編、昭和31年 より
国分寺址には七重石塔と薬師田に礎石4個が残る。
七重石塔は戦国期の造立といい、高さ台石共で10丈6尺、基底10尺5寸四方を測る。
台石はほぼ6尺四方で高さ2尺5寸の大きさで礎石であるが、円柱座や枘の加工は見られない。付近に塔の上・塔の下の地名があり、塔跡との伝承もあり、塔跡であることは間違いないであろう。
塔跡から北西45間に薬師田と称する地籍がある。ここより北方48間に薬師の小堂がある。薬師田の南の畔に4個の礎石がある。礎石は径4尺乃至3尺の大きさで内3個は東西に一列に並ぶ。塔跡との関係からここは金堂跡の可能性が高い。
戦国期西備前の法華大名松田氏によって、皆法華の政策が取られ、日蓮宗への改宗を拒む寺院は破却された。確かなことは不明ながら、備前国分寺もこの時破却されたものであろうか。
幕末頃、字馬屋の名主がこの付近の水田を整理し、その剰土を七重石塔のある塔跡に盛る。明治27・8年頃、今の県道を改修したとき、この塔跡の土を初め礎石まで崩し取り、道路の石垣などに転用し、塔跡は荒廃し旧形を留めぬに至る。
 備前国分寺址平面図:平面図および礎石実測図
○2011/06/24追加:
「岡山県通史」上下巻、永山 卯三郎、昭和5年 より
 大塔址:敷地は東辺58尺、南辺50尺、西辺55尺、北辺45尺を測る。
花崗岩製七重石塔の台石が心礎ならんとして調査せしも、突起・円孔・繰出等何等徴すべき加工の跡を認めず。
大字馬屋の口碑古伝に詳しい加藤和三郎氏の語りは
「国分寺の層塔は戦国の兵乱によって火かれ、其址に七重四仏の石塔を建て礎石も殆ど原型を保てしが、幕末の頃馬屋の名主油屋平井素左衛門、国分寺跡の水田を整理2反3畝歩の一枚田を造り、その剰土を塔址に盛り上げ礎石を埋没させ石塔も僅かにその上部を表すに至れり。
明治27・8年頃旧山陽道改修の挙あり、加藤弥久平と云うもの土工を請負、塔址の覆土を崩し取り礎石を破壊して之を道路の石垣に使用したと伝えり。現存石塔の台石もこの時に割り取られたる也」
○2011/07/28追加:
「備前国分寺跡」赤磐市教育委員会、2009 より
昭和49年(1974)岡山県教育委員会が史跡保存目的で発掘調査を実施する。(1975年調査報告書は上掲)
それ以来30数年振りの発掘調査が平成15〜17年(史跡の保存整備目的)に実施される。
その結果、
塔について礎石は抜き取られているも、頑丈に設置された根石が残り、建物規模の復元ができ、さらに、石造七重層塔が立つ心礎が平面位置としてほぼ原位置を保つことが明らかとなる。
塔跡現況:
塔跡には花崗岩製石造七重層塔(高さ約3m)が立ち、この層塔の土台となっている大石(180×140cmで厚さは90cm以上)が古くから心礎として知られる。この層塔は鎌倉後期の作と推定され、木造塔が失われた後に築かれたものであろう。
残存する基壇上の9ヶ所で根石を検出し、その構築状況を観察するには良好な遺存状況であった。
検出した9ヶ所の根石は四天柱の北東隅の根石1基と側柱の根石8基である。
 備前国分寺塔跡全景     備前国分寺塔跡発掘写真     備前国分寺塔跡発掘図
塔基壇の復元:
建物の柱間は一辺ですべての根石を検出した南辺の側柱を基準に推定すると、10尺(2.97m)等間で、一辺の長さ30尺(8.91m)を測る。
基壇は側縁が残る東・南辺から軒の出15尺(4.46m)と推定し、規模は一辺60尺(17.82m)と想定できる。
 備前国分寺塔跡復元1     備前国分寺塔跡復元2
塔の根石に二次的な改変は認められず、心礎上に鎌倉時代の作と考えられる石造七重層塔が立っていることや出土した土器・瓦から、塔は平安時代中期には廃絶し、その後、再建されることはなかったと考えられる。
 備前国分寺伽藍配置図     備前国分寺金堂跡:北東から     備前国分寺講堂跡:南西から     北面廻廊屋根瓦倒壊状況
○2011/08/06追加:2011/07/31撮影
 備前国分寺復元基壇11:中央やや右の鳥居が国分寺八幡、その右端に薬師堂(小宇)が写る。
 備前国分寺復元基壇12     備前国分寺復元基壇13
 備前国分寺石製七重塔1     備前国分寺石製七重塔1
 備前国分寺心礎11         備前国分寺心礎12        備前国分寺心礎13
  :心礎は復原基壇によりほぼ埋没する。左記の意味でこの整備の方法には疑問がある。
 備前国分寺薬師堂     備前国分寺鎮守八幡

備中国分寺跡(史蹟)

 備中国分寺五重塔:近世の五重塔が現存する。

美作国分寺跡(平成15年史跡指定)

現国分寺がある。庭石に礎石を転用。
発掘調査により、南門・中門・金堂・講堂が一直線に並び、回廊は中門から金堂に取り付き、塔は回廊外南東に配置されていたことが確認される。
○「日本の木造塔跡」心礎なりや否かは不明。・・・礎石の記録は以下の「国分寺址之研究」のとおり。
2009/09/14追加
○「国分寺址之研究」堀井三友、堀井三友遺著刊行委員会編、昭和31年 より
現国分寺境内に数個の礎石がある。
・本堂前の重修国分寺碑の台石で、大きさは11尺2寸(3.40m)×4尺5寸(1.36m)、高さ3尺(91cm)の巨石で横向きに置かれる。その表面に径3尺 (91cm)高さ1寸(3cm)の円形柱座を繰出し、その中央に径9寸(27cm)の枘の痕跡が残る。これは恐らく塔の心礎であろう。
 美作国分寺推定心礎:重修国分寺碑の台石
・門前の碑の前には、大きさ7尺5寸×5尺8寸高さ2尺8寸で、径2尺5寸高さ1寸の円形柱座を造り出す。
・方丈の左方には、大きさ7尺×6尺、高さ2尺5寸の巨石があり、表面に径2尺5寸の円形柱座とその中央に径9寸5分の出枘を持つ。
・鐘楼の側にあるものは、大きさ6尺×5尺8寸で、円柱座の有無は不明。
・弁天祠の後方には、径4尺5寸高さ2尺5分で、円柱座の痕跡が僅かに残る。
・その他大日堂前の礎石も微かに円柱座の痕跡を残し、門前民家の庭石にも転用される。
これ等の礎石は現寺境内の西の田圃から発掘して搬入したものであるが、どの位置から運んだかは明確にし得ない。
2011/07/10追加:
○「岡山県通史」上下巻、永山 卯三郎、昭和5年 より
奈良朝の形式を有する礎石を国分寺境内外に索めて5個を得たり。
 美作国分寺礎石実測図:下の番号はこの図の番号に照合する。
1.門前明治新渠之碑の前面に移動せられたり。大きさは長径7尺5寸短径5尺8寸高さ2尺8寸、柱座径2尺5寸高さ1寸許。
2.鐘楼の側にあるもの。大きさは長径6尺短径5尺8寸高さ3尺、円柱座の有無明らかならず。
3.弁天社の後方にあるもの。直径4尺5寸高さ2尺5分、突起明瞭ならず。
4.重修国分寺碑の側にあるもの。長径10尺5寸短径4尺5寸高さ3尺。柱座直径2尺5寸同突起径1尺。
5.客殿の前面にあるもの。長径7尺短径6尺高さ2尺5寸、柱座直径2尺5寸同突起径8寸5分。
 ※1.、2.、3.、5.は「国分寺址之研究」に記載あり、4.はなく、「国分寺址之研究」の推定心礎との大きさが違う。
  また「国分寺址之研究」の云う大日堂前や門前民家の礎石への言及はない。
2011/07/10追加:
○「美作国分寺跡 塔跡発掘調査報告書」津山市埋蔵文化財発掘調査報告第72集、2002 より
平成12年度に津山市教育委員会が発掘を実施する。
今回の調査では基壇規模や外側に犬走りや雨落溝が存在することが判明する。
その結果、基壇規模であるが、これは犬走の規模から推定できる。すなわち犬走外縁の南北長が22.4m、この値から犬走の幅南北それぞれ2mずつを引いた値18.4mが、基壇一辺長と推定できる。
次にこの基壇の構造であるが、まず、基壇の築成において、掘り込み地業を施した形跡は認められない。また断ち割りの土層で明らかなように、厚さ30cmを超えるような層にかなり大きな石を混入させるようにして基壇を築成している。さらにこの石は基壇の推定中心部に集中する傾向が認められる。この手法は金堂・講堂のように厚さ5〜 10cm程度の土を互層につき固めたような手法とは異なる。
さらに基壇化粧は乱石積みであり、中門に同様の例が認められるが、金堂・講堂の塼積み基壇とは異なる。
 美作国分寺塔跡全景     美作国分寺塔跡犬走雨落溝:西から      美作国分寺塔跡犬走南東隅
 美作国分寺塔跡基壇化粧     美作国分寺塔跡実測図
 美作国分寺伽藍配置図・・・本図は某Webサイトから転載
2015/04/18撮影:
現在、現在の美作国分寺を訪ぬれば、この境内に6個の古代美作国分寺跡から移されたという礎石を見ることができる。
しかし、重修国分寺碑の台石とされた礎石以外は柱座及び出枘などの表面の加工物は不明確である。それは、故意に毀されて現在の国分寺に搬入されたのではないかと疑うほど不明確になっている。弁才天社後のそれなどは、表面だけだはなく周囲もひどく毀されているように見える。
もし、礎石の柱座・出枘などは破壊されたとしても、その理由はよく分からない。
 美作国分寺礎石/門前1     美作国分寺礎石/門前2     美作国分寺礎石/門前3:「岡山県通史」では径2尺5寸高さ1寸の円形柱座を造り出すとあるが、現状では剥落したのか破壊されたのかは不明であるが、それらは判然とはしない。
 美作国分寺礎石/鐘楼側1    美作国分寺礎石/鐘楼側2    美作国分寺礎石/鐘楼側3:柱座は判然とはしない。
 美作国分寺礎石/弁才天社後1   美作国分寺礎石/弁才天社後2:ひどく破壊されているように見え、柱座などは判然とはしない。
 美作国分寺礎石/碑台石1     美作国分寺礎石/碑台石2     美作国分寺礎石/碑台石3     美作国分寺礎石/碑台石4
 美作国分寺礎石/碑台石5     美作国分寺礎石/碑台石6:柱座直径2尺5寸同突起径1尺(「岡山県通史」)とあり、見難いが、柱座・出枘が確認できる。
 美作国分寺礎石/方丈前1     美作国分寺礎石/方丈前2     美作国分寺礎石/方丈前3     美作国分寺礎石/方丈前4
 美作国分寺礎石/方丈前5:柱座直径2尺5寸同突起径8寸5分とあるが、現状では破壊もしくは剥落し良く分からない。
大日堂前礎石(「国分寺址之研究」)については、国分寺副住職(もしくは住職)は次のように云う。
当寺は天台宗であり、大日様はお祀りしていない。(当寺境内には大日堂はない。)近年の建物であり色々な変遷があったが現在は地蔵堂としてある堂宇前にも大石があり、これも古の国分寺礎石と伝える。
 美作国分寺礎石/地蔵堂前1     美作国分寺礎石/地蔵堂前2   美作国分寺礎石/地蔵堂前3:但し形状では礎石なりや否かはよく和kらない。
美作国分寺現状:
美作国分寺は天平9年(737)聖武天皇勅願で、行基菩薩開基と伝える。
承安2年(1172)兵火で堂塔伽藍を焼失、衰微す。
元和9年(1623)津山藩主森氏によってその体面を維持するを得たり。
今の建物は文政11年(1828)津山藩主松平氏によって再建された所とす。
 美作国分寺山門     美作国分寺鐘楼:向かって左に写るのは国分寺礎石の一つ
 美作国分寺庫裡     美作国分寺方丈
 美作国分寺歓喜天拝殿・観音堂:向かって左が歓喜天拝殿
 美作国分寺方丈・歓喜天拝殿・本殿・本堂:歓喜天拝殿背後に写る宝形造の建物が歓喜天本殿であろう。
 美作国分寺本堂1     美作国分寺本堂2     美作国分寺本堂3     美作国分寺本堂4     美作国分寺本堂5
 美作国分寺弁才天社:弁才天社は現在退転していると思われるも、地割の養子があり間もなく再建される模様である。
  ※津山瓦版では次のような祠と鳥居(現在はない)があったようである。
   旧美作国分寺弁才天社
   旧美作国分寺弁才天鳥居
 美作国分寺新造堂宇1    美作国分寺新造堂宇2    美作国分寺新造堂宇3    美作国分寺新造堂宇4
この新造堂宇の性格は不明、妙音天の扁額を掲げる、また弁天回向堂ともあるが、不明。
 国分寺飯塚古墳:国分寺北に位置する。径35mの円墳で、高さ6m、墳頂の平坦部径は10mを測る。墳頂平坦部には、径3m、深さ30cm程度の浅い盗堀壙が見られるが、墳丘の遺存状態は良く、均整な円錐形を呈する。未発掘で構築時期内部の構造などは不明。

備後国分寺跡

発掘調査で現国分寺の参道をほぼ中心線にして、南門、塔、金堂、講堂跡の各1部が検出され、法起寺式伽藍配置が想定されると云う。
延宝元年(1673)の大洪水(背後の池の決壊)で、遺跡の残存状況は良くない。
参道には礎石と思われる遺物が散見されるが、特に見るべき遺構は無い。
塔跡についても、位置の表示があるのみで、土壇・礎石など何も無いと思われる。
 備後国分寺配置図     同      塔跡    同     金堂跡    同 南門跡・礎石     同     仁王門    同     現伽藍
「新修国分寺の研究 第7巻 補遺」1997 では塔跡について以下のように述べる。
トレンチ調査にて一辺18.4m四方と推定される版築基壇を検出する。礎石、基壇化粧などは不明。

安芸国分寺塔跡(史蹟)

心礎・四天柱礎 4・側柱礎12合計17個の礎石全てが残る。調査前に移動していた礎石は元の位置に復元される。
心礎は1.9m×1.2mの不整形の自然石で中央に径41〜39cm深さ13〜11cmの孔を穿つ。
その他の礎石は全て自然石を用いる。塔基壇は一辺11m塔は一辺8.8mと云う。
昭和7年地元の史談会が聖武御塔と呼ばれた塚(聖武天皇の玉歯を埋葬したという伝承を持つ)を発掘したところ完全な塔跡が発見される。
塔跡は現国分寺の西方およそ50m内外の位置にある。
 安芸国分寺塔跡1     同       2     同       3     同       4     同       5(以上2002/12/26撮影)
なお現国分寺本堂は新築中であるが、完工の直前でほぼ全容を窺える。
本格的な伝統工法で再興される。
 本  堂 1     本  堂 妻     本堂斗栱      亀腹(漆喰塗布前)      本堂斗栱(以上2002/12/26撮影 )
○2009/09/14追加:
「国分寺址之研究」堀井三友、堀井三友遺著刊行委員会編、昭和31年 より
昭和7年塔跡を発掘、心礎・四天柱礎3個・側礎9個を原位置で発掘、東南の四天柱礎1個・南側東から2番目の側礎は破壊された状態で残り、南側東端の側礎は転落していたが推定原位置に戻 す。南側西端の側礎は所在を失していたが五輪塔の台石となっていたもので推定原位置に当て嵌め、今見る塔跡配置を得る。
心礎は6尺6寸×4尺5寸の大きさで、中央に径1尺2寸5分深さ3寸5分乃至5寸6分の枘孔を穿つ。
 安芸国分寺塔址121     安芸国分寺塔址実測図
○2011/08/03追加:写真は2011/07/30撮影
塔跡は昭和14年に復元整備されも、礎石はほぼ原位置のままを留めていると推定される。
いずれの礎石も赤く変色し火災にあったと推測される。
基壇は12m四方に復元されるも、周縁が削平を受けていることや、掘込地業の行われた範囲から仮定して、約16m四方の大きさと想定される。
心礎は2.1m×1.35mで、径40cm深さ17cmの円孔を穿つ。
 (「文化財センター調査報告書 第41冊」東広島市教育文化振興事業団、2004 より)
 安芸国分寺塔跡21     安芸国分寺塔跡22     安芸国分寺塔跡23     安芸国分寺心礎24
 安芸国分寺心礎25     安芸国分寺心礎26     安芸国分寺心礎27     安芸国分寺塔跡実測図:「調査報告書 第41冊」
 安芸国分寺跡:左から僧坊跡、講堂復原基壇、現本堂(金堂跡)
金堂跡:発掘により基壇規模は34×21m(高さと基壇化粧は不明)、建物は7間(28m)×4間(15m)と推定される。(礎石は全て失われる)
外周に幅50cmの犬走りを有し、その外側には幅80cmの雨落ち溝が廻る。
 安芸国分寺金堂跡1     安芸国分寺金堂跡2
講堂跡:発掘により基壇は30.6×17.4m、高さ0.6〜0.85m、乱石積基壇と判明。柱位置には礎石を配置。
北辺基壇の中央からは軒廊基壇が北に延び、僧坊に至る。
 安芸国分寺講堂跡1     安芸国分寺講堂跡2     講堂礎石(東側)     講堂礎石(西側)
僧坊跡:発掘により56.1m×12.75mの基壇が出土する。
(以上「文化財センター調査報告書 第39冊」東広島市教育文化振興事業団、2003 より)
 安芸国分寺僧坊跡1:西から撮影・左は講堂復原基壇     安芸国分寺僧坊跡2     安芸国分寺僧坊跡3
安芸国分寺現況
 安芸国分寺本堂1     安芸国分寺本堂2     安芸国分寺本堂3     安芸国分寺本堂4
 安芸国分寺護摩堂1    安芸国分寺護摩堂2;江戸後期
 安芸国分寺薬師堂;木造薬師如来坐像(平安中期・表面は炭化し和紙で補修・半丈六坐像)を安置。
 安芸国分寺仁王門:棟に天文12年(1543)の祈祷札が残る。      安芸国分寺八幡社

周防国分寺(史蹟)

塔婆は創建当時は七重塔とされるが、正平18年(1363)再建時には五重塔となり、応永24年(1417)の火災後再建はされず と伝える。
創建当初の境内に今も伽藍を残す。金堂(重文・桁行7間、梁間4間・重層)は天明8年(1788)萩藩7代当主毛利重就により再建される
<但し現在解体修理中で全く何も見ることは出来ない>また金堂内には、藤原時代初期の木造日光・月光菩薩立像、四天王立像をはじめ多くの仏像を残すと云う。
塔は現仁王門を入ってすぐ右奥に存在したとされるが、発掘調査で確認されたのみで、現地には何も見るべきものはない。
2002/8/16撮影:
 周防国分寺伽藍図     同 塔跡推定地
2009/09/14追加:
○「国分寺址之研究」堀井三友、堀井三友遺著刊行委員会編、昭和31年 より
  石橋を渡り仁王門(元禄年中吉川氏の建立)を入れば、土壇上に本堂(薬師堂、7間四面<12間×8間半>重層入母屋造、応永28年大内盛見の再建、天明7年毛利氏の造営)が建つ。本堂背後に聖天堂・庫裏などがある。
現国分寺は国分寺旧跡に建ち、仁王門は南大門、本堂(床下には巨大な礎石がある)は金堂跡に建ち、庫裏の場所は講堂跡であろう。
塔は今跡を存しないが、「国分寺荒図」(「風土注進案」所載)には南大門東々北に礎石を記入すると云う。
塔および金堂などは応永24年に焼失、本堂は大内氏によって再建される。大内氏滅びて毛利氏に代わるも、毛利氏の庇護を受ける。
江戸期を通じ、毛利氏から当初400数十石、幕末には200石余の寺領を安堵され伽藍は維持される。
2011/10/28追加:
○「周防国分寺跡」佐伯敬紀(「山口県文化財概要」第4集、山口県教育委員会、1961 所収) より
塔礎石は明治24年頃まで現地にあったが破砕され取り除かれたと伝わる。基壇など詳細は不明である。
塔一辺は7.78m、中央間は3.03m、両脇間は2.42m。
○「防府市史資料U」防府市、2004 より
 周防国分寺伽藍配置復元図

2022/11/24撮影:
古代のことはよく分からない。
寺のルーフレットでは、往古(いつなのか?具体的な時代は不明)は規模が壮大で、寺域面積は61町歩余り(60.5ヘクタールであるので、凡そ600m×1000mの土地)にまたがり、七堂伽藍と25ヶ寺の塔頭と末寺を有していたという。
鎌倉初頭、周防国は造東大寺料国となり、重源が下向、阿弥陀寺の所領確保とともに松崎天神・玉祖神社の造替を行う。おそらく、衰退していた周防国分寺も重源により、修理等が行われたと思われる。
鎌倉後期、長門国分寺と同様に大和西大寺に寄進されて末寺となる。
正中2年(1325)周防国目代・覚恵により周防国分僧寺・尼寺が復興される。
応永24年(1417)伽藍全焼。
応永28年(1421)大内盛見伽藍再興。
こののち、大内氏の庇護を受け、大内義隆は国分寺領756石余を付与する。
大内氏滅亡の後は毛利家の庇護を受ける。
明和4年(1767)毛利重就によって仁王門(楼門)が再建(慶長元年毛利輝元建立した仁王門の修築ともいうも、古材がなく、再建と判断される)。
安永8年(1779)頃、毛利重就によって現在の金堂が再建。
 金堂(重文)は桁行7間、梁間4間、二重、入母屋造、屋根本瓦葺、四方には擬宝珠高欄を持つ切目縁を巡らし、正面・背面に唐破風造の向拝一間を付す。堂内には本尊の丈六薬師如来坐像(重文)・日光月光菩薩像(重文)・四天王立像(重文)・十二神将・塔本尊であった五智如来(須弥壇裏の北面に安置)など50余躯の仏像を安置する。
近世には安楽寺(宝寿院)・禅光院・地蔵院・宝幢院・禅悦院・蔵之坊などがあった。
現在、仁王門、金堂(本堂)・持仏堂(客殿)/庫裡・聖天堂・中門(現在は保存修理の為解体、復旧工事予定)がある。
中門は寛永9年(1632)建立、一間一戸、切妻造、西側に脇門を付設。
 ◇塔については
創建は七重塔と推定されるが、貞治2年(1363)の「仏舎利寄進状」では五重塔の存在があったとされる。
しかし、応永24年(1417)伽藍全焼でその姿を消し、以降再興されることはなかった。
「防長風土注進案」では仁王門の東北20間、本堂の東南30間に所在する旨が記されるという。
また「国分寺荒図」において3間×3間の礎石計16個が描かれているという。
また、明治中期までは礎石は現地にあったが、その後に持ち去られたという。
昭和28年からの発掘調査では、基壇上建物は一辺7.88mの五重塔と推定されるという。
 周防国分寺塔跡1     周防国分寺塔跡2     周防国分寺塔跡3
伝五重塔本尊五佛
 伝塔本尊五仏1     伝塔本尊五仏2
伝五重塔安置金剛界五佛は須弥壇の後、北向に安置され、これらの五佛は五重塔本尊と伝える。
ただ、中尊は銅像で、他の四佛は木造という。
また、銅造の中尊大日如来は印は智拳印であるが、その姿は一般の如来形の異形である。
朝鮮からの伝来仏であるかも知れない。像高約50cm。
他の木造四佛も像高約50cm。像高が同じくらいなので、中尊に合わせて木造四佛は造仏されたののかも知れない。
 ※参照:ページ「周防国分寺金堂安置の五仏」 より
 周防国分寺仁王門1     周防国分寺仁王門2
 周防国分寺金堂1     周防国分寺金堂2     周防国分寺金堂3     周防国分寺金堂4
 周防国分寺聖天堂
 周防国分寺中門跡:中門は現在、修理のため解体、門跡は覆をして保存、背後左ては庫裡、右は持仏堂(客殿)である。
 周防国分寺中門:現地説明板 より     周防国分寺中門2:Wikipedia より

参考:周防国分尼寺跡
 国分尼寺跡は不明である。尼寺は僧寺と同様に正中2年(1325)に再興されたが、元禄年中(1688-1704)以降廃絶し、その間の場所も不明である。
その後、明治16年、高野山真言宗浄戒山法花寺が国分寺の北の塔頭の地蔵院の地に再興されるという。
 ※地蔵院の寺名は廃寺となった名田島霊光院に明治元年住僧桂真梁が、防府多々良国分寺塔中の地蔵院を引寺して再建するという。
 周防国分尼寺が再建された地蔵院とは名田島霊光院に引寺された地蔵院と思われる。
 ※地蔵院(法花寺)は国分寺から少し離れた北方にあり、もし、上の見方が正しいとすれば、国分寺の寺域は相当広大であったことが分かる。

参考:周防阿弥陀寺
実見はしていない。

松崎天神・周防国分寺の東方にある。

文治3年(1187)東大寺重源により、東大寺の周防別所として創建され、当時、阿弥陀寺住職は周防国国司の任にあたるという。
建久6年(1195)東大寺大仏殿竣工。
文明16年(1484)焼失するも、大内氏により再興される。
現在に残る岩風呂は重源の設置で、東大寺再建のための木材伐り出しに従事する人夫たちのためという。
華宮山と号し、華厳宗・真言宗御室派兼帯。東大寺別院と称する。本尊は阿弥陀如来。
国宝;鉄宝塔・水晶五輪塔
重文;木造重源坐像、木造金剛力士立像、紙本墨書阿弥陀寺田畠注文並免除状、鉄印(東大寺槌印)
を有する。
現在、仁王門、中門、本堂、湯屋、庫裡、護摩堂、鐘楼、念仏堂、経蔵、収蔵庫などがある。かっては実相院・成就坊など多数の坊舎があったが全て退転し、若干の坊舎跡も残す。
中門は明治4年、東大寺所管の惣門を移設したもの、本堂は享保16年(1731)右田毛利家(毛利家の庶流・長州藩家老職)毛利広政によって再建される。
 周防阿弥陀寺鉄宝塔1:阿弥陀寺ルーフレット より
 周防阿弥陀寺鉄宝塔2:防府市FaceBook より      周防阿弥陀寺水晶五輪:同上
◇鉄宝塔:
製作者は俊乗坊重源 鋳大工草部宿禰是助以下。
鋳鉄製。身舎は胴張りある円塔状の龕であり、舎利を納入せる水晶五輪塔を奉安する。
現在龕の扉、相輪の隅棟飾鎖、風鐸等を逸している。
基壇の四方には金剛界四佛の種子を中央に銘文が鋳出され、当寺の四至、諸堂建立の意趣・壇越並に鋳工の氏名等が詳細に記されている。
◇水晶五輪:
水晶製。地水輪と火風空輪の二つの部分より成り、舎利は水輪内に納置される。
寸法又は法量
〔鉄宝塔〕;総高(相輪とも) 301.3cm、相輪高 140.0cm 屋蓋幅 96.9p 塔身径 61.4p 基台高 42.0p 基台幅 90.2p
〔水晶五輪塔〕:高さ 13.9cm

長門国分寺跡

長府(下関市長府宮の内町)に創建される。明治23年以下に移転、旧境内は宅地や畑に転用され、戦後は全て宅地に変わる。
明治23年廃大隆寺跡の現在地(下関市南部町4-1、旧赤間関市東南部町)に移転。
昭和20年の空襲で本堂などの伽藍を全焼。
2005/04/0追加:
戦前には以下のように多宝塔もしくは宝塔が2基あるような既述がある
「日本社寺大観/寺院篇」京都日出新聞社編、昭和8年(1933) では
記事:「国分寺(下関):金堂、講堂、東堂、西堂、北円堂、愛染明王堂、仁王門、宝塔2基などを具す。」とあり、宝塔2基が存在したと思われる。
「日本に於ける塔の層数と教義との関係」石田茂作、昭和11年 では
「国分寺多宝塔(ニ基)、下関市東南都町、高野山真言宗、現存」とあり、やはり2基の宝塔もしくは多宝塔が存在したものと思われる。
 ※しかしこの宝塔に関する情報は皆無(全く未入手)。
◆2009/05/17追加:
○多宝塔(宝塔)2基の存在について
※上記記事(「日本社寺大観/寺院篇」及び石田茂作)は長府から移転後のしかも戦前の記事と思われる故に、戦前には現国分寺に多宝塔(宝塔)2基があったとも解釈できる。 では、当時存在したと思われる多宝塔(宝塔)2基はどのような塔婆であったのであろうか?
○「新修国分寺の研究」 より
・元和9年(1623)毛利秀元金堂を再興。
・「長州府中国分寺古跡由来書」元禄11年(1698)では元禄年中の状況として以下を記す。
『金堂之本尊丈六薬師如来、・・・、講堂之本尊観音3体、東金堂之本尊釈迦之3尊、西金堂之本尊阿弥陀之3尊、北円堂本尊丈六弥勒之像、宝堂本尊愛染明王、宝塔2基、一宇安置五智如来之像伽藍神之像、一宇安置仏舎利契経、仁王門・・、山門・・・・・ 』
常識的に云えば、上記の状況は元和再興時の国分寺の状況と思われるが、しかしこの状況は創建時の実態の伝承を記したものなのかそれとも元禄期の実態を記したものなのかは検討を要する。
・「豐府史略」平井温故 では、僧寺の宝永7年(1710)の様態は以下と記す。
『国分寺 寺領55石6斗5升 国分寺は府中西北にあり、・・・何の時代よりか・・・纔かに寺中四境1町余に過ぎず、余は皆俗家となり或は田畑となれり・・・ 』
また当時の遺構や遺宝については
『金堂本尊丈六薬師如来・・・、観音3躯講堂にあり、釈迦三尊東金堂にあり、弥陀三尊西金堂にあり、・・・北円堂、・・・宝堂、宝塔2宇、一宇は五智如来と伽藍神を安置す、一宇は仏舎利契経、仁王門・・・、山門・・・・・、鎮守伊勢大明神・八幡大菩薩・春日大明神・天満天神 』
以上の伽藍遺構は常識的には江戸前期に再興・修復された国分寺の状況を示すものと思われる。
しかしこの国分寺伽藍は宝暦10年(1760)頃の「長府図」の伽藍構成とは一致しない。
 宝暦10年頃「長府図」:山門、本堂があり、その間左に護摩堂、弁天池と弁天祠か、右に三重塔(石塔か)、小宇がある程度であろう。
 ※本図に描かれる三重塔は下記の「真言宗諸寺院明細帳」附図 中にある「石宝塔」に符合するものであろう。
・寛政5年(1793)金堂再建
・「真言宗諸寺院明細帳」貞和2年(1802)では
『寺領;70石  寺家;ニ之室 法華寺(無住)  堂宇;本堂 客殿 玄関 廊下 玄関 護摩堂 聖天堂 愛染明王愛宕権現 鎮守 宝蔵 長屋 客寮 ニノ室 観音堂 弁財天 石宝塔・・・ 』
 「真言宗諸寺院明細帳」附図: 「明細帳」の記載も「明細帳附図」も塔・金堂などを並べる古代寺院風な伽藍ではなくて、一般的な地方寺院の典型を示す。即ち江戸後期には木造宝塔(多宝塔)2基はおろか1基も存在せず、金堂・東西金堂・講堂・北円堂などの存在も垣間見られない。
・幕末から明治にかけて、仏教排斥などの動きもあり寺内は荒廃、また寺領上地で、寺院維持が困難となる
明治5年高野山金剛峰寺の管理下に入り、明治23年現在地へ法灯を移す。
昭和20年空襲により建物とともに移した多くの寺宝も焼失する。
・「国分寺の研究」昭和13年の三友国五郎は以下のように描写する。
『国分寺跡とは称すれども、何等遺物の存するものはない。礎石の一つすら発見することもできない。』
 長門国分寺跡景観(昭和2年)
・地下遺構:
金堂跡の発掘では
1、創建期、
2.奈良後期-平安中期(焼亡伽藍の再建整備)、
3.平安中期-鎌倉前期(伽藍荒廃・礎石建物廃絶)、
4.鎌倉後期-室町(金堂始め礎石建物の再興)、
5.戦国期-江戸初期(建物の廃絶)、
6.江戸前期-江戸中期(長府毛利氏による元和の再興)、
7.江戸後期-明治(寛政5年本堂再建・享和2年の寺地整理と再興)の地層などが確認できると云う。
但し、6.元和再興時の地層は削平が激しく、遺構面から元和再興の伽藍を復原することは出来ないと云う。
・塔跡
塔推定位置は古瓦の出土情報から金堂院の西南とされる。塔礎石は原位置では確認されていない。金堂院西南隅では溝状遺構に落ち込んだ状態で礎石1個が出土した。礎石は花崗岩製、幅200cm余・厚さ108cm・上面を削平し径106cm(3尺5寸)の柱座を造出す。
この礎石は現在中門跡地に露出展示されている。(この礎石は塔礎石と推定されていると思われる。)
○多宝塔(宝塔)2基の存在についての結論
※上掲資料(「日本社寺大観/寺院篇」及び「石田茂作 論文」)は長府から移転後のしかも戦前の記事と思われる故に、戦前には現国分寺に多宝塔(宝塔)2基があったとも解釈できるが、多宝塔(宝塔)2基の昭和戦前までの存在の真偽について、上記の諸資料から以下のような結論になるであろう。
1)上掲資料の根拠は元禄11年(1698)「長州府中国分寺古跡由来書」もしくは宝永7年(1710)頃の「豐府史略」(これ自体の根拠も左記の「由来書」であろう)であろう。そして、おそらく現地の調査に基づく記事では無いと思われる。
2)「豐府史略」では三金堂・ニ宝塔などの伽藍の存在を云うが、宝暦10年(1760)頃の「長府図」の伽藍構成とは一致しない。
この長府図では国分寺伽藍は山門・本堂・護摩堂・三重塔(石塔か?)・2,3の小宇しかない。また元和再興の境内は長府図と同程度の境内の大きさと思われ、この近世の境内に三金堂などを備える大伽藍が納まるはずもない。
3)江戸後期の貞和2年(1802)「真言宗諸寺院明細帳」及び「境内図(附図)」では多宝塔2基には全く触れていない。
4)明治中期に現在地に伽藍を移転するが、これは寺門が困窮した結果と思われ、この移転の時に多宝塔2基が建立されたとは考えられない。
以上、上掲資料(「日本社寺大観/寺院篇」及び「石田茂作 論文」)の多宝塔2基現存と云う見解は現地調査の結果ではなく、根源の資料と思われる元禄11年(1698)「長州府中国分寺古跡由来書」を単に引き写しただけのものと推定される。
また、「由来書」の云う江戸初期の伽藍に多宝塔2基があったとする見解もほぼ否定されるべきものであろう。これは、現実の伽藍の姿ではなく、むしろ古の伽藍の言い伝えの記載に類するものであろう。
2022/11/26撮影:
石碑の場所から北にかけた一帯がその境内地跡で、地形上他国の国分寺より寺域が小さく、寺域は方一町程度と推定される。
現地は住宅化し、礎石1個と案内板と石碑の他には何も見るべきものはない。
上述のように、明治中期国分寺は現地を離れるが、移転後の下関市南部町国分寺は未見である。
 長門国分寺跡1    長門国分寺跡2
 長門国分寺礎石1     長門国分寺礎石2

参考:長府功山寺
 ※長門国分寺近くに功山寺がある。
嘉暦2年(1327)臨済宗長福寺として創建される。開基は北条時仲と推定され、開山は虚庵玄寂である。
室町期には大内氏の庇護を得、文明8年(1476)大内政弘によって復興される。
弘治3年(1557)周防大内氏最後の当主大内義長が境内で自害する。その後荒廃する。
慶長7年(1602)長府藩主毛利秀元(智門寺殿功山玄誉大居士)が再興し、曹洞宗に改宗、笑山寺と改号する。
慶安3年(1650)秀元の法号に因み、功山寺と改号する。
文久3年(1863)高杉晋作、当寺で挙兵する。
金山と号す、長府毛利家の菩提寺。
仏殿【国宝】
元応2年(1320)の建立<柱の墨書>で、これは創建年より早い。
方三間堂、入母屋造、屋根檜皮葺。一重裳階付き。典型的な禅宗様仏殿で、鎌倉期の、建立年代の明らかな仏堂である。
山門は安永2年(1773)建立、経蔵(輪蔵)は寛政11年(1799)建立。
2022/11/26撮影:
 長府功山寺総門     長府功山寺山門     長府功山寺地蔵堂
 長府功山寺仏殿1     長府功山寺仏殿2     長府功山寺仏殿3     長府功山寺仏殿4
 長府功山寺仏殿5     長府功山寺仏殿6     長府功山寺仏殿7     長府功山寺仏殿8
 長府功山寺法堂1     長府功山寺法堂2     長府功山寺輪蔵
 長府功山寺毛利家墓所1     長府功山寺毛利家墓所2

阿波国分寺跡

現在は四国15番札所。塔心礎(結晶片岩の環溝式<舞木寺式>)が置かれているが、元は西方の田中 (塔の本)にあったとされる。
心礎の大きさは 3.75m×1.54m×0.75mで、孔の外周径は1m、内周径は52cm、溝巾24cm、深さ10/4cm、排水溝があるともいわれるが良く分からない。
寺域は方2町が想定されると云う。現在は江戸期と思われる重層入母屋造(妻入)の大本堂を残す。大師堂は焼失したままで基壇のみを残す。
国分寺北方約1.5kmに国分尼寺跡がある。
心礎は舞木廃寺式心礎である。
 阿波国分寺心礎 1    同       2    同        3    同        4    同      金堂     阿波国分尼寺跡
2009/09/20追加:
「国分寺址之研究」堀井三友、堀井三友遺著刊行委員会編、昭和31年 より
現寺境内に遺址と見られるものは無く、心礎1個がある。心礎は13尺×5尺5寸の大きさで、径3尺4寸の円柱座を穿ち、その中央部に径1尺8寸の枘を繰出す。もと境外西方の隣接地名西郡入田村塔の本から搬入したと伝える。
元禄2年「四国霊場記」には国分寺図があり、塔址や12個の礎石が並ぶ様子が描かれる。この塔址が「塔の本」かどうかは不明。
寛保元年(1741)徳島藩によって国分寺再興、文政年中堂宇を増築と云う。
 阿波国分寺址平面図     阿波国分寺四国霊場記:下記に同一図を掲載     阿波国分寺心礎実測図
2013/08/15追加:
○「四国遍礼霊場記」(原本は元禄2年「内閣文庫本」寂本原著7巻7冊、東京国立博物館本/元禄2年刊の複製)
  参考;「四国遍礼功徳記 」(赤木文庫本 (横山重).元禄3年刊) より
 国分寺圖:12個の礎石が並ぶのは金堂跡か、塔阯は本堂南方に描かれる。
現在の本堂は東西9間南北8間、・・・薬師堂は東の方にある。・・(本)堂の前には蓮の池があり、堂の真南には仁王門がある。・・・
昔の仏閣とか建物は土佐長曾我部の戦乱によって焼失した。・・・
2013/08/15追加:
○「四国徳島写真帖」徳島県、大正11年
 阿波国分寺:左端下に心礎が写る。

讃岐国分寺跡(特別史跡)

 讃岐国分寺

伊予国分寺塔跡(史蹟)

○2002/12/27撮影:
現在は四国59番札所。59番札所である現寺域の東150mに東塔跡があり巨大な礎石が残される。
塔跡基壇は一辺17.5mと推定(現状は12m×9mの土壇が現存)。
心礎・四天柱・側柱の礎石12個が残存する。
<心礎は一辺約2.5mの三角形で、中央に径1.6mの柱座を造り、その中央に90cmの出枘がある。>
  2015/11/20追加:上の<>内の典拠が不明、推測するに、「径1.6mの柱座」とは「愛媛県史」の「柱座径は5.4尺(1.63m)
  以下と推定」という記載から引用したものと思われる。
  「90cmの出枘」とは全く典拠が分からない。なお、出枘については以下に述べるように、
  心礎の現状は「出枘があったという痕跡は全く見られない。ただ柱座は一部にその痕跡を残す。」というのが実態である。
  したがって、<>内の記載は根拠不明あるいは誤認あるいは誤謬の類と判断せざるを得ない。
その他の礎石も1.5m〜2mを測る巨大な花崗岩製礎石で、摩滅しているもの傾いているものなどがあるが、基本的には繰形突起(柱座)をつくり、出枘を造り出した造作がしてあったものと思われる。
 伊予国分寺塔跡1     心礎及び四天柱礎
 伊予国分寺心礎1     伊予国分寺心礎       伊予国分寺心礎3
 伊予国分寺側柱礎1     伊予国分寺側柱礎2    伊予国分寺四天柱礎
2007/01/06追加:
○「日本建築史要」(付図)より:
 伊予国分寺塔礎石図
2009/09/20追加:
○「国分寺址之研究」堀井三友、堀井三友遺著刊行委員会編、昭和31年 より
塔址には礎石13個を存する。最南の一列および四天柱礎の東北を欠く。今存する四天柱東北礎はもと東第2行北より3列目のものを移したものであり、そしてその旧位置へは東第1行北より第3列目の石を移し、そのまた跡へは傍らにあった自然石を移したものであると云う。
なお東隣の菅氏邸の礎石は南列のものである。
心礎は7尺7寸(2.33m)×5尺4寸(1.63m)、高さ2尺2寸(66cm)で、表面に微かに径5尺6寸(1.85m)の地覆座を有する。なお心礎に比べ他の礎石は細工に工夫を凝らす。
塔一辺は天平尺で34尺(曲尺で33尺3寸2分/10.1m)であろう。
 伊予国分寺塔址実測図
2014/11/03追加:
○「愛媛県史 原始・古代 1」愛媛県、1982 より
 塔跡;昭和43年の発掘調査によれば、17.4m(58尺)四方の方形基壇上に心礎を含む12個の礎石が残存する(原位置は4個で他は移動)。礎石は心礎を中心に、その周囲に四天柱の礎石、さらにその外側四方に各4個の側柱礎石が配されていたことが確認される。
柱間寸法は脇間が3.3m(11尺)、中央間3.6m(12尺)であるから一辺10,2m(34尺)である。
礎石はいずれも花崗岩で、直径70〜90cmの柱座に出枘を作り出した荒打ちの礎石である。高さは54〜106cm程度である。
心礎は出枘円座式で柱座径は、いまひとつ、はっきりしないが、5.4尺以下と推定されている。
 基壇は北、東の側柱の外側約3.6mのところからみられるので、一辺長17.4m(58尺)四方の方形基壇となる。
 版築は基壇平面の規模で掘りさげられており、東側のトレンチ調査では深さ約70cmの間に赤色粘土や砂質土が交互に九層にわたってつき固められていたことが明らかにされている。基壇周囲の地覆石や雨落溝は後世の削平のためか確認されていない。
他の金堂、講堂などは未発見であり、伽藍配置、寺域調査などは今後の課題である。
なお塔跡西方約150mに四国八十八ヵ所五九番札所国分寺がある。
○2015/11/07撮影:
心礎の形式及び法量については、
堀井三友「国分寺址之研究」では「心礎は7尺7寸(2.33m)×5尺4寸(1.63m)、高さ2尺2寸(66cm)で、表面に微かに径5尺6寸 (1.85m)の地覆座を有する。」という。
 一方、「愛媛県史 原始・古代 1」では「昭和四三年の愛媛県教育委員会の発掘調査によれば」、「礎石はいずれも花崗岩で、直径七〇〜九〇センチの柱座に出枘を作り出した荒打ちの礎石である。高さは五四〜一〇六センチ程度である。心礎は出枘円座式で柱座径は、いまひとつ、はっきりしないが、五・四尺以下と推定されている。」といい、 その形式は出枘円座式で柱座径ははっきりしないという。
 さらに、「愛媛県史 原始・古代 1」をベースにしたと思われる「データベース えひめの記憶」の「六 伊予国分寺跡」では「心礎は長径231cm、短径162cm、高さ66cmで柱座や枘のみられない花崗岩の自然石であり柱座径は不明である。」という。
 伊予国分寺塔跡実測図
 しかし、現状、心礎を観察すれば、出枘があったという痕跡は全く見られない。ただ柱座は一部にその痕跡を残す。
従って、堀井三友の云う「表面に微かに径5尺6寸(1.85m)の地覆座を有する。」という表現が正しいと判断できる。但し、径5尺6寸という法量の根拠は不明ではある。
 一方、「愛媛県史」では「出枘円座式」というがその根拠は一体いかなるものであろうか。心礎以外の礎石が「出枘円座式」であるから、心礎もかっては「出枘円座式」であったが摩耗あるいは破壊によって、出枘・柱座は欠失したという推定なのであろうか。
 「データベース えひめの記憶」でいう「柱座や枘のみられない花崗岩の自然石であり柱座径は不明である。」というのも不思議な表現であるが、まず心礎は自然石ということはなく微かに柱座の加工の痕跡は残るものと観察できる。そして、柱座は見られないといいながら、円座径は不明であるとは円座があると認めているのではないだろうか。
 推測するに、心礎以外の礎石には柱座・出枘の造り出しがあるから、心礎にも出枘・柱座の造り出しがあったのかも知れない。しかし後世その出枘・柱座は破壊もしくは火災などの磨滅によって、現状では微かに柱座の痕跡のみを残すのみであるのかも知れない。
 伊予国分寺塔跡11     伊予国分寺塔跡12     心礎及四天柱礎1     心礎及四天柱礎2
 伊予国分寺心礎1      伊予国分寺心礎2      伊予国分寺心礎3     伊予国分寺心礎4
 四天柱礎・南西        四天柱礎・北西        四天柱礎・北東:この礎石は 動いている。下記の2016/06/05注を参照。
 四天柱礎・南東:この礎石は 脇柱礎を移動させたもの。下記の2016/06/05注を参照。
  2016/06/05注:
  下に掲載のように、「伊豫國分寺」鵜久森經峯では以下のように云う。
  「四天柱礎:北東」は大正13年には欠失していたが、昭和初期(昭和7年から昭和13年の間)「四天柱礎・東南」礎石を移す。
  空になった「四天柱礎・東南」位置には「脇柱礎・東側北より3」礎石(側柱礎・東中間南)を移す。
  空になった「脇柱礎・東側北より3」(側柱礎・東中間南)位置にはその北側にあった自然石を持って来たという。
  なお、この自然石は下掲の「伊豫國分寺塔址實測圖」に描かれるものであろう。
南側側柱礎はすべて欠失するので、西側中央間(中間)南側の礎石から、側柱礎石は時計回りに掲載する。
なお、東側の菅氏邸に南側柱礎があるとの情報があるが、未見のため、真偽は不明。
  ※管氏邸礎石については下記の「伊豫國分寺」を参照。
 側柱礎・西中間南     側柱礎・西中間北     側柱礎・北西隅     側柱礎・北中間西     側柱礎・北中間東
 側柱礎・北東隅        側柱礎・東中間北     側柱礎・東中間南: 脇柱礎ではなく自然石。上記の2016/06/05注を参照。
西側の民家に庭に礎石と思われる大石が2個ある。
 推定礎石1     推定礎石2の1     推定礎石2の2
国分寺は戦乱で数次回禄する。元禄2年(1689)の寂本著「四國禮霊場記」には「茅葺の小堂が寂しく建つのみ」と記するという。現在の姿に復興するのは江戸後期からであった。現本堂は寛政元年(1789)再建 。
 伊予国分寺本堂     伊予国分寺大師堂     伊予国分寺鐘楼
2016/06/05追加:
○「伊豫國分寺」鵜久森經峯(「国分寺の研究(下)」角田文衛編、昭和13年(1938)) より
伊予国分寺の遺跡については、大正13年発行「愛媛県史蹟名勝天然記念物調査報告」(水木要太郎)の中で、次のように述べられる。
国分僧寺の昔を偲ぶ唯一の遺跡は言うまでもなく塔跡である。
 伊豫國分寺塔址實測圖:単位尺
 伊豫國分寺塔址礎石實測圖:1は南側西より2番目、2は東南隅、3は西北隅、4は西南隅
  :塔基壇は、南においては道路開削の為脇柱礎の部分は全部削られ、西・北・東の三方は脇柱礎ぎりぎり迄削られる。礎石は南側1列4個と東北隅四天柱礎1個が亡失し、結果心礎を含んで12個が基壇上にある。礎石は傾斜あるいは半ば転倒しているものもあるが、概ね原位置の儘と認められる。柱間を計測するに、概ね中央間12尺、脇間10尺5寸と判断される。つまり塔一辺は33尺の3間3面の塔であったと判明する。
礎石の実測値は以下の通り。
位置 長径 短径 高さ 柱座径 同高 出枘径 同高 狭間
心柱 7.7尺 5.4尺 2.2尺 - - - - -
四天柱礎・西北 4.0尺 3.5尺 1.8尺 2.9尺 0.2尺 0.8尺 0.1尺 -
四天柱礎・東南 5.0 4.0 2.0 3.0 0.2 - - -
四天柱礎・西南 3.5 3.0 2.3 3.0 0.3 - - -
脇柱礎・西北 5.0 3.0 2.5 2.3 0.1 - - 一方にあり
脇柱礎・北側西より2 5.8 4.3 2,3 2.3 0.1 0.8 0.2 一方にあり
脇柱礎・北側西より3 7.0 4.0 2.8 2.3 0.05 - - -
脇柱礎・東北 6.0 5.0 1.8 - - 0.7 0.1 -
脇柱礎・東側北より2 5.5 4.0 1.5 - - 0.8 0.05 -
10 脇柱礎・東側北より3 4.5 3.8 1.6 - - 0.8 0.1 -
11 脇柱礎・西側南より2 6.0 3.5 3.5 2.6 0.1 1・0 0.3 二方にあり
12 脇柱礎・西側南より3 5.0 4.0 2.5 2.0 0.18 0.8 0.08 -
13 菅邸より出土 6.0 5.2 2.6 3.0 * * * *

※心礎には明確な柱座及び出枘は認められない。心礎は自然石を用いる。
※残存する12個の礎石中、近年(昭和13年の近年)その位置を移動した礎石があることには注意が必要である。
昭和7年鵜久森が調査した時は「脇柱礎・東側北より3」と「四天柱礎・東南」は南側溝に半ば転落していたのであるが、その後村人達が道普請を行うのに際し、「脇柱礎・東側北より3」は「四天柱礎・東南」の位置に移転し、「四天柱礎・東南」の四天柱礎は亡失していた「四天柱礎・東北」に補充したのである。その結果「脇柱礎・東側北より3」は無くなって、その北側にあった自然石を持ってきたのである。
また、最近塔跡東2間ほど離れた菅氏邸から礎石1個を掘り出したが、それは忘失している南側脇柱礎の一つであろう。

土佐国分寺跡(史蹟)

史跡・現在は四国29番札所。土塁と塔心礎を残す。心礎は庭石に転用され、立てて置かれる。
○「日本の木造塔跡」:1.2×1.04m×70cmの大きさで、径70×6cmの円穴を彫り、その中央に径20×6cmの孔を穿つ。
この心礎は現国分寺庭園にあるが、土佐国分寺塔心礎であるとするには疑問がある。なぜならば、この心礎形式は白鳳期の心礎の形式であり、そうだとするとこの心礎は 天平期の創建である国分寺の塔心礎ではないということになる。
おそらくは庭園の造作時に付近から持ち込まれたものであろう。あるいは国分寺心礎であるとすれば、それは白鳳期創建寺院が国分寺に転用されたものの可能性が考えられる。

2003/12/21撮影:
国分寺には以下の遺構、遺物が残る。
 本堂(重文、5間×6間、単層四注造り、杮葺)は永禄元年( 1558)長宗我部元親の再興。
 仏像としては、2体の木造薬師如来立像(平安期後期・鎌倉期末期の2体・ともに重文)を残す。
 さらに平安前期の梵鐘(重文)も残る。
 土佐国分寺庭園所在心礎1       同         2      同         3      同         4
 土佐国分寺本堂1
2009/09/20追加:
○「国分寺址之研究」堀井三友、堀井三友遺著刊行委員会編、昭和31年 より
今の金光明四天王護国寺は南面し、仁王楼門を開き、正面に金堂、その西脇に大師堂、東に行基堂・僧舎などを構える。
心礎は僧舎の前の庭石として置かれる。大きさは4尺6寸×3尺3寸5分、表面に径2尺2寸深さ1寸3分の円孔を分ち、その中央に径6寸5分深さ1寸7分の円孔(舎利孔)を穿つ。外円孔の底部は外側に向けて傾斜し、一筋の溝が周辺を穿って湿気抜きに便している。

2014/10/04撮影:
○土佐国分寺心礎:心礎は2段式で、径69cm深さ5cmの柱穴を彫り、その中心に径20cm深さ6cmの舎利孔もしくは枘穴を穿つ。舎利孔もしくは枘穴は椀形を呈する。
 土佐国分寺心礎11     土佐国分寺心礎12     土佐国分寺心礎13     土佐国分寺心礎14     土佐国分寺心礎15
 土佐国分寺心礎16     土佐国分寺心礎17     土佐国分寺心礎18     土佐国分寺心礎19     土佐国分寺心礎20
土佐国分寺現況:
寺伝では天平13年(741)行基の開創、弘仁6年(815)弘法大師が毘沙門天像を刻み奥の院に安置、真言宗に転宗という。
天平勝宝8年(756)には土佐国分寺の記事が見え(「続日本紀」)、この頃には土佐国分寺は建立されていたと推定される。
創建時の伽藍配置は具体的な遺構が発見されず、はっきりしないが、寺域を画する土塁が現存し、古瓦が出土し、本寺が古代国分寺でもあったと推定される。
国分寺は幾多の兵火で焼失するが、永禄元年(1558)長宗我部国親、元親によって金堂が再建される。
山門(仁王門):明暦元年(1655)土佐藩2代藩主山内忠義の寄進による。
 土佐国分寺仁王門
鐘楼:寛永11年(1634)改築という。
 土佐国分寺鐘楼
開山堂: 嘉永2年(1849)改築。
 土佐国分寺開山堂
金堂:重文、2014年屋根葺替竣工。
 土佐国分寺本堂2     土佐国分寺本堂3     土佐国分寺本堂4     土佐国分寺本堂5     土佐国分寺本堂6
 土佐国分寺本堂7     土佐国分寺本堂8     土佐国分寺本堂9     土佐国分寺本堂10
大師堂:寛永11年(1634)創建され、文化2年(1805)再建。
 土佐国分寺大師堂1     土佐国分寺大師堂2     土佐国分寺大師堂3
 土佐国分寺本坊門
 土佐国分寺客殿1     土佐国分寺客殿2:昭和53年改築、本写真の土塀中が庭園であり、心礎が置かれる。
 土佐国分寺光明殿:平成7年竣工。
 土佐国分寺土塁
2021/11/10追加:
 土佐国分寺については、2020年までに、多くの発掘調査が行われた模様である。
2016年には南国市教育委員会がプレス発表、史跡の指定範囲より約65m北に古代の寺域の北限を示すと見られる溝2本が発見されるという。
2021/12/12にもプレス発表がなされ、新聞では「土佐国分寺の寺域3倍か 南国市 周辺に5棟の建物跡」との見出しで紹介があった。主要伽藍の南西側で、8世紀前後とみられる建物群跡などが発見されたということである。
 現状、現在の国分寺を含む南北約136m、東西約150mが国の史跡指定であるが、2016年から寺域について調査し、古代の北門や、寺の主要施設を囲んでいた築地塀の痕跡、溝などが確認され、塀に囲まれた伽藍地は南北約198m、東西約150mとなり、従来の伽藍地の推定が覆ることになる模様である。
 2017年現地説明会資料:現説資料の一部としてWebに掲載、それを転載する。

筑前国分寺跡(史蹟)

塔跡(基壇:一辺 17.4mの二重基壇)は現国分寺の東に残り、土壇は高さ2m(1.5m?)、心礎・四天柱礎・側柱礎が残る。
心礎・東南四天柱礎・東北隅側柱礎は原位置を保つとされる。柱間は等隔の3mを測る。
心礎は径約2m余の花崗岩自然石で、径約110cm、深さ約21cmの孔を穿つ。他の礎石も全て円形の柱座を造り出す。
伽藍配置は中央に金堂、北に講堂、南東に塔、南に中門、南門を配したとされる。現在は史蹟整備がなされる。
本尊伝薬師如来坐像は重文指定。
2006/11/03追加「各地の国分寺」:
塔跡は上成・下成からなる二重基壇で、上成基壇は一辺55尺(16.7m)、下成基壇は1.5尺(45cm)を測る。
塔平面は一辺30尺(9m)で、中央間・脇間とも等間隔の柱間を作る。創建当時は東西の階段が付設され、9世紀初頭頃には4面に階段が揃ったと推定される。
 筑前国分寺伽藍概要図
2009/09/20追加:
「国分寺址之研究」堀井三友、堀井三友遺著刊行委員会編、昭和31年 より
現国分寺(真言宗御室派)は本堂と庫裏のみを有する小寺である。庫裏の前に巨大な礎石1個がある。金堂の礎石と伝え、この付近が金堂跡であろう。塔址は金堂跡東南に数間離れてある。
塔址土壇は方約10間高さ5,6尺で、土壇上に心礎・四天柱礎1・側礎4の計5個の礎石を残す。
心礎は径8尺の大きさで、表面に径3尺6寸5分深さ7寸許の円孔を穿つ。四天柱礎は径4尺許。側礎は何れも柱座を造り出す。これらのうち心礎・四天柱礎・西南隅側礎は原位置を保ち、そこから一辺29尺4寸余(一辺30尺)、柱間は等間で1間10尺と計測される。
なおその他の礎石が、位置を移動して、付近で散見される。 (西北方田圃の中に1個、南にある天満宮の鳥居の礎として2個、鳥居の西方の田圃の中に2個、本堂の東北の毘沙門堂の付近に2個)
 筑前国分寺址実測図     筑前国分寺塔址実測図
2010/03/29追加:
・「史跡 筑前国分寺跡」太宰府市教育委員会、平成11年 より
 筑前国分寺塔跡全景
・「筑前国分寺 昭和52年度発掘調査報告」福岡県教育委員会、昭和53年 より
 筑前国分寺跡地形図
金堂跡:昭和35年及び49年調査、後世の攪乱が著しく、礎石はもとより、根石も確認できない状態であった。
講堂跡:昭和35年に一部調査。東西114尺(19間)、南北66尺(11間)とされる。
・「筑前国分寺 昭和51年度発掘調査報告」福岡県教育委員会、昭和52年 より
塔跡遺構
塔平面は方30尺、柱間は等間隔で1間10尺とする。心礎・東南四天柱礎・東北隅側柱礎が原位置を保つ。西北・西南の側柱礎が残るが両者とも楔を入れられ、半欠し、原位置を動く。
心礎は花崗岩で、大きさは2・0×2.75m、中央に径約110cm、深さ21cnの円穴を彫る。
基壇は上成、下成から成る二重基壇であり、上成基壇は一辺58尺を測り、下成基壇は1.5尺(これは基壇幅)を測る。上成化粧基壇は花崗岩自然石積みで、創建時のものではなく、9世紀前半に石階とともに造作されたものと判明した。
 筑前国分寺塔跡実測図     心礎付近断面図
 塔跡全景(南から)     塔跡全景(北から)     塔跡全景(西から)     塔跡全景(東から)
 南側下成基壇(西から)     北側下成基壇(北から)
 心礎・東南四天柱礎     東北隅礎石     西南隅環状石列     西側柱礎根石・環状石列
 南側階段(南から)     南側階段(埋土除去)
なお、国分寺西約200mには推定国分尼手跡があり、水田中に礎石が点在する。
2011/04/24追加:201104/13撮影:
 筑前国分寺跡現況:現国分寺と復原塔基壇が残る。写真左に2基の擬二重塔形式納骨堂が写る。 (→九州諸国の擬塔婆形式納骨堂
 筑前国分寺塔跡1     筑前国分寺塔跡2
 筑前国分寺心礎1     筑前国分寺心礎2     筑前国分寺心礎3     筑前国分寺心礎4
 筑前国分寺塔礎石     国分寺転落塔礎石     国分寺復原塔瓦積基壇
2011/04/24追加:201104/13撮影:
筑前国分寺塔復原模型
太宰府市文化ふれあい館で屋外展示。
高さ5.4m (基壇の高さも含むと思われる)。スケール1/10。模型素材はFRP(強化プラスチック)。彩色は古色仕上。
 筑前国分寺塔復原模型1     筑前国分寺塔復原模型2     筑前国分寺塔復原模型3     筑前国分寺塔復原模型4
 筑前国分寺塔復原模型5     筑前国分寺塔復原模型6     筑前国分寺塔復原模型7

筑後国分寺跡:久留米市国分町

筑後国分寺跡地は現在、日吉社(山王権現)境内及び住宅・道路などに変貌する。
そして、発掘調査などにより、現在では塔跡及び講堂跡が知られるのみである。
塔跡は、山王権現境内南の道路を隔てたところに「崩壊した土壇(僅かな高まり)」として識別が可能である。
はっきり礎石と識別できるものは日吉社境内に、講堂礎石が僅かに1個(原位置)残存する。
(その他礎石と思われる石が散在するも、確証は得られない。)
2009/09/20追加:
○「国分寺址之研究」堀井三友、堀井三友遺著刊行委員会編、昭和31年 より
日吉神社境内および付近の小字釈迦堂・政所から古瓦の出土を見る。残念ながら今遺址として認めるべきものは殆どない。
日吉神社境内は付近より3尺ほど高く、拝殿・本殿の中間に5個、台石や社殿の礎石で4個、北隅に横たわる1個の礎石が残る。
2010/03/29追加:
○「筑後国分寺-久留米市国分町所在推定筑後国分寺跡の調査-」福岡県文化財調査報告第44集、昭和45年 より
昭和44年公民館建設に伴い、事前発掘調査を実施。発掘は時間の制約があり、極めて小規模なトレンチ調査に止まる。結論からいえば、特に顕著な遺構の発見はないと云う結果に終る。そのほかは、境内に残る礎石のうちで原位置の可能性の高い「国分共有財産碑」北側の礎石を実測する。
 日吉神社境内図     碑北側礎石実測図:原位置を保つと推定される。金堂か講堂の礎石であろうと思われる。
2012/04/22追加:
○「久留米市郷土の文化財」より
「道路を挟んだ南側の釈迦堂が一段高くなっており、一辺約9mの建物規模を推測する塔基壇の一部が発見されている」
「塔跡は日吉神社から道路を隔てた南側に位置し、周囲より一段高なる。礎石は遺存せず、礎石抜取り穴5箇所(心礎・北東四天柱・東側柱)を検出する。建物規模は中央間3.6m、脇間 2.7mと推定(塔一辺は9m)される。」
2012/05/05追加:
○「筑後」櫻井康治(「新修国分寺の研究」角田文衞編、吉川弘文館, 1986-1997 所収) より
国分寺跡は久留米市国分町に所在する。国分寺遺構に関しては、近世の多くの地誌類が国分寺は国分村山王社境内であるとの認識を示す。
昭和52年よりこの地の発掘調査が断続的に実施され、講堂跡・塔跡・築地跡などが確認され、現今では伽藍の推定が可能となる。
山王社境内の北西隅に唯一の礎石が遺るが、これを基準に発掘が行われ、その結果版築基壇と14個の礎石抜き取り穴が確認される。これにより7×4間の建物が復元され、講堂跡とされた。
塔跡は講堂跡の東南約80mの県道沿いの南に位置する。(版築の基壇の上に釈迦堂がある。)発掘調査により、基壇上に5個の礎石抜取り穴を検出する。その配置状況から、心礎・東北四天柱・東側柱抜き取り穴と想定され、塔一辺は約9m、中央間は約3.6m、脇間2.7mと計測される。
 筑後国分寺塔跡実測図
 筑後国分寺塔跡全景     筑後国分寺心礎抜取穴     筑後国分寺四天柱抜取穴     筑後国分寺側柱抜取穴
○2012/05/20撮影:
 筑後国分寺塔跡土壇1    筑後国分寺塔跡土壇2:左に写る小祠は釈迦堂
 筑後国分寺講堂礎石      筑後国分寺講堂跡
現存国分寺(宮の陣国分寺)
現国分寺(天台宗)は護国山と号し、国分寺跡とは別の地(久留米市宮ノ陣)に小寺として存続する。
○「日本歴史地名大系第41巻・福岡県の地名」平凡社、2004年
中世に現地(宮ノ陣)に移転・再興されたものであろう。足利尊氏寺領寄進と伝える。
その後、再度荒廃するも、慶長年中、柳川藩主田中吉政により再興される。
明治2年神仏分離により、高良山明静院(命静院)住持が当寺に入る。
その時高良山明静院石造仁王像、元三大師、大聖歓喜天も遷座すると云う。
 筑後現存国分寺山門
 筑後現存国分寺仁王像:左右にあるやや稚拙な石造仁王像が高良山より遷座したものであろう。
 筑後現存国分寺本堂:RC造、境内に「がん三大師御宝前」の赤い幟が多くあるが、高良山より遷座した元三大師像を指すのであろうか。
 筑後現存国分寺大聖歓喜天:大聖歓喜天の堂宇がある。高良山より遷座した大聖歓喜天を祀るのであろうか。その他薬師堂もある。
 地藏来迎図板碑:(写真なし)明治の神仏分離で高良山愛宕権現奥の院付近から遷すと云う。正平22年(1367)の年紀あり。
  ↓
2025/07/09追加:
○「高良山の仏教美術」九州歴史資料館、2025 より<筑後高良山中>
 本著により、宮の陣国分寺には、次のような高良山什宝(主として明静院什宝)が遷され、現存することが判明する。
  ※大聖歓喜天の遷座については記載が全くない。
◆高良山明静院石造仁王像: 
 現在宮の陣国分寺門前の安置される。阿形像の像高は183cm、吽形像のそれは182cm。
両像とも背面に印刻があり、それによれば、文化5年(1808)石工の「秦幸市則高」と「秦育次則連」制作であり、「当院廿八世現住/法印恵光代」ともあり、廿八世法印恵光とは当時の明静院住職であることが分かる。
神仏分離の処置によって「破壊され穴の埋められた」とも「谷底に落とされた」とも伝えるが、国分寺の記録では、明治16年国分寺僧侶が保護を発意し、数年の後に谷底から引き上げ、修復して国分寺門前に安置したという。
国分寺は、何度か触れたように、明治の神仏判然の処置で明静院31世速成院霊徹が明静院廃寺後に身を寄せた寺院である。彼は明静院から多くの什宝を国分寺にもたらした僧侶である。この仁王像を国分寺に迎えたのは彼の後を継いだ国分寺住持・霊乗であった。
 明静院部分図:(ホ)筑後高良山略図の部分図である。
   中央に描かれるのが明静院であるが、その門前に仁王像が描かれる。この仁王像は宮の陣国分寺に現存する。
 ○GooogleMap より
 国分寺仁王像     国分寺吽形仁王尊     国分寺阿形仁王尊
◆(タ)地蔵来迎図板碑:宮の陣国分寺蔵
 総高100cm、自然石の表面に地蔵菩薩を線刻する。
表面には次の印刻がある。
           沙門長弁敬白
  地 蔵 菩 薩 の 線 刻
     正平二十ニ未丁九月日  彫手春助   ※正平22年は1367年
この板碑は明治初年の神仏分離の処置により、高良山愛宕祠(愛宕山大権現)の奥の院から国分寺に移されたものであることは「筑後将士軍談」「太宰府管内志」等の記事から、その通りなのであろう。なお「青山堂筆記」では、はじめ山麓の祗園山古墳に建てられていたものを、元文年中(1736-41)愛宕山に移したという。
 なお、現在は国分寺本堂内の祀られるという。
 地蔵来迎図板碑拓本
 ※地蔵来迎図板碑は本堂内の安置とのことで、未見であった。
 今般「久留米市中川氏」より写真のご提供があったので掲載させて頂く。
  ◎地蔵来迎図板碑:久留米市中川氏ご提供
◆(ト)板地着色高良太公図:宮の陣国分寺蔵
 墨書銘から寛永4年(1627)に「玉垂宮例請御正体」として制作されたものと分かる。
玉垂宮の例講は(幕末の記録であるが)毎月27日の斎行され、本社から御正体(御影)を運び出し、山内寺院に奉安し、法会を執行し、その後本社に奉還させる月並み行事であった。正月は座主坊(御井寺)、2月は明静院、3月以降は山内寺院の臈次(僧侶の経験年数)順に受け持ち、12月は目代である厨家が担当という。
 板地着色高良太公図
◆(ヲ)木造慈恵大師座像:宮の陣国分寺蔵
 本堂に安置(秘仏)、像高19.3cm。鎌倉〜南北朝期の作と推定。慈恵大師は良源、元三大師。
おそらく明静院から遷されたものであろう。
 木造慈恵大師座像
◆(ワ)木造慈恵大師座像:宮の陣国分寺蔵
 本堂の厨子中に安置(秘仏)、像高39.8cm、江戸中期(寛文年中?)のものと推定。
胎内墨書:奉造立 筑後州明静院本尊慈恵大 とある。(明静院本尊と判明)年紀は決失し判読できず。
 明静院本尊木造慈恵大師座像
◆(カ)木造鬼大師座像:宮の陣国分寺蔵
 元三大師の異形の一つである鬼大師である。像高20.0cm。
彫刻では武蔵深大寺・山城廬山寺・近江坂本西教寺・豊後文殊仙寺など数か寺で見られる程度の珍しい像である。
国分寺にはこの像の由来を示す「彫降魔大師尊像記」(写真の掲載もあるがそれは割愛する)なる記録も伝来する。本記録より宝永5年(1705)造立と知れる。
 木造鬼大師座像
◆(ヨ)元三大師秘密具本尊:宮の陣国分寺蔵
 法量3幅とも100cm内外×40cm内外、軸装。明和元年(1764)制作。
箱蓋墨書:秘密具本尊 高良山
              左宝蓮   明和3年申年9月3日
    元三大師秘密具本尊 中宝珠   高良山53世座主権僧正寂信
              右宝輪
 元三大師秘密具本尊
 

肥前国分寺跡

○「X」氏情報:
現国分寺(無住)と道路をはさんだ南側に金堂の土壇が現存し、さらにその東南約40mに高さ2mの細長い土壇が残り、これが塔跡土壇の一部である 。
肥前国分寺の勢力は鎌倉時代にかなり広範囲に及んでいた(近隣寺社の文書)と伝えるも、近世には急速に衰微したとされる。
 肥前国分寺塔跡 ・・・X氏ご提供画像
2009/09/20追加:
○「国分寺址之研究」堀井三友、堀井三友遺著刊行委員会編、昭和31年 より
現国分寺門内の西側の藪地の土壇上には大きな礎石の顚倒したものがあるが、ここは寛文年中に再建した本堂(明治26年倒壊)の址と云う。現本堂はこの土壇の北方約20間にある。寺域の西北隅に方10間近くの壕を有する土壇(今は墓地)があり、ここに礎石1個がある。
その他本堂南方に2個、付近の道路・墓地・田の溝にも数個ある。また早川氏邸内、国分寺手水鉢、庫裏の庭石などにも使用され、中には円柱座の認められるものもある。
 肥前国分寺址平面図
2012/01/20追加
○「肥前国分寺跡」大和町教委、1976 より
 肥前国分寺跡遺構配置図:国分寺前十字路すぐ南が金堂跡であり、北すぐが講堂推定地である。塔跡は金堂東南で検出される。
 肥前国分寺跡推定伽藍配置
○「肥前国分寺跡第4次調査」大和町教委、1990 より
 肥前国分寺跡塔跡発掘図:礎石は遺存せず。一辺約25m高さ1.4mの盛土基壇と推定される。
2012/05/05追加:
○「肥前」高島忠平(「新修国分寺の研究」角田文衞編、吉川弘文館, 1986-1997 所収) より
講堂跡:昭和49・50年の発掘調査で講堂跡と推定される遺構を検出する。
金堂跡:土壇状の高まりが残り、発掘調査によって、版築の土壇・礎石及び礎石抜取穴を検出する。建物は9×4間に復元可能で、金堂跡と推定される。
塔跡:金堂土壇の東南約40mに幅約3m長さ約8m高さ約2mの東西に長い土壇がある。これを中心に発掘調査が行われ、25.4×25.9mの掘り込地業を検出する。塔とすれば異様に大きな規模であるが、金堂・講堂との位置関係で塔の遺構と考えざるを得ない。
そのほか、西門と推定される遺構、寺域を画する遺構などが出土する。
今般の発掘で6個また既に現国分寺などに動かされている礎石を含め11個を確認する。(その内の9個の礎石の写真と実測図の記載がある。)
推定される伽藍配置は上掲の肥前国分寺跡推定伽藍配置のとおりである。
2013/09/18追加:
○「佐賀県史蹟名勝天然紀念物調査報告. 第2輯」佐賀県史蹟名勝天然記念物調査会、(佐賀県, 昭和9年/1934)  より
現在国分寺跡に一草堂あり、・・・講堂の位置に相当す、・・・・金堂跡と思わるる處に寛文年間佐賀藩士成富茂安等の起請により堂宇を建立せしも明治26年の大暴風雨に破壊せられたる・・・翌27年・・北方約20間の所に建立せられたるもの即ち現在の国分寺なり・・・・
 寛文年中国分寺堂塔配置図:※塔とあるが推測であり、寛文年中に塔が建立されたとは思われない。
イ)金堂跡:現在の国分寺の門を入りたる所に神社あり、その東方竹薮の中に1個の礎石あり又北方の畑の中に大なる礎石1個を存す・・・確証は得難きも・・・僅かに金堂の跡 と思わる
ロ)講堂跡:金堂の跡より北方約20間の位置にあり即ち現在国分寺のあるところなり・・・
ハ)塔の跡:・・・(何等)証すべきものなし、只他国の国分寺の配置より推察するの外なし
ニ)その他:・・岸川氏邸に礎石1個あり・・・邸の西側道を隔てたる所に礎石1個あると称せしも、今は之を存せす・・・岸川氏所有畑地の一角に堤防(長さ5間高さ5尺巾7尺)あり、その西側に道を隔てて東西及び南方に竹林の繁茂せる一帯の丘地あり・・これは自然の堆積になるもの・・・
又岸川氏の邸宅は以前国分寺の高さにありしものを後世切り下げて宅地畑地となせしと伝ふる・・・・
 肥前国分寺跡現況図
2013/09/18追加:
○「佐賀県史蹟名勝天然紀念物調査報告 第6輯」佐賀県、1940 より
 肥前国分寺寺域推定図:下の記号と礎石番号は本図のそれに照合する。
推定寺域内の現状と土壇:
Aは岸川邸、数十年前は1間位高地であったが地下げをして宅地とする。礎石6はこの高台にあったと云う。鬼瓦なども出土する。
BCは現状高さ8尺巾7尺の土塁状であるが、地下げの結果残ったものである。こここからは古瓦が出土する。地下げの時、高地はコンクリートのように強固であったと云う、B、Cは同じ土壇であったのは間違いないであろう。
 ※現在の知見ではこの付近が塔跡とほぼ断定される。
Dは元福地氏の邸跡で、昭和12年焼失する。北方の土塁から多くの布目瓦が出土する。
Eは土塁であり、南北27間高さ5尺、これは国分寺の東至ではあるまいか。
Fは竹薮で、以前は古瓦が堆積し、開墾されずと云う。
Gはやはり土塁であるが、その性格は良く分からない。H地点は小高い竹薮で古瓦が多い。Iは藪観音と称する小高い場所である。
J地点は登り坂で古瓦(就中観音祠前や淡島祠前)だ多く出土する。
 肥前国分寺現堂宇
 ※昭和の後期に薬師堂は老朽化のため取壊し、本尊などは曹洞宗宗龍寺(佐賀市水ヶ江1丁目1−13)に遷座と云う。
 国分寺は近世宗龍寺末寺と云う。
礎石の残存は次の通り。
01)3×2.5尺高1.2尺、柱座径1.1尺、現堂宇の前西、柱座羅災害磨耗。
02)4×3尺高2.5尺、柱座径2.1尺、現堂宇の手水鉢として穴を穿孔、もとはJの淡島祠前にあり、柱座羅災害磨耗。
 国分寺跡2号礎石
03)3.2×2.7尺高1.3尺、柱座径2.1尺、庫裏南方の庭にあり、立ててある。他の石とセメントで結合。
 国分寺跡3号礎石
04)6×5.4尺高3尺、柱座径2.5尺、庫裏前の庭南面、柱座の高さは甚だ薄い。
 国分寺跡4号礎石
05)5×5.4尺高4尺、柱座径不明、竹薮中にあり、元は2号と相対する、不正形で礎石かどうかは不明。
06)5×3.2尺高1.7尺、柱座径2.5尺、岸川氏邸西浦口にあり、柱座明瞭、割りかけの穴あり。
 国分寺跡6号礎石
07)法量は全て不明、岸川氏邸北土壇にあり、割られた残欠である。
08)6.5×3尺高2尺、柱座径不明、国分寺前十字路の東南隅、アミダ石、割られている。
09)5×3尺高1.2尺、柱座径2.5尺、国分寺前十字路の東南隅向かって右、半裁されている。
 国分寺跡8・9号礎石:向かって左が8号
10)3×3尺高不明、柱座径不明、6号に西に並ぶ。
11)7×2.8尺高1尺、柱座径今不明、地蔵前の石橋に利用する、柱座は欠き取られる。
その外、今鍵尼村養父社の鳥居の台石に転用されたものあり。寺前の十字路付近に多くの礎石が残存するも、皆打ち割って石垣その他建築資材に使用したと云う。
○2013/09/18追加:
 現在、西門跡と外溝、西南隅の築地痕跡、東辺で築地と外溝、南辺では外溝が検出されていて、寺域は方2町(1辺216m)と推測される。
伽藍は金堂の北に講堂、南東方には塔を配置、中門に取り付く回廊がこれらの建物を取り囲んでいたと推測される。
塔跡は全国の国分寺のうち最大規模の版築基壇が確認されている。
 岸川純一氏宅の北側、十字路の土壇に講堂が建ち、志田俊吉氏宅西側に残る土壇一帯が金堂跡ではないかと推定される。
なお、十字路基壇は西側の西村一郎氏宅裏の土壇に至る約40mにわたり、1mの版築が見られる。志田氏宅西側の基壇は版築の跡が歴然と残る。また、中の道の南端にある地蔵尊の石碑に「国分寺道北之正面」、裏面に 「享保6年(1721)国分村平松源右ェ門、小川村□□□□」の文字が刻まれる。
○2013/09/22撮影:
肥前国分寺跡は相当に荒れ、地域住民に聞き取りを行うも、殆どの住民は無関心と思われ、詳細は明らかにならず。
 現地説明板遺構配置図:地上に残るものは塔跡の一部土壇、金堂跡の土壇と推定される土壇の残欠、散乱する数個の礎石様の大石のみであり、近世の国分寺の本堂・庫裏も5,6年前に退転し、今は更地を残すのみである。 (この写真は上掲の「肥前国分寺跡遺構配置図」と同一のもの)
 肥前国分寺塔跡土壇残欠1    肥前国分寺塔跡土壇残欠2    肥前国分寺塔跡土壇残欠3    肥前国分寺塔跡土壇残欠4
以上の写真(何れも南から撮影)に写る土塁様の遺構が塔土壇残欠である。
上に掲載の昭和9年「肥前国分寺寺域推定図」のBの土壇、直上に掲載の「現地説明板遺構配置図」の塔跡の中央西少し下に表される土壇であろう。残念ながら昭和9年「肥前国分寺寺域推定図」のCの土壇は消滅しているものと思われる。
また、上に掲載の「肥前国分寺跡塔跡発掘図」の残存土壇が写真に写る土壇である。
 肥前国分寺金堂跡1:岸川氏邸(今、邸宅の有無は未確認)で金堂があったと判明する。北東より撮影。中央に写るのが「9、9号礎石」。
 肥前国分寺金堂跡2:北側より撮影、向かって右が岸川氏邸。
 金堂東方土塁:奥の藪が土塁である。上に掲載の昭和9年「肥前国分寺寺域推定図」のDに相当か。これが何かはよく分からない。
 国分寺推定礎石1:上に掲載の「国分寺跡8・9号礎石」(向かって左が8号)礎石である。ただし接近して確認することを怠り、 このブッシュに埋もれた写真しかない。なお、写真に写る場所は昭和9年「肥前国分寺寺域推定図」の8、9の位置である。
 国分寺推定礎石2:上に掲載の「国分寺跡2号礎石」である。
 国分寺推定礎石3:礎石かどうかの確証はない。文字がはっきり判読出来ないが「三界萬霊塔」か?。
 国分寺推定礎石4:上に掲載の「国分寺跡4号礎石」と思われる。
 国分寺推定礎石5:礎石かどうかの確証はない。西から撮影し、上部に半分写る祠が淡島社の祠であろう。
 国分寺推定礎石6:礎石かどうかの確証はない。
 近世国分寺堂宇跡地:聞き取りによれば、5,6年前に本堂・庫裏を取壊すと云う。
 近世国分寺の遺物か:ただし、向かって右端に写るのは確証はないが礎石(◆国分寺推定礎石7)である可能性が高い。
 近世国分寺本堂礎石:聞き取りではこれが近世国分寺礎石と云う。
 中の道南端の地蔵尊:ここに年紀などの入った石碑があるはずであるが、見当たらず。

肥後国分寺跡

塔心礎・礎石1個が現存する。
心礎の長径は2.7m、高さ1,2m、径76×9.6cmの円穴を持つ。(長径2,6m短径2,4m高さ1,8mとの記事もある。)
 ※「水前寺廃寺の塔礎石群」小林久雄、松本雅明、三島格(「熊本史学」第十二号、昭和32年 所収)の注に記載資料 より:
   大きさは9尺×6尺6寸、径2尺5寸4分深さ3寸2分の刳り込みを有す。
心礎は現在地より西側にあったが、明治期に熊野権現の境内に移されたと云う。また礎石が1箇、心礎南すぐ猿田彦碑の根元に残存する。
金堂跡には中世、曹洞宗国分寺が再興される。周辺には「門前屋敷」「伽藍」などの地名が残ると云う。
2009/09/20追加:
○「国分寺址之研究」堀井三友、堀井三友遺著刊行委員会編、昭和31年 より
現国分寺(曹洞宗・医王山)付近が国分寺址であり、現寺は本堂(本尊薬師如来)と庫裏を備えるのみである。
現境内の南14間許に門あり、その門前の東西に通じる道の東30間に東門があり、西45間に以前は西門を開いていた。門前の南50間に東西道があり、その地域と「門前」と云う。「門前」と正門間の東に心礎と云われる礎石がある。大きさは9尺×7尺・高さ3尺5寸で、表面に径2尺5寸4分深さ3寸2分の円孔を穿つ。
「寺の左後方40歩許の畠中に大石11個あり、柱居を彫る所謂七層塔軸柱の礎なるべし」(「肥後国誌」)とあり、当時寺は西面し、この付近が塔址であったと推測される。また現境内に大石1個あり、床下にも2分割した礎石を使用する。以前にはもっと多くの石があったと記録される。
 肥後国分寺址平面図:および心礎実測図     肥後国分寺心礎
2009/09/20追加:
○「熊本市文化財情報サイト」 より
心礎は現位置より西側にあったが、明治の頃、熊野神社の境内に移された。心礎は長径270cm、地上からの高さ120cm、中央の柱穴の径は76cm、深さ9.6cm を測る。礎石は心礎のすぐ南側に1箇、境内の猿田彦碑の根元に1箇あるが、心礎と同様に安山岩の塊石である。
金堂の跡に中世曹洞宗国分寺が再興され、周辺には「門前屋敷」「伽藍」などの地名が残る。
2009/09/20追加:
○「サイト国府物語」→「肥後国」・「肥後国分寺」 項 より
昭和56年本格的な発掘調査を実施。その結果、寺域は約220m四方で、伽藍配置は金堂と塔を東西に並べ、奥に講堂を配する法起寺式伽藍と推定されるにいたる。
 肥後国分寺伽藍配置図:推定     肥後国分寺塔院配置図:推定
2012/01/20追加:2012/05/05追加修正:
○「肥後」松本雅明(「新修国分寺の研究 巻5下」角田文衞編、吉川弘文館, 1986-1997 所収) より
肥後国分寺の範囲・伽藍構成などについては、近年まで移動しているしている心礎のほかには何も分からなかったのが実態であった。
 大正15年の「熊本県下に於ける古代礎石と瓦」では「心礎は東西7尺南北8尺<最大径9尺>高さ4尺で、中央に径2尺5寸4分深さ3寸2分の円孔がある。心礎は最初現国分寺本堂の正面に位置し、隣の林田家の庭にありしものを、今より約30年前熊野権現の境内に移すといい、尚この付近に多くの大石ありたるが、皆追々と取り去られしと云う・・」(大意)と云う。
 現在国分寺付近は社寺を除くと住居商店が密集し発掘の余地は皆無である。しかしながら、熊野権現境内のトレンチ、最初の心礎位置北の現国分寺参道の発掘から、塔を囲む廻廊跡と考えられる遺構を検出する。
同時に狭い露地であったが最初の心礎位置と伝える付近を発掘する。その結果心礎抜取穴を検出する。
 肥後国分寺心礎図:心礎現位置図・心礎実測図
基壇規模は上記の露地の発掘では捉えられず、庭先などのボーリングで探査し、試掘の繰り返しの結果、基壇は一辺およそ60〜65尺程度と推測可能となる。この塔は廻廊で囲まれた塔院とも云うべき遺構であった。東西の廻廊基壇外側間は57.5m(唐尺180尺)となる。
 肥後国分寺塔院復原図: 講堂及び塔復原図、塔阯は東西57.5mの回廊に囲まれ塔院を成す。
 昭和12年の「滅び行く史蹟」(下林繁夫)では現国分寺本堂床下には原位置を保つ礎石があることまた木山街道の東の町裏には築地跡が残っていたということが述べられている。 以上などから現国分寺本堂床下には礎石があることが知られ、国分寺遺構の把握のため、昭和46年本堂床下の調査を決行する。その結果巨大な礎石7個が遺存し内6個は動いていないことが確認される。 調査の結果、詳細は省略するが、次のように講堂は復原されるべきものと判断される。
 肥後国分寺講堂復原図:礎石1・2・3・5・6・7は原位置を保つ。礎石1・3・4・5・7は周囲などが破砕される。4は動くも大きさから見て、4は5の西半分である可能性がある。なお東隣民家庭には多くの礎石と思われる石があるが全て動いている。
以上の結果や「肥後国分寺推定伽藍配置」から肥後国分寺の伽藍配置は以下のように想定するほかはない。
 肥後国分寺地割:類例のない珍しい伽藍配置であるが、塔と金堂を入れ替えれば、近江甲可寺に類例を求めることができる。
 甲可寺伽藍復原図:8世紀中葉  → 近江国分寺跡(近江甲賀寺など)
2013/01/21追加:「九州の古瓦と寺院」九州歴史資料館、1974 より
 肥後国分寺心礎
2013/03/10撮影:
心礎原位置の特定は、それらしい「狭い路地」らしきものはあるが、位置特定は困難である。
 肥後国分寺心礎1     肥後国分寺心礎2     肥後国分寺心礎3     肥後国分寺心礎4
 肥後国分寺心礎5     肥後国分寺心礎6     肥後国分寺心礎7     肥後国分寺心礎8
 肥後国分寺礎石1     肥後国分寺礎石2
 肥後国分寺山門      肥後国分寺本堂

豊前国分寺跡(史蹟)

 豊前国分寺 全容は必ずしも明らかにされていない。明治28年再興三重塔が現存する。

豊後国分寺跡(史蹟)

現薬師堂が金堂跡にあり、現観音堂(3間4面)が塔跡に建つ。塔跡土壇 が残存し心礎・礎石群は大部分現位置に残存する。
伽藍は南面し、南門・中門・金堂・講堂・食堂?が直線状に並ぶ。回廊は中門から金堂に取り付く。塔は回廊内西に位置する。
塔基壇は一辺18m、塔側柱の一辺は11mを測り、屈指の大きさの塔とされる。心礎は円形柱座を造り出す形式と思われる。
講堂跡と食堂跡は基壇が復原され、史蹟は公園として整備される。
隣接地には大分市歴史資料館が建ち、豊後国分寺七重塔の復元模型がある。
2006/11/03追加:
○豊後国分寺七重塔模型:大分市歴史博物館・ホール内展示、木造、スケール1/10。彩色。
○「日本の木造塔跡」:塔一辺は10.8m、本薬師寺西塔式(心礎上に小堂あり)、側柱礎9。
2009/09/20追加:
○「国分寺址之研究」堀井三友、堀井三友遺著刊行委員会編、昭和31年 より
現寺(医王山・天台宗)は南方に庫裏があり、その北に観音堂がある。庫裏・観音堂の東に南北の参道があり、正面に薬師堂、その東に鐘楼あり、薬師堂北にはもと阿弥陀堂があった。
観音堂は塔址にあり、周囲はやや高くなり土壇の面影を残し、心礎および9個の礎石を残す。(北列4個、南列4個、北第2列の西端に1個)
塔一辺は約35尺6寸4分を測り、天平尺36尺の塔であろう。各間は等間とする。
心礎は観音堂床下にあり、大きさは7尺×6尺、中央に径2尺5寸の繰出がある。
薬師堂(5間入母屋造)は観音堂東北約25間にあり、床下に十数個(柱座のある礎石もある)の礎石を残す。さらに堂北側西側に一列に6個礎石が並び東には巨大な礎石6個が散在する。ここは金堂跡であろう。
この堂北約25間にある阿弥陀堂跡は講堂跡であろう。南大門跡は薬師堂南1町余にあり、古瓦が散布し石垣・架橋などに礎石が割られて転用される。また庫裏の東南で割れた礎石が発見され、瓦の散布とあわせ中門跡と推定される。なお寺域北4町の春日社は国分寺鎮守と伝える。
戦乱で焼失した国分寺は江戸初期に玉蔵坊円海がかっての堂跡に堂宇を再建(阿弥陀堂は寛文12年建立・明治初年廃堂、薬師堂元禄7年建立、宝永7年鐘成る、享保9年観音堂建立、宝暦7年護摩堂建立<既に退転>)する。
 豊後国分寺平面図      豊後国分寺塔址
 豊後国分寺塔址実測図:原図の薬師堂の表記は観音堂であろう。また塔址実測図の右が北と思われる。下の図は心礎実測図。
2012/05/05追加:
○「新修国分寺の研究 巻5下」角田文衞編、吉川弘文館, 1986-1997 より
塔阯は当国分寺中もっとも遺存状態の良い遺構である。礎石は9個残存し、溶結凝灰岩製で大型である、心礎は観音堂須彌壇土壇下に半ば埋もれてあり、その大きさは2.0×1.5mで、その中央に径約60cm高さ11cm(3尺6寸強)の円形出枘式造出を持つ。
また塔阯基壇周辺は客土(昭和9年の付近焼失の折の焦土・瓦礫を積上げる)されている。
トレンチ調査では栗石積基壇化粧が確認され、基壇一辺は約18mであった。なお瓦類などが多量に出土し、その状況は塔崩壊後基壇上の瓦を基壇下に掻き落としたような状態であった。
残存礎石の状態から、おそらく塔一辺は天平尺で12.5尺等間の一辺11.1mであろうと推定される。
 豊後国分寺塔跡実測図
2013/10/18追加:
○中世近世の変遷
出土瓦の編年から、創建当初の伽藍を中世まである程度保持していたと推定される。
仁治元年(1240)大友氏が西大寺忍性を請来し中興開山としたと伝える。
南北朝期より柞原八幡宮の役寺を勤め、永禄10年(1567)柞原八幡宮末寺となる。(「柞原八幡宮文書」)
天正14年(1586)府内は島津家久により焼払われ、この時国分寺も廃寺と伝える。
延宝3年(1675)天台僧円海により再興が始まり、元禄7年(1694)本堂が竣工する。
現在は天台宗医王山と号する。
2013/11/16撮影:
○豊後国分寺跡現況
 金堂跡には薬師堂(3間4間)が建ち、塔跡には観音堂(3間4面)が建つ。
金堂跡の土壇は削平され十数個(40数個とも云う)の礎石を残すが、薬師堂建立の時、原位置を移動したため、原形を復元し得ない。
 ※現地の説明板の記載では、金堂は7間×4間の重層とするがその根拠は良く分からない。
塔跡には土壇を存し、心礎及びその他の礎石も大部分原位置を保つ。
しかし、心礎は観音堂床下にあり、残念ながら、実見することはできない。
心礎は長径2.1m、中央部に径76cm高さ14.5cmの柱座を造り出す。
側柱礎は9個残存し、礎石の芯が不明であるが、一辺は約12m(11m前後とする値もある)と計測される。これは長大な一辺であり、巨大な七重塔が建立されていたものと判断される。但し東の位置にはそれらしい遺構が残らないので、西塔一基のみの建立と思われる。
 豊後国分寺復元想定図
豊後国分寺塔跡
 国分寺塔跡・観音堂1     国分寺塔跡・観音堂2
塔側柱礎のbヘ上に掲載の「豊後国分寺塔跡実測図」中の礎石bノ附合する。
 国分寺塔側柱礎bP     国分寺塔側柱礎bQ     国分寺塔側柱礎bR     国分寺塔側柱礎bS     国分寺塔側柱礎bT
 国分寺塔側柱礎bU     国分寺塔側柱礎bV     国分寺塔側柱礎bW     国分寺塔側柱礎bX
豊後国分寺金堂跡
 豊後国分寺跡:正面は薬師堂
 国分寺金堂跡薬師堂1    国分寺金堂跡薬師堂2    国分寺薬師堂本尊1     国分寺薬師堂本尊2
 国分寺金堂跡礎石1      国分寺金堂跡礎石2     国分寺金堂跡礎石3     国分寺金堂跡礎石4
 国分寺金堂跡礎石5      国分寺金堂跡礎石6
 豊後国分寺鐘楼
 国分寺地蔵菩薩坐像:銅造、明和8年(1771)造立。
 豊後国分寺廻廊跡1:金堂東側に取り付く廻廊跡。      豊後国分寺廻廊跡2:伽藍西側廻廊跡。
豊後国分寺講堂跡:基壇は27×18.7mで瓦積基壇であった。礎石は喪失するも、根石が残り、7×4間の礎石建物と判明。
 豊後国分寺講堂跡1     豊後国分寺講堂跡2     豊後国分寺講堂跡3:礎石は模造礎石である。
豊後国分寺想定食堂跡:通常講堂の北には僧房が考えられるが、残る柱穴から掘立式の7×4間の建物が想定され、僧房ではなく食堂が想定される。
 国分寺想定食堂跡1     国分寺想定食堂跡3
大分市歴史資料館が隣接して建ち、豊後国分寺七重塔の復元模型を展示する。
 ※訪問日は資料館が定休日で、復元模型写真は資料館裏側のガラス窓越しに撮影。
 大分市歴史資料館
 豊後国分寺七重塔模型1     豊後国分寺七重塔模型2     豊後国分寺七重塔模型3     豊後国分寺七重塔模型4
 豊後国分寺七重塔模型5     豊後国分寺七重塔模型6     豊後国分寺七重塔模型7

日向国分寺跡

現国分寺の位置には礎石・土壇等が残存するが、塔を含めて遺跡としての残存状況は不明確な部分が多いと云われる。
近世の国分寺:
天明8年(1788)遊行僧木喰が日向国分寺を訪れ、衰退した国分寺に住する。
寛政3年(1791)国分寺が焼失、木喰は再建に尽力し五智如来像を製作する。
明治の廃仏で、国分寺は廃寺・取壊し、五智如来像のみは護持される。その後国分寺は再建されるも、戦後まもなく台風のため倒壊する。
その後、再度再興されるも、平成7年「木喰五智館」が建立され、国分寺堂宇は廃絶する。
2009/09/20追加:
○「国分寺址之研究」堀井三友、堀井三友遺著刊行委員会編、昭和31年 より
今東向きの小堂(木喰上人の丈六五智如来を安置)を残す。堂の敷地は土壇(東西14間、南北16間)をなし、5間×3間の堂を示す礎石が残る。これは木喰上人の五智塔址であろう。
この土壇の西北に塔址と伝える土壇がある。付近に塔心礎と称せられる礎石があり、大きさは5尺8寸(176cm)×5尺2寸(158cm)、表面に7寸5分(23cm)×6寸(18cm)の方形の孔を穿つ。但し心礎かどうかは不明であるが、奈良期の心礎でないことは明らかである。
その西に4尺(121cm)×1尺6寸(48cm)の礎石があり、これには桃実状の孔がある。
 (※現在塔址は未確認である。塔心礎と称せられる礎石および孔を持つ2個の礎石は現存すると思われるも、存在の有無は不詳。)
 (※亡失心礎の項を参照)
またその西南に5尺9寸(178cm)×4尺6寸(139cm)許の大きさの不正形の孔を持つ礎石もある。
伝塔址土壇の北に南北20間東西17間の土壇様のものもある。
明治2年国分寺堂宇毀たれ、今残る堂はその後付近の照明寺の建物を移したものと云う。
 日向国分寺址平面図     日向国分寺五智塔址
○2012/01/20追加:
「西都市埋蔵文化財発掘調査報告書第41集」西都市教委、2005 より
 日向国分寺跡推定伽藍図
  ※なお、中門外(中門南東部)に「塔」を想定する図(西都市Webページ)もあるが、「願望」の類であろう。
2012/05/05追加:
○「日向」石川恒太郎(「新修国分寺の研究」角田文衞編、吉川弘文館, 1986-1997 所収) より
 大正14年の「宮崎県史蹟調査報告書 第4輯」では「・・・今は荒廃に帰して僅かに一升堂宇と五智如来の木造を安置するに過ぎない・・・・天明2年災火に罹り・・烏有に帰す。・・・・・・国分寺の入口左側いは一大礎石がある、七重塔の中心礎石にして、中央部より約2寸偏したる箇所に長さ7寸5分、横5寸5分、深さ2寸5分の穴を穿つ。・・・・」とある。
 昭和5年の「宮崎県史蹟調査報告書 第5輯」では「・・・尚跡には高2尺4寸囲り12尺の礎石の中央に長さ7寸幅4寸5分穴あるものがある五重塔の中心礎石ならんかと思はる。当寺は権勢3年回禄に罹り・・・・」とある。
 昭和13年の「国分寺の研究」角田文衞編(日向は久保平一郎執筆)では「五智堂は・・北寄の土壇上にある。・・・土壇上には4個の礎石らしいものが東西に露出している。・・・堂宇北30m、堂宇敷地入口左に心礎と考えられる礎石が残っている。高さ56cm東西140cm南北140cmの石にして、中心より略々南寄に、長さ26cm幅15cm深さ6cmの穴が穿たれている。・・・」
 昭和31年の「国分寺址之研究」堀井三友では上述のように述べる。
 発掘調査は昭和23年、昭和36年、昭和47年(緊急)に実施される。しかしながら、いずれも不十分なまた限定的な発掘であり、伽藍配置を明らかにするような成果があげられなかったというのが正直なところであろう。

大隅国分寺跡(史蹟)

天災・兵火で廃絶した国分寺は天文年間に中興、その後再度廃寺となり、元禄4年(1691)に再興されるが、慶応2年(1866)の廃仏毀釈により破壊される。現段階では寺域・伽藍配置は明確にはされていない 。
現地には康治元年(1142)銘の六重層塔、石造仁王像、観音像が残されていると云う。
○「歴史の足跡」管理人様ご提供画像
  大隅国分寺跡現況   大隅国分寺跡石造六重層塔
2009/09/20追加:
○「国分寺址之研究」堀井三友、堀井三友遺著刊行委員会編、昭和31年 より
寺址は今協同墓地となる。協同墓地西北隅に康治元年(1142)銘の石塔がある。この南約20間に幕末まで存続した国分寺廃域があり、西隅に観音堂阯がある。門跡には仁王石像が残る。石像の傍らに1個の礎石が残る。
 大隅国分寺址平面図
2012/05/05追加:
○「大隅」寺師見国・木村幹夫(「新修国分寺の研究」角田文衞編、吉川弘文館, 1986-1997 所収) より
本寺は現在僅かに礎石1個と康治元年銘の多層塔一基及び散乱せる瓦片を残すのみである。

2021/04/04追加:
大隅国分寺心礎が発掘される。
1)発端
oshiro tennsyukaku氏より次のメールを受ける。
大隅国分寺の石塔の下に木造塔の芯礎が発掘。南日本新聞より。
2)南日本新聞 記事 より
<全文を転載>
2021/04/03 ©株式会社南日本新聞社
『【木造塔跡に石塔を再建か】 大隅国分寺跡で礎石発掘 霧島市
 国指定史跡の大隅国分寺跡(霧島市国分中央1丁目)に立つ石塔の直下から、木造塔の「心柱」を支える礎石である塔心礎が発掘された。
木造塔があった場所に石塔を再建したことを示すと考えられ、「まだ明らかになっていない寺の建物配置を探るヒントになる」(市教育委員会)と関心を集めている。
 礎石は、2月末に完了した石塔の修復作業で見つかった。
楕円形で最長部の直径約1.5m。中心に、柱を入れたとみられる直径27cm、深さ7cmの穴が開いている。
 大隅国分寺は奈良末期から平安初期の完成とされ、現在残る石塔には平安末期の康治元年(1142)の銘が入る。軸とかさを重ねた6層で、高さは約5mある。
 近畿地方などでは、中小規模の寺院にあった木造塔が老朽化した後、経済的な理由で代わりの石塔を建てるケースが確認されている。
市教委社会教育課の坂元祐己さん(38)は「大隅国分寺も当時は衰退していたと考えられており、復活を願う象徴的な存在として石塔が造られたのでは」と推察する。
 現地では石塔のほか発掘された礎石も見学できる。坂元さんは「国分の地名の由来となった場所。ぜひ一度見に来て」と呼び掛ける。』
南日本新聞社記事から写真転載
 大隅国分寺心礎・礎石:石塔の下から発掘された木造塔の礎石
記事の法量によれば小型の心礎で、中央の円孔は柱穴ではなく枘孔であろうと思われる。周囲の礎石は四天柱礎であろうか。
 大隅国分寺六重石塔:修復作業を終えた大隅国分寺跡の石塔
六重であるのは良く分からないが、写真だけでは判断がつかないが、七重であったものが後世一重が失われたのかも知れない。
 石塔二重目の塔身:経典が入っていたと考えられるくぼみがある石塔の2層目(霧島市教育委員会提供)
2021/04/06追加:
○「国史跡 大隅国分寺跡附宮田ヶ岡瓦窯跡」 より
 本資料は、霧島市教育委員会からメール添付で入手したものであるが、4ページのパンフレットの体裁をとる。
ただ、奥付などなく、編集・発行者や発行日付などは不明である。
但し、本資料の内容から六重石造層塔の解体修理および石塔の基礎部分の発掘調査により「心礎」が発見されてたという内容から、今般2021年4月に報道発表された発表内容にかかわるものと推定される。
 ◎標記パンフレットの具体的内容は次の通りである。
 <要約>
1 大隅国分寺跡について
 大隅国分寺跡においてはこれまで発掘調査が実施されるが、江戸期の初めに島津義久が城下町を整備する際にもともとの境内を削って区画を変更してしまったことや、江戸期から昭和20年代の初めまでは墓地として使用され、土葬によって遺構がほとんど失われてしまっていた。
また、明治の廃仏毀釈などにも遭い、寺域は確定していない。
 現在、この地には、康治元年(1142) 11 月6日の銘のある六重石造層塔が残り、その側に2体の金剛力士像と観音像の願文のある石碑がある。
 「三国名勝図会」<天保12年(1841)成立>には、観音堂のある僧一人の草庵にすぎないが、廻国修行納経所となって参詣の人が絶えないと記載されている。
なお、石塔は、『三国名勝図会』では五重塔と表現されているが、上部2層はほかと意匠が異なることやそもそも塔で六重のものはないことなどから、後から補われたものであるう。また、笠が一つ地面に置いてあることから、過去に数度修理が行われたのではないかと考えられる。
さらに、一部に朱が残っていることから、建立当初は部分的あるいは全体的に朱が塗られていたことが分かる。
なお、国分寺跡周辺からは多量の古代瓦や古代の土師器などが出土することから、ここが国分寺跡であろうとされている。
2 石塔の保存修理事業
 石塔は岩質は溶結凝灰岩製であり、その岩質は加工は容易であるが風化し易い特性を持つ。
石塔は解体し再組立てを実施する。
 再組立ての際、 石塔の安定を図るため、コンクリート基礎を設置することとなるが、それに先立ち発掘調査を実施する。
発掘調査では心礎などが出土するも、近代以降の遺物が出土したことなどから、動かされていることの確証を得る。このことから文化庁や鹿児島県教育委員会と協議し、塔心礎を含む礎石は取り上げて、コンクリート基礎を設置することとなる。
石塔の保存修理による新発見
国史跡指定100周年にあわせて実施した保存修理により新たに発見されたものがある。
(1) 2層軸部に「舎利納入孔」を発見。
この石塔の2層軸部の外側には銘文が彫られているが、今回の解体によって内側に縦約30cm×横約17cm×深さ約7cmの穴があることが分かる。
 この穴は本来舎利を納入するためのものであると考えられるが、この石塔が造られた頃には舎利を入手しづらくなっていたとされ、その代わりに経典が納められたと考えられる。
(2) 「塔心礎」を発見
 この塔心礎について、昭和48年の国分郷土誌には、昭和21年頃に公民館を建設するため石塔を移設する際、石塔下1mほどの深さのところに穴のあいた大きな石があったという。実際に石塔の基礎を動かすと、郷土誌の記載とは異なりすぐに礎石は発見される。
 心礎の中心には直径約27cm、深さ約7cm の枘孔があけてあった。
 おそらく木造塔はこの場所に建てられたと思われるが、石塔を移設した際に礎石を動かした形跡があり、配置が江戸期の初めに作られた現在の道路と平行して配されていることなどからも礎石が動かされていることは確実で、これらの礎石は取り上げて史跡内に配置し、常に見学できるようにした。
(3) 石塔の相輪の一部が出土
今回の発掘調査で、相輪の一部が礎石の下に埋められていた。この相輪は現在石塔の上にある相輪と比較するとひと回り大きく、サイズが異なるため同一個体ではないと思われる。
2021/04/11撮影:
塔礎石・心礎は、2月末に完了した石塔の修復作業で発見される。(経緯については上に掲載)
楕円形で最長部の直径約1.5m、中心に、枘孔とみられる直径27cm、深さ7cmの穴が穿たれる。
 大隅国分寺心礎11     大隅国分寺心礎12     大隅国分寺心礎13     大隅国分寺心礎14
 大隅国分寺心礎15     大隅国分寺心礎16     大隅国分寺心礎17     大隅国分寺心礎18
 大隅国分寺心礎19     大隅国分寺心礎20     大隅国分寺心礎21     大隅国分寺心礎22
 大隅国分寺心礎23     大隅国分寺心礎24
 大隅国分寺塔礎石1     大隅国分寺塔礎石2     大隅国分寺塔礎石3
 大隅国分寺遺物類1     大隅国分寺遺物類2     大隅国分寺遺物類3     大隅国分寺遺物類4
 大隅国分寺石塔1      大隅国分寺石塔2
 大隅国分寺仁王像1     大隅国分寺仁王像2     大隅国分寺仁王像3


薩摩国分寺跡(史蹟)

○2012/01/20追加修正:
昭和43年から発掘調査が行われ、塔・金堂及びその他の堂の遺構が発見され、概要が判明する。
伽藍は川原寺式とされ、南大門・中門・中金堂・講堂が直線に配置され、塔(東)と西金堂が対面する。
伽藍は早くに衰微するも、国分寺及び天満宮が中世末期まで存続する。
天正15年(1587)豊臣秀吉の島津討伐の侵攻により焼失する。
寛文9年(1669)島津忠光の命により泰平寺実秀が再興し(その姿は「三国名勝図会」で見ることが出来る)、細々と存続するが、明治2年廃仏の流れの中で廃絶する。
写真を見ると、塔跡は、もともと土壇を残していたと推測され、心礎および大部の礎石が現存する。
 (心礎は明治21年(あるいは15年)大小路の了忍寺に搬出されるも、昭和19年旧位置に戻されると云う。)
昭和60年史蹟公園として整備される。隣接して「川内市歴史資料館」があり、国分寺模型を展示する。
○2008/09/07追加:
◇「仏教考古学講座 第2巻 寺院」雄山閣、1984
 薩摩国分寺跡配置図
◇「日本の木造塔跡」:塔一辺は4.55m、川原寺式、四天柱礎2・側柱礎10。
◇「幻の塔を求めて西東」:一重円孔式、大きさは155×140cm、径60×12cm。国分寺の心礎としては余りにも小さい。
2009/09/20追加:
○「国分寺址之研究」堀井三友、堀井三友遺著刊行委員会編、昭和31年 より
国分寺は現在田野・民家となるが、東南に塔址と思われる土壇が残る。心礎は大忍寺に運ばれるが、不正な三角形で、大きさは5尺9寸×3尺6寸×1尺9寸で、表面に径1尺9寸5分(深さは3寸6分か)の円穴を穿つ。
土壇上には5個、その外北に3個、西に2個、東南に1個散在する。礎石から旧状を復原することはできない。
 (※大忍寺とは大小路の了忍寺のことと思われる、現在では了忍寺は市内に移転と思われる。)
 (※心礎は明治15年頃大小路了忍寺に運ばれるも、昭和19年旧位置に戻され、同年塔址は史蹟に指定される。)
この土壇の西15間の地点から北へ12間の所、さらに北13間に傾いた礎石が各1個ある。この付近をお堂といい、金堂跡と伝える。
またお堂の北方および北西方には数個の礎石が残る。
 薩摩国分寺平面図ほか:薩摩国分寺平面図及び塔址実測図並びに塔心礎図
2012/01/20追加:
○「薩摩国分寺 環境整備事業報告書」川内市教委、1985 より
 薩摩国分寺伽藍配置図     薩摩国分寺環境整備図     薩摩国分寺塔遺構図
 薩摩国分寺塔跡復元図:中央間は1.8m、両脇間は1.6mを測る。心礎柱枘穴は径60cm深さ10cm。心礎は原位置より約15cm北へずれる。礎石は緑色結晶片岩。基壇西北隅に鎮壇具を埋納する。基壇は盛土基壇で外装は壇上積基壇と云う。
2012/05/05追加:
○「薩摩」河口貞徳(「新修国分寺の研究」角田文衞編、吉川弘文館, 1986-1997 所収) より
昭和43〜45年に渡り発掘調査が行われる。遺構として奈良末期頃の創建遺構、10世紀の再建遺構、中世には下らないであろう三建遺構(規模などははっきりしない)が検出される。
伽藍配置は上掲の薩摩国分寺跡配置図が掲載される。
金堂跡は三回にわたり建て替えられる。
塔跡は金堂の東南にある。心礎は一度搬出され、後にもどされたものであるが、礎石の現状から以下の塔のプランが分かる。
初重は1間1.8mの等間(一辺5.5m)であり、三方に地覆石が残ることから、塔基壇は一辺8.7mと判明する。基壇化粧は一応壇上積であるが羽目石の高さが不揃いで、羽目石上の板石で調整するなど、必ずしも精美なものではない。
 薩摩国分寺塔阯発掘     薩摩国分寺塔基壇化粧
2013/01/21追加:
○「九州の古瓦と寺院」九州歴史資料館、1974 より
 薩摩国分寺心礎
2016/07/15追加:
○「日本の美術 171 国分寺」至文堂、昭和55年 より
 薩摩国分寺塔跡(発掘)

2021/04/11撮影:
 薩摩国分寺推定復元模型     薩摩国分寺跡整備平面図
 
薩摩国分寺跡
塔跡
基壇は一辺8.6mの切石積基壇である。
心礎は明治15年ころ川内市内の了忍寺に搬出されていたが、昭和19年現在地に戻され、史跡指定を受ける。
 ※了忍寺は国分寺跡西南南、泰平寺の西南(川内川右岸)にある。
 薩摩国分寺復元塔跡1     薩摩国分寺復元塔跡2     薩摩国分寺復元塔跡3     薩摩国分寺復元塔跡4
 薩摩国分寺心礎11      薩摩国分寺心礎12     薩摩国分寺心礎13     薩摩国分寺心礎14
 薩摩国分寺心礎15
 薩摩国分寺塔礎石1     薩摩国分寺塔礎石2     薩摩国分寺塔礎石3     薩摩国分寺塔礎石4
 薩摩国分寺塔礎石5     薩摩国分寺塔発掘遺構
金堂跡
創建当初の基壇は南北16.8m、東西19.5mで、基壇は凝灰岩切石により化粧されていた。
建物規模は桁行5間、梁間4間と推定される。
金堂は3回ほど建て替えられた可能性がある。
 薩摩国分寺復元金堂跡1     薩摩国分寺復元金堂跡1
講堂跡
創建時は南北14.5m、東西36。2m、再建時が南北11.6m、東西27mである。
 薩摩国分寺講堂跡
中門跡
南北5間、東西4間の南北に長い掘立式の建物跡である。
直径30〜40cmの柱痕跡が確認される。
 ※中門跡というも、掘立式とか5×4間であるとか奇妙な建物であり、中門ではないと思われる。
 薩摩国分寺復元中門跡1     薩摩国分寺復元中門跡2

 薩摩国分寺復元廻廊跡1     薩摩国分寺復元廻廊跡2
金堂北西建物
南北4間(8.7m)、東西5間(11.85m)の掘立式建物であるが、建物用途は不明。
 金堂北西建物跡
築地塀
国分寺寺域は築地塀の確認により南北130m、東西118mと推定されている。
 薩摩国分寺復元築地塀1     薩摩国分寺復元築地塀2
 薩摩国分寺井戸跡
薩摩国分寺石造層塔
天正15年(1687)豊臣秀吉が薩摩に侵攻し、薩摩国分寺は焼失する。
その後、薩摩国分寺は約北西300mの国府天満宮付近に移される。この時、国分寺石造層塔も移される。
平成20年再び現在地に遷る。
層塔は三基建立されたと考えられ、年代は鎌倉期と考えられる。
現状は原形を失っていて、元の正確な層数は不明である。
 薩摩国分寺石造層塔1     薩摩国分寺石造層塔2     薩摩国分寺石造層塔3
 薩摩国分寺石造層塔4     薩摩国分寺石造層塔5

壱岐国分寺(島分寺)跡

2009/09/20追加:
○「国分寺址之研究」堀井三友、堀井三友遺著刊行委員会編、昭和31年 より
国分寺址は国片主神社裏手(西)にある。(国分本村触に所在)
壱岐においては、国分寺は新しく建立せず、壱岐直の氏寺を「島分寺」としたと云う。(「延喜式」)
「壱岐国続風土記」<延享元年(1744)>では、ここには阿弥陀寺があったといい、本堂・阿弥陀堂などがあり、往古の礎64ありと云う。
付近には小数ではあるが、転用された礎石が見られると云う。
 (※現国分寺を号する寺院は壱岐市芦辺町中野郷西触725にある。壱岐国分寺址東南東約500mの地点である。)
○2012/01/20追加:
寛文3年(1663)釈迦堂だけを残す国分寺(島分寺)を中野郷の阿弥陀寺(堂)に移し、国分寺と号する。
国分寺跡には阿弥陀寺と号する小堂を建立する。この阿弥陀寺も明治になり、中野郷国分寺に合併すると云う。
礎石は国分寺跡に一個(径51cm)、國片主神社の寄附芳名石台石として一個、国分寺勅使門(西門)中柱左右の礎石に各一個、その他二個の割石が国分寺跡に残る。
◇「原始・古代の長崎県 資料編T」長崎県教委、1996 より
 壱岐嶋分寺遺構配置図:遺構SB1が塔跡である。
◇「壱岐嶋分寺T」芦辺町教委、1991 より
 壱岐嶋分寺塔跡実測図:基壇一辺は6.6mを測る。建物は1間(3.2m)と推定されるが、これは 少々奇妙な平面ではある。
2012/05/05追加:
○「壱岐」山口麻太郎(「新修国分寺の研究」角田文衞編、吉川弘文館, 1986-1997 所収) より
壱岐においては新に国分寺を建立せず、壱岐直の氏寺を「島分寺」としたと云う(「延喜式」)。
「壱岐国続風土記」では「国分2寺何れの時世にか跡廃して唯釈迦堂といへる名のミ残りしを、寛文2年(1662)松浦信純・・・10石寄附す。国司(松浦鎮信)・・・普門寺暗宗和尚をして国分寺再興せしむ。・・・」とある。その後も10石の寺産の寄附を受ける。
その後(元文3年か?)阿弥陀寺円厳座元は国分寺を阿弥陀寺(中野郷西触)に移し、阿弥陀寺を国分寺(国分本村触中野)に移す。つまり本尊も建物も寺地も現状のままで寺号だけを交替せしむ云うことである。旧国分寺の地(新阿弥陀寺)には小堂を建立と云う。
この交替の理由は「阿弥陀寺には新田が附属していため、この資産によって由緒ある国分寺を保護せんとする藩主の意図であった」と伝える。
なお、阿弥陀寺(国分村西触)には本尊釈迦如来、薬師堂如来・脇立観音・同勢至・十二神将などと本堂・薬師堂などがあったと記録される。(「壱岐国続風土記」)
享保8年(1723)には国分寺を本寺とする沙汰が下り、阿弥陀寺・三明院・桂林院・観音寺・天徳庵・円福寺が末寺となる。
明治初年、上記末寺は全て新国分寺(中野郷西触)に合併される。十ニ神将などは山中に捨てられ風雨に曝されていたと云う古老の言はこの時のことであろうか。
 国分寺跡の状況は以下の通り。
明治初年地籍図:地番1348・1354・1355・1356・2357に壱岐国分寺があったと云う。原1354付近に阿弥陀寺(小堂)があったと伝える。
壱岐島分寺遺跡図:「ト」は石仏、その前の「タ」は礎石破片、さらに前にある「リ」は礎石とある。石仏の東「ラ」は心礎ではないかと思われる石が畑面から4,5寸下に土をかぶり埋まっている。大久保氏住居の頃は束石として使用と云う。
 礎石の残存は以下の通り。
柱座(径1尺7、8寸)のあるものは寺跡に2個、明治42年建立忠魂碑境内に1個、国片主社境内に記念碑台石に1個、現国分寺本門柱礎に3個、御成門柱礎に3個あったが、忠魂碑境内と寺跡積石中の1個はいつの間にか亡失する。
寺跡の2個は「リ」と4つに割った一辺を石垣に積むものであるが今は見えない。忠魂碑西側に1個裏返しにあった礎石は今は無い。さらに1個ここにはあったが、さらに以前に亡失。
「壱岐国続風土記」には「往古の礎54あり。・・・」、「壱岐名勝図誌」では門柱の礎として2尾を図示するが、その内1個は中央に窪あることを描き、「柱跡亘1尺8寸高2分、中の窪亘4寸、深さ8分」と記す。これは門礎ではなく心礎とみるべきであろう。大きさは2尺7寸9分×2尺4寸3分高さ1尺8分と記される。この心礎の所在は不明であるが、国片主社の記念碑の台石がそれではないかと思われる。
「ラ」(前には心礎ではなかろうかと述べる)の石が何であるかは不明であるが、何らかの礎石と見るほかはない。この石は八角形で径3尺以上あり、高さは掘って見たが、先端まで掘ることが出来ず不明、表面は加工された2尺角くらいと思われる。根は下太りで、周囲には赤く焼けた瓦片を打ち込んであった。
 ※ここでは、2個の石が心礎の可能性があると述べられる。埋没した「ラ」の石は、心礎と述べたり不明と述べたりして混乱しているが、実態が不明であり心礎かどうかは全く分からない。所在不明で柱座を造り出し径4寸深さ8分の円孔を穿つ礎石も大きさなどから心礎の可能性は低いと思われるがどうであろうか。著者は円孔を舎利孔と云い、小さく貧弱であり、壱岐直の氏寺であったとき のものではないだろうかと云う。
 壱岐国分寺明治初年地籍図     壱岐国分寺跡遺跡図

対馬国分寺跡

不詳。
万松院(宗氏菩提寺)の北側、金石城址(宗氏居城)の付近が旧島分寺址と推定される。但し遺構・遺物などは皆無に等しいと云う。

多褹国分寺址(多禰国分寺址)

不詳。
記録も乏しく、また平安初期には「多褹」は廃され、大隈に属せしめられ、確実なことは殆ど分からないと云う。
 


2006年以前作成:2025/02/23更新:ホームページ日本の塔婆