|
★東大寺東塔及び西塔
2006/06/10追加:
「東大寺七重塔考」箱崎和久 より要約
(「論集 東大寺創建前後」GBS(グレイト・ブッダ・シンポジウ)ム実行委員会、東大寺、法蔵館、2004年所収)
現在、大仏殿内部に創建時の東大寺模型が展示されている。
この模型は明治42年の日英博覧会に出展されたもので、伊藤忠太・関野貞の監修、天沼俊一の設計と云う。
※「1/50東大寺復元模型」の項(下に掲載)を参照。
箱崎氏論文は、この天沼氏設計の東大寺七重塔について、その後の研究成果及び発掘成果を踏まえ、評価並びに再考(再設計)を行ったものである。
○東大寺東西塔の沿革:
天平勝宝4年(752)塔身の工事完了、天平宝宇6年(762)歩廊工事
天平宝宇8年(764)東塔露盤を上げる、西塔の竣工もこの頃か?
承平4年(934)西塔雷火で焼失。
天徳3年(959)西塔再興に着手した記事。
天禄2年(971)東塔火災。
長保2年(1000)西塔再興中に類焼。(2重目が完工したとき、興福寺喜多院の火災で類焼する。)
※その後再建計画はしばしば立てられたが、実現には至らずと云う。
寛弘元年(1004)、寛弘6年(1009)東塔修理。
治承4年(1180)平重衡焼討ちにより東塔焼失。
元久元年(1204)東塔再興始まる。貞応2年(1222)相輪をあげ、嘉禄3年(1227)回廊が完成。
安貞元年(1227)第3世大勧進行勇により東塔竣工。
仁治4年(1243)大勧進円淋西塔建立を願う。
弘安頃(1295頃)西塔仮葺き。(結局、西塔の竣工はなかったとされる。)
康安2年(1362)東塔雷火で焼失。
応永5年(1398)東塔再建に着手したが、ついに未完に終る。(以降東塔も再興されず。)
明治30年頃に心礎や礎石が失われる。(東塔か?)、西塔の心礎・礎石も亡失。 |
東大寺両塔の平面規模は尋常ではなく、かつ七重の大塔であったと伝えられる。
現在、東大寺両塔とも失われ、かつ七重の大塔の遺構も伝えられていない。
古の東大寺塔の復元に当っての史料は非常に限られ、特に鎌倉期までの史料は僅かに以下が知られるのみと云う。
東大寺塔の史料:
1)「大仏殿碑文」(東大寺要録・巻2)
東塔高23丈8寸、西塔高23丈6尺7寸、露盤高各8丈8尺2分・・・
2)「東大寺要録・巻4」
1.東塔院 七重宝塔1基 高23丈8寸・・・天平勝宝5年・・建立。
1.西塔院 高23丈6尺7寸 天平勝宝5年・・建立
長保2年・・西塔三重并正法院焼亡、興福寺喜多院焼亡火移也、又承平4年・・東大寺西塔焼亡。
3)「東大寺権別当実忠29个条事」(東大寺要録・巻7)
1.構−上東塔露盤事 高8丈3尺、第1盤径1丈2尺、・・・・
4)「朝野群載」巻16
塔2基 並七重 東塔高33丈8尺7寸、西塔高33丈6尺7寸、露盤高各8丈8尺2分、・・・・
5)「碑文」(扶桑略記)
建塔2基、並七重、東塔高33丈8寸、西塔高33丈6尺7寸、露盤高各8丈8尺2分、・・・・
6)「南都七大寺巡礼記」(管家本「諸寺縁起集」)東大寺部分は長禄元年(1457)頃成立か?)
東塔1基 高23丈8尺、古伝如云、或36丈云、七重5間、・・・
西塔1基 ・・・・承平4年・・雷火云々
※なお「南都七大寺巡礼記」の東大寺部分の著者は興福寺大乗院尋尊とも云われる。
7)天平宝宇6年「造東大寺司解」
高さなどの記載ないため省略
8)正応2年「東大寺修理新造等注文案」
高さなどの記載ないため省略(内装記事)
天沼氏は史料1)〜3)および 6)を参照し、
塔身の高さ23丈余りに露盤(相輪)の高さ8丈3尺を加え、塔高を31丈余りと復元する。
一方足立康は「法隆寺伽藍縁起并流記資財帳」や「薬師寺縁起」などの塔の寸法記載例から、塔身と相輪を二分する記載例は無く、総高を記載した後に細部の寸法を記載するのが自然とする。
これを東大寺塔に当てはめると、総高23丈で相輪8丈3尺を引くと塔身は14丈余りであり、このバランス(相輪比65%)はありえないため、史料4)、5)の33丈余りが総高であろうとした。(史料の23丈云々は誤記ということになる。)
いずれにしろ、総高は31丈あるいは33丈となり、東大寺塔は約100m(弱)と云われてきた。
これらの説が定説化し、東大寺塔は高さ約100mであるというのが定説となる。
|
○塔の立面比較;
右図拡大図 右図中:左図は天沼案東大寺塔立断面図
その右図は山城教王護国寺塔
さらにその右図は元興寺小塔を10倍した立面図
|
 |
天沼案東大寺七重塔復元過程:
もう少し天沼氏の復元過程を詳しく考察すると、
平面規模の復元で、天沼氏は絵図を参照するが、この絵図は
「東大寺寺中寺外惣絵図并山林」(作成:江戸初期と推定される?)であることは間違いなく、
ここでは
東塔は3間四方で、方8間半、西塔は5間四方(但し側廻りのみ)、方8間と記載される。
○東大寺寺中寺外惣絵図并山林(部分)
しかし、天沼氏は「東西で柱間を異にし」「参考に供するを得」ないと切捨て、平面の確定を現地に求める。
明治42年天沼氏は塔跡を実測、すでに礎石は無く、礎石抜取り穴が残るのみで、復元は困難を極めたという。
東塔の方が比較的抜取り穴の残存状況が良好で、ここから初重平面は一辺54尺(天平尺55尺)と復元する。
また東塔跡南面には石段耳石及び基壇羽目石が若干残存し、これより石階内法幅を30尺とする。
塔身は23丈8寸、相輪は8丈3尺としたのは前述のとおり。
立面については、大和当麻寺東塔を参考にして、幾何学的方法で決定した。相輪は第1輪の径1丈2尺を用いる。
○天沼案東大寺塔立面図:当麻寺東塔をベースに幾何学的方法で求めたものとなる。
○天沼案東大寺塔平面図:方3間、四天柱ありと通常の規模の五重塔あるいは三重塔の平面を引継ぐ。
おおよそ以上を根拠にした天沼復元塔には、現在の学問・知識から、次の問題点を抱えると思われる。
最も問題となるのは各重の軒の出が25尺以上となる。
例えば初重の軒の出は約27尺で、初重の地垂木は四天柱上まで引き込まれ、しかも傾斜を持つため、40尺程度の材尺となる。また隅木は最低でもそのルート2倍(約1.4倍)となるので56尺程度の材尺となる。
果たしてこうした長尺の材の入手が可能なかどうか、また仮に可能としても強度の点で現実的なものなのかどうか、冷静に考えれば、やはり現実的なものではないであろう。
また、奈良期の建築には中世以降に出現する野小屋は設けないため、特に最上階の屋根勾配は(元興寺五重小塔のように)緩勾配にする必要があるだろう。
(天沼案復元塔が中世・近世風なのは、多くはこの屋根勾配に起因するとも思われる。)
古代の塔の平面的特徴:
現存する木造塔は総て方3間で、裳階を廻らす場合(法隆寺塔・薬師寺塔)もある。
柱間については、中央間は両脇間より広く取る場合が多い。
古代の塔の断面の特徴:
三手先組物を備えることが一般的であり、肘木は建物内部で水平に延び対辺の組物と連結し、全体は井桁状に組まれ、その交点は四天柱が支持している。上重の側柱は通常隅木や垂木の上に渡した柱盤に立て、四天柱も隅木や地垂木の尻に立てる。・・・
○山城醍醐寺塔断面図:
典型例として、例えば、醍醐寺五重塔(平安初期建立 )の醍醐寺の断面図を示す。
ところで上重では平面が小さくなるため、隣り合う組物が衝突する。そのため法隆寺塔・法起寺塔・薬師寺塔・当麻寺塔(この塔は2重も2間)
に見られるように、最上重を2間とすることがある。
但し2間にした場合、中心には心柱があるため(心柱は独立して立つ)内部に引き込んだ組物の横材が対辺の横材と十分な組み合わせが出来ず構造上の弱点となる。
天沼案七重塔では六重・七重を2間とするが、七重でも一辺30尺で、この一辺は興福寺塔初重一辺を上回り、現実には構造として無理であろうと思われる。現存する2間の割付で最大の一辺は当麻寺東塔ニ重の一辺14尺で、平面が小さい故に2間の構造が可能と思われる。
発掘された古代の塔:
7世紀以前の塔は吉備池廃寺・大官大寺を除けば、概ね現存塔と同じ規模の平面であり、その姿は現存塔とはそんなに差があるとは思われず、現存塔から推測可能であろう。
一方、奈良期の国分寺塔は七重塔が多く建立されたと思われ、また平面規模も豊後国分寺37尺、上野・相模・伊豆・美濃各国分寺は36尺、武蔵33尺、遠江32尺、山城32尺、河内34尺、丹波31尺、但馬33尺、播磨31尺、紀伊31尺、伊予34尺、若狭27尺、三河30尺、伯耆24尺、筑前30尺、薩摩18尺などであり、東寺五重塔初重平面31,3尺と同等もしくはそれ以上の平面規模を持つ塔が多く建立された。しかしいずれの塔も初重方3間の塔であった。
東大寺塔復元に参考となるであろう超大型塔の状況、発掘調査の進展で、学問的知識は大幅に増えたと思われる。
1998年に発掘された吉備池廃寺塔跡は基壇規模約32m(106尺)、心礎抜取穴は6.7×5.4m以上であり、規模・瓦の編年・瓦の出土状況が短期間での移建を示すことから、吉備池廃寺は舒明天皇発願の百済大寺の可能性が非常に大きいとされる。
(吉備池廃寺の性格については「飛鳥幻の寺、大官大寺の謎」木下正史、角川選書、平成17年などに詳述がある。)
発掘調査遺構図のように、この塔は方5間の可能性が大きいと思われ、また四天柱に相当する部分には礎石があった痕跡は見当たらず、さらに「巨大心礎」上に四天柱を立てた可能性も四天柱想定位置から心礎位置は外れていて、その可能性は無いと思われる。
「日本書記」「大安寺伽藍縁起并流記資財帳」の記録では、百済大寺には九重塔の存在が知られ、この塔跡は九重塔の可能性が非常に高い。
○塔の平面比較:
日本の塔では吉備池廃寺(基壇一辺約32m)東大寺西塔(基壇一辺約23.8m)大官大寺寺塔(基壇一辺約32m?)
が群を抜く。北魏・新羅の巨大木造塔の平面はいずれも、方5間以上の平面を持つ。
近年明らかになった大和西大寺西塔は基壇一辺約21mで、方3間の平面を持つ。
この例が現在知られている方3間の塔の最大規模の例である。
□参考:大和大安寺
1987年に発掘された大官大寺の塔跡は方5間の平面を持ち、中央には径5.5mの心礎抜取穴が確認され、6ヶ所の礎石抜取穴が確認された。ところが四天柱礎石抜取穴は確認されてはいない。
○大官大寺塔跡発掘遺構図:1979発掘調査図
○岡本桃里の塔跡図:明治初頭に描いたという
。但し若干の不正確性もあると云われる。
方5間の礎石が完存していたと思われるも、四天柱礎は描かれていない。
明治22年橿原神宮造営用材として大官大寺礎石が持ち去られる。
○本澤清三郎の実測図:
明治37年
礎石が一部抜かれた様子が描かれているが、四天柱礎は描かれていない。
(大官大寺は百済大寺の後継寺院で、「続日本記」「大安寺伽藍縁起并流記資財帳」では九重塔があったとされる。)
以上の記録では、四天柱礎はなかったと思われるが、これは
明治以前に四天柱礎のみが総て抜かれたと考えるより、四天柱礎は最初からなかったと考える方が自然であろう。
(さらに大官大寺は平城京に移り大安寺となる。)
2003年の大安寺西塔跡発掘調査では、西塔は方3間の平面で、中央間14尺両脇間13尺一辺40尺、基壇規模は70尺四方と確認され、現在柱間規模が確認できる塔跡では最大規模の塔とされる。
保延6年(1140)「七大寺巡礼私記」では東塔は瓦葺七重塔、西塔は礎石のみ残存という状況であった。
なお東大寺西塔跡の小規模トレンチ(1964年)では東北隅・西南隅で地覆石・延石が確認され、基壇規模は23.8m(80尺)と確認されている。これは基壇規模が確認できた塔跡では最大規模とされる。
□参考:「亡失心礎」の「大和大官大寺」の項を参照
。
七重塔再考:
以上の批判及び現在の知識から、箱崎氏は以下のように東大寺塔の復元を試みる。
上述の史料:6)「南都七大寺巡礼記」(管家本「諸寺縁起集」)東大寺部分は長禄元年(1457)頃成立か?)では
東塔1基 高23丈8尺、古伝如云、或36丈云、七重5間、・・・との記載がある。(蓋し平面5間とする唯一の史料である。)また「東大寺寺中寺外惣絵図并山林」では西塔の平面を側柱だけの描写ながら方5間とする。
東塔は平安期の焼失の後、再興されたが、西塔の再興は造作に取り掛かったが終に再興されることは無く、通常塔の基壇化粧は塔完成後に施工されると思われ、それ故
塔跡は創建時の形態を東塔跡に比べて、より良く残していると考えられる。
以上であるならば、その西塔が方5間で描写されているのは無視はできないであろう。
しかし当然ながら、このことは方3間の塔で裳階付きであった可能性は捨てきれないし、また同じ東西塔である春日東塔は裳階付きであったが春日西塔は裳階なしの方3間であった例もあり、東大寺西塔を裳階付きの方3間の塔に復元は可能で
あろう。
しかし、ここでは上記の史料に基づき、あえて方5間で復元を試みる。
平面規模について、「東大寺寺中寺外惣絵図并山林」
(部分)では、8間半四方(東塔)8間四方(西塔)とあり必ずしも明確ではないが、一辺50尺前後であることは間違いなく、天沼氏の実測値55尺四方が妥当と思われる(天沼氏実測値を尊重)。
柱間は方5間以上の塔では大官大寺のように等間隔とすると思われるため、柱間は11尺等間隔と想定する。
(但し柱間11尺というのは狭いというのも事実であろう。)
また大官大寺・百済大寺(吉備池廃寺)のように、方5間の塔では四天柱のない可能性も考慮しなければならない。
立面を考慮する上で、七重塔、九重塔のプロポーションは、韓国・慶州市の南山塔谷第ニ寺址に彫られた線刻に見られるように、いずれも大きな逓減を示すことが参考になろう。
○南山塔谷第ニ寺址石刻
また古い塔の特徴として、塔身に対する相輪の比率が大きいという可能性が強いことも顧慮する必要があるであろう。
以上から元興寺小塔をモデルとして立面や構造を復元することにする。
元興寺小塔は東大寺創建塔との時代も近く、またこの小塔を10倍すれば実際の建築が可能になっているといわれるように、内部構造もその当時の忠実な1/10の
建築模型と考えられるからである。
元興寺小塔は平面が1.1尺の等間隔(方3間)で、10倍すれば11尺の柱間になる。
従って元興寺小塔を10倍して実寸法にし、その上でこれを方5間に引き直し、七重を重ねたものとして構想した。
柱間は5重まで方5間、6・7重を方3間と想定した。方4間の偶数間では心柱が邪魔をして構造的に無理が生じる。
内部構造は平面を総柱(案1)とすることも、四天柱の無い構造(案2)とすることも可能であろう。
|
 |
○箱崎案東大寺七重塔:左図拡大図
左:断面図
案1:初重平面を方7間の総柱
案2:初重平面の四天柱を抜いた案である。
右:立面図
この案では、
総高が224尺(22丈4尺・67m)程度、相輪は74尺(22m)程度となる。
この相輪高は単純に元興寺小塔を10倍した値であり、実際は史料1)3)4)5)より相輪高は83〜88尺である可能性が高い。
相輪高はこの寸法だとすると、相輪部分のみ1,2倍すれば、史料の相輪高に合致する。
この場合、総高は237尺(約70m)ほどとなり、
史料の23丈6〜8尺の総高とほぼ一致する。 |
以上のように、箱崎氏は最新の研究成果および史料を取り入れ、先学の天沼氏の復元案を詳細に検討し、
天沼氏とはちがった、初重平面5間四方、軒の出のやや浅い、逓減率の大きい、総高約70m(相輪約26m)の全く新しい復元案を提示した。
○天沼案・箱崎案の比較:
左;天沼案、中央:天沼案では軒出が大きすぎるため軒出を20尺にして再上重の屋根勾配を緩くした案、右;箱崎案
乱暴に表現すれば、天沼案では古制を踏襲した近世の五重塔の拡大版のイメージであり、その意味では見慣れたプロポーションではあるが、構造上実際の建築物として成り立つのかどうかは疑問でもあった。
箱崎案では、総高は従来説より3割程度低くなり、プロポーション的にはやや寸胴のイメージに変更されたが、大官大寺などの遺構の検討により、より現実的な建築可能な形として復元できたものと評価できる。
巨大な平面を持つ七重塔・九重塔は平面5間で、近世の五重塔の引き伸ばしではない、単純に云えば、元興寺小塔を平面5間に組み直し、七重に積み重ねる構造として、具体的にイメージ可能となったと思われる。
○東大寺七重塔復元図(2003/2/22大安寺発掘調査現地説明会資料より)
・・・天沼案。
2017/01/14追加:
○2016/12/20日「東大寺東塔イメージ図」が発表される。(翌21日報道各社が一斉に報ずる。)
イメージ図はイラスト画であり、イラストは北野陽子氏作画であり、作成主体は「東大寺東塔建築についての検討会」である。
◇各社報道の要旨は次の通りである。
イラスト画の前提として、発掘調査の知見が反映されたという。
その発掘調査の知見とは、東塔の創建時基壇は方24.2m、高さ1.77mで、初重平面は5間と判明する。
また基壇石階の位置も確定されたということである。
さらに、塔の高さについては、平安期の文献に「23丈(約70m)」と「33丈(約100m)」の記述があるが、高さ約100mを前提としてイメージ画を作成したという。
各重の意匠については、奈良期の元興寺五重小塔を参考にし、『「東大寺東塔建築についての検討会」によると、塔が縦に間延びして見えるのを防ぐため、各階にある高欄を複雑な造りにし、初重には裳階を付けて外観を工夫。主要部材は、古代の寺院や宮殿で一般的に塗られた赤色とした。』という。
※高さに関する諸記録は、前述の通りであるが、再度、「奈良歴史漫歩 No.060 大寺東西塔の復元」橋川紀夫 からの引用で示せば次の通りである。
『東大寺要録』では、東西塔について次のように記す。
塔2基、並7重、東塔高23丈8寸、西塔高23丈6尺7寸、露盤高各8丈8尺2寸(以上巻第2)
東塔院、7重宝塔1基、高23丈8寸、塔内安四方浄土、在回廊
西塔院、高23丈6尺7寸(以上巻第4)
露盤1具、高8丈3尺、第1盤径1丈2尺(以上巻第7)
しかし、『朝野群載』では、東塔高33丈8尺7寸、西塔高33丈6尺7寸、露盤高各8丈8尺2寸、
『扶桑略記』では、東塔高33丈8寸、西塔高33丈6尺7寸、露盤高各8丈8尺2寸と記される。
さらに
西塔と東塔との初重平面柱間の相違については、次のような慧眼を示す。
「江戸時代初期の絵図「東大寺寺中寺外惣絵図并山林」には、東西の塔跡が回廊とともに描かれる。東塔が柱間3間四方で四天柱もあり「8間半四面」と記す。西塔は柱間5間四方の側柱のみを描き、「8間四面」とする。明治の調査よりも300年前の観察であり、残存状態も明治期よりも良かっただろう。
東塔と西塔で異なっているのが注目される。東大寺は鎌倉の復興期に新しい建築様式を大胆に採用したから、東塔にも変更が加えられた可能性が高い。結局再建されなかった西塔が、奈良時代創建期の遺構を保っていたとも考えられる。」と。
つまり、奈良期創建時の平面の柱間は、東西両塔とも、方5間であったのだ。しかし、東塔は鎌倉期の再建にあたり、大胆に新様式を採り入れたから、平面は5間ではなく3間で再建されたのであろうと。江戸時代初期の絵図「東大寺寺中寺外惣絵図并山林」の礎石描写はまさに以上のことを正確に写して(記録して)いるのであると。
東大寺東塔(奈良期)イメージ画:初重・2重・3重は平面方5間、4重・5重は平面方4間、6重・7重は平面方3間、初重は裳階付、各重の高欄は
出組(と思われる)で支持する構造とする。
●1/50東大寺復元模型:東大寺大仏殿展示、創建時推定復元模型など
2022/05/20撮影: ○奈良市役所展示の平城宮跡復元模型 →平城宮跡復元模型:平城宮での姿が再現される。
★東大寺東塔心礎
○「日本の木造塔跡」:
南大門を入って右手に「西南役陣亡陸海軍人の碑」(明治26年建立)がある。
この碑の土台には多くの石が積み上げられている。その中に東塔心礎と推定される礎石が2つに割られて混ざる。
2つを合せると、
出枘の径は99cm・高さ29cmで、さらに出枘の上に幅15〜9cm高さ9cmの突起がある。
※出枘の上の楔状の突起は、その例がなく、どのような性格のものかは良く分からない。
柱座と思われる平滑な面も認められ、その径は185cmと推測される巨大な心礎の残欠である。
心礎残欠の外に数点の側柱礎と思われる礎石も混在する。
(心礎を割り、石碑の台石として積上げ、この碑の建立は無残さを絵に描いたような情景である。)
西南役陣亡陸海軍人の碑
東大寺東塔心礎1 東大寺東塔心礎2
東大寺東塔心礎3
東大寺東塔心礎4
東大寺東塔礎石
2006/06/17撮影:
●西南役陣亡陸海軍人之碑
上記、2つの心礎残欠(出枘部2/3残と1/3残の2個)を合せると、心礎出枘が復元される。
出枘周囲も殆ど割られているが、柱座と推定される削平面も明確に残る。
この心礎を東大寺東塔心礎とする根拠は、この心礎が巨大であることと東塔とこの石碑の位置が隣接していることに依る。
□碑基壇などに転用礎石:2006/06/17撮影
碑参拝台転用礎石
碑基壇転用礎石1
碑基壇転用礎石2
2012/02/07追加:
○「奈良市付近の石造物(石造物の石材研究V)」奥田尚、考古石材の研究会、2011 より
◇「西南役陣亡陸海軍人の碑」は谷川喜六が明治26年に建立する。
喜六氏は西南戦争(明治10年)戦没者と軍艦千島(明治25年瀬戸内海で商船と衝突沈没)殉職者と喜六氏亡父50回忌を東大寺大仏殿で営み、それを紀念してこの慰霊碑を建立すると云う。
なお、この碑の南側の建物の庭には造出を持つ多くの転用石(置石・沓脱石)がある。これ等の柱座径はこの碑にある礎石の造出の径よりはるかに大きいものが多い。この庭園内にある礎石の方が東塔礎石と見る方が合理的であろう。(建物名称不明・未見)
心礎:碑の基壇後方の積石の中と供養碑の台の部分に東塔心礎の残欠があると云われる。この2つの石材は「片麻状斑状黒雲母花崗岩HC」で、岩相は同一である。産地は加茂町大野山付近が想定される。
慰霊碑石材分布図
2012/01/28撮影:
東塔心礎残欠(出枘2/3)11 東塔心礎残欠(出枘2/3)12 東塔心礎残欠(出枘2/3)13
2012/02/26撮影:
出枘1/3残欠:東塔心礎残欠(出枘1/3)21 東塔心礎残欠(出枘1/3)22 東塔心礎残欠(出枘1/3)23
東塔心礎残欠(出枘1/3)24
出枘2/3残欠:東塔心礎残欠(出枘2/3)21 東塔心礎残欠(出枘2/3)22
なお、直ぐ上の論考で云う「南側の建物」とは本坊のことであろうか。本坊は立入が不可で、門外からの観察は可能であるが、門外から見える範囲では礎石らしきものは見当たらない。
2015/11/21撮影:
心礎残欠(出枘1/3)41 心礎残欠(出枘1/3)42 心礎残欠(出枘1/3)43 心礎残欠(出枘1/3)44
心礎残欠(出枘2/3)41 心礎残欠(出枘2/3)42 心礎残欠(出枘2/3)43 心礎残欠(出枘2/3)44
心礎残欠(出枘2/3)45 碑基壇転用礎石41
2023/05/01撮影: 西南役陣亡陸海軍人之碑の移設
西南役陣亡陸海軍人之碑:移設後基壇、既に基壇上面などにあった「心礎残欠」などは撤去されている。
この碑は東南院(本坊)北にあったが、突然、真言院(勧学院)東側(大仏殿参道側)に移建される。
東大寺に移設理由および東塔心礎残欠について問い合わせると、以下のような回答があった。 勧学院東の門前に、基壇を為す礎石を含めて旧状のまま、移設する。
移設理由は、すぐには分からない。 移設時期は正確ではないが、3、4、5年ほど前にである。
しかし、「基壇を為す礎石を含めて旧状のまま、移設」とのことであったが、「東塔心礎残欠」は移設されてはいない。 さらに、問い合わせると、
「東塔心礎残欠」は本坊内に保管している。公開する予定はない。 とのことであった。残念はことである。
★東大寺西塔心礎
東大寺西塔心礎と云われる礎石が以下3箇所にある。
1)奈良依水園伝東大寺西塔心礎(2/5残欠)
※残欠ではあるが、礎石の巨大さまた残存する柱座の大きさから、東大寺西塔心礎である可能性はかなり高いものと思われる。
2)大阪旧藤田男爵邸(現太閤園)東大寺伽藍石
※この伽藍石は依水園の2/5残欠に見合う3/5残欠との見解もあるが、3/5残欠には該当しないと思われる。
形状および大きさから判断して、東大寺東西塔いずれかの側柱礎石の可能性が高いと思われる。
3)大阪旧藤田男爵邸(現藤田美術館)伝東大寺東塔あるいは西塔心礎あるいは東大寺塔礎石
※大きさから判断して、東大寺塔の心礎ではなく、東大寺側柱礎の可能性が高いと思われる。
◆1)奈良依水園伝東大寺西塔心礎(西塔2/5残欠と伝承)
2012/01/28追加:「X」氏情報並びにご提供画像
●「石造物の石材研究T」 より
「奈良盆地東南部の中・近世石造物(石造物の石材研究T)」考古石材の研究会、奥田尚、2009
(※およそ以下の内容の記載があると云う。<未見>)
依水園にはいくつかの礎石が搬入される。
その1つには東大寺西塔心礎の伝承がある。この礎石は、全体の2/5しかなく、残り3/5は大阪の太閤園に運ばれている。
(依水園・後園の池の畔に巨大な柱座をもつ礎石の残欠がある。)
また、この近くにある柱座を持ついくつかの礎石も東大寺西塔から運ばれたとの伝承がある。
●2012/01/21「X」氏撮影画像:
2012/02/02追加:
●「奈良市付近の石造物(石造物の石材研究V)」奥田尚、考古石材の研究会、2011 より
依水園石材配置図:
9-伝東大寺西塔心礎、10、11、12,13-伝東大寺礎石、14-奈良期の礎石(造出あり、未見)、東池中島にも造出を持つ礎石がある。
なお、伝東大寺心礎や礎石には異論を唱える説もある。
伝東大寺西塔心礎:
「この造出を持つ石は西塔の心礎で2/5に相当し、残り3/5は藤田男爵の庭(現太閤園や藤田美術館)に運ばれている」と説明される。
この心礎の割面は自然に生じたようで、矢穴のような痕跡が見られない。上面には造出の縁の部分が僅かに残る。
石材は推定・岩淵川付近で採取された石(片麻状細粒黒雲母花崗岩TY)である。
※上記の「説明」とはどのような「資料」に基ずくものなのかは全く言及がなく、分からない。
●2012/01/28撮影:
●依水園伝東大寺西塔心礎実測
礎石最大巾290cm、礎石の高さは凡そ160cm内外、残存する柱座径155cm、柱座高さ12cm
依水園伝西塔心礎実測図
この残存する残欠の巾が3mに近く、完形であれば3mを越えると推定され、その高さも160cm内外で巨大である。
また残る柱座の径が155cmであり、おそらく完形であれば2mに近いものと推定される。
この礎石の出枘もしくは枘孔は中心部が残存しないので全く不明ではあるが、この大きさから、東大寺西塔心礎の残欠である可能性が
かなり高いものと思われる。
◎なお、現太閤園にあると説明される「残りの3/5の残欠」は現存しないと思われる。
その理由については、下の2)現太閤園伝東大寺伽藍石の項で述べる。
●依水園のその他の遺物:2012/01/28撮影:
依水園風景・礎石:手前は伝心礎、中央に礎石があり、すぐ上やや左にも礎石が写る。上方右屋根は東大寺南大門
以下の写真の礎石は西塔礎石とも云われるが、東大寺西塔礎石とするには小さすぎ疑問であろう。
伝西南院礎石10-1:岩質は「片麻状細粒黒雲母花崗岩TY」と報告される。 伝西南院礎石10-2:後方は伝心礎
伝西南院礎石10実測図:大きさは凡そ径150cm高さ凡そ100cm、柱座径100cm高さ10cmを測る。
伝西南院礎石11-1 伝西南院礎石11-2
伝西南院礎石11実測図:径105cm高さ10cmの柱座を持ち、柱座内に径88cmの巾2cmの浅い溝を廻らし、中央に径25cmの出枘の痕跡を残す。出枘は完全に削平され痕跡のみ残る。
伝西南院礎石-中島
伝西南院礎石12 伝西南院礎伝13
伝大和郡山城蹲:大和郡山城豊臣秀長の茶室にあったものと伝える。菊と桐を重ね合わせた文様が表裏2面刻まれ、一方は菊が上にもう一方は桐が上になるように刻まれる。
美術館入口礎石:造出があると云う。<未見・写真なし>
●依水園での聞き取り(依水園関係者・男性、2012/01/28)
1.2年程?前、NHKの番組で依水園の照会が放映された。庭師が出演。
庭師いわく、全国放送なので「嘘は云いたくない」とのことで、伝東大寺西塔心礎について依水園としても橿原考古研に調査を依頼した。
その結果は、確たることは云えないとのことであった。
2.残り3/5については太閤園にも問合せをした。
太閤園の回答は「その礎石は手水鉢に改造した」とのことであるので、太閤園にあるのではないかと思う。
3.伝西塔心礎以外の礎石は西南院(東大寺)の礎石と伝わる。
(・・・※確証があるわけではなく、後園が西南院跡といわれるからであろう。)
4.現在東大寺において、東塔の再興が企図されている。
●依水園略歴
前園は、興福寺摩尼珠院の別業の地と云う。(「奈良坊目考」)
延宝年中(1673-)奈良晒業者清須美道清の別邸として造営される。
後園は、明治32年、奈良の富商、関藤次郎の手により造園される。
昭和14年、神戸の海運業中村家の所有に帰す。昭和44年、中村家蒐集美術品を展示する寧楽美術館を建設し、て一般公開する。
◆2)旧藤田男爵邸・現太閤園所在・伝東大寺礎石(西塔3/5の部分とも云われる。)
◇2011/04/25追加:
太閤園発行のチラシ(Taiko-en Garden Overview・太閤園庭園のご案内)に「大伽藍礎石・東大寺塔礎石」の紹介がある。
太閤園は藤田観光の経営で旧藤田男爵邸の一部である。
東大寺大伽藍礎石:「Taiko-en
Garden Overview」より転載
紹介文:Daigaran Foundation Stone(大伽藍礎石)
Laid during the Heian Period. (平安期作)
There are no existing records Indicating whether this was for
Todaiji's east or west Pagoda,
but it is certainly one of Japan's oldest remaining Foundation
Stones.
(東大寺東塔の礎石なのか西塔のそれなのかは記録が無く不明であるが、日本最古の礎石の一つである。)
写真で見る限り、出枘式の礎石であろう。表面に円穴が彫られるも、後世の加工であろう。
大きさなど不明であるが、おそらく巨石であり、東大寺塔の礎石に相応しいものであろう。
東大寺伽藍石所在場所:写真の(2)の場所に東大寺大伽藍礎石がある。
◇2011/06/25撮影:
|
 |
礎石は花崗岩で、上面に柱座と左右の2方向に地覆座を造り出し、柱座の中央に出枘を繰出す。
礎石実測値:大きさは差渡し250cm、柱座の上面の直径は160cm、出枘の径は40cm。(何れも概数)
藤田美術館のある出枘を持つ礎石に匹敵する大きさと高度な加工が施された礎石である。大きさや造作から見て東大寺塔礎石であっても不思議ではない。
但し藤田美術館蔵の礎石とは、柱座の径や出枘の径の大きさが違い、藤田美術館蔵礎石とは別の塔の礎石のように思われる。
伝東大寺塔礎石1
伝東大寺塔礎石2
伝東大寺塔礎石3:左図拡大図
伝東大寺塔礎石4 |
◇2012/02/02追加:
●「奈良市付近の石造物(石造物の石材研究V)」奥田尚、考古石材の研究会、2011 より
伝東大寺西塔心礎:
「奈良依水園の造出を持つ石は西塔の心礎で2/5に相当し、残り3/5は藤田男爵の庭(現太閤園や藤田美術館)に運ばれている」と説明される。
この依水園の石材は推定・岩淵川付近で採取された石(片麻状細粒黒雲母花崗岩TY)である。
※上記の「説明」とはどのような「資料」に基ずくものなのかは全く言及がなく、分からない。
太閤園の庭には、「東大寺礎石」の立札のある大きな礎石がある。自然の割目が上下に入る。
上面に方形の造出があり、円形の窪みがある。これらは後に作られたように見られる。建物側の面は窪んでおり、欠損しているようである。
石種は依水園と同じ片麻状細粒黒雲母花崗岩TYであり、岩相的には似ている。太閤園にある心礎の建物側の割れている面と依水園の心礎を合わせた訳ではないが、説明による「3/5の部分」に相当するようである。
※以上のように報告されるが、現地で観察すると、以下のように思われる。
(2012/02/01撮影、2012/01/31観察)
まず、岩質が両者とも「片麻状細粒黒雲母花崗岩TY」であるのはその通りなのであろう。(素人なので判断できないが、事実なのであろう。)
しかしこのことが、1つのものが2つに割れたことを示すのか、あるいは別々の石であっても産地が同じということを示すだけなのかは分からない。
※現に、上述「(石造物の石材研究V)」でも依水園にある5個の礎石のうち、心礎を含む2個が「片麻状細粒黒雲母花崗岩TY」と報告されている。
さらに、「上面の方形造出」の「方形」とは何を指すのか良く分からないが、地覆座のことを云うのであろうか。
もし地覆座のように見える部分を云うのであれば、この「方形の造出」が「後に作られたように見える」とは主観でしかない。後世の加工と云うように見ればそのようにも見えるし、元来からその形であったのであろう云うように見れば、そのようにも見えるということでしかない。
※しかしながら、複雑な造出の形をしていて、後から(円孔を穿つ時に)加工された可能性はあるとは思われる。
※「円形の窪み」は明らかに手水鉢として加工されたものであることは明瞭である。
さて、一番問題なのは「太閤園にある心礎の建物側の割れている面と依水園の心礎を合わせた訳ではないが、説明による
『3/5の部分』に相当するようである。」との見解である。
本当にそうであろうか。
依水園の残存礎石は45度に近い角度で、上面が少なく下面が多く残る形状で、割れている。
もし、依水園の残欠と太閤園の礎石が合うのであれば、太閤園の礎石にも45度に近い角度で、依水園とは逆に上が多く下が少なく残る形状でなければならない。
・太閤園の礎石西面は全くその形状は見られない。
伝東大寺礎石西面1 伝東大寺礎石西面2
・礎石南面は45度に近い角度で、上下に「自然の割れ目」が入る。しかも小さい方は更に2つに割れている。
一見、依水園の礎石と合致するかとも思われるも、そういう具合にはいかない。
つまり、割れた片割れの石は、下の写真のように、今太閤園にピタリと合致する形で置かれている。
割れ目は勿論、造出も合致し、石質も合致する。
割れた片割れの石が依水園にある可能性は全くないのである。
伝東大寺礎石南面1 伝東大寺礎石南面2 伝東大寺礎石南面3 伝東大寺礎石南面4
伝東大寺礎石南面5 伝東大寺礎石南面6
・礎石東面は確かに斜め内側に45度に近い角度に割れ、その割れた片割れの石は存在しない。
しかしこの割れた部分の巾は約1mほどであり、依水園の2/5残欠に相当するようなものではない。さらにこの割れ面の表面は平らに削平され、到底依水園の2/5残欠の割れ面と比較できる状態
にはない。
※見事に平に削平されている(自然の割れ面では有り得ない)のは何を意味するのかは全く分からない。
但しこの礎石の高さは140cm内外あり、依水園の残欠の高さと大幅な矛盾がある訳ではないが偶然と云うことであろう。
伝東大寺礎石東面1 伝東大寺礎石東面2
・礎石北面も全くその形状は見られない。
伝東大寺礎石北面1 伝東大寺礎石北面2
●要するに、この礎石が依水園の2/5の残欠と合い、3/5の部分に相当するとは到底思われないと云わざるを得ない。
以上のように、この礎石が依水園の2/5残欠に見合う3/5の残欠であるとするには無理がある。
むしろ、そう考えるよりは、この礎石は多少後世に加工され、また周囲の剥落がみられるも、ほぼ原形を保つと見るべきであろう。
つまり、この礎石には明らかにほぼ中央に出枘が存在する。
(後世にわざわざ出枘まで造り出す加工を施すとは到底思われない。)
出枘がほぼ中央に在ると云うことは、周囲が多少割られまた自然剥落も多少あるとしても、この礎石はほぼ原形の大きさや形状を保つのではないだろうか。
だとすれば、この礎石は依水園の2/5の残欠と合致する3/5の残欠では有り得ない。つまり西塔心礎では有り得ないのである。
むしろ、その大きさや形状から、下の「3)藤田美術館の推定東大寺塔礎石」と同様に東大寺塔礎石(側柱もしくは四天柱礎)とするのが妥当であると思われる。
伝東大寺塔礎石上面21 伝東大寺塔礎石上面22 伝東大寺塔礎石上面23 伝東大寺塔礎石上面24
伝東大寺塔礎石上面25
※上面はいわば二段の柱座があり、上の柱座の中央に出枘がある。これは殆ど類例を見ない形式である。
確かに柱座は珍しい形式ではあるが、上述のように、出枘を後世に彫り出すなどはまず考えられないから、出枘(径40cm)は当初から
のものであろう。そして上の柱座(径160cm)とその両端に付く地覆座も当初から存在するものであろう。
また、柱座が二重になっているのは凡そ半分くらいで、上の柱座は上記のように柱座・地覆座であろうが、下の柱座は平面が不完全な八角形を呈する。
この下段の八角柱座が当初からあるのか、後世の加工であるのかは分からないが、「(石造物の石材研究V)」で「後に作られたように見られる。」という通り、後世(藤田男爵邸に搬入後)の加工の可能性があることは否めない。
※要するに、この礎石は多少の後世の加工や周囲の剥落があるとしても、その柱座の形式とその大きさからまさに東大寺塔の側柱礎に相応しいものであると思われる。
なお、旧藤田男爵邸は現太閤園だけでなく、藤田美術館、藤田邸跡公園(特に広大である)、大阪市長公舎などを含む。
もし、心礎3/5残欠が藤田男爵邸に運ばれたとすれば、それが現太閤園の場所に置かれたという確証はないのではないか。
もし、広大な敷地のどこかに置かれたとすれば、未発見であるとか空襲や戦後の混乱でその残欠は亡失したことも考えられるであろう。
※藤田邸跡公園には探した限りでは大規模な礎石は見当たらない。公邸は分からない。
またこの礎石付近に奈良期と推定される造出のある輝石安山岩WY(若草山付近の石)の礎石があり、心礎と同様に奈良方面から運ばれたものであろう。
※この造出のある礎石は下に掲載の「太閤園中型礎石」
、「太閤園中型礎石2」を指しているもの思われる。
依水園の心礎はその下部から上部が2/5であり、太閤園のものは上部が3/5である。従って理屈的には太閤園のものが先に採取され、残りの部分を依水園に運んだことになる。依水園の東庭は明治32年に造園されたことから、太閤園の庭に運ばれたのはそれ以前となる。
明治25年奈良-湊町間の鉄道開通。明治26年建立の「西南役陣亡陸海軍人の碑」の石は加茂町大野付近から大仏殿まで運ばれる。
太閤園の心礎の運搬は「石碑」の逆ルートで大野まで運び、木津川-淀川の水運を利用し、太閤園付近で陸揚げしたのであろう。太閤園の位置から見て、鉄道輸送より水運が便利であろう。
※しかし、旧藤田男爵邸の造営は明治42年と云われ、これが事実とすれば、明治32年以前に心礎を搬出という見解は少し無理がある。
参照: →旧藤田男爵邸
◇2011/06/25撮影:
伝東大寺塔礎石以外に何れも造出を持つ中型礎石1個、小型礎石2個が散見される。
太閤園中型礎石:柱座径は92cm。 太閤園小型礎石1 太閤園小型礎石2
その他多くの石造品がある。
太閤園十三重石塔:鎌倉期
◇2012/02/01撮影:
さらに以下の礎石などがある。上述の中型礎石1個、小型礎石2個以外にさらに中型1個、小型3個(内1個は藤田邸跡公園にある)がある。
太閤園中型礎石2:上に掲載のものと同一礎石
太閤園中型礎石3
太閤園小型礎石3 太閤園小型礎石4 太閤園小型礎石5:十三重石塔
の前に置かれる。柱座径70cm。
太閤園小型礎石6:藤田邸跡公園にある。柱座径83cm。
その他の石造物として
紹鴎の塔(石造五重塔、室町、京都建仁寺正伝院から移建)、石造阿弥陀如来坐像(室町)、石造鬼石(室町)、石造六地蔵板碑(室町)、
石造阿弥陀三尊(室町)、石鳥居(室町)などがある。
◆3)旧藤田男爵邸・現藤田美術館所在・推定東大寺東塔あるいは西塔心礎あるいは塔側柱礎石
※この現・藤田美術館所在の「推定東大寺東塔あるいは西塔心礎あるいは塔側柱礎石」は → 藤田美術館/東大寺礎石 を参照。
※※その他の石造遺物 2023/06/15追加: ◆伝大和東大寺石造蓮池 小田原の松永記念館庭園に「伝大和東大寺石造蓮池」がある。
★東大寺東塔跡・西塔跡
2006/03/11追加:
「平成12年度秋季特別展 大仏開眼―東大寺の考古学―」橿原考古学研究所附属博物館、平成12年より
西塔跡は一度発掘調査が行われたことがある。塔基壇は一辺23.8mで凝灰岩製壇上積基壇であった。基壇のほぼ中央の土坑から斗栱(大斗)2個と長さ1.2mの角材が出土。1つは縦に割れ、もう1つは上部がない。大斗の上一辺は43cm、高さ約27cmと云う。
東大寺西塔西南隅
西塔跡出土の斗栱・角材
2007/02/07追加;「大和の古塔」:
東塔は芝張・美しく整形され、南面石階址に東側には松香石の羽目板が残存する。
大正初年まで東西両塔跡ともいくつかの礎石を存した。
◆東大寺西塔跡
2000/8/18撮影:
西塔跡:東大寺西塔跡1
東大寺西塔跡2
2006/06/17撮影:
西塔跡:東大寺西塔跡1
東大寺西塔跡2
東大寺西塔跡3
東大寺西塔跡4
2012/02/26撮影:
西塔跡:東大寺西塔跡11 東大寺西塔跡12 東大寺西塔跡13 東大寺西塔跡14
2015/11/21撮影:
西塔跡:東大寺西塔跡41 東大寺西塔跡42
2018/10/15撮影: 西塔跡:東大寺西塔土壇43 東大寺西塔土壇44 2023/05/01撮影:
東大寺西塔土壇45 東大寺西塔土壇46
◆東大寺東塔跡
2000/8/18撮影:
東塔跡:東大寺東塔跡1
東大寺東塔跡2
2006/06/17撮影:
東塔跡:東大寺東塔跡1
東大寺東塔跡2
2012/02/26撮影:
東塔跡:東大寺東塔跡11 東大寺東塔跡12 東大寺東塔跡13
2019/11/10撮影: 東塔跡:東大寺東塔跡14 東大寺東塔跡15
→ 重源/東大寺別院・周防阿弥陀寺(周防国分寺中>参考:周防阿弥陀寺 を参照)
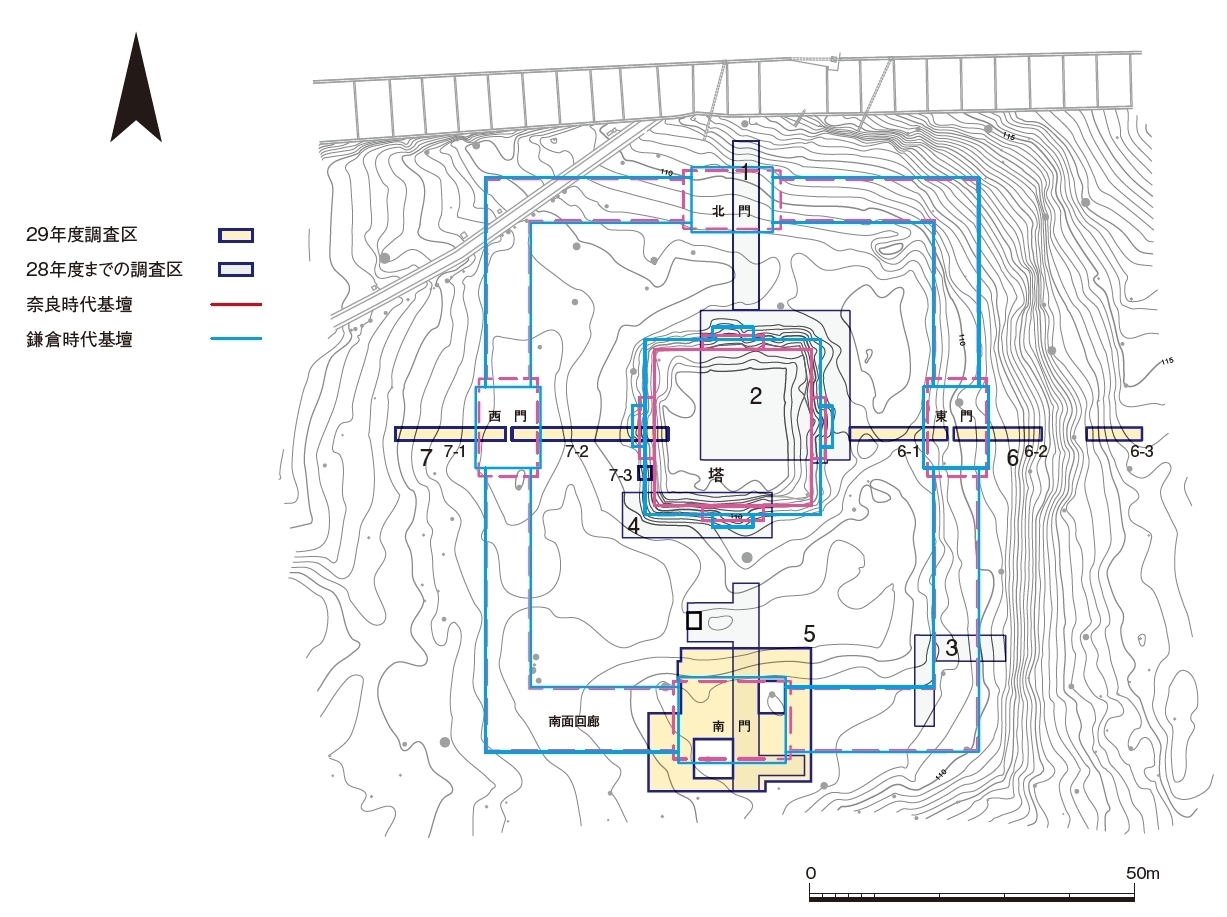
●2015/11/21:東大寺東塔院跡・平成27年度発掘調査結果の現地説明会実施。
今回の発掘調査では、鎌倉再興時の塔の基壇を発掘、確認する。
即ち、鎌倉再興時基壇は方約27m、高さは1.7m以上で、奈良期の創建時基壇上と周囲に盛土をし、ひと回り大きな基壇が造られ、その上に鎌倉再興塔が建立されたことが明確になる。つまり盛土には焼土が混ざり、混在している瓦はすべて奈良期の瓦であった。
心礎及び礎石はすべて抜き取られているが、その抜取穴から初重経綿は3間四方であること、中央間20尺(6m)両脇間18尺(5.4m)であろうと推定されることが確認される。
この柱間は東大寺南大門の柱間と一致するという。つまり鎌倉再興東塔は創建時の塔より規模を拡大した訳であるが、それは大仏様の規格で再建するという意図であり、もしそうであるならば、鎌倉再興塔は大仏殿・南大門と同じく、大仏様という新様式で統一されて再建されたということであろう。
基壇の細部については、基壇の東面及び北面から基壇外装の下部(延石など)やその外側の石敷、階段の踏み石や痕跡を検出する。また北面の階段から参道が北方に伸びることも発見される。
一方、鎌倉期の盛土中から、奈良期の東面階段と束石・羽目石の一部が発掘される。鎌倉再興時に埋めてしまった奈良期基壇外装があることを示唆するのであろう。
以上のことから、奈良期の基壇は約24m四方と復原でき、これは西塔基壇規模が方23.8mと発掘で確認されているから、創建時の東塔は西塔とほぼ同じ規模であったといえるであろう。
なお、東塔を囲む東塔院を構成する回廊の基壇も発掘され、鎌倉期の回廊も明確にされる。
今般の調査は、将来的には東塔院の再建を企図しているということで、これから10年がかりで塔の規模や構造を確認するという。
さて、その姿はどのようになるのは、まったく想像を絶することである。
○2015/11/21現地説明会リーフレット より
○2015/11/21撮影:
2016/04/30追加:
●東大寺東塔院跡平成27年度発掘調査続報(平成28年度続報)
2016/04/22「創建時基壇確認と『七』文字入り瓦発掘」との報道発表があったようで、04/23報道各社が報道する。
報道各社(NHK、朝日、毎日)の報道を要約すれば、以下のようである。
1)東塔の創建時(奈良期)の基壇が発見される。
しかし、これは既に2015/11/21の現地説明会で説明されていることで、新たな発見ではない。
基壇の高さはおよそ1.5mで、いわゆる壇上積基壇である。
2015/11/21の段階では上に掲載したように、(下に再掲載)
基壇東面/奈良期遺構、延石・石敷 基壇東面/基壇外装1 基壇東面/基壇外装2 基壇東面/基壇外装3
奈良期の基壇外装が僅かに発掘されている状態であった。
鎌倉期の再建にあたっては、創建時の基壇を損なうことなく、一回り大きな基壇に拡幅され再興されたと思われる。
即ち、創建時の基壇は一辺24mで、鎌倉の再建時に一辺27mへ拡幅されたということも既に発表済である。
創建時東塔基壇1 創建時東塔基壇2:東面の基壇で、上記の写真の部分がさらに発掘されている。
2)東塔周辺の発掘調査から、「七」の文字がある軒丸瓦20点以上が出土する。
軒丸瓦は直径約15cmで蓮華文の中央に「七」とあり、いずれも同じ鋳型で作られ、再建時の13世紀初頭の製作とみられる。
ところで、東塔の平安末期-鎌倉期の概要は次の通りである。
治承4年(1180)平重衡焼討ちにより東塔焼失。
元久元年(1204)東塔再興始まる。貞応2年(1222)相輪をあげ、嘉禄3年(1227)回廊が完成。
この間、東大寺大勧進職は初代重源から2世栄西、3世行勇と受け継がれる。
安貞元年(1227)第3世大勧進行勇により東塔竣工。
以上の概要を踏まえ、「七」の文字瓦の出土については、次のような評価である。
建永元年(1206)京にあって法勝寺の再建に全力を注いでいた栄西は第2世東大寺大勧進職に就くが、栄西は法勝寺九重塔の再建にも関わり、法勝寺跡からは2010年に「九」の文字瓦が出土しているという。
※法勝寺出土瓦:→法勝寺出土瓦
発掘調査団長の鈴木嘉吉・元奈良文化財研究所長(建築史)は「重源は梵字入りの瓦を作らせており、数字瓦は栄西の個性だろう。東塔再建に栄西が深く関わっていたことも示す興味深い発見だ」という。
「七」文字入り軒丸瓦1 「七」文字入り軒丸瓦2
現場は既に埋め戻され、成果は4月29日〜5月13日、東大寺ミュージアムで開く速報展で紹介し、瓦約30点も展示するという。
(文化財を私物化しているような特権を感じ、納得できない処置ではある。)
●2016/10/08:東大寺東塔院跡・平成28年度発掘調査結果の現地説明会実施。
●2016/10/04東大寺東塔発掘調査報道発表資料
東塔跡の発掘調査で奈良期創建当時の基壇が出土する。出土遺構は基壇北面で階段の踏み石の一部を確認。踏石の3段分の表面は黒く焼け焦げた状態であった。また階段の後ろ側を構成する石材が斜めに倒れた状態で出土する。そして脇の石材も焦げた跡が見つかった。
これは平重衡の南都焼き討ちで、東塔が焼け落ちたときの痕跡であるのは間違いないだろうと判断される。
●東大寺東塔院跡平成28年度発掘調査:現地説明会資料(リーフレット「東大寺東塔院」) より
今回の調査では3か所の調査区を設定。A区は昨年度と同じで、東塔中心から塔基壇及び周辺を含む北東部である。
B区は塔基壇南面に設定し、C区は塔基壇から南に伸ばした区域で、東塔院の南門及び参道の確認を目的とするものである。
◇調査区平面図
鎌倉期の再興塔基壇は、奈良期の基壇の周囲と上に盛土をして一回り大きくしたものであったことは昨年度の調査で判明しているが、今年度の調査では鎌倉期の礎石を置く個所には、基壇造成の工程で環状に石が配され、その中は他の部分より盛り土が強固であることが確認される。
塔基壇の石敷は南面・西面は大半が失われていたが、幸いにも西南隅の石敷が残存することが確かめられる。
鎌倉再興基壇に覆われている奈良期の基壇についても知見が深まることとなる。
昨年度は東面階段の側面に該当する基壇外装(凝灰岩製)を検出した訳であるが、今年度は南面階段の東側面でも、やはり基壇外装が発掘される。
さらに基壇北面では奈良期の階段踏石の一部を検出する。
○以下は2016/10/08「X」氏撮影画像である。(s_minagaは未見)
○発掘現場遠望
東塔院跡発掘現場1:A区東面と北面
東塔院跡発掘現場2:A区北面と東面
東塔院跡発掘現場3:同左
○A区東面基壇
○A区北面基壇:北面では鎌倉期遺構の内側から奈良期の遺構が発掘されている。
以下の写真で奈良期の遺構が連続して発掘されている状況が分かる。
A区北面基壇1 A区北面基壇2 A区北面基壇3 A区北面基壇4
※なお、上記の「A区北面基壇1」の写真のほぼ中央に花崗岩と思われる白く輝く大きな石の破片が写るが、これは礎石の破片と推定される(「X」氏情報)という。現地で調査員に質問したところ、そのような回答を得るという。
詳細な写真については、この項の最下段「推定礎石破片」として掲載をする。
○B区南面基壇
B区南面基壇:南面石階と基壇西側を発掘する。
南面基壇南西隅遺構:鎌倉期遺構の内側に奈良期の基壇外装の一部が出土する。
B区南面南西隅遺構1 B区南面南西隅遺構2 B区南面南西隅遺構3
○A区基壇上遺構
心礎を中心に礎石据付痕などが分かる。
東塔基壇上遺構1 東塔基壇上遺構2
心礎跡:以下に上掲の「調査区平面図」中の写真3に相当する写真は無いが、別方向から写した写真を掲載する。
東塔心礎跡1 東塔心礎跡2 東塔心礎跡3 東塔心礎跡4 東塔心礎跡5
鎌倉期礎石据付環状石列
東塔鎌倉期礎石環状石列1:この写真は上掲の「調査区平面図」中の写真4に相当する
。
鎌倉期の基壇盛土中に環状の石列を確認。これは鎌倉期の礎石据付の為であろうか。
東塔鎌倉期礎石環状石列2
鎌倉期礎石据付穴
東塔鎌倉期礎石跡
○推定礎石破片
B区北面基壇北東隅やや東側から礎石の破片と思われる石の破片が出土する。
「X」氏が現地説明会で調査員に確認したところ、礎石と推定しているとの説明であったという。
推定礎石破片は花崗岩と推定される。勿論完形ではなく、割られた剝片であり、しかも薄い破片である。
上記の「東塔心礎」の項で述べたように、東塔からは明治26年頃礎石が搬出された可能性が高く(あるいは大正初年ころは東西塔ともいくつかの礎石が残っていたともいう)、その搬出の時に割られた破片が塔跡に残存したのであろうか。
礎石の破片は写真で見る限り、異様に新しく、白く輝き、これは割られたのが明治の後半であり、割られてすぐに土中に埋もれたからのであろうか。
○出土遺物
東塔跡出土鬼瓦:(鎌倉末)
東塔跡出土瓦:軒丸瓦、軒平瓦(朱色の顔料が付着/奈良期-平安期)、軒平瓦(奈良期)
●2017/10/07:東大寺東塔院跡・平成29年度発掘調査結果の現地説明会実施。(2017/10/16追加)
※但し、本人(s_mnaga)は説明会には不参加、現地説明会資料をそのまま転載する。
◎「平成29年度解題史跡整備事業に係る発掘調査」史跡東大寺旧境内発掘調査団、2017 より 調査位置図:
調査位置図:今回は南門跡及びその回廊と付帯設備の発掘であった。
南門付近平面図
南門付近平面図
写真資料
南門付近写真1:南門・南面回廊北雨落溝:鎌倉期 南門付近写真2:南門・南面回廊礎石抜取穴:鎌倉期
南門付近写真3:南門に至る南参道:鎌倉期 南門付近写真4:南面回廊南雨落溝:鎌倉期
南面回廊北雨落溝内の遺物
5区の発掘調査で、南門は3間(中央間15尺、両脇間14尺、12.99m)×2間(12尺等間、7.2m)の礎石建物であることが判明する。
礎石は遺存せず、全て抜き取られていた。 南面回廊は梁間2間であり、複廊と推定される。桁行20尺(6m)と想定される。なお、南門及び回廊の基壇外装は遺存せず。
南門・回廊の両側には雨落溝があり、瓦・炭化した木材・白土の付着した壁土・建物の部材が出土する。
南門南には中央の柱間に合わせた幅の参道が取付き、参道の東西両端は幅約80cmの石敷があり、参道全体の幅は4.5mであった。
今回、合わせて6区(東門)及び7区(西門)の発掘も実施する。 6区では鎌倉期の東門基壇が良好に遺存することを確認する。
7区では鎌倉期西門の基壇・石敷・瓦溜りなどを確認する。
●2018/11/11:東大寺東塔院跡・平成30年度発掘調査結果の現地説明会実施。(2018/12/31追加)
各種情報を総合すれば、今般の発掘で次のことが判明する。
創建当時(奈良期)の回廊の跡が確認され、それは複廊であったと判断される。
つまり、鎌倉期の再建では、南回廊を除く、東・北・西の三回廊は単廊に改造されていたことが判明する。
今般の調査で、塔の北東隅から創建当時の回廊の跡が発見される。それは礎石の跡が3列並び中心には壁の部材を支える「塼」(約33cm角)が付設されていた。以上から創建当時の回廊は壁の両側に通路を配置する「複廊」であったことが分かる。
一方、鎌倉期には礎石が2列にされ、基壇も削っていることが東・北・西の三回廊跡で確認される。これまでの発掘調査の結果も踏まえ、鎌倉期の重源による再建では南側の回廊のみ「複廊」とし、それ以外は壁の片側に通路を置く「単廊」に改められたことが明らかになる。
また、これまでの調査で、鎌倉期の塔本体は創建時より一回り大きく、重源が大仏様を採り入れ塔を再興した可能性があり、これらのことから「重源は再建時に回廊も大仏様にしたかったのではないか。南面は正面という重要性があり、奈良時代の伝統を残したと考えられる」(調査団長鈴木嘉吉・元奈良国立文化財研究所長)という。
なお、創建時の回廊巾は約5.9mで、再建時の回廊巾は約4.7m(東西は約74m・南北は約85m)と確認される。
このほか、鎌倉期の東門跡も発見され、それは「八脚門」だったと判明する。規模は東西約5m、南北約11mと推定される。
◎「平成30年度境内史跡整備事業に係る発掘調査・現地説明会資料」 より 調査区: 7ヶ所を設定する。 再建南門:
南の参道を含め南側全体が創建当時より嵩上されていることが判明、また北側の内庭部でも参道が発見され、その巾は再建塔基壇南面階段巾と同じ約6.0m(20尺)であることも判明する。さらに北面階段の痕跡も発見される。
再建東門: 桁行3間梁間2間の礎石建物と判明する。 創建回廊:
東北隅で奈良期の回廊跡が発見される。回廊の中央を仕切る壁を受ける部材の下に敷いた塼が当時のまま残る。また礎石は梁行方向に3つ並ぶことがその礎石抜取穴から確認される。以上から創建時の回廊は梁行約5.9m(10尺等間の2間)と判明する。
再建回廊:
各調査区で基壇と雨落溝が確認される。特に西北隅では礎石が原位置に残り、梁行柱間寸法約4.7m(15.5尺)、桁行柱間寸法約3.1m(10.5尺)となる。その他の調査区で発見された礎石抜取穴の位置も勘案すれば、南面回廊が桁行約6.0m(10尺等間の2間)の複廊であるのに対し、北面・東面・西面回廊は梁行15.5尺、桁行10.5尺の単廊であったと推定される。鎌倉期の再建に当たっては、創建時の東面回廊と北面回廊は内庭側が削られ、西面回廊は内外両側を削って基壇巾が狭められている。
◇調査区平面図
 |
単廊と複廊
東塔院東北隅:西南から、奈良期の回廊跡である、中央やや左に塼列が写る。
東塔院西北隅:鎌倉期再建回廊の礎石が残る。 2018/11/11撮影:
東大寺東塔基壇1 東大寺東塔基壇2
東大寺塔院南門跡1 東大寺塔院南門跡2 東大寺塔院南門跡3 東大寺塔院南門跡4 東大寺塔院南門跡5
東大寺塔院南門跡6 東大寺塔院南門跡7 東大寺塔院南門跡8 東大寺塔院南門跡9
東大寺塔院南回廊1 東大寺塔院南回廊2:雨落溝
東大寺塔院東門跡 東大寺塔院東門礎石
東大寺塔院東回廊1 東大寺塔院東回廊2
東大寺塔院北回廊1 東大寺塔院北回廊2 東大寺塔院北回廊3 東大寺塔院北回廊4 東大寺塔院北回廊5
東大寺塔院西回廊
東大寺塔院南門跡出土鬼瓦1 東大寺塔院南門跡出土鬼瓦2 東大寺塔院南門跡出土鳥衾
東大寺塔院出土風鐸破片 東大寺塔院出土軒丸瓦
2019/11/10撮影: 「東大寺東塔院跡―令和元年度境内史跡整備事業に係る発掘調査―現地説明会資料」2019 より
今回の調査では門及び回廊部分に六カ所の調査区を設定する。
調査区配置図(現地説明会資料より転載)
奈良期・創建時の東門は梁間2間・桁行3間の礎石建物と判明。建物規模は梁行7.1m(12尺等間)、桁行12.7m(中央間は15尺・両脇間14尺)と推定される。
創建時東面回廊は梁行2間の複廊である。梁間は約59m(10尺等間)と推定される。回廊の中央の礎石・塼・切石が良好に残る。
その他、雨落溝や平坦面確保のための東法面削平の痕跡などが残る。
鎌倉期・再建期の東門は梁間2間・桁行3間の礎石建物である。建物規模は梁行約4.7m(9尺等間)、桁行(中央間13尺、両脇間13尺)と推定できる。基壇上面には礎石1個、門の出入りに関わる遺構、敷石遺構が良好な状態で残る。
なお、再建北門は再建東門と同規模と推定され、再建西門は東門と東西対称形の同規模と想定される。
再建東廻廊と北面回廊は桁行1間の単廊である。梁行は約4.7m(15.5尺)と推定できる。
再建東門及び東面回廊の東雨落ち溝・北面回廊の北面雨落ち溝は、ともに奈良創建期の雨落ち溝を踏襲する。一方内庭側の雨落ち溝は創建時の基壇を削り落とし、新たに雨落ち溝を造作したことも判明する。
鎌倉期の再建に際して、東門・東面廻廊、北門・北面回廊は創建時の各々の基壇規模の巾を縮小し、それとともに門は規模を縮小し、回廊は複廊から単廊にするなど、建物は大きな改造が行われたことが判明する。
東大寺東塔院東門跡:北から撮影(現地説明会資料より転載)
東大寺東塔院略年表
東面回廊と東門1 東面回廊と東門2
東面回廊奈良期敷塼 東面回廊奈良期礎石・敷塼 奈良・鎌倉期礎石抜取穴
東塔院東門1 東塔院東門2
東門鎌倉期敷石・石列1 東門鎌倉期敷石・石列2 東門鎌倉期敷石・石列3 東門鎌倉期敷石・石列4
東門鎌倉期礎石1 東門鎌倉期礎石2 東門鎌倉期礎石3
廻廊東雨落溝など 廻廊北雨落溝など
北門と北面回廊 東塔院北門1 東塔院北門2
東塔院西門1 東塔院西門2 東塔院西門3
2020/12/16追加: ◆東大寺東塔鎌倉再興塔の復元案
奈文研が重源案と栄西案の2案を作成・発表する。
○「鎌倉時代再建の東大寺東塔 −東大寺東塔の復元研究ー」目黒新悟(「奈良文化財研究所紀要 2020」奈文研、2020 所収) より
鎌倉期再興東大寺東塔(鎌倉塔)は重源、栄西、行勇の3人の大勧進によって再建される。
鎌倉塔の再建は、僧綱らの反対を押し切り、重源の希望により、他の堂宇より先に事始めがなされ、重源の没後に栄西が礎石の設置と立柱を行う。行勇はそれまでの計画を踏襲し、完成させたという位置づけである。
以上を年表風にまとめると次のようである。 治承4年(1180)南都焼討で天平塔など焼失。
元久元年(1204)重源の希望のとおり、東塔が優先され、事始めが行われる。
建永元年(1206)重源入滅、栄西が大勧進織を引き継ぐ。 承元2年(1208)塔礎並びに立柱。
承元3年(1209)大勧進栄西は法勝寺八角九重塔再興のため、法勝寺に転ずる。 建保4年(1216)大勧進行勇により、工事再開。
貞応2年(1223)相輪を上げる。
 |
※東大寺東塔は現在再興が計画され、今現在発掘調査が進行中であるが、その発掘調査はその再興にあたっての準備という側面が色濃い。
※南都焼討から東大寺復興に着手したのは重源であったが、工事開始前に逝去し、実際の工事は栄西によって進められた。そのため東塔の再建は重源と栄西のどちらの構想で進められたのかは不明のままである。それ故、本稿は現代の再興にあたって、どういった建築意匠で東塔を復元するかという観点から、重源あるいは栄西であるならば、どのような意匠になるのかを検討した結果の中間報告である。
東大寺東塔鎌倉塔復元案:左図拡大図
※栄西との関係については、上に掲載の「●東大寺東塔院跡平成27年度発掘調査続報(平成28年度続報)」を参照を願う。
東塔跡で出土する「七」の文字がある軒丸瓦と京都岡崎法勝寺から出土する「九」と書かれた鎌倉期の軒丸瓦との関係についても、上項の参照を乞う。 |
前提条件:鎌倉塔の規模は発掘調査により、初重中央間20尺(60.61m)、両脇間18尺(54.55m)の方3間であり、初重に裳階や椽が存在した可能性は低い。
高さについては暦応3年(1340)の院家雑々跡文には「東大寺七重塔 高32丈」とあり、鎌倉塔の存続中の撰述であり、よって高さは320尺(96.97m)想定する。
鎌倉塔の建築意匠については、上記のように、大勧進として重源および栄西が深く関与したと思われる。
そして、両者(重源・栄西)によって建立され現存する建築はそれぞれ大仏様や禅宗様の特色を持つ。
そのため、現代の再興(復元)は重源案と栄西案の2案を検討した。 ◇重源案::
大佛様の特徴を整理した上で、同じ境内に現存する柱間寸法が近い「南大門」をもとに検討する。 結果、
逓減:各重総間は3尺の逓減とする。(七重総間38尺、逓減67.7%) 軸部:少々煩雑なので省略。(原文を参照)
組物:基本的に南大門上層に倣う。 軒 :南大門の下層と同じ18尺とする。軒の粗利は付ける。
造作:天井は張らず、化粧屋根裏とする。床は板床。初重中央間は桟唐戸、両脇間は連子窓とし、2重以上は中央間を扉口、両脇間は壁とする。勾欄は2重以上で組物に干渉するので、初重も含め、設けない。
◇栄西案:: こちらは、栄西による唯一の現存建築である東大寺鐘楼をもとに検討する。
但し、東大寺鐘楼は鎌倉塔の規模と釣り合わないので、鐘楼の部材寸法を鎌倉塔の初重平面にいわば引き延ばし、鎌倉塔の寸法体系を算出し、塔の柱・斗栱などの寸法を案出する方法で栄西案を作成する。
逓減:等差での逓減と想定し、総間で各重2斗分(2.5尺)の逓減とする。(七重の総間は40尺で逓減率は71.4%)
軸部:少々煩雑なので省略。(原文を参照) 組物:寸法体系より20尺とする。 軒 :寸法体系より20尺とする。
造作:軒小天井を造る。床は土間とする。
禅宗様の現存例などから、初重中央間は桟唐戸、両脇間は花燈窓、柱間の頭貫と内法貫の間は弓欄間とし、二重以上は中央間花燈口、両脇間を連子窓とする。
勾欄の形式は備後向上寺三重塔に倣う。二重以上の勾欄には越組を置く。六重以上には中備はない。
なお、以上の研究は再興を企図する東大寺からの受託研究である。
★東大寺戒壇院多宝塔(屋内小塔)
|
 |
○「東大寺」保育社カラーブックス208、昭和45年 より転載
東大寺戒壇院多宝小塔:左図拡大図
左図拡大図
天平勝宝6年(754)鑑真が日本最初の戒壇を開く。 そのとき中国から招来した釈迦・多宝のニ仏を祀るという。
往時の戒壇院は金堂・講堂・軒廊・廻廊・僧坊・などがあったと云う。(東大寺要録)
治承4年(1180)、文安3年(1446)、永禄10年(1567)の3度火災に罹り、伽藍は焼失す。
現戒壇院伽藍は享保17年(1732)の再建による。
再興のとき、鑑真のニ仏を祀る故事から、(享保17年)多宝塔も造立されたと伝える。
※唐から伝来した釈迦・多宝仏は銅造で、現在は収蔵庫に安置、戒壇院多宝塔安置仏は木造の模造と云う。
堂内多宝塔は堂内安置といえども、唐様を基調とする本格的木造建築である。
※堂内檀上には、著名な天平仏である四天王(塑像)を安置する。そのため堂内は撮影禁止であり多宝塔写真を撮影することはほぼ不可能。なお元の四天王は銅製であったが失われ、現在の像は東大寺中門堂から移安と伝える。
※戒壇院は律宗の本所。鎌倉再建後は華厳宗も兼ねる。
|
2016/11/01追加:
○東大寺戒壇院多宝塔写真:フォト蔵 より転載(Creative
Commons) 東大寺戒壇院多宝小塔2
2022/01/31追加: ○「修復トピックス 重要文化財安楽寺多宝小塔の保存修理より判明した建築的特徴」結城啓司 より
享保17年(1732)、全高3m以上、下重平面:1間、上重軒」扇垂木、禅宗様を用いる、本尊:釋迦・多宝如来・塔四週には四天王を配置。
東大寺戒壇院多宝小塔3
2006/06/17撮影: 東大寺戒壇院
2010/12/21撮影: 東大寺戒壇院2 2018/10/15撮影: 東大寺戒壇院北門 2023/05/01撮影:
東大寺戒壇院千手堂1 東大寺戒壇院千手堂2 東大寺戒壇院千手堂3
東大寺戒壇院千手堂道 東大寺戒壇院北門
★東大寺相輪(古河パビリオン相輪)
2006/06/17撮影:
1970年日本万国博覧会の古河館パビリオンとして、東大寺七重塔が設置された。
日本万博終了後、相輪が東大寺に寄進され、東大寺に移設された。(東塔跡北、大仏殿東南よりの位置)
※七重塔そのものは永久建築でないため、取り壊される。
古河館七重塔相輪1 古河館七重塔相輪2
古河館七重塔相輪3
2012/02/26撮影:
古河館七重塔相輪11 古河館七重塔相輪12 古河館七重塔相輪13 古河館七重塔相輪14
古河館七重塔相輪15
2018/10/15撮影: 古河館七重塔相輪16 2023/01/25撮影
古河館七重塔相輪17
EXPO'70「古河館」七重塔(外観)復元は「古川館」のページを参照
★東大寺諸伽藍
■聖武天皇の治世と盧舎那大仏建立
○「東大寺の考古学 歴史文化ライブラリー518」鶴見泰寿、吉川弘文館、2021 より
【聖武天皇の治世】
東大寺金堂の本尊は盧舎那仏である。この像の大きさから大仏と呼ばれる。
大仏は中央アジアや東アジアに多くみられるが、東大寺大仏に大きな影響を与えたのは龍門奉先寺盧舎那仏で蓮華座の上に結跏趺坐する高さ17mの大仏である。
盧舎那仏は華厳経(5世紀初めに漢訳)の教主で、宇宙の中心で太陽のように世を照らす存在という。 ◇聖武天皇とその時代:
大宝元年(756)文武天皇の第一皇子として生まれる。母は藤原不比等の娘・宮子。諱は首(おびと)。
慶雲4年(707)文武天皇崩御、父方の祖母・元明天皇(天智天皇皇女)が中継ぎとして即位。 和銅7年(714)首親王が元服、立太子される。
しかし、病弱であること、皇親勢力と外戚である藤原氏とが対立し、即位は先延ばしにされ、
翌・霊亀元年(715)伯母(文武天皇姉)・元正天皇が「中継ぎの中継ぎ」として皇位を継ぐ。
霊亀2年(716)安宿姫(藤原不比等娘、光明子・後の光明皇后)が妃として入内。 神亀元年(724)元正天皇退位、ようやく聖武天皇即位する。
神亀4年(727)聖武・光明子の間に皇子(基王)が誕生、異例の速さで大赦を行い・官人に禄を与え、皇子の立太子の詔が出される。
(藤原氏からすれば、聖武の次も藤原氏の系統から即位と決まったからである。)
翌・神亀5年皇太子は病没、那富山(なほやま)山陵に葬られる。 ※山陵は奈良市法蓮佐保山3丁目に所在。
聖武・藤原氏には衝撃であったと推測される。 同年、聖武、皇子の菩提のため、造山房司を任命、金鐘山房(金鍾山房)の造営を開始する。
これが東大寺の前身寺院である。 天平元年(729)長屋王の変が発生。
長屋王は当時左大臣、天武の孫で、父は高市皇子で太政官のトップであった。
「長屋王は左道を学び、国家の転覆を企図」との密告があり、査問の兵が長屋王邸を囲み、翌日には王を自尽させる。
妻の吉備内親王・子の膳夫王・桑田王・葛木王・鉤取王らも自ら経死する。
日を置かず勅があり、吉備内親王は無罪、長屋王は有罪であるも丁寧に扱うようにと命ぜられる。
長屋王の近習7名は流罪となるも、長屋王の兄弟・姉妹・子孫・妾、家令・帳内などは悉く放免となる。
この処断の軽さは異様であり、このことから、 長屋王は冤罪で、この変は長屋王・吉備内親王。その子孫を滅ぼすことが目的であったといわれる。
では、長屋王排除の目的は何だったのか。
光明子との間に生まれた基王は夭折する一方、聖武と縣犬養広刀自との間に安積親王が誕生したため、藤原氏は親王の即位の可能性を阻止するため光明子を皇后に格上げを企てる。ところが「皇后は内親王に限る」との律令の規定を侵して立后するには、左大臣長屋王の反対が予想され、そこで長屋王を失脚させたのであろう。(岸俊男氏説)
長屋王と吉備内親王の間には膳夫王らが生まれているが、膳夫王らは皇孫の扱いを受けている。
藤原氏は、長屋王が基王の立太子に反対したことも合わせ、長屋王は膳夫王らを皇位後継者としたいと判断したのではないか。
長屋王と藤原氏との間に対立がうまれ、皇太子の夭折を機に、藤原氏が長屋皇とその子供たちを自害に追い込んだのではないか。(寺崎保広氏説)
何れにしろ、皇位継承をめぐる争いであるが、桓武と藤原氏は長屋王とその一統を粛正し、政権の安定を確保することなったのでないか。
天平元年(729)長屋王を自害に追い込み、かくして藤原氏の狙いどうり、光明子の立后が行われる。
※立后の宣命では仁徳天皇が伊波乃比賣を皇后にしたことを先例としてあげている。 また令外の官である皇后宮職が設置される。
同時に、不比等の子息四兄弟、南家武智麻呂は右大臣に、北家房前は中務卿・参議、式家式部卿宇合と京家兵部卿麻呂は新たに参議に加わり、子息四兄弟は全盛期を迎える。
天平7年(735)大宰府管内、平城京で天然痘が大流行、新田部親王・舎人親王など死亡、翌年は不比等の子息四兄弟などが罹患、廃朝(朝廷での執務中止)となる。
聖武は諸国に仏像を造立させ、大般若経・最勝王経を書写・転読を命じ、国家安寧を願う。
◇藤原広嗣の乱:
天平12年(740)太宰少弐・藤原広嗣、失政や天地の差異を理由に玄ム・吉備真備らの排除を要求して兵を起して反乱する。
藤原広嗣は藤原四兄弟宇合の子息であり、朝廷に衝撃を与える。 朝廷はただちに追討軍を編成し、諸国から17,000人を動員する。
この最中、聖武は突如、「関東に往かんとす」との勅を出し、東方への行幸を開始する。
大和・伊賀・伊勢に到着、この時「広嗣捕縛」の報告を受けるも、さらに伊勢から美濃・近江へと行幸する。
実はこの行幸は突如始まったものではなく、周到に計画されたもので、それ故、乱の勃発があっても、敢行されたというのが最近の評価である。
そしてその行幸の目的は「御願寺建立せらるべきの由」をアマテラスに尋ねるものだったという説が出されている。(田中卓氏説)
※御願寺建立とは大仏造立のことと解すべきか。
※乱の背景には、天平9年(737)藤原四兄弟が天然痘によって相次いで死去し、代って台頭したのは橘諸兄である。
諸兄は藤原氏とは違って軍縮路線をとり、また、共に唐から帰国した吉備真備と玄ムが重用され、藤原氏の勢力は大きく減退する。
広嗣も中央から大宰府に出されるが、おそらく左遷と捉えたものと推測される。
※乱は2ヶ月程筑前・豊前で戦われるが、広嗣は敗れ、捉えられ、切られるという。その他多くの者が斬刑・流罪・その他の刑に服する。
※なお、聖武が「関東に赴かん」と称して辿ったルートは聖武が尊敬する曽祖父の天武天皇がかつて壬申の乱の際に廻ったルートと同じであったと云う。聖武は自らを天武天皇に重ね、藤原氏の横暴から脱却するために、天武天皇の行動を追体験したのではないかという説もある。
※さらに、聖武が造作を始めた恭仁京と、その後に遷都した紫香楽宮は、木津川水系の支流でつながっていて、つまり両都を水運でつなぐ軍事拠点とし、東国から兵を集めて藤原氏に対抗しようという構想があったという説もある。そういう構想が本当にあったとするならば、聖武の「東行」は、東国の情勢をさぐるためであった云える。
◇恭仁京: 聖武の「東行」に同行した右大臣橘諸兄は行幸の列を先に離れ、山背相楽郡恭仁に至る。
聖武は天平12年、広嗣の乱の前に橘諸兄の相楽の別業に行幸したという記録がある。 →山背井手寺跡:橘諸兄の別業のあった地とされる。礎石などが散在し、禁煙の発掘調査で塔跡が発掘される。
恭仁京と諸兄の別業は近く、また諸兄は聖武より先に恭仁郷に入っているので、恭仁京の造営には橘諸兄が深く関わったのであろう。
天平13年元旦聖武は恭仁宮で朝賀を受けるも、宮は未完成。夏には平城京の東西市を恭仁京に遷し、造営卿が任命され、大和・河内・摂津・山背から造営の役夫5500人を徴発、造営が本格化する。
※なぜ山背国の恭仁に選地したかについては、ここには木津川が流れ、物流や人流には至便な場所だったことが挙げられる。
平城京は大河と接せず、それ故水運には恵まれず、当時のならは人口が10万を越えたといわれるが、水資源が確保できないという欠陥を抱えていた。
但し、これが聖武の慧眼なのかどうかは不明。 さて恭仁京の概要であるが、記録や発掘調査などで次のような成果が知られる。
恭仁京については多くの研究があるが、特に著名な足利健亮氏の研究では、次のように云う。
氏の復原案では、山背国分寺金堂跡を大極殿と推定し、ここを中心とする一辺1kmを宮城とし、現在の鹿背山丘陵の東に広がる加茂町の盆地に南北9條東西4坊の条坊を想定する。これを左京とし、鹿背山の西麓にも同規模の右京を想定する。(「日本古代地理研究」足利健亮、大明堂、1985)
そして、恭仁京跡は断続的に調査が続けられ、山背国分寺金堂は恭仁京大極殿が再利用され、金堂の伝承がある土壇からは9間×4間の大型建物が検出されている。また恭仁宮の四至は北東・南西の隅が確認され、東西南北の築地塀の側溝が検出されている。
○「恭仁宮跡の四至について ―近年の調査成果から一」森下衛(「京都府埋蔵文化財論集 第3集」1996 所収) より 恭仁京復元図(足利健亮氏原図):上記の解説の通りである。
→山背国分寺跡:恭仁京が廃都された後、恭仁京宮城は山背国分寺に施入されたという。
明けて、天平14年の元旦朝賀は大極殿が未完であったため、仮の殿舎で受ける。
天平14年夏、近江甲賀郡紫香楽に行幸の詔がだされ、造紫香楽離宮司を任命、その後、紫香楽への行幸が繰り返される。
それにも関わらず、恭仁京の造作は継続される。 ※恭仁京は政都、紫香楽宮は法都という二都の構造を聖武は持っていたのではないかとも言われる。
天平15年の元旦を聖武は紫香楽離宮で迎え、3日恭仁京に還り、大極殿で朝賀を受ける。
天平15年(743)5月に墾田永年私財法を発布。 ※→これについては重要なので直下に概要を記す。
天平15年7月から11月まで、紫香楽に滞在、「大仏建立の詔」を出す。 同年年末、終に恭仁京造作を停止する。
天平16年(744)正月、聖武は難波行幸を百官・庶民に打診する。百官は半々、庶民は恭仁京を望む。
ところが、聖武は難波に行幸、翌日、難波を帝都とする勅を出す。
※難波と恭仁は木津川を通じて水運で結ばれ、当時の国際情勢に鑑み、難波と恭仁の一体性を重視したのではないかという説もある。
但し、この事が聖武の着眼なのかどうかは不明。 ----------------------------------
天平15年(743)5月の墾田永年私財法
原則的に奈良前期は、大化2年(646)大化改新詔の発布により、従来の屯倉(大王家私領)・田荘(豪族の私領)は廃止、豪族の私領は収公され、口分田として班給されることとなる。
律令により戸籍が整備され、土地は班田収受法により公地公民制となる。 養老7年(723)三世一身法が発布される。 (初期荘園の発生)
天平15年(743)5月に墾田永年私財法を発布、これは墾田の耕作権の永年私有を認めたものである。
その趣旨は、三世一身法では墾田の所有期限を定めていたため、期限が迫ると耕作が放棄されてしまうことが発生した、以後は墾田の私財としての永年所有を認めたものである。
天平勝宝元年(749)には寺院墾田許可令も発布された。
この墾田永年私財法の発令以降、資力を持つ権門と云われる中央貴族・大寺社・地方の豪族などは、活発に開墾を始め、大規模な土地私有がする契機となる。
このような私領は「荘」と呼ばれ、一時は停止されるも、「荘園」は全国拡大する。
なお、墾田永年私財法の発布を受けて増加した荘園を「初期荘園」と呼ぶようである。
時代は下り、藤原道長と同時代の藤原實資(950〜1046)の日記「小右記」には次の行があるという。
万寿2年(1025)7月11日の條「公領、立錐の地無きか、悲しむべき世なり」と。 道長一家によって、荘園の寡占化が進む様が嘆息されている。
---------------------------------- ※聖武天皇難波宮(後期難波宮):
應神や仁徳という存在しない大王の時代の物語は眉唾としてどうでもよいが、
そもそも、難波の宮とは、乙巳の変(大化元年〈645〉)の後、孝徳天皇が難波(難波長柄豊崎宮)に遷都して、日本最初の都(首都)とした宮(建物は掘立式建物)が始まりである。(前期難波宮)
次いで、聖武が難波宮(建物は礎石式建物・屋根瓦葺)に遷都する(後期難波宮として区別)。
神亀3年(726)聖武天皇、藤原宇合を知造難波宮事に任命し、平城京の副都とした。
その後、聖武は平城京から恭仁京へ遷都を行うが、天平16年(744)聖武、難波宮に行幸、難波京への遷都の詔が発布される。
但し、その直前に聖武、再び紫香楽宮に行幸、難波宮には元正上皇と左大臣橘諸兄が残される。
翌天平17年(745)難波京から紫香楽宮へ遷都が正式に発表される。
なお、延暦3年(784)桓武天皇、長岡京に遷都するが、難波宮の大極殿などの建物は長岡京に移築されたという。
難波宮の遺構がある法円坂一帯は帝国陸軍用地であり戦前は手が付けられなかったが、戦後に山根徳太郎らの発掘調査で、昭和36年聖武時代の大極殿跡が発見され、その存在が確認されたという。
----------------------------------
天平16年3月、聖武は金光明寺(金鐘寺が改称)から「大般若経」を紫香楽に送り、僧200人に終日転読をさせる。
同年11月甲賀寺の場所にて、大仏の体骨柱を建て、聖武みずから立柱の網を引くという。
甲賀寺跡は106m×115mの範囲内に所在し、金堂の正面が中門、中門左右から柵列が延び金堂を囲い、金堂の左右後方に位置する鐘楼、経蔵に接続する。金堂の背後には金堂と同規模の講堂が配置され、その北側には三面僧坊がある。講堂・僧坊の東には食堂がある。これは東大寺の伽藍配置と極めて似ている。塔院は金堂の東に柵列で区画されて配置され、中心に塔、塔の南面正面に中門がある。
ただ、現存する金堂跡では大仏を収納できる大きさ(建物平面:17.5×7.0mほど)ではなく、寺跡の北側で発見された「※東山遺跡」の方が大仏建立場所の可能性が高いかも知れない。
結局、聖武は紫香楽から平城京へ帰都し、紫香楽での大仏造立は中止となる。
---------------------------------- ※東山遺跡については次のような資料がある。
○「2022年度甲賀氏紫香楽宮歴史フォーラム 紫香楽宮跡の調査と8世紀の甲賀資料集」>「報告2 東山遺跡の調査」小谷徳彦 より
東山遺跡は内裏野地区(甲賀寺跡)と同じ丘陵上に立地し、南半は甲賀寺跡で北半が東山遺跡。
平成29年・30年に発掘調査、桁行14間(約41m)梁間4間(約16m)、東西に幅広の庇(南北は未確認)を持つ大型建物跡を検出。
この建物については5つの仮説が考えられる。 1.離宮段階の紫香楽宮
2.大仏体骨柱の立柱式に伴う臨時施設:大型建物が南北棟で不具合、大仏造立の場所が丘陵の頂部でなくなる。
3.造甲賀寺所に伴う施設:工房跡の可能性も高い 4.甲賀寺の施設:甲賀寺が丘陵全体を占める可能性もあるが、全容が不明
5.紫香楽の宮の写経施設:大型建物が床張り→検証が困難 ----------------------------------
天平17年(745)5月太政官は百官や四大寺の諸僧に何処を都とすべきかと問い、衆目が平城京と答え、かくして難波から平城京へ遷都することが決定される。
聖武の5年に渡る相次ぐ遷都はこうしてようやく終焉する。 聖武の事業である大仏建立は平城京にて再開される。
※同年4月頃から紫香楽で、放火と思われる不自然な山火事がたびたび発生する。
これは、恭仁京の造営、紫香楽宮の造営、大仏造立などを進める聖武の治世に不満をいだいた反対勢力の仕業だった考えられている。
また、紫香楽ではたびたび地震に見舞われ、これは神仏の怒りとして、人々を不安に駆り立てる要民にもなる。
以上のようなことが、聖武の平城京遷都の決定にどの程度影響したかは分からないが、少なからずの影響は与えたではあろう。
それにしても、恭仁京の造営、紫香楽宮の造営、大仏造立という巨大プロジェクトが国家財政を逼迫させ、結果として藤原氏などの豪族の離反や官人(役人)の不満、民衆への収奪の強化・疲弊に繋がったことは確かであろう。
けれども、聖武が人心の離反を感じ、遷都を決したような賢帝(聖帝)であったどうかは分らない。
という以前に、聖武に仏教による「菩薩国家」を目指す理想があろうとも、聖武が「智識」の結集による「大仏建立」の姿勢を鮮明にしようとも、恭仁京の造営、紫香楽宮の造営、大仏造立の3事業を同時並行して進めるとはやはり聖武とは「専制君主」「古代帝王」と断罪せざるを得ない。
繰り返しになるが、 聖武は僅か5年の間に4回も遷都する。
その理由は諸説ありよく分からないが、藤原氏の影が見え隠れし、権力闘争の結果であったことは間違いないだろう。
聖武の目指す国家は、仏教による「菩薩国家」であり、「大仏建立」においては「智識」の結集による造立を目指したことはその通りであろう。
事実、諸国に国分寺及び国分尼寺の建立を命じ、その建立を成就し、さらにその鎮護国家の象徴・集大成として都に盧舎那大仏造立を構想し、それを成し遂げる。
しかしながら、いかに聖武の理想がありそれを成就しようとも、その聖武の偉業は民衆の収奪の上に「成った」ことも事実であろう。
以上のような意味で、聖武は矛盾に満ちた「古代帝王」「専制君主」ということであり、「異形の天皇」であったと思う。
聖武は生れながらにして王家の一員として生を受ける。
この時代、帝王の位の収奪を巡る暗闘は王家や有力氏族の間では日常の風景であったであろう。その風景の中で、もし王位(天皇)を勝ち取ったならば、この時代「専制君主」として君臨することには何の違和感もないことだったと思われる。
聖武の天平13年の「国分寺建立・金光明最勝王経安置の詔」や天平15年の「盧舎那大仏建立の詔」を読む限り、聖武は仏法によって国家の安寧(鎮護国家)を願い、願わくば民衆もその僅かな財と労とで以って参画を願ったことは間違いないと思う。
しかし、聖武は生まれながらにして「専制帝王」である「出自」であり、その呪縛からは解脱できなかったというべきであろう。
◇大仏建立まで: 河内知識寺行幸
聖武は天平勝寶元年(749)の宇佐八幡神への宣命で「去る辰年(天平12年)に大縣郡知識寺に坐す盧舎那仏を礼拝、朕も造り奉らむ・・」とのべてている。
→河内知識寺跡 天平13年「国分寺建立の詔」を発布する。
※「国分寺建立の詔」の【読み下し】は次の通りである。
(天平十三年三月)乙巳、詔して曰、朕薄徳を以て、忝も重任を承くれども、政化未弘まらず、寤寐(ごび)に多慙(たき)なり。
古の明主は、皆な光業(こうごう)を能くす。国泰かに人楽しみ、災を除き福至る。何の政化を修めてか、能く此の道を臻(いた)さんや。
頃者は、年穀豊かならず疫癘(えきれい)頻りに至る。慙懼(ざんく)交(こもごも)集う、唯労己の罪なり。是以、広く蒼生の為に遍く景福を求む。故に前年、使いを馳せて天下の神宮を増飾す。
去歳、普く天下に令して釈迦牟尼仏尊像、高さ一丈六尺、各一鋪を造り、并大般若経各一部を写さしむ。今春より已来(このかた)、秋稼(しうか)に至るまで風雨順序、五穀豊穣ならん。
此れ乃ち、誠を徴(あらわ)し願いを啓き、霊■〔貝偏に兄の漢字〕(りょうきょう)答ふる如し。載惶載懼(たいごうたいぐ)。以って自寧無し。経を案ずるに云く、
若国土ありてこの経王を講宣読誦(こうせんどくじゅ)、恭敬供養(くぎょうくよう)、流通うせば、我等四王、常に来りて擁護せん。一切災障、皆消殄(しょうてん)せしむ。憂愁疾疫も亦また除差せしめ、所願は心に遂げて恒に歓喜を生ぜしむ
と。宜しく天下の諸国をして、各の敬しみて七重塔一区を造り、并に金光明最勝王経、妙法蓮華経各一部を写さしむべし。朕又別に擬して金字の金光明最勝王経を写し、塔ごとに各の一部を置かしめん。
冀(こいねがう)所は、聖法の盛んなること天地とともに永く流(ながら)え、擁護の恩幽明かに被(かぶ)らしめて恒に満たんことを。
其造塔の寺は、兼ねて国の華なり。必ず好処を択えらび、実に久長ならしむべし。人に近ければ則ち薫臭(くんじゅう)の及ぶ所を欲せず。人に遠ければ則ち衆の労して帰集するを欲せず。
国司等、各の宜しく厳飾を存し、兼ねて潔清を尽くすに務めよ。近きは諸天を感じ庶幾(こいねがわく)は臨護せんことを。
遐邇(かじ)に布告して朕が意を知らしめよ。
又国毎ごとに僧寺には封五十戸、水田十町、尼寺には水田十町を施せ。僧寺には必ず廿僧有らしめ、其その寺の名を金光明四天王護国之寺となせ。尼寺には一十尼にありて、其の寺の名を法華滅罪之寺となせ。両寺相去、宜しく教戒を受けよ。若し闕有らば即ち須く補いて満すべし。
其その僧と尼、毎月ごとの八日に必ず応(まさに)最勝王経を転読せよ。月半ばに至るごとに戒と羯磨(かつま)を誦し、毎月ごとの六斎日には公私に漁猟殺生すること得ざれ。
国司等宜しく恒に検校を加うべし。
■平城京での大仏建立(初期東大寺)
○「東大寺の考古学 歴史文化ライブラリー518」鶴見泰寿、吉川弘文館、2021 より
紫香楽宮が廃都とされ、紫香楽での大仏建立は中止される。 天平17年(745)夏、大仏建立は添上郡山金里で再開される。(「東大寺要録」)
添上郡山金里は外京であり、若草山西麓の丘陵地帯であり、すでに金鐘寺(聖武の皇子・基王の墓所)、福寿寺、天地院などの寺院が建立されていた。
金鐘寺については、聖武の皇太子であった基王の菩提のため、神亀5年(728)に建立された山房が金鐘寺となり、天平14年(743)金光明寺に改称され、さらに天平10年ころ建立されたと思われる福寿寺を合併したという。(「東大寺要録」雑事章、天平14年7月27日太政官符)
そして金光明寺は大倭国分寺とされ、加えて諸国国分寺の上にたつ総国分寺に位置づけられていたという。
また、天地院は和銅年中行基の開基といい、天地院も東大寺創建以前の前身寺院であろうという。
大倭国分寺は天皇・太上天皇・皇后が行幸し、数千の僧が法会することが可能な規模になっていたし、墾田・封戸でも他の寺院とは別格の扱いであった。
例えば、天平勝寶元年(749)諸寺の墾田地の限を定む。 大安・薬師・興福・大倭國法華寺、諸の国分金光明寺は寺別に1000町
大倭國金光明寺は4000町、元興寺は2000町
弘福・法隆・四天王・崇福・新薬師・建興(豊浦寺と号す)・下野薬師寺・筑紫観世音寺は寺別に500町、諸国の法華寺は寺別に400町、自余の定額寺は寺別に寺別に100町
とある。(「続日本紀」)
ともかく、大仏建立は今の東大寺の東山麓附近で始まるが、肝心の大倭国分寺の伽藍配置、構成、位置については正確なことは分かっていないのが現状であい、金光明寺金堂の位置も、現在の大仏殿附近と推測する説もあるが、全く分かっていないのが現状である。
なお、「大仏殿碑文」という資料が醍醐寺本「東大寺要録」巻二 に収録されている。
この「大仏殿碑文」は造立の経緯や詳細が記された貴重な史料である。(「東大寺の考古学」巻末に全文の引用がある。)
創建時及び以前の東大寺については、不明な点が多いが、発掘調査や木簡の解明などでの解明も徐々になされている。
そのような中で、創建当時の姿を描いた貴重な繪圖と絵巻がある。 ◇東大寺山堺四至図:
正倉院御物であり、299×223cmの大きさで、画面全体に朱線で方眼を設定し、そこに東大寺伽藍と寺領を写実的に描いたものである。
図の東南隅には「東大寺図」「天平勝寶八歳六月九日」「此図定山堺、但三笠山不入此堺」と墨書される。但し「此図定山堺、但三笠山不入此堺」は追筆のようである。
即ち、この繪圖は大仏開眼直後の創建間もない東大寺の姿を描いた貴重なものと評価される。
ここに描かれた千手堂、経房、香山堂、瓦屋などは現存しない。 大仏殿は寄棟造に描かれる。
※本図に描かれる「瓦屋」は高畑町にある荒池瓦窯である。
※佐保路門は現存(転害門)、中門は焼門で、現在は礎石のみ残る、西大門は天正11年(1583)大風で倒壊、当時は東大寺の正門で、「金光明四天王護国之寺」(現存)の扁額を掲げていた。現在の南大門は鎌倉期の再建であり、現在は付近は平地であるが、奈良・平安期には北側には丘が、南側は谷筋であったことが「東大寺山堺四至図」で分かり、近年の発掘調査で確認されている。
東大寺山堺四至図:模写本、奈良女子大学蔵
東大寺山堺四至図・文字入れ 本図は模写本である。
原本は天平勝宝8年(756)の作成と墨書され、正倉院御物であり、3枚の麻布を縫合せた彩色画である。
全面に約14cm間隔で縦横に朱線が引かれ、東大寺の伽藍は、大仏殿・羂索堂・千手堂などは立面図で描かれ、戒壇院・東塔・西塔などは区画のみを記す。西辺の「西大門」は二条大路に開き、「佐保路門」は転害門のことで一条南大路に面する。北・東には寺域に含まれる多くの山・川が、そして南には山階寺(興福寺)の東松林、新薬師寺の堂などが描かれる。
原本は東大寺印藏から正倉院宝物に混入、正倉院宝庫修理に伴い大湯屋へ移され、さらに手向山八幡宝庫を経て東南院宝庫に移り、皇室に献納されたという。(岸俊男氏調査)
本模写本は紙に実大で模写したもので、昭和11年奈良女子高等師範学校が購入したものであるが、それ以前の伝来は不明である。
◇信貴山縁起絵巻
この絵巻(国宝・信貴山蔵・奈良国立博物館寄託)は平安後期(12世紀)の製作とされ、そうであれば、治承の兵火で焼失する前の奈良時代の大仏殿を彩色で精細に描いた繪圖である。精密・鮮明な彩色という意味では、前述の「東大寺山堺四至図」を遥かに凌ぐものであろう。
「東大寺山堺四至図」と並んで、奈良期の東大寺あるいは大仏殿の様子をビジュアルに今に伝える貴重な史料である。 信貴山縁起絵巻・巻第三:模本,部分図。巻第三は「尼公巻」と云われる。:奈良地域関連資料画像データベース より転載。 本図は「住吉模本」「元禄模本」とも云われる模本である。
原本は国宝「信貴山縁起絵巻」であり成立は平安期(12世紀)と云われ、巻第三(尼公巻)は31.7cm×1424.1cmである。
尼公巻は「(信貴山を中興した)命蓮の生国である信濃から姉の尼公が、はるばる信貴山まで命蓮を訪ねてやって来る。東大寺大仏前で祈りかつまどろむ尼公のさまを描いた部分が、異時同図法を用いた圧巻」と云われる。
この模本は「元禄十四年(1701)九月、住吉具慶の息で幕府御用絵師であった住吉廣保が国宝本三巻を書写し、寄附した旨が記される。(「尼公巻の奥書」)、また「延喜加持巻の奥書には、享保八年(1723)藤原保光が所望に応じて詞書を新写した旨が記される」という。
創建時の大仏殿は身舎は7間×3間、廂が四周につき、更に周囲に裳階を廻らし、正面11間・奥行7間の二重・寄棟造の大建築であった。
「大仏殿碑文」の規模をメートル法で換算すると、桁行約86m、梁行約51m、高さ約45m(史料に異同あり)である。
「信貴山縁起絵巻」の描く、即ち治承の焼討で焼失する前の創建時の大仏殿の中央7間は扉であり、中央とその左右3間が開扉され、その奥には蓮弁に坐した盧舎那仏が描かれる。中央7間の部分は初層の軒が一段高く、大仏の台座から顔まで拝することができたようである。
7列の扉は長い縦板で張られ、その長板は天地で10行の鋲が打ち付けられ、他の部材と同様に赤で塗られている。
最も東の扉は半分開き、如意輪観音・多聞天の一部が見える。
大仏殿の柱も赤で塗られ、正面東西端の2間は白壁で、柱上は斗栱、柱間は間斗束を置く。そして斗栱は丸桁と丸垂木を支える。長押には金銅製釘隠が打ってあったようである。正面東西端の2間壇上には勾欄を置く。
基壇は壇上積で、正面中央5間には石階が設けれていた。
西側には1間分空けて廻廊が接続する。廻廊は複廊、屋根本瓦葺き、窓は連子窓であり、大仏殿に向かって登り勾配となる。
なお、治承焼失前の大仏殿の様子を伝える史料には大江親通の「七大寺巡礼私記」があり、これは嘉承元年(1106)と保延6年(1140)に七大寺を訪問し記録したものである。
2023/08/04追加;2024/07/31追加:
■東大寺の創建 ○「もっと知りたい 東大寺の歴史」筒井寛昭・梶谷亮治・坂東俊彦、東京美術、2010 より
◇東大寺前史 神亀5年(728)聖武天皇の皇太子基(もとい)親王1歳に満たずに逝去。
聖武は親王の菩提のため智努(ちぬ)王を長官とし、平城宮の東の山中に山房を構え、僧侶9人を止住させる。(「続日本紀」)
この山房は「金鐘山房」と称し(「正倉院文書」)、東大寺の前身寺院の一つとされる「金鐘寺」「金錘寺」として発展したと考えられる。
「東大寺要録」(嘉承元年(1108)頃成立)では「一、羂索院(名金鐘院 又改号金光明寺 亦云線院)堂一宇 五間一面在礼堂 天平五年歳次癸酉創建立也 良弁僧正安置不空羂索観音菩薩像」とあり、羂索院法華堂は金鐘寺の主要堂宇の一つとされ、天平5年に建立される。
近年、二月堂北側丘陵の西から東大寺成立以前の興福寺の同笵瓦を含む多くの遺物が発見される。(「丸山西遺跡」)さらに法華堂の修理で、年輪調査が行われ、使用材は天平2〜3年であることが判明する。
上述の「東大寺要録」に記述に合うような発見であるが、本尊不空羂索観音や法華堂の瓦が天平5年より遅れると考えられていて、天平10年頃発願の光明皇后ゆかりの福寿寺の所在地を含めて、全容は解明されてはいない。
丸山西遺跡には人工的に造られたと思われる平坦面があり、付近からは東大寺創建以前の古瓦が出土し、東大寺前史時代の遺蹟(寺房跡)と思われる。
法華堂(二月堂)の瓦には恭仁京造営初期と同じ瓦が使用され、法華堂の瓦の上限は天平10年(740)に置くことができる。しかしながら、「東大寺要録」では法華堂創建を天平5年とする。
◇盧舎那大仏の造立
皇太子基親王の夭折、天平元年(729)長屋王の変、天平9年天然痘の流行、天平12年藤原博嗣の乱と政情は安定を欠く。
聖武は恭仁京に遷都を決意、「国分寺・国分尼寺建立の詔」を発す。「金光明最勝王経」に基づく国家建設を表する。(鎮護国家)
大和では金鐘寺が国分寺(金光明寺)に充てられる。
恭仁京の造営は遅延するが、天平13年近江紫香楽で離宮が営まれ、聖武が行幸する。
聖武は紫香楽の離宮で「盧舎那大仏造立の詔」を発する。この中で大仏造立は官寺の建立であると同時に「智識」を結集して造立をなすことを強調。
詔の後、近隣の25ヶ國の庸・調は紫香楽に運ぶこととなり、大仏造立は紫香楽の甲賀寺で始まる。
「智識」の結集の役割は行基が担い、行基は勧進を開始する。 天平16年大仏骨體柱が建てられるまでに進展する。 しかし、この頃より山火事と地震が頻発。
聖武は恭仁京から難波京、難波から紫香楽に、紫香楽から平城京へと相次いで遷都し、紫香楽での大仏造立は中止される。
天平17年平城京へ遷都、大仏造立は金光明寺(金鐘寺の寺域)で再開される。
ただ、現在上院と呼ばれる地域(金光明寺(金鐘寺))では十分な平地が確保できず、鐘楼などのある丘の西から戒壇院付近までの一帯で大規模な造成が行われたことが、発掘調査で確認されている。
天平18年10月大仏塑像が完成、天平19年9月から天平勝寶元年(749)10月までの3年間鋳造が八度の鋳継ぎへ経て行なわれる。
この年、行基寂する。
鋳造の開始された天平19年「東之大寺(東大寺)」の名が初出する。(「写経所解」)以降、金光明寺・大仏殿などを含む伽藍が東大寺の通称名で呼ばれるようになる。
・「四聖御影」
四聖御影(ししょうのみえ):永和本、重文、永和3年(1377)制作。眉間寺伝来。東大寺蔵。
東大寺創建に関わる四聖人(聖武・菩提僊那・行基・良辨)を描く。 奥の向かって左が聖武、右が菩提僊那、手前左が良辨、右が行基。
聖武は本願、菩提僊那(天竺の僧)で開眼導師、行基は勧進聖、良辨は東大寺初代別當。 ・「絵解き東大寺縁起」2幅、絹本着色、鎌倉期、重文:南都眉間寺に伝来。 絵解き東大寺縁起・右幅
2幅の内、左幅は東大寺草創に関わる説話を描く。登場人物は行基菩薩、良辨僧正、印度僧菩提僊那、鑑真和上、聖武天皇、光明皇后、實忠和上で、それにかかわる説話が解かれる。
右幅は東大寺伽藍が描かれる。上方は二月堂、法華堂、八幡大菩薩、その下方は講堂でその左には鐘楼・俊乗堂、別所阿弥陀堂(推定)、右には戒壇院が描かれる。
中央は大仏殿、中門・回廊に囲まれ、大仏開眼會が執行されている。左右には七重塔が描かれる。 下方は南大門で、回廊を伴う。
本図は南都眉間寺に伝わったもの。
○「奈良六大寺大観 第十一巻 東大寺三」岩波書店、1972(真保亨) より
「東大寺年中行事記」享保11年(1726)4月「寺宝展観目録」 には次のようにある。
一、東大寺伽藍図并聖武天皇建立絵図 土佐光信筆 二幅 右 眉間寺ゟ所出 [箱書] には次の様にある。
東大寺曼荼羅二幅 南都眉間寺常住物
大仏の開眼供養会は天平勝寶4年(752)4月8日・・・欣明13年(552)の仏教初伝から200年後の釈迦生誕の日・・・に決定される。
実際には9日に開眼供養が行われる。
その後、東西七重塔・講堂・三面僧坊・食堂・鑑真来朝による戒壇院・称徳天皇御願百万小塔を納める東西小塔院などの造営が、延暦8年(789)平安京遷都に伴う造大仏司の廃止まで継続される。
天平勝寶8年(756)聖武太上天皇逝去、光明皇后は先帝の遺品などを大仏に献納、それ以外の品々も合わせて東大寺の蔵に収納、これが正倉院である。
光明皇后(光明子) 光明子は藤原不比等の三女、聖武の妃となり、天平元年(729)皇族以外の臣下で初めて皇后となる。
天平2年父不比等追善の興福寺五重塔建立を発願。
同年、いわゆる社会福祉設備である悲田院・施薬院を設置。
※東大寺大仏縁起(天文5年/1536、重文)では皇后が法華寺湯屋で病人の背中を流す絵が描かれる。
皇后が法華寺にて1000人の俗人の背中を流すことを誓願し、実行したという。
1000人目の俗人は全身が膿の病者であったが、膿まで吸い出したという。 その瞬間、病者は阿閦如来に変り、消え去ったという。
天平8年父母のために一切経写経を発願、20年に渡り写経された数は約7000巻と云われる。正倉院に750巻、東大寺に20巻現存。
天平17年聖武病気平癒のため、新薬師寺を建立。
2008/02/27追加: ○「古図にみる日本の建築」より
□東大寺寺中寺外惣絵図11:東大寺蔵
真言院・八幡宮が焼失した寛永19年(1642)以降、大仏殿が再興された宝永2年(1705)以前の制作と考えられる。
なお、当絵では龍蔵院・新福院・自性院・法輪院・安養坊・宝信院・観音院・持宝院・宝厳院・大喜院・深井坊・金蔵院・上生院・見乗院・蜜乗院・善性院・勝曼院・真言院・中性院・宝珠院・来迎院・連声院・四聖坊・清涼院・仏性院・金剛院・文殊院・福寿院・阿弥陀院・普賢院・最勝院・正源院・証菩提院・新禅院・尊光院・伽葉院・禅花坊・尊勝院・正法院・惣持院・西之院・成福院・西蔵院・西南院・唐禅院・東南院・一音院・地蔵院・知足院・禅那院・千手院・柴摩金院・新造屋・上之坊・普門院など50余の塔頭が表される。
2015/12/25追加:
○「奈良公園史, [本編]」奈良公園史編集委員会、1982/3 より
|
 |
奈良町繪圖は天理図書館蔵、「奈良公園史 本編」に掲載される図は興福寺及び東大寺を中心とした部分図である。
向かって左上端は眉間寺(多宝塔あり)、左中央付近は興福寺堂塔・北に一乗院門跡・南に大乗院門跡・周囲には子院群が囲み、一乗院門跡東に勧学院(多宝塔あり)があり、左下に元興寺(五重塔あり、極楽院・小塔院)がある。さらに元興寺東方・中央下に頭塔寺がある。
図中央上部は東大寺伽藍及び周囲には子院が配置、東大寺南大門の南東に四恩院がある。
奈良町繪圖・部分図:左図拡大図 |
2015/12/25追加:
○「加太越奈良道見取絵図」
「加太越奈良道見取絵図」東大寺附近図:部分図
中央やや左に大仏殿、下段中央やや右に南大門、南大門の東に四恩院があり、さらに東・下段右端に春日社が描かれる。
2013/03/11追加:
○明治6年「大和國時院明細帳」 より:
以下の塔中の書上げがある。
元高二千二百拾石 本山八宗兼学 東大寺
塔中
紫摩金院、上生院、深井坊、龍松院、見性院、正観院、華蔵院、尊光院、惣持院、地蔵院、妙厳院、北林院、清涼院、蓮乗院、金珠院、
大喜院、宝厳院、光明基院、新禅院、持宝院、龍蔵院、上ノ坊、文殊院、法住院、中性院、自性院、佛生院、観音院、真言律宗真言院
2006/10/7追加: 壬申検査記録写真:明治5年撮影
大和東大寺大仏殿:屋根はかなり垂下し、東大寺の荒廃もかなりのものであったと推測される。
2023/08/04追加; ○「もっと知りたい 東大寺の歴史」筒井寛昭・梶谷亮治・坂東俊彦、東京美術、2010 より
明治の大仏殿修理 明治36年漸く大仏殿の修理が開始される。大正4年に大仏殿落慶供養が行われる。 大仏殿修理前写真
上下四隅の支柱は文化3年(1806)に入れられたもの、鴟尾はまだなく、鴟尾は大修理で復原される。 虹梁下鉄骨トラス
明治の修理では屋根の重量を支える為、虹梁下には英国より輸入した鋼材のトラスを入れる。
鉄骨トラスは現在も使用されていると思われる。
●内山永久寺伝来の佛
2023/08/04追加; ○「もっと知りたい 東大寺の歴史」筒井寛昭・梶谷亮治・坂東俊彦、東京美術、2010 より
◇内山永久寺伝来の持国天立像・多聞天立像 内山永久寺旧蔵持国天立像 内山永久寺旧蔵多聞天立像
内山永久寺伝来と伝える。持国天立像の胎内納入品に永暦元年(1160)と治承2年(1178)の年紀がある。多聞天立像には右肩矧目に平治元年(1159)の年紀がある。平安末期の南都仏師の作であろう。
○「奈良六大寺大観 第十巻 東大寺ニ」岩波書店、1968(水野敬三郎) より
本像は現在、奈良博に寄託される。このニ像はもと内山永久寺の仏像で、明治の廃仏毀釈に当り、佐伯泓澄の斡旋により二月堂に寄進された。
持国天像には「木札」の納入もあり、その木札には「永久寺住僧榮心 ・・・ 治承ニ年十ニ月 日」の墨書がある。
ただ、本像の造立年代は、幾多の修理を経ており、容易に決められるべきものではない。
2008/08/23追加:
「特別保護建造物及国宝帖」内務省宗教局編、東京:審美書院、明43年 より
東大寺大仏殿311
■東大寺伽藍現況
○東大寺遠望 2023/01/16撮影: 東大寺伽藍遠望:南大門・相輪橖・大仏殿・二月堂などが写る 2023/04/06撮影: 東大寺遠望2 東大寺遠望3 東大寺遠望4
○東大寺参道 2023/01/25撮影: 東大寺参道1 東大寺参道2
○東大寺南大門(国宝)
2002/03/09撮影: 東大寺南大門1
東大寺南大門2:大仏様斗栱の典型として収録
2006/06/17撮影:
東大寺南大門11
東大寺南大門12
東大寺南大門13
東大寺南大門14
東大寺南大門15 東大寺南大門16
2015/11/21撮影: 東大寺南大門41
2018/10/15撮影: 東大寺南大門42
2019/11/10撮影: 東大寺南大門43
2020/09/28撮影: 東大寺南大門44
2021/10/11撮影: 東大寺南大門46 2023/01/25撮影:
東大寺南大門47 東大寺南大門48 東大寺南大門49 東大寺南大門50
東大寺南大門51 東大寺南大門52 東大寺南大門53 東大寺南大門54 東大寺南大門55 2023/04/06撮影: 東大寺南大門56 2023/05/01撮影:
東大寺南大門57 東大寺南大門58 東大寺南大門59 東大寺南大門60 東大寺南大門61
東大寺南大門仁王像1 東大寺南大門仁王像2
2023/01/25撮影: 東大寺ミュージアム
○東大寺中門・回廊 2015/11/21撮影: 東大寺中門・大仏殿 東大寺回廊 2023/01/25撮影: 東大寺中門
東大寺中門・大仏殿2 東大寺中門・大仏殿3 東大寺中門・大仏殿4 東大寺中門・大仏殿5
東大寺中門・大仏殿6 2023/04/06撮影: 東大寺中門2
○東大寺大仏殿(国宝)
2006/06/17撮影:
東大寺大仏殿1
東大寺大仏殿2
東大寺大仏殿3
東大寺大仏殿4
東大寺大仏殿5
東大寺大仏殿6
東大寺大仏殿7:二月堂から大仏殿を望む
2012/02/26撮影:
東大寺大仏殿11 東大寺大仏殿12 東大寺大仏殿13:般若寺西付近からの遠望
東大寺大仏殿14:同左
東大寺大仏殿15 東大寺大仏殿16 東大寺大仏殿17
2015/11/21撮影:
東大寺大仏殿41 東大寺大仏殿42 東大寺大仏殿43 東大寺大仏殿44 東大寺大仏殿45
東大寺大仏殿46 東大寺大仏殿47 東大寺大仏殿48 東大寺大仏殿49
2018/10/15撮影: 東大寺大仏殿50 東大寺大仏殿51 2021/10/11撮影:
東大寺大仏殿52 2023/01/25撮影:
東大寺大仏殿53 東大寺大仏殿54 東大寺大仏殿55 東大寺大仏殿55 東大寺大仏殿56 2023/04/06撮影:
東大寺大仏殿57 2023/05/01撮影:
東大寺大仏殿58 東大寺大仏殿59
○東大寺講堂跡 2017/03/25撮影:
東大寺講堂跡1 東大寺講堂跡2 東大寺講堂跡3 東大寺講堂跡4 東大寺講堂跡5
2018/10/15撮影: 東大寺講堂跡6
○東大寺正倉院 2018/10/15撮影: 東大寺正倉院東宝庫
○東大寺転害門(国宝)
2012/02/26撮影:
東大寺転害門11 東大寺転害門12 東大寺転害門13 東大寺転害門14 東大寺転害門15
東大寺転害門16 東大寺転害門17 東大寺転害門18
2017/02/19撮影:
三間一戸八脚門、切妻造、屋根本瓦葺。東大寺に残る唯一の天平建築といわれる。(但し中世の修理を受ける。)
この門は東大寺鎮守八幡宮の祭礼の時の遷座の場所として重要視されてきたという。
東大寺転害門21 東大寺転害門22 東大寺転害門23 東大寺転害門24
東大寺転害門25 東大寺転害門26 東大寺転害門27
○東大寺中門(焼門)跡 2018/10/15撮影:
慶長11年(1606)付近にある東大寺鎮守八幡宮末社牛頭天王で発生した火災によって焼失し、その後再建されることはなく、現在に至る。 東大寺中門跡1 東大寺中門跡2 東大寺中門跡3 東大寺中門跡4 東大寺中門跡5
○東大寺鐘楼(鎌倉:国宝) 2020/12/16追加:
鐘楼は榮西が鎌倉初期承元頃に再建したものである。栄西は当時、重源の後を受け、東大寺再建大勧進織であった。
栄西の関係した建物の中で唯一現存するものである。
昨今、東大寺は東塔の再建を企図しているが、もしその再建の意匠を鎌倉期に求め、しかもその意匠に栄西様を採用するならば、この鐘楼は鎌倉様式の塔意匠の一つの基準になる建築であろう。
2006/06/17撮影:
東大寺鐘楼1
東大寺鐘楼2
東大寺鐘楼3
東大寺鐘楼4
2018/10/15撮影: 東大寺鐘楼11 東大寺鐘楼12 東大寺鐘楼13 東大寺鐘楼14 東大寺鐘楼15 東大寺鐘楼・梵鐘
2018/11/11撮影: 東大寺鐘楼16 2023/01/25撮影:
東大寺鐘楼17 東大寺鐘楼18 東大寺鐘楼19 東大寺鐘楼20 東大寺鐘楼21
東大寺鐘楼・梵鐘2 東大寺鐘楼・梵鐘3 東大寺鐘楼・梵鐘4 東大寺鐘楼22
東大寺鐘楼ヶ丘の鹿 2023/05/01撮影:
東大寺鐘楼22 東大寺鐘楼23 東大寺鐘楼24 東大寺鐘楼25
東大寺鐘楼26 東大寺鐘楼27 東大寺鐘楼28 ○東大寺行基堂 2018/10/15撮影: 東大寺行基堂 2023/01/25撮影: 東大寺行基堂2 2023/05/01撮影: 東大寺行基堂3 ○東大寺俊乗堂 2018/10/15撮影: 東大寺俊乗堂:国宝「俊乗上人坐像」を安置する。 2023/01/25撮影: 東大寺俊乗堂2 2023/05/01撮影: 東大寺念仏堂4 東大寺念仏堂5 東大寺俊乗堂3 東大寺俊乗堂4 ○東大寺念仏堂 2018/10/15撮影: 東大寺念仏堂 2023/01/25撮影: 東大寺念仏堂2 東大寺念仏堂3
○東大寺大湯屋:重文 2010/12/21撮影: 東大寺大湯屋:手前は蓮華院及び来迎院(?)跡 2018/10/15撮影: 東大寺大湯屋1 東大寺大湯屋2 東大寺大湯屋3 東大寺大湯屋4
東大寺大湯屋5 東大寺大湯屋6 2023/01/25撮影:
東大寺大湯屋7 東大寺大湯屋8 東大寺大湯屋9 東大寺大湯屋10 東大寺大湯屋11
東大寺大湯屋池
○東大寺二月堂(国宝)
2015/11/21撮影:
東大寺大仏殿・二月堂 東大寺二月堂
2018/10/15撮影: 東大寺二月堂1 東大寺二月堂2:手前左は鎮守興成社で東大寺寺主神である。興成社左は良弁杉。
東大寺二月堂3 東大寺二月堂4
東大寺二月堂参篭所:重文、鎌倉後期
東大寺二月堂参篭所1 東大寺二月堂参篭所2 東大寺二月堂参篭所3 東大寺二月堂参篭所登廊
東大寺二月堂諸堂
東大寺二月堂手水舎:右奥は鎮守飯道社(近江飯道社を勧請したものと云う。)
塔頭金珠院/二月堂湯屋:江戸期 塔頭金珠院/二月堂仏餉屋:鎌倉期、重文
塔頭金珠院1:手前から閼伽井屋、仏餉屋、湯屋 塔頭金珠院2
東大寺二月堂南門
2018/11/11撮影 東大寺二月堂5 2021/10/11撮影:
東大寺二月堂6
○二月堂閼伽井屋 2010/12/21撮影:
東大寺二月堂閼伽井屋
2018/10/15撮影: 「若狭井」の覆屋で、鎌倉期の建築、重文。
閼伽井屋の屋根の四隅には、故事に登場する「白と黒の二羽の鵜」に倣い、鵜の形をした瓦を配する。
若狭井は若狭遠敷川上流の「鵜之瀬」まで通じていると云う。
若狭神宮寺では、毎年3月2日深夜に“鵜之瀬”からこの二月堂へ向けて閼伽水を送る「お水送り」を執行する。
若狭神宮寺で汲まれた「お香水」は、松明行列とともに遠敷川沿いに約2キロ上流の「鵜の瀬」まで運ばれる。
「鵜の瀬」で大護摩供が行われた後、住職が送水文を読み上げ、「お香水」は筒から遠敷川に注ぎ込まれる。
「お香水」は10かけて、奈良東大寺二月堂の「若狭井」に届くと言われている。 東大寺二月堂閼伽井屋
2023/01/25撮影: 東大寺二月堂 東大寺二月堂・南門1 東大寺二月堂・南門2
東大寺二月堂7 東大寺二月堂8 東大寺二月堂9 東大寺二月堂仏餉屋(御供所) 二月堂参籠所は、鎌倉後期(あるいは室町期)の建築で重文、桁行10間・梁間4間、切妻造、屋根本瓦葺の建築である。 ただし厳密にいえば北半分が参籠所であり、南半分は食堂である。また参籠所と食堂の間にある通路を細殿という。食堂には、賓頭盧尊者像と訶梨帝母像(鬼子母神、重文)が安置される。ここに二月堂に至る登廊(のぼりろう)は取付く。
東大寺二月堂・参篭所・湯屋:向かって右が湯屋 東大寺二月堂参篭所 東大寺興成社は豊玉媛を祀る。興成社は二月堂東南のある飯道社・北東にある遠敷社(おにゅうのやしろ)とともに二月堂の鎮守神とも云う。
東大寺閼伽井屋・興成社 東大寺興成社・二月堂 2023/05/01撮影:
東大寺二月堂10 東大寺二月堂11 東大寺二月堂12 ○東大寺不動堂 2018/10/15撮影: 東大寺不動堂
○東大寺法華堂(三月堂・国宝)
2006/06/17撮影:
東大寺法華堂1
東大寺法華堂2
東大寺法華堂3
東大寺法華堂4
東大寺法華堂5
東大寺法華堂6
東大寺法華堂7
東大寺法華堂8
2018/10/15撮影:
東大寺法華堂11 東大寺法華堂12 東大寺法華堂13 東大寺法華堂14 東大寺法華堂15
東大寺法華堂16 東大寺法華堂17 東大寺法華堂18 東大寺法華堂19 東大寺法華堂20
東大寺法華堂21 東大寺法華堂22 東大寺法華堂23 東大寺法華堂24 東大寺法華堂25
東大寺法華堂26
東大寺法華堂手水屋:大黒天を祀る。
2018/11/11撮影: 東大寺法華堂27 東大寺法華堂28 東大寺法華堂29 東大寺法華堂30 東大寺法華堂31
2023/01/25撮影:
東大寺法華堂32 東大寺法華堂33 東大寺法華堂34 東大寺法華堂35
東大寺法華堂参道
手向山八幡・法華堂経庫 2023/05/01撮影:
東大寺法華堂36 東大寺法華堂37 東大寺法華堂38 東大寺法華堂39 東大寺法華堂40
東大寺法華堂41 東大寺法華堂42 東大寺法華堂43 東大寺法華堂44 東大寺法華堂45
○法華堂経庫
2018/10/15撮影: 建築様式上奈良期のものと推定される。重文。
元禄9年(1696)庫蔵の地から現在地に移築、鎌倉期に大修理、享保16年及び文政11年にも改造がなされるも、昭和の修理で中世の姿に戻される。元禄の移築は鎮守八幡宮の宝蔵としてであったが、明治の神仏分離の愚行の処置で、東大寺の帰属となる。
東大寺法華堂経庫1 東大寺法華堂経庫2 東大寺法華堂経庫3 東大寺法華堂経庫4
2018/11/11撮影: 東大寺法華堂経庫5
○東大寺三昧堂(四月堂)
2006/06/17撮影: 東大寺四月堂
2018/10/15撮影: 東大寺四月堂2 東大寺四月堂3
2023/01/25撮影: 東大寺四月堂4 東大寺四月堂5;向かって左の宝形造の堂宇が開山堂
○東大寺開山堂 2018/10/15撮影: 開山堂は以下の履歴が示すように、大仏様を色濃く残し、国宝に指定されている。
東大寺開山良弁僧正を祀る。良弁は宝亀4年(773)入寂するも、寛仁3年(1019)良弁忌が初めて実施される。この時東大寺開山堂が創建されたと推定される。
現開山堂は正治2年(1200)俊乗房重源によって再建されたものである。その時は現開山堂の内陣部分(一間四方)のみであったが、建長22年(1250)、開山堂は現在の位置へと移築され、その際に外陣部分が増築され、現在に見られる三間四方の堂となる。
開山堂・金珠院:向かって左より四月堂、開山堂、金珠院、開山堂上方が上之坊
東大寺開山堂1 東大寺開山堂2 東大寺開山堂など:向かって左より開山堂・閼伽井屋・上之坊・金珠院が並ぶ。
※上之坊は開山堂別當である。 2023/01/25撮影: 東大寺開山堂:宝形造の堂宇が開山堂・良弁僧正像を祀る
○東大寺指図堂 2010/12/21撮影: 東大寺指図堂
2018/10/15撮影:
東大寺鎌倉復興は勧進職重源によって進められるが、「大仏殿」を再建する指図(図面)を収蔵する堂としてこの堂が用いられたことに堂名は由来する。その後、この堂は法然のゆかりの霊場(圓光大師二十五霊場)として用いられるようになる。
現在の堂は嘉永5年(1852)再建。 東大寺指図堂2 東大寺指図堂3 東大寺指図堂門礎:門礎であろう、石階を挟み対面にもう1個の礎石がある。 2023/05/01撮影:
東大寺指図堂4 東大寺指図堂庫裡か
○東大寺勧進所:公慶上人の勧進所である。 2010/12/21撮影:
東大寺勧進所1 東大寺勧進所2
2018/10/15撮影: 東大寺勧進所3 東大寺勧進所4 東大寺勧進所5 東大寺勧進所6 東大寺勧進所7 2023/05/01撮影:
東大寺勧進所8 東大寺勧進所八幡殿:向かって左の門内 東大寺勧進所公慶堂
●東大寺寺中
○知足院: 法相宗の本所。
2018/10/15撮影: 塔頭知足院参道1 塔頭知足院参道2
塔頭知足院山門1 塔頭知足院山門2 塔頭知足院山門3 塔頭知足院山門4
塔頭知足院本堂石階 塔頭知足院本堂
塔頭知足院玄関石階 塔頭知足院玄関 塔頭知足院客殿1 塔頭知足院客殿2 塔頭知足院鐘楼
○金殊院: 寺名のみ残るというも、実際は退転。清須が創建。講堂の北西にあり、ここから、東に見性院、上生院、金蔵院、染井坊、大喜院、坊名不明(判読できず)の坊舎が講堂北側に続く。(「奈良町繪圖・部分図」)
但し、これらの坊舎は全て退転し、何も残らないが、大喜院跡には龍松院が移転し、現存する。 ○見性院: 宝暦の火災で罹災。廃絶。
○上生院: 寺名のみ残り、実質は退転。浄実が中興。
慶長19年(1614)当時の住職が駿府へ赴き、徳川家康に大仏殿復興のための諸国勧進の許可と崩れかかっている大仏像の頭を
支える柱の建て替えを訴え、後者は実現した(東大寺辞典)。華厳宗寺院だったが、のち三論宗に転じた。宝暦の火災で罹災。
○金蔵院: 宝暦の火災で罹災。廃絶。
○深井坊: 明応4年(1495)秀覚が創建。江戸中期以降に廃絶。
○大喜院:宝暦の火災で罹災。廃絶。跡地には龍松院が移転し、現存する。 2018/10/15撮影:
塔頭金殊院跡1 塔頭金殊院跡2 塔頭金殊院跡3
○龍松院: 大勧進職を務めた寺院で公慶が創建。公慶時代は勧進所にあったが没後、旧大喜院に移る。 2010/12/21撮影:
東大寺龍松院1 東大寺龍松院2
2018/10/15撮影:
塔頭龍松院1 塔頭龍松院2 塔頭龍松院3 塔頭龍松院4
○持宝院: 宝暦の火災で罹災。後再建。 2010/12/21撮影:
東大寺持宝院1 東大寺持宝院2
2018/10/15撮影:
塔頭持宝院1 塔頭持宝院2:門前にある。持宝院とあるので、持宝院関連の石塔であろう。
塔頭持宝院3 塔頭持宝院4
○龍蔵院 2010/12/21撮影:
東大寺龍蔵院1 東大寺龍蔵院2
2018/10/15撮影:
塔頭龍蔵院1 塔頭龍蔵院2 塔頭龍蔵院3
○宝厳院: 元は大喜院の東隣にあった。良覚が蓮乗院と同時期に創建。実清が天正年中に中興。宝暦の火災で罹災。現在地は旧実信院の位置である。 2010/12/21撮影:
東大寺宝厳院
2018/10/15撮影:
塔頭宝厳院1 塔頭宝厳院2 塔頭宝厳院3
○正源院跡/食堂跡 2018/10/15撮影:
塔頭正源院跡/食堂跡:手前に写るのが食堂礎石という。
○宝珠院: 創建年代は不明。永禄5年(1562)玄覚が再建。 2010/12/21撮影:
東大寺宝珠院
2018/10/15撮影:
塔頭宝珠院1 塔頭宝珠院2 塔頭宝珠院3 塔頭宝珠院前
○中性院: 宝暦の火災で罹災。後再興。 2010/12/21撮影:
東大寺中性院1 東大寺中性院2
2018/10/15撮影:
塔頭中性院1 塔頭中性院2 塔頭中性院3
○観音院: 宝暦の火災で罹災。後再建される。 2018/10/15撮影:
塔頭観音院1 塔頭観音院2 塔頭観音院3 塔頭観音院4
○東南院: 三論宗の本所。門跡寺院。聖宝が創建(真言宗も兼る)。宝暦の火災で罹災。現在は本坊。
※多武峰妙楽寺本殿(寛政度造替で享保造替本殿)を有する。 東南院持仏堂は多武峰妙楽寺本殿(寛政の造替)を移建したものという。 ※近世中葉から明治維新までは東照大権現社を祀っていた。
※境内にある経庫は国宝指定の建造物である。
2020/07/31追加: ○「誰も知らない東大寺」筒井寛秀、小学館、2002 より
天皇殿は元東照大権現であり、東照大権現社が祀られていたが、明治の神仏分離令で、東照大権現社は手向山八幡に移され、代わりに八幡宮の神体・僧形八幡大菩薩が東大寺に持ち帰られ勧進所の元天皇殿に安置される。
→下に掲載の鎮守八幡宮>東照大権現社を参照。
2015/11/21撮影:
東大寺東南院41:向かって右端の屋根が持仏堂 東大寺東南院42:中央屋根が持仏堂 東大寺東南院43
2018/10/15撮影:
東大寺東南院44 東大寺東南院45 東大寺東南院46 東大寺東南院47
2020/09/27追加: 東南院持仏堂:多武峰寛政度造替本殿であり、嘉永元年(1848)の造替で移されたものである。
但し、嘉永度の造替で直接東南院にうつされたのか、またなぜ東南院に移されたかなどは不明。 諸Webサイトより
東南院持仏堂1 東南院持仏堂2:いずれも三間社流造の様子が分かる、いずれも奥の建物が持仏堂である。
2020/09/28撮影: 東南院は特別な日以外は拝観できず、従って多武峰本殿(現持仏堂)は塀の外から撮影するしかない。
ほぼ屋根と背面妻飾りだけしか見えないが、三間社春日造と彩色の片鱗を覗うことができる。
多武峰享保造替本殿11 多武峰享保造替本殿12 多武峰享保造替本殿13 多武峰享保造替本殿14
多武峰享保造替本殿15 多武峰享保造替本殿16 多武峰享保造替本殿17 多武峰享保造替本殿18
多武峰享保造替本殿19 多武峰享保造替本殿20
2023/05/01撮影: この日は天武天皇忌で本坊内に入れるが、本坊庫裡や持仏堂附近に近寄ることはできない。 多武峰享保造替本殿21 多武峰享保造替本殿22 多武峰享保造替本殿23 多武峰享保造替本殿24 2023/05/01撮影:
撮影日は「聖武天皇忌」であり、天王殿・経庫の外観が公開される。
東大寺本坊門 東大寺東南院玄関等 東大寺東南院玄関 東大寺東南院庫裡
◇東南院経庫
国宝、奈良期の建築(東大寺には6棟の校倉建築が残るという)。校倉造、3間×2間、屋根寄棟本瓦葺。
元は油用の蔵として使用されていたが、江戸期に現在地に移建されるという。 ※東大寺に現存するの校倉造の建築:
正倉院宝庫・聖語蔵(塔頭尊勝院の校倉を正倉院内に移築)・法華堂経庫・勧進所経庫(左記の2棟は正倉院の西方にあった倉を移築)・鎮守八幡神宝庫(上司の油倉を移築)・本坊経庫
○「大和路(東大寺)」黒田f義(のぶよし)、関西急行鉄道、昭和16年 より 東大寺東南院は貞観17年醍醐寺聖寶によって建てられる。
経庫は現在寶庫に充てられてゐるが、正徳4年(1714)知足院の東麓にあった油倉の寶蔵を移建したもので、 「龍松院代々諸興隆記」の聖徳4年の條に
同7月東南院経藏建組之事 油倉之寶蔵及大破候に付一山相談之上東南院に引移加修覆為経蔵建立之
と記されている。 しかしこの油倉というのは上司倉の後身であるから、その寳藏とは「續要録」寛喜2年の條に
上司三宇藏、内一宇勧進所預之、一宇舞装束等納之、一宇本願勅書以下文書納之
とある本願勅書以下文書を入れていた一宇に當る。 従ってこれは要録に 印藏納流記公験等銘一枚注伽藍縁起
と見える印藏に外ならず、この倉が嘗て聖武天皇銅板勅書や東大寺関係文書を蔵してゐたのは當然のことであった。よつてその建立は東大寺創建の年代より著しく下るものではなかろう。
東大寺東南院経庫11 東大寺東南院経庫12 東大寺東南院経庫13 東大寺東南院経庫14
なお、「聖武天皇聖霊殿」は維新までは東照宮の社殿として用ゐられてゐたもの、江戸中期の建築である。毎年5月2日は聖武天皇の御忌日に當るので、最勝十講の盛大な祭典があり、御練りや舞樂が行はれる。 ○「奈良六大寺大觀 第9巻 東大寺一」岩波書店、1970
東大寺寺中寺外惣繪圖:正倉院周辺部分 元々、東南院経庫は講堂東の食堂院の東北側裏手、上司の地にあり印藏で油倉とも云われていた。
寺中寺外惣繪圖によれば、竈殿の北方に築地塀を廻らせた油倉の一画があり、西面する校倉2棟が並ぶ。この内の1棟が正徳4年に移建された本坊経庫であり、他の1棟は一時解体されていたが、文政3年(1820)に鎮守八幡社寶庫として移築されたものである。この2棟の校倉の建立時期を証する記録はないが、規模・形式ともほぼ等しく計画的にほぼ同時に建立されたと考えられる。建立時期については、「大和路(東大寺)」黒田f義には「東大寺創建の年代より著しく下るものではなかろう」とある。
東大寺寺中寺外惣繪圖:部分
◇天皇殿: 江戸期の建立で東大寺東照宮として建立される。 ※元禄年中造営の東照宮は宝暦13年(1763)焼失したと云われるから、おそらく宝暦以降の再建と思われる。
明治の神仏分離の処置で、鎮守八幡宮(手向山)に放逐された東照宮宮殿が現存するが、この八幡宮の東照宮宮殿と東南院の東照宮(天皇殿)との関係は良く分からない。 が、推測するに現八幡宮東照宮宮殿が本殿で、現天皇殿は左記宮殿を安置する奉安殿のような建築であったのではないかと思う。
東大寺東南院天皇殿11 東大寺東南院天皇殿12 東大寺東南院天皇殿13
東大寺東南院天皇殿14 東大寺東南院天皇殿15
聖武天皇忌の祭事(行列)
東大寺聖武天皇忌11 東大寺聖武天皇忌12 東大寺聖武天皇忌13 東大寺聖武天皇忌14
東大寺聖武天皇忌15 東大寺聖武天皇忌16 東大寺聖武天皇忌17 東大寺聖武天皇忌18
※奈良町繪圖・部分図(上に掲載済)で確認すれば、南大門の東に東南院とあり、そこには東照宮との書き込みがある。
○真言院:空海の創建。真言宗の本所。 2018/10/15撮影:
塔頭真言院東門(勧学院) 塔頭真言院南門
塔頭真言院2(勧学院) 塔頭真言院3 塔頭真言院4 塔頭真言院5 塔頭真言院6
塔頭真言院7(勧学院) 2023/05/01撮影:
塔頭真言院8 塔頭真言院9 塔頭真言院10 塔頭真言院11(勧学院)
○北林院:成慶が中興。正倉院の西にあったが、大正6年現在地に移転。 2018/10/15撮影:
塔頭北林院1 塔頭北林院2
○地蔵院:室町期に浄憲が再興。当初の位置は不明。 2018/10/15撮影:
塔頭地蔵院・正観院:手前が地蔵院 塔頭地蔵院1 塔頭地蔵院2
○正観院:弘化元年(1844年)広海が創建。正倉院の中にあった。大正6年現在地に移転。 2018/10/15撮影:
塔頭正観院正門 塔頭正観院正門内 塔頭正観院通用門 塔頭正観院1 塔頭正観院2
○東大寺整肢園 ○「誰も知らない東大寺」筒井寛秀、小学館、2002 より
もとは塔頭新禪院跡である。明治8年東大寺改革で廃寺となる。
○千手院跡:坊舎なのか工房の類なのかは不明であるが、現在の手向山八幡の南東附近(千手谷)にある。
2018/11/11撮影: 刀祖千手院跡:碑が建つ、千手院流の刀工の跡地と云う。
○天地院参道/八幡神主屋敷跡 2010/12/21撮影:
東大寺八幡神主:八幡神主屋敷跡、今は溜池となる。
今天地院に至る道は宝珠院前から左(右に行けば二月堂に至る)に分岐する谷川沿の道を登るが、東大寺寺中寺外惣絵図(東大寺丸山西遺跡部分図)では、宝(?)勝院(宝厳院南)裏から南北の房舎の間を通り、天地院に至る道であった。
この道の北側には西から安養坊、法輪坊、自性院、新福院、八幡神主、上院五劫阿弥陀堂が山門を南に開き、南側には地藏堂、普賢院、阿弥陀院、福寿院、文殊院が山門を北に開き、整然と並んで配置されていた。
現在この天地院に至る旧道は廃道となり、房舎は全て廃絶する。北側坊舎跡は近年まで田として利用されたと云う。しかし今は全て耕作は放棄されたと思われるも、この区画に一歩も立入ることは出来ないので良く分からない。八幡屋敷は溜池と化す。
南側坊舎は一部は田として残る(現在は放棄か)も大部は民家が建つ。
○東大寺鎮守八幡宮
天平勝宝元年(749)東大寺及び大仏を建立するにあたって宇佐八幡宮より東大寺の守護神として勧請される。
当初は平城宮南の梨原宮に鎮座するという。(梨原宮の所在地は未詳であるが、「平城京左京三条二坊庭園跡庭園」がその候補地ともいう。)
後に東大寺大仏殿南方鏡池東に移座する。
治承4年(1180)平重衡の南都後略で焼失、建長2年(1250年)北条時頼が現在地に再建するという。当初の鎮座地とされる梨原宮の所在地は未詳だが、奈良市役所近くにある平城京左京三条二坊庭園跡庭園がその跡ともいわれる。
創建以来、明治維新まで東大寺鎮守であったが、明治の神仏分離の処置で東大寺から分離され、手向山八幡宮として独立する。
この時、神体である木造僧形八幡神像(快慶作、国宝)は八幡宮より放擲され、現在は東大寺勧進所八幡殿に安置される。
東大寺勧進所八幡殿にある木造僧形八幡神像(快慶作、国宝)は、もと手向山八幡宮にあり、明治の神仏分離の際に東大寺に移されたものである。
同時に、徳川幕府の終焉とともに、東大寺東照宮(現在の本坊内天皇殿<開基堂>)にあった東照宮社殿は放擲され、手向山八幡宮に移動させられ、神楽所の北の一郭にひっそりと置かれている。
※結果論ではあろうが、東大寺に於ける神仏分離は興福寺と違い、いわばスマートでダメージは最小限であったように思われる。興福寺鎮守春日権現が春日社として分離したのは、東大寺鎮守八幡大菩薩が手向山八幡宮として分離したのと同じであるが、その後興福寺は廃寺となるも、東大寺は廃寺となることはなかったのである。
興福寺の一山僧侶は時代を見て、揃って仏教を棄て還俗神勤するも、東大寺の僧侶は同じ時代を見ても、徳川(東照宮)は捨てるも、仏教を棄てることはなかったのである。
2019/01/01追加: ○「八幡神とはなにか」角川選書366、飯沼賢司、平成16年 より
天平勝寶元年(749)12月終わり、宇佐より八幡神が入京する。 入京の目的は東大寺盧舎那仏の造立に協力した神が大仏を礼拝するためであった。
12月17日には八幡神は平群郡から入京し、左京二条二坊附近の梨原宮に造られた神殿に入り、僧侶40口を招き、7日間の悔過を行う。
12月27日八幡神の輿が東大寺に入り、八幡大神の社女が大仏を礼拝、この日、天皇(孝謙)、太上天皇(聖武)、皇太后(光明)が行幸し、百官と諸氏の人々が悉く寺に集まり、僧5000を請して礼仏読経などを行う。ここで八幡神は一品、八幡比賣神は二品を奉られる。
2019/01/01追加: ○「八幡神と神仏習合」講談社現代新書1904、逵日出典、2007 より
天平15年(743)聖武天皇盧舎那大仏造立の詔を発する。しかし工事は難渋を極める。
天平19年(747)朝廷は使いを宇佐に遣わし、八幡神に大仏造立成就を祈願させる。八幡神は託宣を発し協力を宣言する。
天平20年(748)八度の改鋳を経て、大仏が全容を現す。次に大仏の佛身に施す黄金について託宣が宇佐八幡神より表せられる。ほどなく陸奥より黄金が献上される。
天平勝寶元年(749)八幡神が都に向かうという託宣を発する。
同年、都に入った八幡神はやがて東大寺に鎮座し、伽藍神(鎮守)としての機能を発揮する。
東大寺鎮守八幡の出現は俄かに中央で八幡神を鎮守として勧請する契機となる。
即ち、大同2年(807)には大安寺の鎮守八幡が、寛平8年(896)には大和薬師寺鎮守八幡、延喜年中(901-923)には勸修寺に出現する。 2018/10/15撮影: 東大寺鎮守八幡楼門1 東大寺鎮守八幡神楽所
東大寺鎮守八幡宮宝庫:重文、奈良期。
2018/11/11撮影: 東大寺鎮守八幡楼門2 東大寺鎮守八幡神楽所2
東大寺鎮守八幡小門 東大寺鎮守八幡境内1 東大寺鎮守八幡境内2
2023/05/01撮影: 東大寺鎮守八幡楼門2 東大寺鎮守八幡若宮
八幡宮神楽所の一画に東大寺東照権現宮殿が置かれる。
東大寺鎮守八幡神楽所11 東大寺鎮守八幡神楽所12 東大寺鎮守八幡神楽所13
東大寺鎮守八幡神楽所14 鎮守八幡神楽所・東照宮宮殿
○東大寺東照宮宮殿
元禄13年(1700)東大寺は大仏殿再興にあたり幕府の援助の目的もあり、東照宮を勧請する。 翌年より本格造営に入り、社殿として東大寺別当勧修寺宮済深法親王の周旋により、明正天皇の旧殿の賢所を移すという。 東照宮には善性院客殿を移した宸殿が付属し、宝山寺湛海作の薬師如来と聖宝を祀る。
宝暦13年(1763)大火により焼失する。
明治維新に至り、上述(東大寺本坊)のように「東大寺東照宮(現在の本坊内天皇殿<開基堂>)にあった東照権現社宮殿は放擲され、手向山八幡宮に移動させられ、神楽所の北の一郭にひっそりと置かれている。」
東大寺東照権現社(宮殿) 2023/05/01撮影:
江戸期、東大寺は大仏殿再興を企図し、幕府の庇護を得るため東照宮勧請を申請する。 寺社奉行松平丹後から裁可を得て元禄13年(1700)鎮座する。但し、これは仮宮だったのか、改めて奈良奉行の主導で12月26日から本格造営に入り、元禄14年(1701))9月15日手斧始。同年4月17日に御神体が描画される。
社殿は東大寺別当勧修寺宮済深法親王の周旋により、明正天皇の旧殿の賢所を移したという。 元禄15年(1702)5月23日に上棟式。26日、庸性を導師に落慶法要を営む、善性院客殿を移した宸殿が付属し、宝山寺湛海作の薬師如来と聖宝を祀る。 年(宝暦13年(1763)3月、奥芝町から出火した大火で焼失する。維新の時に手向山八幡宮内に遷される。(「東大寺辞典」)
※東照宮本殿の形式は良く分らないが、おそらく一間社の入母屋造で、同じく一間の唐破風屋根を載せた向拝を付設する歪な構造であろう。屋根は檜皮葺。
東照権現宮殿:
東大寺東照権現社11 東大寺東照権現社12 東大寺東照権現社13
東大寺東照権現社14 東大寺東照権現社15 東大寺東照権現社16
★大和天地院:(東大寺前身寺院の一つとされる。)
2006/03/11追加:
◆「平成12年度秋季特別展 大仏開眼―東大寺の考古学―」橿原考古学研究所附属博物館、平成12年より:
天地院:
和銅元年に行基が伽藍を造営したと伝える。シカゴ美術館には「天地院縁起絵」があり多くの坊舎が描かれる。
大仏殿裏の東西の道を東に進み、山頂し近くに天地院跡と伝える平坦地があり、小規模な発掘調査が実施された。
平坦地南端で3間四方の塔跡が発掘された。推定基壇高さ1.8m、一辺約12m、基底部で18mを測る。
基壇化粧は未確認、瓦の出土がなく、檜皮葺きの塔と思われる。奈良期に創建、鎌倉期に再建もしくは修理と推定される。
東大寺天地院位置図:図の左上・トレンチ9004・9116が塔跡と思われる。
2010/12/29追加:
◆「史跡東大寺総合防災施設工事に伴う事前発掘調査の概要」奈良県立橿原考古学研究所(「南都佛教 69」1994 所収) より
東大寺丸山(想定天地院跡平場、120m×120mの大きさ)の北側東谷筋に貯水槽(25m×42m)及び南に導水管を設置する為に事前発掘調査を実施する。
天地院・上院地区発掘調査位置図 天地院地区平成2年度発掘区平面図:
貯水槽からの管路東側に土壇様高まりがあり、そのため平成2年度調査で9003、9004トレンチを設置、調査の結果、高まりは礎石建物であり、3間×3間と判明する。平成3年度には追加調査を実施し、2間分の柱掘り方もしくは礎石抜取穴を検出。塔跡と推定される。
天地院地区推定塔遺構図:
遺構図では心礎及び四天柱礎の痕跡が明らかに認められる。また脇柱礎も3間分認められる。ほぼ塔跡と断定が可能であろう。
基壇は山土を互層積して形成し、高さは現状で約1.3mを測る。上面が削平されているので、当初はおそらく1.8mほどであったと推定される。基壇化粧は確認されず、基壇側面は土積の緩斜面であった。基壇規模は上面で約12m(40尺)下面で約18m(60尺)と推定される。
建物は柱間2.4m(8尺)の当間で、3間×3間の塔跡と推定される。遺物は古代では土器片及び和同開珎2枚、中世では土器片が出土。
これ等の出土遺物および遺構の出土状況から、塔は奈良期の建てられ、中世に礎石や根石を据え直し、再建もしくは修復されたものと推定される。
◆東大寺寺中寺外惣絵図12:天地院部分図:東大寺蔵
:下に掲載「古図にみる日本の建築」より
「惣絵図」で今般の塔跡を想定すると、「想定天地院跡平場」が八講堂とすれば、塔跡に想定される建物が描かれていないことになる。
一方、「想定天地院跡平場」が北室とすると、建物は千手堂ということになる。
天地院縁起絵:シカゴ美術館蔵、鎌倉期に成立、龍華院に伝来する。
下に掲載の「東大寺の古層-東大寺丸山西遺跡考-」吉川真司(「南都佛教 78」2000 所収) では以下のように述べる。
天地院縁起絵トレース:
中央上部の社殿は弁財天社であろう。当社は遅くとも室町期には信仰を集め、近世の絵図にも例外なく天地院弁財天社は描かれる。
社殿には瑞垣が廻り、南には経所、石段下には拝殿が建つ。北方には多宝塔と宝形堂宇がある。
中央の入母屋造瓦葺の堂は八講堂=千手堂であろう。これは丸山山頂に建っているように描かれる。
であるならば、下左に描かれる檜皮葺堂宇は丸山西斜面平坦地(下に掲載の平坦地1)に立つ房舎の可能性が非常に高い。
2006/06/10追加:
◆「東大寺三昧堂(四月堂)千手観音立像について」井上正(「学叢 第7号」京都国立博物館、昭和60年所収)
より
『(東大寺)要録』に引く『天地院縁起』によれば、天地院(法蓮寺と号す)は行基菩薩が、添上郡の諸山根(山麓の意か)を求め、御笠山安部氏社之北高山半中(山腹の意か。正確な意味不明)において和銅元年(708)2月
11日に造り始め、翌2年3月15日に供養を行った山峯の一伽藍である。・・・
行基は天智天皇7年(668)の生まれというから、当時41歳、慶雲元年(704)生家を改め家原寺となしたのを皮切りに、近くに蜂田寺(慶雲3年)を造るなど、ようやく民間伝道者としての使命に目覚め、各地に道場を造り始めたころであった。平城遷都は、天地院が供養されて約1年後の、和銅3年(710)3月10日のことである。したがって、王城の真東に当る山として、特別な意味をもち始める直前のことであった。これから
7年後には、行基の伝道はその実をあげ、その集団は大勢力となり、有名な行基弾圧の詔勅(養老元年4月23日)を見るに至る。その天地院の供養に際しての請僧は
10名、導師経淵法師以下大安寺・薬師寺・元興寺・法隆寺などの官寺の僧が奉仕しているが、薬師寺僧が大半を占めているのは、『続紀』や『元亨釈書』に記すように、行基が薬師寺と関係が深かったことを裏書きするものであろう。・・・
天地院の本尊の尊名について『要録』は明らかにしていないが、天喜元年(1053)9月20日に火災に見舞われ、南面の5間桧皮葺堂等と仏像は焼亡した。北の
3間桧皮葺堂もその時焼亡したが、この方の仏像は取り出したことを記している。この記載からすると、5間堂が中心堂宇らしく、天地院創立当初の本尊はこの時失われた可能性が強い。
2010/12/29追加:
◆「東大寺要録」嘉承元年(1106)成立、長承3年(1134)増補、その後も加筆あり より
「天地院 号法蓮寺
縁起文云 是文殊化身行基菩薩建立也 (中略) 大和国造八箇寺 (中略) 添上郡求諸山根於御笠山安部氏社之北高山半中 始造和銅元年二月十日戊寅 山峯一伽藍即天地院 名法蓮寺 同二年三月十五日辛卯供養 (大安寺、薬師寺、元興寺、法隆寺の諸僧による)
天喜元年(1053)・・南面有五間堂檜皮葺堂等并仏像焼亡 并有北三間檜皮葺堂同以焼亡 (八講が講ぜられる 中略)
或日記云 和銅元年 行基菩薩造天地院礼堂 此本堂不知建立之人 康平五年(1062)・・天地院金剛手菩薩 始造安本堂了 (攻略) 」
2006/06/30追加:
◆「奈良市史」:天地院より
「寺中寺外惣絵図」(江戸初頭に描写、永禄元年<1561>の炎上後の様子が分かる)によると
※東大寺寺中寺外惣絵図12:天地院部分図:東大寺蔵
:下に掲載「古図にみる日本の建築」より
西の入口に西大門、鳥居があり、南室・八講堂・北室があって中に千手堂がある。さらに登ると拝殿・弁財天社があり、東に塔と八角文殊堂がある。その東に長い東室があった。もっと東に入ると拝殿・金剛童子社・末社があり閼伽井があった。
この閼伽井跡と阿伽井山阿弥陀三尊石仏は現存する。(未見)
・石灯篭の拓本がある(堀池道貫氏蔵・灯篭現物は残存しないと云う)。
「奉施入 藤原氏□代逆修 天地院千手堂石灯ろ(火偏に呂) 正中3季・・・」(陰刻)
・河内道明寺天満宮社務所庭に所在する六角石灯篭
「奉法入 天地院 御宝殿 康元2年・・・・」の陰刻があり、石灯篭の由来不明のため、断定はできないが、東大寺天地院の可能性はあると思われる。
※「奈良六大寺大観 巻9東大寺」岩波書店 に「寺中寺外惣絵図」が収録されているが、残念ながら編集の都合と思われるが、周辺部は切れていて、天地院の部分は「西大門」跡しか確認できない。
2008/02/27追加:◆「古図にみる日本の建築」より
□東大寺寺中寺外惣絵図12:天地院部分図:東大寺蔵
真言院・八幡宮が焼失した寛永19年(1642)以降、大仏殿が再興された宝永2年(1705)以前の制作と考えられる。
なお、明治28年東大寺手向山八幡宮境内社の松童神社に11社が合祀される。
その11社の中に「天地院神社 (大山咋神) 雑司字天地院山」の合祀の記録がある。
この天地院神社とはかって天地院内に鎮座した何がしの社である可能性は高いと思われる。
2010/12/29追加:
◆「東大寺の古層-東大寺丸山西遺跡考-」吉川真司(「南都佛教 78」2000 所収) より
東大寺丸山の山頂は大きな平坦地であり、ここは天地院跡と想定される。
東大寺丸山西遺跡はこの丸山西山麓に立地する。この遺跡は幾つかの平坦地と瓦散布地とで構成される。
東大寺丸山西遺跡概要図
東大寺寺中寺外惣絵図:東大寺丸山西遺跡部分図
:「奈良六大寺大観 巻9東大寺」岩波書店 より
平坦地1は南北約90m東西約50mの巨大なものである。かっては3段の耕地であり、その形跡は残る。今は放棄され潅木が茂る。地表には基壇も礎石も遺物も残らない。但し西側傾斜地には大量の奈良期の瓦の堆積を見る。
この地は「東大寺寺中寺外惣絵図」では「紫摩金院、今ハ田」として認識される。「惣絵図」では1間の建築として表されるが、これは既に礎石が喪失していたからであろうか。
※なお「東大寺境内絵図」(江戸前期、鎮守八幡社蔵)ではこの区画を「紫摩金院家」とし、堂宇跡は「如意輪堂」と注記すと云う。
しかし、紫摩金院は11世紀までの資料には全く見えず、断片的に記録に出てくるも、その記録は13世紀には退転していたことを示すのみの記録である。
2010/12/21撮影:
丸山西遺跡平坦地1その1 丸山西遺跡平坦地1その2 丸山西遺跡平坦地1その3
平坦地2は今平坦地1に至る道路で二分されているが、本来は南北約30m東西40mの方形区画であろう。
また平坦地2の北と東に今は水道施設であるが平坦地がある。これも寺院の平坦地であった可能性は高いであろう。
さらに平坦地1の西北付近には3個以上の小規模な平坦地が散見される。畑の跡であろうが坊舎跡の可能性がある。
平坦地3は一辺約30mの方形をなす。
2010/12/21撮影:
丸山西遺跡平坦地3その1:手前の平坦地は丸山西遺跡平坦地4の北側部分
丸山西遺跡平坦地3その2
平坦地4は南北約20m東西40mの長方形をなす。
2010/12/21撮影:
丸山西遺跡平坦地4:平坦地4の南側部分か、八幡神主屋敷の東に位置し、「惣絵図」で
は「上院五劫阿弥陀堂」と表記する。
何れの平坦地も遺構は残さないが、古代・中世の瓦が広く散布する。
以上多くの堂宇から構成される古代・中世寺院が想定され、平坦地1〜4を中心とした遺構を「東大寺丸山西遺跡」と総称したい。
|
 |
天地院縁起絵:シカゴ美術館蔵、鎌倉期に成立、龍華院に伝来する。
天地院縁起絵トレース:左図拡大図
中央上部の社殿は弁財天社であろう。当社は遅くとも室町期には信仰を集め、近世の絵図にも例外なく天地院弁財天社は描かれる。
社殿には瑞垣が廻り、南には経所、石段下には拝殿が建つ。北方には多宝塔と宝形堂宇がある。
中央の入母屋造瓦葺の堂は八講堂=千手堂であろう。これは丸山山頂に建っているように描かれる。
であるならば、下左に描かれる檜皮葺堂宇は丸山西斜面平坦地(下に掲載の平坦地1)に立つ房舎の可能性が非常に高い。
勿論これは「天地院縁起絵」が鎌倉期の成立であるので、鎌倉期の平坦地1の房舎の姿であろうが、中世にはこのような建物が存在していたと想像できるであろう。
|
丸山西遺跡の文献資料による考察:
東大寺成立前史には諸説がある。
福山敏男説:金鐘寺と福寿寺は同一実体であり、天平14年金鐘寺=福寿寺は金光明寺へ発展・改称され、あらに天平19年東大寺へ発展・改称される。
堀池春雄説:金鐘寺と福寿寺は別個の寺院であり、それぞれ別の金堂を構え、天平14年に金光明寺へ発展する。
その他の諸氏の説も多く有る。
筆者古川は以下と説く。
金鐘寺の起源は神亀5年聖武天皇によって創建された山房である。
福寿寺は天平10年皇后宮職によって造営が開始され、主要堂宇は阿弥陀堂であった可能性が高い。
天平14年金鐘寺と福寿寺が統合され金光明寺となる。
金鐘寺と福寿寺の具体的場所は判然としない。位置の明らかな羂索堂・千手堂は金鐘寺金堂とは考えられない。
つまり、金鐘寺や福寿寺はその規模などから、そのいずれかがこの丸山西遺跡にあった蓋然性は高いと考えられる、と。
2022/05/20撮影: ○奈良市役所展示の平城宮跡復元模型 →平城宮跡復元模型:平城宮での姿が再現される。
□天地院跡現状:
2006/06/17撮影:
推定天地院塔跡付近1 推定天地院塔跡附近2
但し、全くの山中であり、また上で掲載した「東大寺天地院位置図」だけが頼りのため、確認は困難である。
大量の瓦の集積 瓦の集積の崩れ
※推定天地院塔跡南には、通常の民家で使用する瓦の縦横2倍以上の大型の瓦が集積(廃棄)されている。
場所柄東大寺のどこかの堂宇の廃棄瓦とも思われるも不明。悪いことに南側では「集積が崩れ」環境破壊一歩手前の状態となる。
2010/12/21撮影:
天地院塔跡土壇1 天地院塔跡土壇2 天地院塔跡土壇3
丸山山頂平坦地:天地院主要堂宇(八講堂=千手堂などか)跡想定地
、
上掲「東大寺丸山西遺跡概要図」の「5丸山平坦地・想定天地院跡」を撮影
2006年以前作成:2024/07/31更新:ホームページ、日本の塔婆
|