|
★出雲風土記新造院
「出雲国風土記」には以下の10箇所の新造院が記載されている。
1)新造院一所。在山代郷中。郡家西北四里二百歩。建立嚴堂也〈无僧〉。置君自熊之所造也〈出雲神戸。置君猪麻呂之祖也〉。
2)新造院一所。在山代郷中。郡家西北二里建立教堂〈住僧一躯〉。飯石郡少領出雲臣弟山之所造也。
3)新造院一所。在山國郷中。郡家東南卅一里一百廿歩。建立三層之塔也。山國郷人。置部根緒之所造也
4)新造院一所。在沼田郷中。建立嚴堂也。郡家正西六里一百六十歩。大領出雲臣大田之所造也
5)新造院一所。有河内郷中。建立嚴堂也。郡家正南一十三里一百歩。舊大領置部臣布禰之所造也〈今大領佐宜鹿之祖父〉。
6)新造院一所。在朝山郷中。郡家正東二里六十歩。建立嚴堂也。神門臣等之所造也。
7)新造院一所。在古志郷中。郡家東南一里。木立嚴堂也。刑部臣等之所造也。
8)新造院一所。在斐伊郷中。郡家正西一里。建立嚴堂也〈在僧五躯〉。大領勝部君虫麻呂之所造也。
9)新造院一所。在屋裏郷中。郡家正北一十一里一百廿歩。建立三層塔也。〈有僧一躯〉。前小領額田部臣押嶋之所造也。〈今少領伊去美之從父兄也〉。
10)新造院一所。在斐伊郷中。郡家東北一里。建立嚴堂〈有尼二躯〉。斐伊郷人。樋伊支知麻呂之所造也。
※嚴堂とは金堂を意味すると解釈される。
○教昊寺。有舎人郷中。郡家正東25里120歩。建立5層之塔也。在僧。教昊僧之所造也。散位大初位下上"腹首押猪"之祖父也。
※舎人郷については「山國」郷と写しているものもあると云う。
現段階では以下のように比定される。
1)来美廃寺:本ページ
2)四王寺(しわじ)廃寺
3)山国郷新造院(古市遺跡)・・・建立三層之塔也と記載される。教昊寺跡南西凡そ1里ほどにある。
上吉田町内字釈迦堂の地(南に字大門が残る)と比定されるも、確たる遺構・遺物が有るわけではない。
この地を山国郷新造院とする根拠は、教昊寺からの距離がほぼ合致すること、字大門と地名が残ること、今は失われるもかっては古瓦の出土を見たことなどである。
4)西西郷廃寺
5)従来、長者原廃寺が比定されていたが、近年発見の出雲天寺平廃寺とされる。
6)・7)のいずれかが出雲神門廃寺
8)木次廃寺(塔の村廃寺)
9)・10)は不明
教昊寺は野方に比定される。教昊寺跡(野方廃寺)
★出雲来美廃寺概要
2011/07/24追加:
◆「山代郷北新造院跡 史跡出雲国山代郷遺跡群北新造院跡(来美廃寺)発掘調査報告書」島根県教育委員会、2007/03 より
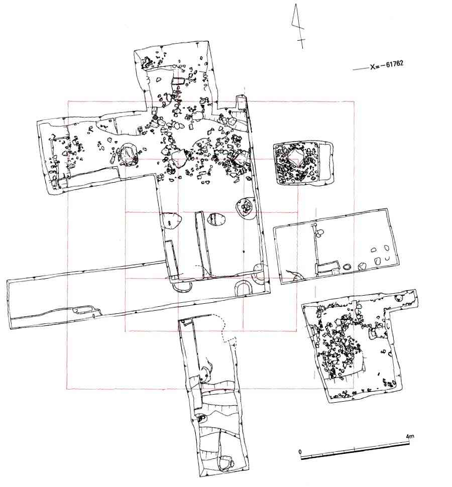
来美廃寺発掘概要図
|
 |
本報告書は2005年及び2006年の発掘調査報告である。
来美廃寺発掘概要図:左図拡大図
今般の調査によって、次のことが判明する。
◇第3基壇は東塔と確定した。石製相輪が発掘されたからである。
しかも、この相輪は水煙を欠き、天蓋を乗せていた可能性が高い事が判明する。
※水煙を欠き天蓋を乗せた塔相輪は、国内では室生寺のみ類例がある。
◇第1基壇も確定的な物証は欠くもののほぼ塔跡であると判断されるに至る。
以上などから、北新造院跡の伽藍配置は、金堂の東西に塔を建て、東面する講堂を金堂南西に配置する変則的な伽藍配置を取っていたと考えられる。また、その伽藍配置は当初から計画されていたものではなく、整備の過程でその都度追加されて行った可能性が高い。建立当初の金堂一宇のみの寺から、最終的に双塔を建て、講堂を構える寺院に変遷して行った過程からは、寺院整備とその背景の変化が想像される。 |
2005年以前の調査として、当廃寺は1996年から2001年までの6年にわたり、発掘調査が実施される。
その結果、以下のことが知られていた。
1.寺の中心である金堂(「風土記」記載の厳堂か)の建設時期は7世紀末頃で、出雲の院跡としては最も古い時期のものの一つである。
2.金堂の中心に三尊仏が置かれた痕跡がある。
3.8世紀後半には金堂の東・西・南西の3ヵ所に瓦葺きの建物が建てられ伽藍が整備される。
4.11世紀末頃に火災により金堂が焼失し廃寺となる。
2006/08/05追加:
◆島根県報道発表資料「0118 史跡山代郷北新造院跡(来美廃寺)発掘調査現地説明会開催について」より転載
※2006年度調査成果から、山代郷北新造院跡は金堂の東西に2基の塔を持つ伽藍配置を採る可能性が高いと推定されるに至る。
1.2006/08/05現地説明会を開催する。
2.今年度(2006年度)調査成果
1)金堂西側・第1基壇上の建物は、方3間の正方形であったと確認され、塔であった可能性が高い。
2)金堂東側・第3基壇からは小形の風鐸2点が出土した他、石製相輪の部材と考えられる石材が出土する。
このことから、第3基壇上の建物は前回調査で、塔であったと断定される。
◆出雲来美廃寺推定塔跡の発掘成果(報道)
「山陰中央新報」:2005/08/18記事概要:
出雲最古級の松江・来美廃寺、全容が判明
島根県文化財課は、発掘調査により、「山代郷北新造院跡(来美廃寺)」金堂(本堂)周辺に、塔及び講堂が建っていた事が判明と発表。
1996年よりの発掘調査で3箇所の基壇が発見されていた。また金堂跡には仏像3体安置の石の段(須弥壇)が残存と云う。
金堂東の正方形基壇(一辺8.1m)は塔跡と断定。
南西基壇(20×16m)は講堂、金堂西側には11.4×8.4mの建物があった可能性が高いと判断。
2005/08/05「山陰中央新報」記事より:
本年度発掘調査で、金堂東側の建物の基礎(基壇)近くから、塔の先端部にあたる相輪(※)が出土。基壇上の建物が塔だったことが判明した。・・・
古代寺院の大半は金堂の南側にあたる斜め前方に2基の塔を置くが、同遺跡は少なくとも平安時代初めには特殊な伽藍配置で、同課は「水田を壊さないよう急斜面に建てたためではないか」とする。
※石製相輪の部材と考えられる石材が出土と云う。
2005/08/26追加:
◆出雲来美廃寺遺構図:(原図;島根県報道発表資料)
|
 |
来美廃寺伽藍配置図:
(原図;島根県報道発表資料) 出雲来美廃寺遺構図:左図拡大図
第1基壇:堂機能は不明。
第2基壇:金堂跡
第3基壇:塔跡の蓋然性が高い
第4基壇:講堂跡の蓋然性が高い
講堂を金堂西南(東面)に配置する伽藍には
「伊賀夏見廃寺」が知られる。
参考:伊賀夏見廃寺 |
★出雲来美廃寺東塔跡(第3基壇)
◆2006年発掘調査の概要
2011/07/24追加:
◇「山代郷北新造院跡 史跡出雲国山代郷遺跡群北新造院跡(来美廃寺)発掘調査報告書」島根県教育委員会、2007/03 より
◎第3基壇実測図
2005年度調査では、基壇西辺をかけた東西方向のトレンチ(17-3Tr)を設定し、2条の溝を確認する。基壇上面は旧陸軍による援体壕による削平が及んでいるものと思われ、礎石抜き取り痕と思われるわずかな落ち込みを検出したが、礎石位置を確定
するに至らず。
2006年度には、想定される基壇中心を架けたT字形の18-3Trを設定し、基壇北側に残されている旧陸軍の援体壕下方の調査を中心に実施する。
その結果、
小型の風鐸4点を始め、石製相輪と考えられる石材が出土し、第3基壇上の建物が塔であったことが判明する。
今般の発掘の結果、基壇規模は一辺約10.5m、建物の一辺6.3mと想定され、第1基壇のものと同規模の塔が建っていたとの判断に至る。
(塔一辺は6.2m、2.1mの等間)
2006/08/23撮影画像(「X」氏ご提供画像)
◇第3基壇トレンチ図:第3基壇は塔跡と断定される。
2006/07/31島根県報道発表資料より
◇第3基壇風鐸出土時の様子
2005/08/26追加:(島根県報道発表資料)
◆2005年度発掘の概要
◆第3基壇(推定塔跡):3T<第3トレンチ>:2005/08/23「X」氏撮影画像
第3基壇西側に設定(1.5×8m)。トレンチ西隅で、南北方向に伸びる2条の溝を検出。
一辺8.1mの正方形の基壇が想定されるが、基壇外装が未確認のため、更に100 〜60cm程度広がる可能性があると云う。
|
 |
○来美廃寺塔跡1(第3基壇):左図拡大図
:西側<第2基壇>より撮影
塔基壇及び3Tの状態 |
|
 |
○来美廃寺塔跡2 :左図拡大図
:西側<第2基壇>より撮影
写真手前2つの広い凹部分の手前が雨落溝、
奥の水の溜まっている部分が基壇据部とされる。
その少しトレンチ奥に見えるの穴が側柱穴と思われる。
さらに奥の2つが四天柱穴と思われる。
※基壇はかなり後世に攪拌されていて、柱穴も一部欠けているようである。○来美廃寺塔跡3:東側より撮影
写真中央部分のほぼ発掘された抜取穴は四天柱礎石抜取穴と思われる。 |
|
 |
○来美廃寺塔跡4:南より撮影
○来美廃寺塔跡5:左図拡大図
:西より撮影
いずれも四天柱礎抜取穴と思われる。
○来美廃寺塔跡6:
:推定心礎部。
この部分には心礎を推測させる凝灰岩の破片が散らばっていたと云う。★柱間は等間隔で1.8mを測る。
なお基壇には版築も認められると云う。 |
-------------------------------------------------------------------------------------------------
◆来美廃寺東塔跡(第3基壇)出土遺物(石造相輪、銅製風鐸など)
2011/07/24追加:
「山代郷北新造院跡 史跡出雲国山代郷遺跡群北新造院跡(来美廃寺)発掘調査報告書」島根県教育委員会、2007/03 より
○第3基段相輪関係遺物出土状況・・・2011/10/28追加
図のように多くの相輪関係遺物が出土する。石造相隣関係遺物の豊富さは大和山村廃寺に匹敵すると思われる。
◇第3基壇出上の石製品
◎東塔相輪推定復原図:第3基段の出土遺物の検討結果、左図のような相輪の復原案を得る。
※通常の塔相輪は、九輪の上部に水煙を載せるが、水煙を欠き、天蓋を乗せる例は室生寺五重塔に唯一現存する。
室生寺五重塔では天蓋の下に宝瓶が置かれる。
北新造院跡に置いても天蓋を架ける必要がある何かが存在したと考えられる。
出土遺物にはそれを思わせるものがないが、室生寺五重塔と同様に金属製の宝瓶が用いられたのではないだろうか。
※石製露盤は比較的多くの遺物が現存する。
しかし、九輪などの本邸を石材で造る例は、僅かに大和山村廃寺(ドドコロ廃寺)、紀伊三栖廃寺、播磨多田廃寺、播磨中西廃寺の
4例が知られるだけである。
→石製露盤一覧表を参照
九輪に石材を使用した大和山村廃寺(ドドコロ廃寺)、紀伊三栖廃寺、播磨中西廃寺では、いずれも6軸で、
外輪の高さが低く径が大きい扁平な九輪になっている。
北新造院跡第3基壇の石製相輪は4軸で、径が小さく分厚い外輪であり、上記3遺跡との技術的な関係は全く想定できない。
しかしながら、紀伊三栖廃寺出土品に天蓋とされているものが含まれている点は注意を要する。
|
 |
第3基壇からは塔相輪の部材と考えられる石製品が比較的まとまって出土する。
○第3基壇出土相輪・天蓋:上の写真は相輪関係主要出土遺物、下2枚は石製天蓋
19-1は凝灰岩製の傘状石製品である。周縁の2片が生きており、平面八角形に復元できる。
角の下面には風鐸を提げたと考えられる孔が対で開けられており、鉄芯が残る。
出土状況では、19-1直下から風鐸(21-4)が出土しており、21-4は、19-1に下がっていた可能性が高い。
風鐸設置痕が残っていることから、平頭ではなく天蓋と判断される。
相輪上層に天蓋が乗っているとすると、水煙が存在しない相輪であろうか。
凝灰岩製であることから、九輪・擦管と考えられる部材に較べ、非常に軽い。
○第3基壇出土石製九輪1
○第3基壇出土石製九輪2:左図拡大図
19-2、19-3、20-1〜 3(20-の写真は不掲載)は、砂岩製の九輪外輪である。
19-2は外輪の約1/4に軸が接合できたものである。下面には風鐸を設置する孔が見える。孔は、下面では長径約2cmの楕円形であるが、内部は2本に分かれており、断面V字形になる。風鐸は、V字形の孔に鉄芯を差し込んで提げており、鉄心は互いに外側へ突っ張らせることによって保持される。
19-3は、軸2本と内輪の破片が接合したものである。19-3によって、第3基壇相輪の九輪が4軸であることが確定する。 |
○第3基壇出土石製擦管
20-4〜
7は擦管と考えられる管状の石材で、上下端部まで接合できたものである。20-4・5は、高さがほぼ等しい。
20-6・7については同じ様な高さになるものが無く、他の管状の石材についても、同程度の高さが予想されることから、九輪間に使用される擦管と判断した。
端部は、片面が水平に切られているが、他面は内面側に窪むような形状の加工が見られる。雨仕舞いのための工夫と考え、窪みがある面を下端と判断した。高さはいずれも約26cmで、厚さは約6cmである。内面側の調整が粗い。
20-6は、高さ約15cmしかない小型の管状を呈す。内径は下端側でも16cm程で、上層に来ると判断される。
外面には、半円形の窪みが見られるが、意図的なものか石材自体の自然な剥離なのかは判断できない。
下端面の内側には他の擦管と同様に雨仕舞いのための面取りが見られる。
20-6は、1/4程度が残存しており、軸が付く可能性は少なく、九輪内輪ではない。九輪よりもさらに上部の宝珠等の部材を支える擦管と判断される。第3基壇の塔相輪には天蓋(19-1)が乗ると考えられることから、天蓋を支えるか、その下にあったかもしれない宝瓶を支える擦管と考えられる。
20-7(写真不掲載)は、高さ約34cmの擦管である。この1点のみが極端に高いことから、九輪最下層と伏鉢を繋ぐ擦管と思われる。下端側の内面には面取りが見られる。
○第3基壇出土石製伏鉢
20-8は伏鉢と考えられるものである。全形の1/6程度と思われるが、調整が粗く、水平を確定できないので、復元径等は、目安の数字となる。半球形を呈し、擦に触れる部分の内径は約22cmで、20-7に近い。擦を支える部分は上面から約20cmで、その下方は軽くする工夫なのか、一段広く掘り込まれている。上面側には擦管の当たりと思われる平坦面があり、その外径は約33cmに復元される。
○第3基壇出土相輪実測図1 ○第3基壇出土相輪実測図2
◇第3基段出土相輪関係銅製品
○第3基壇出土風鐸 ○2001年出土風鐸 ○第3基壇出土風鐸実測図
風鐸は、2001年に第3基壇東側の斜面(第5区)から1点が出上しており、計5点となる。
21-1は鐸身横断面が菱形を呈し、頂部に別造りした鉄製の鉦を差し込んだものである。鐸身高9.5cmと小型である。
21-2は、鉦まで一体で鋳造された風鐸で、鐸身の横断面は楕円形を呈し、以前に出土していた風鐸の形状に近い。錘に鉄輪の一部が遺存している他、内面に鉄製の風招吊り金具が錆着する。
21-3は総高13.1cmを測る大型品である。鐸身の横断面は菱形で、高さに対して裾の開きが狭く、細長い印象を受ける。
21-4は、鐸身が9cmに満たない小型のものである。鐸身横断面が楕円形を呈し、2001年度出土品や21-2に近い。
21-4は、凝灰岩製天蓋(19_1)直下から出土(第12図)しており、19-1に下がっていたと判断される。
○第3基壇出土蓮弁状銅製品
柳葉形の下端を水平に切った形状で、上端を尖らせた蓬弁形を呈し、反りを持たせる。基部に別材をリベット止めした形跡がある。
これは小型の仏像の光背などの可能性もあるが、出土状況から塔相輪に関わる可能性が高いと思われ、相輪請花の一部と想像される。
同型状のもの4〜 8枚を金属製の輪にリベット止めし、請花としたものではないだろうか。
◇出土風鐸
○出雲来美廃寺風鐸
平成13年(2001年)の発掘調査:
◎風鐸が出土:出土は金堂の東に位置する東基壇。
風鐸は青銅製、本体吊手金具と風招及び風招吊手金具は鉄製。身の上方には方形の孔がある、内面に風招を吊す環が取り付け、風招の一部も残す。全高19.6cm、身上端幅4.4cm、同下端幅約7cm、吊手の高さ1.6cmを測る。
出土瓦、土器から、奈良期のものと推定。
2011/07/24追加:
◇「山代郷北新造院跡 史跡出雲国山代郷遺跡群北新造院跡(来美廃寺)発掘調査報告書」島根県教育委員会、2007/03 より
○2001年出土風鐸・・・・上に掲載済
★出雲来美廃寺推定西塔跡(第1基壇)
◆2006年発掘調査の概要
2011/07/24追加:
◇「山代郷北新造院跡 史跡出雲国山代郷遺跡群北新造院跡(来美廃寺)発掘調査報告書」島根県教育委員会、2007/03 より
◎第1基壇実測図
第1基壇については2006年度、基壇中央から北側に18-1Trを、基壇南東隅に18-2Trを設定し掘削する。
18-1Trでは北側柱列の礎石4基と礎石抜き取り痕を確認する。また、18-2Trでは基壇南東隅と考えられる落ち込みを検出する。
このことによつて、第1基壇は1辺9.9mのほぼ正方形を呈すこと、3×3間の総柱であることが判明する。
第1基壇上の建物は、心礎が発見できなかったが、金堂真横に位置する正方形の建物で、塔の可能性がある。
塔とすると、初層の一辺は6.3m(中央間2.4m、両脇間1.95m)に復元できる。
基壇周縁からは多量の瓦が出土し、8世紀後半から9世紀初頭に造られたと推定される。
◇出土遺物(石製伏鉢・相輪・天蓋、銅製風鐸・蓮弁)
○第1基壇からは、前述した第3基壇出土石製相輪片と同じ石材を使用した、やや小振りの石製品3点(18-2〜 4)が出土する。
第1基壇出土石製品 同 出土石製品実測図
いずれも九輪の外輪と考えられる部材で、18-3には軸部の痕跡がわずかに見られる。
いずれも小片のため、外径は復元できないが、第3基壇出土のものに比べ、高さが低く、器壁が薄いものであった。
※相輪部材・塔附属部材の出土で第1基壇も塔遺構であるとほぼ断定できるものと思われる。
下記の2006/09/03の見解は訂正を要する。)
2006/09/03追加:
◇第1基壇(推定西塔)発掘
◎2006/08/23撮影画像(「X」氏ご提供画像)
|
 |
来美廃寺推定西塔北側礎石1:左図拡大図
建物北側4個の礎石列を東から撮影、
右手奥の石列は乱石積基壇の痕跡か?
なお、多量の瓦の出土を見ると云う。
来美廃寺推定西塔北側礎石2
建物北側礎石を西から撮影、
中央上方、右よりの発掘縦面手前に「礎石抜取り痕」(根石)がある。
上掲の礎石1写真も同様であるが、この写真の発掘面右端が、塔であれば心礎位置と
思われるが、写真で見る限り、何の痕跡も認められないのは如何なる理由であろうか。
(但し、この写真に今写っている発掘面が後世の削平上面なのかどうかは不明。)
※「X」氏情報:現地担当者の見解、
「基壇は、塔とは完全には断定できない。この基壇の構築時期は金堂や東塔の建立より1世紀ほど後の8世紀末から9世紀初くらいと推定される。」
(構築時期についての根拠は不明ではある。) |
※現段階では、心礎は未発掘であり、かつ心礎の痕跡も未確認であり、この基壇付近からは風鐸や相輪などの塔関係の部品の出土も見ず、さらに基壇南の過半以上の流失・崩壊が甚だしいため、この建物跡が塔であるとは断定できないと思われる。
※塔でないとするならば、この建物の構築が金堂・塔の建立時期から遅れるということも勘案すれば、堂の性格は不明であるが、
堂平面から一間四面堂であった可能性が高いとも思われる。
今発掘以前の見解では南北4間であるとも云われ、もし南北4間であるならば、孫庇付きの一間四面堂であったとも思われる。
2006/08/05追加:
◇島根県報道発表資料「0118 史跡山代郷北新造院跡(来美廃寺)発掘調査現地説明会開催について」より転載
2006年調査では
第1基壇の中心部、第2基壇(金堂)、第3基壇が調査される。
第1基壇からは北側脇柱礎石および数個の礎石抜取り穴を検出する。
第1基壇トレンチ図:2006/07/31島根県報道発表資料より

上記のトレンチ図によれば、北側に3個の礎石と1個の抜取り穴、塔跡とするとほぼ四天柱礎と思われる位置から、
礎石抜取り穴が検出される。心礎と思われる位置には何も記載がないので、痕跡も認められなかったと思われる。
図より、塔(だとすると)一辺は約7.5m(芯芯間)を測る。基壇一辺は約10mか。
※以前のトレンチも合せ、総合的に判断すると、方3間の建物であることはほぼ間違いないと思われるが、
塔跡であるとの断定は、心礎に関する情報が不明、塔関連と思われる遺物の有無が不明などで、困難と思われる。
※金堂の東西一直線上に東西塔を配する伽藍は、常陸新治廃寺の例がある
。
しかし、両廃寺間に何等かの関連があったと云うことではなく、偶然の一致であろう。
◇2006/07/31:島根県報道発表資料より
2005/08/26追加
★2005年度発掘の概要
◇第1基壇:
2005/08/23「X」氏撮影画像:
○2005年度発掘第1基壇トレンチ:「X」氏ご提供:2005/03/23「X」氏撮影画像
但し、どのトレンチかは未確認。
★第1基壇及び第3基壇以外のその他のトレンチ:2005年度発掘概要
2005/08/26追加:(島根県報道発表資料)
○第1基壇南側:第1トレンチ<1T>:(2×6m)
多量の瓦が出土し、第1基壇整地土を確認。第1基壇の整地土は、前回報告範囲よりも南側に2m以上広がっていることが確認され、南北11.4m、東西8.4mの規模と考えられる。但し基壇外装が未確認のため、更に100
〜60cm程度広がる可能性がある。基壇上面は流出している可能性が高く、前回調査時に礎石抜取痕がほとんど確認できず。
現状では、第1基壇上の建物は平面正方形ではなく、南北棟の建物と考えられる。
○第4基壇東側:第4トレンチ<4>:(2.5×3m、三角形)
第4基壇に伴う整地層の下層を検出。礎石設置痕や溝を検出することはできなかったが、整地層が東に延びていることが確認でき、第4基壇上の建物も東西3間を越えると思われる。
○灯籠設置痕跡南側斜面:2・5・6・7トレンチ<2T・5T・6T・7T:(4×4m、2×4m2箇所、2×3m)
調査目的は参道(石段等)の検出であったが、上面を水平に置かれた石を検出するも、石段と確認することはできない。下層の地山面は、現状の斜面よりも更に急傾斜となっており、下方の5・6トレンチでは、流れてきた土砂が厚く堆積している。
※上記文面から前回調査で「灯籠設置痕跡」が発見されたと思われる。
○第2・3基壇中間線の南側:第8トレンチ<8T>:(1×3m)
階段の可能性を探るも、その痕跡は認められず。
○005年度の発掘成果
1.金堂東側の基壇(第3基壇)は、基壇の位置・形・規模などから、塔である可能性が高い。
2.金堂西側の建物(第1基壇)は、堂名は不明、東面する南北に長い建物であろうと推測される。
3.金堂南西の建物(第4基壇)は、大型堂宇の可能性高く、建物規模などから講堂と推測される。
2011/10/28追加:
○「山代郷北新造院跡 史跡出雲国山代郷遺跡群北新造院跡(来美廃寺)発掘調査報告書」島根県教育委員会、2007/03 より
来美廃寺第2基壇実測図 須彌壇復元模式図
○「風土記の丘地内遺跡発掘調査報告書 13 来美廃寺 『山代郷新造院』推定地発掘調査報告書」島根県教育庁埋蔵文化財調査センター、2002 より
来美廃寺第2基壇須彌壇平面図
★出雲来美廃寺現況
2008/10/30追加:2008/10/17「X」氏撮影画像:
史跡公園化がほぼ完了。
東西塔跡の位置に基壇の土盛りがなされ、金堂跡は基壇・礎石が復原されたと思われる。
出雲来美廃寺復原:手前から西塔跡土壇・金堂復原基壇・その奥が東塔跡土壇
2005/09/25撮影画像・・・埋め戻し後の状況である。
2006年以前作成:2011/10/28更新:ホームページ、日本の塔婆
|