| ◆陸奥郡山台廃寺:移転現存 福島県二本松市:
「幻の塔を求めて西東」:心礎は一重円孔式、130×100cm、23×15cmの孔を穿つ、二本松駅前遠藤酒店の庭にある、奈良後期。
※陸奥郡山台廃寺心礎は二本松駅前遠藤酒店にあるとされるも、実見の申出は拒絶するようであり、見学は困難な模様である。
○2014/04/15追加:「郡山台 T (二本松市文化財調査報告書 第1集)」二本松市教育委員会、1977 より
※心礎は遠藤商邸内の見学ができないため、文献に掲載された写真の転載で代用せざるを得ない。
|
 |
発掘調査により、瓦葺礎石建物遺構を検出する。遺構は、心−心で一辺9.0mのほぼ正方形の溝を掘り、そのことによって内部を基壇状に造り出した
ものである。基壇は一辺7.0mのほぼ正方形である。
明治10年ここから掘り出されたという礎石は二本松市本町1-80の遠藤紀一郎氏邸庭園にある。
礎石は川原石(花崗岩)表面を平に加工したものであり、その大きさは130×100cmで、径23×15cmの孔を穿つものである。
しかも、この礎石を掘り出した穴が基壇中央部で確認されたため、この遺構は塔跡と断定して良いであろう。
◇陸奥郡山台廃寺心礎写真1:左図拡大図
◇郡山台廃寺心礎実測図 |
なお、基壇の一辺は7mであり、少し小型であるが、次のような類例もあり、この程度の小型塔も有り得るということであろう。
1.下野芳賀大内廃寺の基壇は方約7mであり、また心礎の大きさもほぼ同じような大きさである。
2.陸奥北上極楽寺(国見山廃寺)の塔も初重平面が一辺約4.6mであり、心礎の大きさも95×78cm程度である。
また、塔跡から次の瓦が出土する。この遺構の年代の決め手となる瓦として単弁九弁蓮華文軒丸瓦、重弧文軒平瓦、単文軒平瓦などである。重弧文軒平瓦は県内に多くの出土を見て、これらの多くは平安前期の軒丸瓦に伴うようである。一方、単弁九弁蓮華文軒丸瓦は9弁という極めて特殊なものであり、しかも極めて粗雑な造りである。九弁とはほとんど類例がないが、文様の崩れや粗雑な造りから類推して、この軒丸瓦に奈良期ではなく平安期に下るものと考えても矛盾はないと思われる。
○「二本松市歴史資料館」常設展示:2014/04/08撮影:
郡山台廃寺跡は埋め戻され、地上には何も残らないという。
陸奥郡山台廃寺塔跡
陸奥郡山台廃寺文瓦 陸奥郡山台廃寺丸瓦 陸奥郡山台廃寺平瓦
○2014/04/15追加:「二本松市史」1981年 より
陸奥郡山台廃寺心礎写真2:「郡山台
T」に掲載写真と同じものである。 郡山台廃寺心礎実測図2
陸奥郡山台廃寺塔跡遠望:中央木立が塔跡
陸奥郡山台廃寺塔跡溝;北西角より北東角
陸奥郡山台廃寺塔跡2:南西より 陸奥郡山台廃寺塔跡3;北西より 郡山台廃寺心礎抜取穴:明治10年抜取
○2014/04/08撮影:現況:
上述のように、遠藤酒店では見学の配慮の申し込みをするも、現在も、心礎の見学を謝絶する。そしてその拒絶の理由は黙して語らない。
二本松遠藤酒店
「郡山台
T」では「明治10年郡山台廃寺から掘り出される」とあるが、なぜ遠藤酒店に運び込まれたかは記載がなく、分からない。従って、どのような理由で現地から持ち出したのか、またその代価は無償なのか有償なのかも分からないが、
個人の邸内に持ち込まれた心礎の類例から判断して、個人的な趣味として庭園の装飾として搬入したと見てよいであろう。
しかし、考えても見よ、この心礎も文化財なのである。公共財である文化財を一個人の所有に帰し、それを独占し、世間一般の見学を拒絶して良いものなのであろうか。
もし、拒絶する理由が、個人邸にあって見学を受け入れれば個人生活の安寧が乱されるあるいは防犯上不都合が生ずるなどという理由要するに個人的な理由であるならば、公的な第三者機関例えば近くの
「二本松市歴史資料館」に寄託するとか行政側に有償での買取を交渉するなどして是非一般公開ができる形を考えて欲しいと希望するものである。
それが「二本松の大人」の態度というものであろう。
(世間に公開しない理由は分からないが、しかし如何なる理由にしろ、公共の財産である文化財を私物化していることは厳然たる事実である。
小生(s_minaga)は二本松市民ではないので二本松の恥とは云わないが、もし二本松市民であったなら二本松の恥と云うかも知れない。)
※因みに、二本松市歴史資料館の前面道路の東西には「二本松城大手門跡の石垣」が残存する。
さらに館内には二本松城の「久保丁門跡出土の門礎石」が移設展示されている。(大きさ70×70cm)
また同じく館内には、現在は東京永田町の衆院議員会館が建っているが、ここは江戸期には二本松藩丹羽家江戸上屋敷跡であり、ここから出土した「二本松藩丹羽家江戸上屋敷の石垣石材の一部」も移設展示されている。これは衆議院から一部の譲渡を受け移設公開される運びとなるという。
以上のように条件は整っているのであり、世の常識は文化財は公共財として公開する流れなのである。遠く東京からも縁のある石材が寄贈されているのである。遠藤酒店も常識ある二本松市民としての振る舞いをと望むものである。
※なお蛇足ながら、遠藤酒店の西側は二本松御両宮の参道であり、背後(北側)の丘には御両宮が鎮座する。両宮とは右に八幡大菩薩、左に熊野権現を祀る為の謂いである。中世畠山氏の時代に八幡宮と熊野権現が合わせ祀られたという。近世初頭丹羽氏の二本松入部に伴い、現在地に遷座する。
現在の社殿は文化3年(1806)、随身門は文化4年の再建という。
この社も、例に漏れず、明治5年に二本松神社などと改号し、馬鹿につける薬はないのであるが、大正3年に県社に列するなどと誇らしげに今だに語る。
※以下の写真は郡山台廃寺と直接の関係はない。
二本松八幡・熊野宮随身門:切妻造、三間一戸の単層八脚門
二本松八幡・熊野宮拝殿:入母屋、銅瓦棒葺、正面千鳥破風、桁行6間、正面唐破風向拝付設
二本松八幡・熊野宮本殿:八幡宮は一間社流造、銅板葺、熊野権現は春日造、銅板葺と思われる。
○2014/04/16追加:
未確認情報ではあるが、「心礎は二本松駅附近の遠藤酒店ではなく、郡山台の本邸にある」との情報がある。
心礎の存在場所について、これは思っても見なかった情報であるが、現下のところ確認が取れない。
さらに、遠藤氏本邸が郡山台にあるのかどうかも確認をとることができない状態ではある。
Webで検索できる「遠藤酒店は市内杉田にて世々農を業とし又酒造業を営んでいた本家の酒売りさばき店として明治7年奥州街道二本松神社隣に分家出店する。」との記事から、本家が杉田(杉田町)にあり、その杉田は二本松駅前と比べて郡山台からはるかに近距離であり、心礎は二本松駅前に運ばれたのではなく杉田あるいは郡山台に運ばれそこに所在する可能性はあるであろう。
同じくWebで検索できる「当店初代(遠藤雄三郎)は町制施行前に二本松駅誘引に深く係わり戸長(町制の前)より明治20年9月19日に駅から奥州街道まで(今の駅前通り)の道路開修を委嘱される。駅は同年12月15日に開業を迎える。」との記事から、遠藤家は上流階級に属し、十分に店舗と本邸とを構える資力を有するものと思われる。郡山台に本邸があっても不思議な話ではない。
但し、上述のように「郡山台 T (二本松市文化財調査報告書 第1集)」二本松市教育委員会、1977 では「明治10年ここから掘り出されたという礎石は二本松市本町1-80(これは二本松駅前の地番)の遠藤紀一郎氏邸庭園にある。
」とあり、二本松駅前の店舗にあるような記載ではある。 ※「幻の塔を求めて西東」でも「二本松駅前遠藤酒店の庭にある」とするが、これは「「郡山台
T」からの引用であろうと思われる。
◆上野上植木廃寺a:亡失
○心礎は相川氏宅に運び込まれていたが、後に売却という。
(売却先不明)
上植木廃寺心礎:「佛教考古学論攷」に写真の掲載がある。
▲心礎は円柱造出二重円孔式、大きさは121×・・cmで、径72×15cmの円柱座造出と径21×14cmの孔を穿つ。▲
1982年からの発掘調査で寺域は南北238m、東西108mの範囲とされ、廻廊中の中心に金堂、その南西に塔、北に講堂が配置された伽藍と判明。塔基壇は一辺
8.5m。
かっては舎利孔(円形造出に舎利孔があったとされる)を持つ心礎と円形柱座を持つ礎石16個が存在したとされる。礎石は全て抜き取られ、現在は西側200mにある広場に6個と、伊勢崎市内相川考古館中庭に4個(瓦塔も)と散在していると云う。白鳳
−平安期の寺跡とされる。
○「日本古代地方寺院の成立」:□「上植木廃寺伽藍配置図」
○「飛鳥時代寺院址の研究」石田茂作:土壇と思われるもの4箇所を残す。
第1土壇:微かな隆起を残すのみであるが、心礎はここから発見され、実測図に示す心礎位置は発掘運搬に関係した人物の立会いで検証したものという。さらに心礎を中心にして各面4個ずつの礎石が方形に配され、一辺は2間半か3間くらいであったと云う。礎石は浅間神社その他に移されたが、心礎は現地に残される。
しかしその後、耕作の邪魔ということで相川氏宅に移される。
心礎は径約4尺の円形で、花崗岩製。径2尺4分3寸×5分の円形柱座を造出、中央に径7分2寸×4寸7分の円孔を穿つ。発掘当時は地上に5・6寸露出していたと云う。
なお塔礎石は浅間神社に11個(幢竿入場に7、八幡社床下に1、雷電宮拝殿南に1、殖蓮大々講碑台に2)、矢島幸氏宅に1個、川端喜作氏宅に1個、堺村中沢氏宅に1個、伊勢崎相川氏宅に1個、東京二条公爵邸に2個残存する。(合計16個で全礎石残存・礎石はいずれも1尺4分×1寸の円形柱座の造出をもち、同型同寸という。また二条公爵邸のものは公爵の所望で寄進したもので、返礼の錫の神酒入は神社に現存とも云う)塔址であることは明瞭であろう。
第2土壇:塔土壇東方にある。金堂跡であろう。第3土壇:塔址の北東に隣接するが、瓦の散布が少なく、昔の伽藍とは無関係であろう。第4土壇:66尺×50尺の長方形の土壇で講堂跡と推定される。
□上野上植木廃寺実測図 上植木廃寺心礎 上植木廃寺心礎実測図
:写真・実測図は上掲載「佛教考古学論攷」のものと同一と思われる。
○2004/8/4「X」氏ご提供:現在、現地には塔礎石7個が並べられていると云う。
□上野上植木廃寺塔礎石1 上野上植木廃寺塔礎石2
○2008/09/07追加:「群馬県史 通史編2」1991
明治36年附近の開墾で礎石が発見され、柴田常恵が踏査、この時点では西方の塔跡には心礎が存在していた。続いて石田茂作は瓦などから飛鳥もしくは白鳳の創建と考察
する。
○2011/09/28及び10/02追加:2011/09/18撮影
寺院跡の現状は開墾された畑地で往時を偲ぶものは地上には何もない。1基の説明板があるだけである。
上野上植木廃寺跡1 上野上植木廃寺跡2
現地に残る礎石は西方数町にある「■建長の石仏」(建長3年<1251>銘を持つ)の側面に集められ、置かれる。
7個残存するが、何れも柱座を造り出し、この中央に枘孔を穿つ形式のものである。
上掲の石田茂作論文では現地でも礎石は散在とあるが、これ等の幾つかが集められたのであろうか。
なお、これ等が塔礎石かどうかは確証があるわけではない。
上植木廃寺礎石11 上植木廃寺礎石12 上植木廃寺礎石13
現地の上樹神社にも礎石が残るとあるが、上樹神社には多くの石が散乱するも、礎石と判断できる石は探した限りは見当たらない。
付近には上樹神社の他に神社は見当たらず、上述の石田茂作論文に云う浅間社などは不明である。
上樹神社は廃寺の南方上植木に存在する。
地元民に上樹神社の旧社名を訊くも、要領を得ず。江戸末期か明治期の造営と思われる彫刻を多用した社殿の前の狛犬の台石に「右三巴」の紋があり、これから推測すれば、元々は雷電社であったと思われる。
http://www.sunfield.ne.jp/~s-hirata/jinja/jinja.htmlでは「もとは雷電神社と呼ば
るるも、明治41年に無格の神社9社を合祀した際に上樹神社と改称する。主祭神:大雷命」とある。
「飛鳥時代寺院址の研究」で云う雷電宮とはこの社と思われる。
上植木雷電社社殿(現上樹神社)
もう一箇所、廃寺の礎石は伊勢崎市中の「相川考古館」の庭に4個置かれる。
在相川上植木廃寺礎石14 在相川上植木廃寺礎石15
在相川上植木廃寺礎石16 在相川上植木廃寺礎石17
大きさは差渡し凡そ70〜80cmで、径50cmの柱座を造り出す。
ただし、現地に置かれる礎石には全て枘孔があるが、こちらの礎石には柱座だけで枘孔はなく、現地の礎石と似たような大きさではあるが、現地に残る礎石とは別形式のものである。
◆常陸伽藍御堂廃寺(ガラ御堂廃寺):亡失
心礎を含む全礎石(自然石)が完存していたが、宅地化により、全礎石が散逸したという。
○「常陸国分寺伽藍配置想定図」:「新修国分寺の研究」所収
:伽藍御堂の位置が分かる。
2006/04/27追加:
◎「国分寺の研究 上・下巻」 角田文衛/編(1938)所収:「常陸国分寺」廣瀬榮一、角田文次 より:
通称伽藍御堂(ガラミドウ)で塔跡と推定される遺跡が発掘された。(廣瀬発見と云う。)常陸国分寺の東約200mの地点で、現在は住宅地となる。(住宅化の過程で、全て礎石が失われたと云う。)
○「常陸国分寺附近地形図」:1/50000
◎伽藍御堂塔跡全景
|
 |
「・・・3個を欠くのみで他はよく存続してゐて稍々丘上の土壇上にある。
礎石は総て上部を平らにせし外、加工せられないもので、甚だ其の配置が不規則で簡単な測量では到底その大要すら纏め得ず、礎石配置の実測図を示し得ないのを遺憾とする。
方3間一辺21尺6寸(天平尺の1尺を9寸8分として22尺)を算し、中間は他より5寸乃至1尺程狭いようである。(・・断言は控えるが、天平尺にて中間7尺両脇7尺5分かと想像する。)檫礎は全然自然石のままで何等手を加えられていない。
※一辺21尺6寸は6・55m
此れはもとより如何なる堂塔の礎石なるかを明らかにしがたいが、檫礎らしきものの中央に存することと、方3間なる点より塔址と考へるのは差し支えあるまい。
」
○伽藍御堂塔跡全景:左図拡大図
○伽藍御堂塔址の檫礎:(物差は1m) |
◎「柴田常恵写真資料」、廣瀬栄一氏ヨリ、昭和6年 より
2009/09/14追加:
◎「国分寺址之研究」堀井三友、堀井三友遺著刊行委員会編、昭和31年
<堀井三友は昭和17年歿> より
|
 |
○伽羅御堂所在塔婆礎石:左図拡大図 (前略)
国分寺の東6,70間の所に伽藍御堂と云う塔址があった、
ここには14個の自然石を使用した礎石が配列され、方3間一辺22尺許の塔址と考えられる。
付近から奈良末期・平安初期の国分寺瓦に似た古瓦が発見される。
これは何れの寺院の塔なのかは判然としないが、ここにも奈良期の寺院が存したのであろう。 |
◇2007/09/26撮影:
○推定伽藍御堂廃寺跡1:
写真左上の黄色の枠付近が伽藍御堂塔跡と思われる、写真右はガラミドウ墓地。
○推定伽藍御堂廃寺跡2:
ガラミドウ墓地、写真を斜めに走る道路の先(上)は下っている。
○常陸国分寺・伽藍御堂廃寺航空写真;俯瞰図
参考: 常陸国分寺・伽藍御堂塔跡◆越後本長者原廃寺a:破壊
新潟県上越市今池にある。越後国分寺の建立場所は今も不明とされるが、当廃寺を越後国分寺に比定する有力な見解がある。
しかもこの仮説は極めて妥当性があるものと思われる。しかし現状、当廃寺の遺構はほぼ壊滅し、現在の知見以上の新事実が出ることは期待できず、それ故に創建越後国分寺であると断定できないというのが正直なところであろう。
なお本長者原廃寺には出枘式の心礎が古来よりあったが、明治8年頃村民協議の上、切石となし、心礎は破壊される。
→越後本長者原廃寺 ◆相模国分寺a:亡失 詳細は相模国分寺跡参照
|
 |
「相模国分寺志」中山毎吉、矢後駒吉著 より
相模国分寺七重塔礎石図:左図拡大図
各間は等間で悉く1丈1尺7寸(天平尺1丈2尺)、一辺は3丈5尺1寸(天平尺3丈6尺)を測る。
礎石:今は僅かに10個を留めるに過ぎぬ。明治の初年までは17個の礎耘石を始め、間石まで欠け目なく存在していた。
心礎は径8尺許あった。上面は平坦に削刻し中央に径3尺、高さ1尺5寸許の圓壔が繰出され、その圓壔の上には径56寸深若干の穴が穿たれてあった。
相模国分寺塔跡写真 |
なお、相模国分寺跡南東すぐの国分寺薬師院(上の台廃寺)にも塔があった可能性が高い。明治維新後も塔の心礎と思われる礎石が残存と思われる。
さらに、相模国分寺跡南すぐの旧八幡社に「八幡塔」とも呼ぶべき、塔があった可能性が高い。
◆相模国分寺薬師院(上の台廃寺):亡失 詳細は相模国分寺跡参照
○大正13年「相模国分寺志」中山毎吉氏ほか より 薬師院:
|
 |
相模薬師院礎石配列図:(左図拡大図)
丘陵上に存在する薬師院旧跡中の、東辺に偏って残れる礎石の配列図である。
瓦石に覆われ、未だ詳細に丈量を遂げたものではないが、約3丈6尺(天平尺3丈7尺)四面をなす。この礎石はその配列から考えて経蔵(輪転蔵)に擬すべきものと思われる。之れと並んで西辺に偏って瓦片堆積の一区画がある。礎石は悉く散逸して推考に苦しむが、おそらくは鐘楼跡ではあろうか。経蔵・鐘楼相対立するは伽藍の常軌である。
※中央間14.6強:約4,5m、脇間10.7強:約3.3m、3丈6尺1寸:約10.5m
※礎石配列から云えば、塔跡の可能性が高いが、礎石の大きさ特に心礎の形状・大きさの論述が無く、不明とするしかない。また、亡失の経緯なども不明。 |
○「海老名市史1 資料編 原始 古代」海老名市、平成10年 より
上の台廃寺跡推定地 上の台廃寺礎石
◆相模海老名村八幡塔跡:亡失 詳細は相模国分寺跡参照
○大正13年「相模国分寺志」中山毎吉 より 八幡宮:
|
 |
八幡宮旧跡礎石配列図:
(左図拡大図)
現今小学校校庭に在るものは、本来の位置から南へ32間(58m)、西へ1間(1.8m)許移されたもので、この礎石も数個変更されたものである。方2丈、あるいは云う、八幡宮の宝塔の残礎であると。
八幡宮は往時国分寺の鎮守として勧請せられし処で、この礎石の南に近年まで村社として鎮座ありしが、明治42年に他社と合併の為、字大松原に移って、今彌生神社と称えられている。
相模国分八幡宮跡
※以上により、海老名国分八幡宮には宝塔(八幡塔)があり、明治維新後も宝塔の礎石が残ると知れる。
但し、当八幡宮の経歴はほぼ不明、八幡宮宝塔とする根拠・典拠なども全く不明。
※但し、礎石は60mほど動かされていて、忠実に礎石配置が復元されたのかどうかは不明。 |
○「柴田常恵写真資料」 より
相模 海老名小学校校庭八幡塔礎
相模海老名村 八幡塔大正12・10・15
○海老名小学校南辺の一画に八幡塔礎石5個が残存すると云う。
◆伊豆国分寺a:亡失
□伊豆国分寺心礎:「佛教考古学論攷」
東京小松宮別邸に移動。現在は亡失。(「日本の木造塔跡」)
|
 |
伊豆国分寺心礎:左図拡大図 ▲心礎は一重円孔式、
大きさは270×?で、9×12cmの孔を穿つ。▲ |
現地には礎石8個が残されている。形式的にはいずれの礎石も枘孔を穿ち、心礎と同一形式と思われる。
しかし心礎は、上記の大きさ(270×)を信用すれば、現地の礎石よりひと回り大きいと思われ、形式は同一でも心礎に相応しいものであったと思われる。
伊豆国分寺
2009/05/06追加:
「遠江国分寺の礎石」柴田常恵(「歴史地理 第30巻第2号」昭和3年 所収)
では「・・・・伊豆国分寺の礎石が三島町に小松宮の御別邸造営の折、町民より献納する所と為り、後ち宮家にては東京浅草なる橋場の御邸内に移されし由を拝聞する・・・・」とある。
◆駿河尾花廃寺:移転
2019年心礎は塔跡とは別の場所で廃棄された状態で発掘される。その心礎は静岡市埋蔵文化財センターに搬入され、屋内で展示される。 →駿河尾羽廃寺
◆遠江国分寺東塔心礎(推定):亡失か 2009/01/05追加:
遠江国分寺東塔心礎と憶測される礎石の存在が文献(「歴史地理 第30巻第2号」柴田常恵の報告)にある。
しかし、既に戦前に他に譲渡され、所在不明と云う。
但し、東塔の遺構が発見されている訳ではなく、また東塔の存在自体が証明される可能性も極めて低いと思われ、この意味では柴田常恵の報告の「心礎」については、形状は心礎と思われるも、心礎や否やは検討を要すると思われる。
遠江国分寺の【憶測遠江国分寺東塔心礎】の項を参照
◆越中小窪廃寺b:移転現存 ○小窪(おくぼ)廃寺心礎は現在小久米(おくめ)神社の境内にあり「いぼ石」と呼ばれ、民間信仰の対象でもあったと云う。
心礎は砂岩製で、ほぼ径1.6mの円形で高さ63cm、中央に径80cm、深さ16cmの穴を彫る。
この心礎はかつて小窪の「塔のすま」にあり、元禄2年(1689)久目永福寺(小久米より南方1.5km)へ城端別院から嫁入りがあった時、手水鉢として搬出したが、重さ故、途中の小久米(
小窪より南2km強)で放棄したと伝える。その後明治末に路傍から現在地小久米神社へ搬入したと云う。
○「幻の塔を求めて西東」:一重円孔式、大きさ160×150×60cm、径82×16cmの円孔を穿つ。
○2008/07/16追加:
「北陸の古代寺院」北陸古瓦研究会、桂書房、1987 より
昭和40年小窪廃寺付近の圃場整備で大量の布目瓦が出土するも、工事の都合で、トラック数台分を低地に埋めたと云う。心礎は「塔のスマ」と云われる所から出土し、今は約2km南の小久米神社にある。心礎
の大きさは167×165cm、厚さ約53cm。
小窪廃寺心礎実測図
廃寺の近くには小窪廃寺に瓦を供給した小窪瓦窯跡がある。
○2009/11/25追加:
小窪廃寺心礎実測値:大きさは180×170cm高さ60cm、径86cm深さ15/16cmの柱穴を穿つ。
小久米神社は国家神道色が強い近代の捏造神社に近いと思われるが、丘陵の中腹にあり、重機の無い時代に心礎を運び上げたのは大変な労力であったと思われる。
越中小久目神社参道:この参道のさらに1段上に社殿・心礎がある。
この地に嫁して30数年と云うご夫人の以下の言を得る。「心礎は小窪から移したという、移したのは何時の時代かは知らない、昔は心礎の水でイボが取れるといわれていたのを覚えている。」
越中小窪廃寺心礎1 越中小窪廃寺心礎2 越中小窪廃寺心礎3 越中小窪廃寺心礎4
越中小窪廃寺心礎5 越中小窪廃寺心礎6 越中小窪廃寺心礎7
◆越中増山城跡心礎
:移転か 「幻の塔を求めて西東」では「和田川沿いの千光寺から遷す」と云う。(その典拠・根拠は不明。)
但し、芹谷山千光寺から増山城に搬入した可能性は多いにあると思われる。
→越中増山城跡心礎
◆越中宮後キンケン塚心礎
:宮後キンケン塚(塔土壇か?)から池尻真光寺に移すも現在所在が不明
宮後キンケン塚塔心礎石:キンケン塚は東砺波郡井口村(現南砺市)宮後にあった、キンケン塚から出土した心礎は池尻真光寺所在と云うも、
現在真光寺での所在が不明。
◆「幻の塔を求めて西東」:一重円孔式、大きさ96×80cm、径21×11cmの円孔を穿つ。元位置から移転、奈良後期。
◆2009/11/25追加:
|
◇宮後キンケン塚心礎実測図
 |
◇「井口村史 下巻」井口村史編纂委員会、平成4年
(南砺市教育委員会様ご提供) より
池尻真光寺庭園には宮後キンケン塚から出土と伝える礎石がある。
大きさは100×80×高さ50cmで、中央に径21×深さ11cmの枘孔がある。石質は凝灰岩もしくは安山岩と見られる。
キンケン塚からは他に枘孔を持つ礎石が3個出土し、宮後八幡社の礎石に転用されたと云う。また境内にあるキンケン石も塚から出たと伝える。
また左記以外にも、多くの大きな石が出たとも云う。最後に出た大きな石は井波瑞泉寺に運ぼうとしたが、重くて断念し真光寺に納めると云う。
以上の状況から真光寺の礎石は心礎であろうと考えられ、であるならば、キンケン塚は層塔・多宝塔の基壇であった可能性が高い。
塚の位置は宮後山下正雄氏邸車庫付近と伝える。また宮後吉田喜三氏邸には塚付近から出土した宝篋印塔笠や五輪塔残欠があったが、今は真光寺に移すと云う。
宮後キンケン塚心礎実測図:左図拡大図 |
◇2009/11/12聞取:
宮後キンケン塚(在池尻真光寺)心礎は現在亡失と思われる。真光寺にあるとされる心礎は現在真光寺に認めることが出来ない。
真光寺住職は先年他界、現在住職は子息(?)が継ぐ。
前住職の夫人の言はおよそ以下の通り。
「夫人はここに嫁いで50年になる。現在、この寺にはそのようなもの(心礎)は見当たらない。前住職からはそのようなもの(心礎)があるとは聞いていた。(しかし、
その心礎を前住の夫人がはっきりと見たわけではない様子。)(先住職が生きていてば、はっきするであろうが、今となってはそれも叶わぬ。)
現在心礎がないとすると、およそ以下のように思われる。以前寺の南側の町道が拡幅されたときに、少し庭が削られたが、そのときに心礎が工事関係者によって処分(不要物として持ち去られた?)されたのだろうか。あるいは、残っているとすれば、石燈籠(高さ6尺を越える大きさの・業者から購入したから古いものではない)があるが、その台石になっている石が心礎であるかも知れない。
真光寺は宮後から移ってきた。檀家は(従って)宮後に多い。(真光寺は宮後の東約500mの池尻にある。)」
◇許可を得て、真光寺庭園を探索するも、心礎に該当する礎石は発見出来ず。
石燈籠とその台石を拝見すると、石燈籠台石はほぼ台形で、大きさは140×120cm、高さはほぼ地中にあり全く不明である。「村史」で云う心礎の大きさより一回り大きく、
かつ石質も花崗岩と思われ、心礎である可能性は低いであろう。また石燈籠据付の時期は不明であるが、心礎のような遺物に無神経に据付をするような「蛮行」も考え難く、この点からも可能性は低いであろう。
越中池尻真光寺:真宗大谷派、東から撮影、正面奥が本堂、本堂裏が庭園。元は真言宗と云う。
池尻真光寺石燈籠 池尻真光寺台石1 池尻真光寺台石2
◇宮後八幡社・宮後キンケン塚
宮後八幡社全景:社頭に三段重石碑がある。奥に写る民家が山下正雄氏邸(正雄氏は故人)
宮後山下正雄氏邸:山下氏邸裏付近、この付近にキンケン塚(塔土壇?)があったのであろうか?
宮後八幡社社殿:豪雪地帯特有の覆いが堂宇を取り巻く。内部の子細を観察は困難。
宮後八幡社転用礎石1 宮後八幡社転用礎石2 宮後八幡社転用礎石3
:何れも写真は不鮮明ながら、これ等はキンケン塚からの転用礎石であろう。
宮後八幡社三段重石碑1 同宮後八幡社三段重石碑2
:この石碑は無銘であり、何の石碑か分からない。聞き取りでも何の石碑か知らないと云う。
あるいは「井口村史」で云うキンケン石とも推測できるが、そうであるならば、キンケン塚出土の礎石類であろう。三段重石碑中段の石の大きさは90×70cm高さ35cm
を測る。
宮後八幡社五輪塔残欠:八幡社境内にある。「井口村史」の記載のように、ここには何等かの寺院があったのであろうか?
。◆能登柳田シャコデ廃寺:移転現存
(1)能登柳田シャデコ廃寺概要
2008/07/16追加:
○「石川県史蹟名勝調査報告 第2輯」石川県編、大正13年 より
柳田の礎石:礎石は通俗「しやかで」と称する畑地にある。
その畑地に近年まで相対せる2個の礎石存在せしが1個は既に破砕して石垣に使用し、現今1個を原位置に残せり。
石材は花崗岩、大きさは長径5尺3寸×高1尺2寸(地上)、中央に径2尺2寸3分深さ3寸5分の円孔を刻せり。伝説に依ればこの地に五重塔存在し、地名「しやかで」は釈迦堂の転訛ならんと云う。
※この報告では「しゃかで(釈迦堂の転訛)」とするも、現在の遺跡名は「シャコデ」とする。
2008/07/16追加:
○「北陸の古代寺院」北陸古瓦研究会、桂書房、1987 より
昭和46年及び昭和60・61年、かって心礎を掘り出した時点及び周囲の発掘調査が実施され、心礎掘り出し地点では塔跡が発掘された。
平安後期には塔跡に別の建物が建立されると云う。しかしその他の伽藍は不明と云う。
なお当廃寺は「文徳実録」855年に云う「気多神宮寺」の可能性が高いと云う説もある。
柳田シャコデ廃寺塔跡実測図
柳田シャコデ廃寺心礎抜取穴:(財)石川県埋蔵文化財センターDB より
○2016/11/13追加:
◇羽咋市Webサイト>柳田シャコデ廃寺跡現地説明会開催及び終了の告知(2015年) には塔跡及び心礎抜取穴の写真掲載があるので転載する。
昭和46年に発掘調査が行われるも、2015年に再調査/再発掘が行われ、塔跡が再確認されたようである。
柳田シャコデ廃寺塔跡 シャコデ廃寺心礎抜取穴
◇「寺家遺跡発掘調査報告書 総括編」羽咋市教育委員会、2010 と推定される論文 より
柳田シャコデ廃寺跡(7世紀末〜9世紀前半)
シャコデ台地の中央部に位置する古代白鳳寺院跡である。シャコデは「釈迦堂」の訛りであり、地元では寺院の存在が伝承される。
発掘調査では、古代寺院の存在を示す平瓦・丸瓦・瓦塔・鉄鉢形須恵器などが出土する。伽藍配置の全容は不明であるが、塔跡の方形基壇遺構とその心柱の礎石の抜き取り穴が確認されて
る。この心礎石は、柳田町の善正寺に手水石として移転され、現存する。心礎の形式は7世紀末から遅くとも8世紀初頭には創建されたことを示す。
シャコデ廃寺の成立背景には、地方への仏教の浸透を受け、在地の首長級氏族の発願により氏寺として造営されたと考えられている。ただし、寺家遺跡では、8世紀前半には国家の関与を受けた祭祀専業的集落が成立していることから、シャコデ廃寺においても同様の影響を受け、創建時から官寺的性格を帯びていたとの指摘も
る。
出土する瓦資料は、眉丈山丘陵北部の柴垣松川瓦窯で生産されたもので、供給関係が確認されている。柳田シャコデ遺跡と寺家遺跡においても、この瓦窯の瓦資料が出土して
いる。8世紀後半に成立したとみられる気多神宮寺の可能性が指摘されており、9世紀初頭になると、塔基
壇跡の東方に、方形柱穴による2×7間の掘立柱建物が整備されることから、この時期には官寺的性格が顕著となると思われる。
シャコデ廃寺心礎実測図 柳田シャコデ廃寺跡トレンチ図
旧地形と小字名:写真中央やや右に「シャコデ(釈迦堂)」の小字がある、戦後しばらく経過しても現地は畑地であったようである。
◇「柳田シャコデ廃寺跡 詳細分布調査報告書」羽咋市教育委員会、1987 より
塔跡は方3間であり、塔の一辺4.5m、柱間1.5mの等間である。基壇は盛土基壇で、基壇外装は不明、基壇一辺は8.1m×8.0mを測る。
心礎の大きさは1.4m×1.5m×60cmであり、上面に径67cm深さ12cmの円孔を穿つ。
シャコデ廃寺塔跡実測図 シャコデ廃寺遺跡図 調査区全図
◇羽咋市遺跡地図(平成26年4月版)
本遺跡地図<中央部>にシャコデ廃寺が明示される。
平成26年羽咋市遺跡地図:善正寺はシャコ
デ廃寺の東方にある。
シャコデ廃寺の位置は上記で確認できるが、では塔跡は廃寺跡のどのあたりにあるのであろうか。
まず、上記「遺跡地図」に上記の「シャコデ廃寺遺跡図」を重ねて見れば良い。小高い台地上が廃寺跡であるが、そこにはトレンチのような描画があり、廃寺跡の中央南辺に塔跡と思われる描画があることに気付く。
トレンチのような描画とは上記の「調査区全図」あるいは「柳田シャコデ廃寺跡トレンチ図」であると判断でき、そこには「塔跡」が明示されている。まさに、塔跡はシャコデ廃寺がある台地の中央南辺附近にあることが分かる。
○2016/11/27シャデコ廃寺塔跡を撮影
シャデコ廃寺の位置:位置については上記の推察のように「シャコデ廃寺遺跡図」の□に小さい○が描かれる地点がシャデコ廃寺塔跡である。
この意味で上記の推察は正しかったものと判断できる。
写真撮影時は塔跡周囲に調査区を拡大し発掘調査を継続中であったという。(下掲の「○羽咋市教育委員会の見解」参照)
しかし、残念ながら、当日は日曜日の雨天であり、遺構はビニールシートに覆われ、溝はほぼ水没状態であった。
そのため水浸しのビニールシートの下の状況は窺い知ることは出来なかったが、心礎抜取穴などは「埋め戻され現地保存」が図られているものと思われる。
能登柳田シャデコ廃寺塔跡1 能登柳田シャデコ廃寺塔跡2 能登柳田シャデコ廃寺塔跡3 能登柳田シャデコ廃寺塔跡4
後日、羽咋市教育委員会に塔跡の現状及び保存について問い合わせると、次の見解(大意)を得る。
○羽咋市教育委員会の見解:
1)シャコデ廃寺塔跡は平成26年度(2014)に発掘調査を実施、「塔心礎穴」を検証し、その深さや規模を再確認する。
現在は、埋め戻しを行い、現地保存をしている。
2)平成27年及び28年度は、この塔心礎穴の周囲に調査区を拡大し発掘調査を実施している。(平成28年度は12月2日に終了。)
来年度(29年度)も10月から11月に実施の予定。
なお、羽咋市歴史民俗資料館ではシャコデ廃寺出土品(一部)の展示を行っている。
3)遺跡の今後の予定:遺跡は埋め戻して現地保存の予定である。(現在では復元などの遺跡整備計画はない。)
(2)能登柳田シャデコ廃寺心礎
2003/09/03撮影:
心礎は柳田善正寺(浄土真宗)境内にあり、石段を上がった右手にある。
(シャデコ廃寺から東におよそ900mほどの所に善正寺はある。)
柳田シャコデ廃寺から搬出され、昭和4年「手水鉢」として奉納されたことが刻銘される。
心礎の大きさは155cm×150cm×60cm(見える高さ)で、中央に径87cm、深さ11cmの孔を穿つ。
なお心礎には以下の刻銘(追刻)がある。
「昭和4年3月寺家の平戸善雄・世話方林庄作・在所一同」。昭和4年地元民有志が心礎を善正寺に寄進したことが分かる。
また円孔の一部は割れているが、セメントで補修されている。
柳田シャコデ廃寺心礎1 柳田シャコデ廃寺心礎2 柳田シャコデ廃寺心礎3 柳田シャコデ廃寺心礎4
柳田シャコデ廃寺心礎追刻
○「幻の塔を求めて西東」:大きさ150×145×55、径67×12cmの円孔、白鳳。
2016/11/27撮影:
柳田シャデコ廃寺心礎21 柳田シャデコ廃寺心礎22 柳田シャデコ廃寺心礎23 柳田シャデコ廃寺心礎24
柳田シャデコ廃寺心礎25 柳田シャデコ廃寺心礎26 柳田シャデコ廃寺心礎27 柳田シャデコ廃寺心礎追刻2
◆越前室谷廃寺b:移転現存 今立郡今立町
○「幻の塔を求めて西東」(天理図書館蔵「手書き資料」):一重円孔式、148×115×85cm、径13×13cm、奈良後期。
○実測値:大きさは160×112×82cm、径14×深さ13cmの円孔を持つ。
○「福井県史」:当廃寺は特異なあり方を示す。狭い谷間に位置し、通常みられる古代寺院の立地条件とは様相を異にする。廃寺の存続は出土遺物から奈良時代後期〜平安初期とされる.。心礎を残すのみで伽藍は全く不明。
○現在心礎は福井県立歴史博物館が所蔵、5年程前から常設展示から外れ、現在は博物館収蔵庫に眠る。
(見学には事前に見学希望の申し出が必要、心礎は収蔵庫の暗闇に眠る。)
現地遺跡(旧今立町室谷)は圃場整備が行われ、廃寺の遺構は残らないと云う。
越前室谷廃寺心礎1 越前室谷廃寺心礎2 越前室谷廃寺心礎3 越前室谷廃寺心礎4 越前室谷廃寺心礎5
◆越前野々宮廃寺(小丸城本丸跡心礎)
:移転現存:心礎かどうか疑問 越前野々宮廃寺心礎の内の1個が付近の小丸城本丸跡石垣に転用とされるが、そもそも心礎であると云う確証がない。
更に心礎であるとしても、野々宮廃寺心礎である確証は無い。 ◆飛騨上町塔の腰廃寺c:移転現存 吉城郡古川町
上町塔の腰
(セリ田・鶴巣)
心礎は円光寺(古川町殿町)本堂前庭にある。飛騨古川円光寺:正面本堂の左側にある。
元々は古川町上町塔の腰(セリ田・鶴巣、飛騨市古川町上町久中)にあり、明治初年円光寺に移されると云う。上町は円光寺の東南約1.5kmの地点にある。
古くからこの心礎の存在は知られていた(「飛州志」など)と云う。また現地では白鳳・奈良期の瓦を出土と云う。
しかし伽藍配置は全く不明。
沢廃寺と同范の瓦を出土と云い、同一氏族の建立と考えられる。
現地は未見であるが、『上町廃寺跡:寺院・旧地図名称「塔の腰廃寺」。<現況>水田』との情報があり、現状は水田で地上には何も留めないと思われる。
○「幻の塔を求めて西東」:一重円孔式、212×148×65cm、径77.8×19cm、円光寺(殿町)庫裏前にある、白鳳。
飛騨塔の腰塔心礎1 飛騨塔の腰廃寺心礎:「X」氏ご提供画像
○2009/09/14追加:「国分寺址之研究」堀井三友、堀井三友遺著刊行委員会編、昭和31年 より
心礎は7尺×5尺の大きさで、中央に径2尺5寸7分深さ6寸3分の円孔がある。
○2009/11/21追加:小冊子「古川町文化財案内」飛騨市 より
上町塔の腰廃寺心礎:中央の穴底に水抜きがあるが、後世の作と思われる。
※水抜きについては、迂闊にも実見・確認せず。
飛騨上町廃寺心礎1 飛騨上町廃寺心礎2 飛騨上町廃寺心礎3 飛騨上町廃寺心礎4
飛騨上町廃寺心礎5 飛騨上町廃寺心礎6 飛騨上町廃寺心礎7
◆飛騨沢廃寺c:移転現存 沢廃寺:吉城郡古川町上気多字沢
心礎は円光寺(古川町殿町)奥庭にあり、蹲として転用される。
飛騨古川円光寺:正面本堂の奥にある。
澤廃寺は飛騨市古川町上気多沢と云う。現地は未見であるが、『遺構概要:寺院。:<保存状況>グランド造成により滅失』とあり、地上には何も留めないものと思われる。グランドとは県立吉城高校グランドであろう。塔の腰廃寺と同范の瓦を出土
といい、塔の腰廃寺北東2kmの位置にあり、同一氏族の建立と考えられると云う。
○「幻の塔を求めて西東」:一重円孔式、87×83×55cm、径28.5×10cm、現在は円光寺奥庭にある、白鳳。
飛騨沢廃寺心礎1 飛騨沢廃寺心礎2:「X」氏ご提供画像
飛騨沢廃寺心礎11 飛騨沢廃寺心礎12 飛騨沢廃寺心礎13 飛騨沢廃寺心礎14 飛騨沢廃寺心礎15
◆美濃大宝寺:移転現存 岐阜市歴史博物館入口前庭に展示。
実測:現状は径64/63cm、枘孔は径18cm深さ10cm。
緑泥岩?と思われる。心礎は柱座あるいは柱穴の周囲に沿って周辺を割られ、現状のような径の円形になっているものと推測される。表面は平らに削平され、中央には舎利孔もしくは枘孔を穿つ。元々の形状は柱座造出なのか円形柱座を彫っていたのかは不明。
設置の説明板:「岐阜市文化センター建設時に出土と云う。岐阜市金町の西方が寺跡と思われる。」
※岐阜市文化センター建設の設計コンペは1981年、竣工は1984年とされるので、出土は近年のことと思われる。出土状態などの情報は不詳。
なお今の岐阜市立徹明小学校付近は、明治末まで大宝寺野と云われた農村であったといわれるが、おそらく「大宝寺」と云う寺院の由来地であったと推測される。但しこの大宝寺が古代寺院の名称を伝えるのかどうか、
また附近に現存する大宝禅寺との関係についてなどは不詳。
美濃大宝寺心礎1
美濃大宝寺心礎2
美濃大宝寺心礎3
美濃大宝寺心礎4
美濃大宝寺心礎5
◆美濃宮処寺a(みやこ寺):おそらく破壊
不破郡垂井町字笹原・御所野
以下の文献等により、大正年中までは寺跡・塔心礎と推定される礎石が存在するも、近代の開発で、ほぼ破壊・消失したものと思われる。
○「幻の塔を求めて西東」 より ▲心礎は地下式(50cm)、133×103×54.5cm。「岐阜県史蹟名勝天然紀念物調査報告書 第9輯」昭和15年。▲
※しかし上記の昭和15年「報告書」に示された大きさは破砕された残部の寸法と思われる。(下の引用を参照)
○「岐阜県史蹟名勝天然紀念物調査報告書 第9輯」 より
「宮處寺:小川榮一報告
・・現在北には東海道鉄道線路東西に通じ、東には垂井町より南宮神社に達する街道あり。 この街道添ひ人家の西には南北に長く土地階段をなして東方に低し。 其の長さは1町余りありて・・(最大段差は1尺5寸を測る)・・この階段をなす線は寺址の外郭の東辺に当る・・この階段線の南端より(北)25間の地点より西6間の所には礎石1個埋没・・発掘するに、長4尺4寸(133cm)幅3尺(90cm)高1尺8寸(55cm)ある大理石の礎石なり。 ・・この礎石は塔の礎石と伝え、元は地上に1尺5寸(45cm)程露出せしも、大正元年より・・の耕地整理の際、割り取り、その残りを埋めたるものにして、元は畳2畳(1.8×1.8m)程ある大石なりしといふ。 この礎石の東南4間(7.3m)を距つる所にも方4尺(1.2m)程ある礎石地下1尺5寸の所に埋まるも、大正の末年に掘り出し割り取れり。 又大理石礎石の西方には石積ありたりと云ふ。・・・大理石礎石より西北40間(73m)を距つる所に、石を寄せたる塚形あり・・・金堂に当るものなるべし。・・後略・・・」
○宮処寺址調査図:図中央が土壇様の高まり:
この土壇は現在宮処寺土壇跡(推定)の中央二階建住居の宅地と思われ
る。
○宮処寺址礎石
※畳2畳ほどの大石とは、その形状は不明であるが、その大きさから塔心礎の可能性が大きいであろう。
であるならば、この「心礎」は大正年中の耕地整理でほぼ破砕されたものと思われる。
○「続日本記」 に以下の記事があるという。
天平12年(740)12月2日、 聖武天皇、不破頓宮より宮処寺及び 曳常泉へ行幸
11月26日 到美濃国当伎郡。続紀
11月27日 賜伊勢国高年百姓百歳已下、七十歳已上者大税、各有差。続紀
12月 1日 到不破郡不破頓宮。続紀
12月 2日 幸宮処寺及曳常泉。続紀
(中略)
12月 6日 従不破発、至坂田郡横川頓宿。是日、右大臣橘宿禰諸兄、在前而発、経略山背国相楽郡恭仁郷。以擬遷都故也。
○「岐阜県史 通史編 原始」岐阜県編集、1972 より
「この廃寺は上記の宮処寺跡に比定される。・・古くから礎石・瓦類が多数出土し、一般には良く知られた廃寺である。 ・・・寺跡は東海道線と新幹線の間にあり、この両線のほぼ中間・寺跡の北側を掠めて国道21号線が建設された。 ・・この地帯は元来畑地で・・・近年は宅地として開発が著しく、遺跡の破壊の速度は著しいものがる。 本遺跡も・・・発掘調査されたことがなく、寺域・伽藍配置は不明である。・・・地形的特徴から考察すると、南宮社に至る南北の道の西約100mに地点で南北約110mに渡り段差があり、この段差は北側にも認められる。・・さらに西側に南北方向の農道があり、先の東側段差の中間やや西寄りに東西約8m南北約10mの土壇が存在する。」
●現状:2006/10/08時点
戦後(近年)の開発・宅地化で、寺跡を偲ぶことは困難になりつつある。
金堂と推定された土壇も住居の建築で破壊、礎石の断片も不明で、礎石の探索は困難。 地形的な特徴も住宅化で辿ることは相当困難。
・「岐阜県史蹟名勝天然紀念物調査報告書 第9輯」でいう「塔」「礎石」の出土地を含むと思われる畑で耕作中の土地の人の談は以下のとおり。
「年齢は78歳、この一帯は【みやこ寺】という古代寺院があったといわれる。 子供の頃あの辺り<畑の西北30〜40m>に土壇様のものがあった記憶がある。 40年前?ぐらい<昭和40年前半?>前にその場所に「家」が建ち、今では何の痕跡もない。 この附近の畑では多くの瓦が出る。今も畑の土に混ざり出てくることがある。」
○宮処寺土壇跡(推定):写真中央の二階建住宅宅地に土壇があった。(上記聞き取り)
「瓦があるかも知れない」ということで、しばらく畑の中で瓦の破片を一緒に探すも、残念ながら、この日は見つけることは叶わず。
2011/12/24撮影:
宮処寺推定土壇跡2:上記の写真と同じ場所である。
●以下のように「南宮山神宮寺」との関連が説かれることもあるが、真偽は不明。
開基は行基で、天平11年(739)本尊の阿弥陀如来像を刻み、象背山宮処寺と名付け、本州阿弥陀如来四十八願の霊刹第34番札所と定めた。その後延暦(782〜806)年中、勅命により伝教大師が南宮神社と両部習合し、寺号を大神宮寺と改めたという。
2012/01/01追加:
美濃南宮社の三重塔・東照宮などの神宮寺主要伽藍があった同じ檀に一基の石碑が建つ。※本碑の建立の主体・年紀は未確認
聖武天皇宮処寺境内碑1:天皇行幸元本殿・宮処寺・曳常泉・旧境内
聖武天皇宮処寺境内碑2:聖武天皇大仏建立勅願所
2026/02/04追加: ●2026年にGoogleMapで確認すると、次のような状況である。
なお、宮処寺跡から南東約1.5kmほどの所に宮代廃寺がある。 ○GoogleMap より 宮処寺跡関係個所:GoogleMapに加筆
宮処寺跡案内板:垂井町教委設置、緯度経度:35.368112572481806, 136.52545563901558
宮処寺跡土檀跡:2006年聞取による、緯度経度:35.36759256222175, 136.52576677521873
中央の二階建住居の建つ場所が土檀のあった場用という。
2006年撮影写真と同一の場所であるが、現在は太陽金属工業の社屋が南側に建ち、同一アングルの写真は不可である。
◆伊勢天花寺廃寺
:移転現存あるいは亡失 2020/02/06加筆・修正 <津市渋見町鈴木邸門前にあるという>
○「幻の塔を求めて西東」西堀栄三、平成元年(1989) より
▲二重円孔式。心礎の大きさは120×120×62cm(復原寸法)で、径39.5×15cmと径18×8.5cmの円孔を持つ。白鳳。 半裁された心礎が津市渋見町にある。▲
○「日本の木造塔跡」岩井隆次、昭和57年(1982): p.60の「27孔の底に舎利孔のあるもの/伝天華寺」およびp.63の(3)の注釈 より
津市渋見町鈴木氏邸門前にあり、天華寺のものと伝えられるが、(上記の心礎は、)石田氏論文にある天華寺心礎より小さいので、別の寺院の心礎かも知れない。
※石田氏論文とは
「塔の中心礎石の研究」と思われる。 ○
「塔の中心礎石の研究」石田茂作<「佛教考古學論攷 四 佛塔編」石田茂作、思文閣出版、昭和52年 所収) ※「塔の中心礎石の研究」p.205にあり。
※「塔の中心礎石の研究」は「考古學雑誌」二二−二・三、昭和7年2・3月に掲載 では 伊勢天華寺:第四分類(巨石の表面に唯圓形の刳込みを造るもの)に分類され、
法量は長径80寸(242cm)・短径60寸(182cm)、円形刳込径20寸(61cm)深5尺(15cm)、溝無し、白鳳 とある。 ※確かに、「幻の塔を求めて西東」では二重円孔式であり、故にその形式も違い、また「幻の塔を求めて西東」の復元寸法の法量とも大きく違い別の心礎である可能性は高い。
○伊勢天花寺概要
白鳳期寺院。「勢国見聞記」(嘉永4年)では塔・金堂の礎石の存在の記載があり、また大正期まで心礎が露出していたという。
1979-80年の発掘調査により塔(東)、金堂(西)とされる(法起寺式伽藍配置の)版築基壇が確認される。
礎石、六角形せん仏、塑像が出土したという。
寺跡の現状は田畑もしくは山林で何も見るべきものはない。
当寺は孝徳天皇が建立した瑠璃光院と云い、また孝謙天皇の発願した法華寺の一院と伝え、天平15年に天華寺と改号したと云う。永禄年間、織田信長の兵火で焼失。元和3年(1608)現地より北西の丘上に再興され、現在も法統を伝える。
2020/03/11追加:
○「昭和55年度県営圃場整備事業 地域埋蔵文化財発掘調査報告 三重県埋蔵文化財発掘調在報告44」三重県教育委員会、1981 より p.73〜
「W 一志郡嬉野町 天花寺廃寺 調査を着手するにあたっては、 まず地籍図による水田地割の検討と、
これまでの水田の床抜き作業等によって瓦片の多量に出土した地点、 あるいは礎石等の掘り出された場所等の聞き取りを地元天花寺地区においておこなった。
その結果、 319番地にあたる通称「薬師の田」には戦前も大正期において、当時の子供達が登り降りできる大型の石が露出し、それもいつの頃か抜き取られ、
どこかへ持ち運ばれたことも確認することができた。 また、嘉永4年(1851) に編纂された『勢国見聞集』には、「古跡之部」の一項に、
「塔ノ心柱ノ沓石・伽藍ノ柱ノ沓石数十。天花寺村諸堂並塔の跡其儘石居へ有之。此所を本薬師と云」と記されている。
このように少なくとも江戸期には礎石と塔心礎の露出していたことがわかる。
したがってこのような「薬師の田」を塔跡に比定することができるのである・・・」
「検出された寺院関係の遺構には、東は塔、西は金堂と推定される版築の掘り込み地形と、この中央に位閤する南北溝および、これから束に約43mの位漑に並行する南北溝等がある。」
「寺院の建築遺構 1. 塔 (SB1) 東西約15.5m、南北約15mの掘り込み地形として認められたものである。
水田床土直下にあって、基壇面はかなり削平され、礎石はもとよりその根固めもみとめられず、また基壇化粧も全く残っていない。
掘り込み地形は、東西と南北の中央の土層観察の結果、最厚部では1.2mを残す版築が認められた。」 「残存している基壇の南西寄りには、径約
3.9 X 3.3m 、深さ約1mの心礎の抜き取り穴かある。
これにより掘り込み地形の範囲そのものが塔桔壇の規模をホすものではなく、基壇は版築の裾部を削除して築成したものと考えられる。
塔と金堂の位置関係は金堂の南北中央線から東に約25mに塔心礎が位潰する。したかって、塔基壇南面は金堂よりも約 4m北になる。」
「東部の鎌倉期の溝SD3の埋土中には造出しはないが礎石と思われる大型の石材が 2個転落していた。」 2. 金堂 (SB2)
塔の西側にある東西約20m、南北17 .5mの掘り込み地形による基壇跡である。塔跡と同様に基壇上面は削乎され、礎石及び根固めも確認されなかった。」
伊勢天華寺跡塔金堂平面図
2002/10/14撮影:
伊勢天華寺跡1
伊勢天華寺跡2
◆伊賀三田廃寺:おそらく亡失 「飛鳥時代寺院址の研究」:阿山郡三田村三田地:JR関西線伊賀上野駅すぐ北という。
但し現在は工場敷地になり消滅と思われる。
古老の「言」として以下の紹介がある。
「明治中頃までは、推定廃寺跡には方形の芝地があり、そこには天王社と2個の礎石があった。その一つには中央に径2尺、深さ2尺くらいの円穴があった。
」
芝地は消滅していると思われる。(原因不明)明治の地籍図には約12間四方の芝地が表されている。
出土瓦より創建は飛鳥期と推定される。さらに瓦は奈良・平安・鎌倉・室町のものが出土し、寺院はこの頃まで存続したと思われる。
□三田廃寺跡付近地籍図
上記方形芝地とは塔土壇跡であり、径2尺×深さ2尺の円穴を持つ礎石とは心礎の可能性が大変高いと推測される。しかしその後のこの心礎の情報は皆無。
◆近江高宮廃寺:おそらく亡失 ○「滋賀県埋蔵文化財センター」等に以下の情報がある。
高宮廃寺は明治44年と昭和10年に塔心礎や礎石が発見される。(左記以外に情報なし、詳細不詳)
しかし、その正確な位置は現在不明となると云う(遊行塚遺跡とする説が有力)。
※国道八号線、彦根市高宮交差点の北側付近に位置すると想定。
近江高宮廃寺位置図
藤原宮式の複弁八葉軒丸瓦と扁行唐草文軒平瓦が出土。
遊行塚遺跡については以下の記載がある。
遊行塚遺跡:高宮町(彦根市)、散布地、奈良期、高宮廃寺跡?
遊行塚遺跡:高宮町、散布地、奈良期、平地宅地、白鳳期以降の瓦出土
※何れにしろ、この地点に何らかの遺跡(廃寺)があったことは確かと思われる。
2013/10/26追加:
○「滋賀県史蹟名勝天然紀念物概要」滋賀県史蹟名勝天然紀念物調査会、1936 より
(全文を掲載)
高宮廃寺
犬上郡高倉町字遊行塚田圃の中である。もとこの地は田圃より一間程高くなってゐたが、明治四十四年に塔心礎と覺しき柱受凹みのある巨石及び他の一個の礎石を掘り出したとゐひ、その後は残部が高さ二米。周囲十八尺の塚状をなし、瓦片を潜めつゝ形を保ってゐた。昭和十年道路建設のため土除りをしたとき、礎石四個東西及び南北に並列してゐるのを発見したが、これは明治四十四年のニ個と共に塔の礎石配置の西半部を形成することが判明した。出土の瓦は丸瓦では(1)複辯八葉蓮華紋に珠文帯、鋸歯文帯をめぐらしたもの、(2)単辯十二葉十三蓮子。平瓦では、変った曲線模様を中心に上に珠小文帯、下に鋸歯文帯を有する。いずれも奈良時代であろう。建治三年遊行上人が巡錫回向したから、遊行塚と称すといふ口碑がある。寺名、創建年代等拠るべきものがない。 ◆近江蒲生安養寺廃寺;亡失 「古代近江の遺跡」:大正頃まで礎石を伴う基壇や巨大な心礎が存在していた。現状は水田と化し、面影を留めない。近江蒲生郡誌によると元亀2年織田信長に焼かれたとする。出土瓦は白鳳期
の瓦が主体をなすという。
近江八幡市安養寺町。
□安養寺の部屋の安養寺廃寺のページに以下の掲載が
ある。・・・部分転載
白鳳期から中世末期までの寺院。「輿地志略」は安養寺村の項で「相伝、往古安養浄土寺と号する大伽藍地にて、当村悉く其境内なりといふ。今石仏石塔等散在す其の遺跡なり」と記す。明治時代までは伽藍遺講がある程度まで推測できたもようで「蒲生郡志」には「寺跡方十六町あり、其内に大金塔、六字塔、灌項堂、経堂、観音堂、梵鐘堂、等の跡を存し、残礎数ふ可し。又塔の心柱の巨石は其の長さ一丈、幅六尺余あり。中央に柱心挿入の穴を穿つ。穴の径三尺五寸あり。(中略)布目瓦の破片所々に磊落ちたり」とみえる。地名に荘巌坊・奥坊・瓜坊などが残る。安養寺町地先にある石造五重塔(鎌倉・重文)や荘巌寺蔵木造釈迦如来立像(鎌倉・重文)木造聖観音像(平安・重文)木造空也上人立像(鎌倉・重文)も当寺の遺品と伝えられている。
以上によると、心礎の大きさは約3×1.8m、径約105cmの円穴を持つ相当な大型心礎であったと思われる。
※その後の心礎の消息は知られず、心礎は亡失と思われる。
2007/08/15追加:
「近江の古代寺院」小笠原 好彦/〔ほか〕、近江の古代寺院刊行会、1989<図版篇を含む>より
以上の「蒲生郡志」(大正11年刊)の引用がある。現状遺跡は耕地整理・圃場整備・新幹線工事などで、正確な位置は不明と云う。
◆京都玄琢土橋永昌堂邸
:参考情報として掲載 2011/05/16追加:
○土橋邸には「播磨殿原廃寺心礎」があると云う。またこの心礎は売却とも云う。(売却先の情報はなし。)
※2011/06/06追加:播磨殿原廃寺心礎は売却されず
土橋邸に現存する可能性が非常に高いと思われる。
※2011/06/19追加:「売却」情報の出所は失念、ほぼ間違いなく殿原廃寺心礎は土橋邸に現存する。
○「日本の木造塔跡」の末尾に「附表:古代主要木造塔跡一覧」があり、その注)10に「・・・岡山県または広島県出土と伝うる京都市左京区玄琢土橋邸にある礎石は出所不明なので除外した」とある。
おそらくこの礎石は「播磨殿原廃寺心礎」と推定されるも、別の礎石のことを述べた可能性はある。
○土橋邸は土橋永昌堂と称し、古美術商あるいは茶道具商などを営むと思われる。玄琢には「お土居(玄琢)」がかなりの長さで残存するが、
その「お土居」の北側に沿った通りに面し、通りの北側に土橋邸はある。
通りから邸の門に至るには若干の距離の通路があるが、その通路に多くの石が無造作に置かれる。その中に礎石と思われる石2個を見ることが出来る。
1個は大型礎石で心礎である可能性があると思われる。残りの1個は柱座や円孔があるも、小型礎石であり、心礎の形状に見えるも、心礎である可能性は低いと思われる。
◇土橋邸大型礎石1 土橋邸大型礎石2 土橋邸大型礎石3 土橋邸大型礎石4
大きな柱座を造り出し、中央に円孔を穿つ。
採寸は未済であるがかなりの大型の礎石である。円孔も採寸は未済、形状も未確認。
◇土橋邸小型礎石1 土橋邸小型礎石2
小型礎石であり、柱座を造り出し、中央に円孔がある。採寸及び円孔の形状確認は未済。
→何れも、次項を参照。
なお、京都善田昌雲堂(備中赤茂廃寺<英賀廃寺>心礎あり)は土橋永昌堂から独立と云う。
●2011/06/06追加:2011/06/04撮影:2011/06/19修正:
◇土橋邸には多くの礎石が置かれている。確認できるものだけで、30個に近い個数(うち1個は推定殿原廃寺心礎、3個は門外)を数える。
土橋邸は昭和9年(7年?)完成と云う。
現当主は4代目と云う。土橋嘉兵衛(初代?)、土橋嘉平治(2代目?)より受け継ぐ。鷹峯に別邸を構え、その跡地は現在浄土宗遣迎院が建つという、また土橋氏は鷹峯光悦寺の茶室を寄進する。
◇前述の門外大型礎石:
実測値(概要)は170×120×見える高さ40cm(周囲の一部は割られていると推定される)、径120cmの柱座(一部欠落)を造り出し、径34深さ17cmの碗状の円孔を穿つ。
ただしこの碗状の円孔の彫痕は明らかに新しくかつ乱暴であり、近年の穿孔と推定される。さらに、その形状は碗状を呈する。
つまり、一見心礎のように見えるこの礎石は心礎ではなく、門内に多くある円形柱座と円形出枘を造り出した伽藍石の一つ
であり、どのような意図があったのかは不明であるが、柱座の上にある出枘を削り取り、碗状の円穴を穿孔したものと判断すべきであろう。
土橋邸邸外大型礎石5:礎石材質は邸内の礎石と同一の花崗岩であろう。
土橋邸邸外大型礎石6:一部分2重の柱座に見える角度があるが、これは柱座の一部欠損のためであろう。
◇上記の邸外小型礎石:
実測値(概要)は差し渡し80cmほどで、径70cmの柱座を造り出し、径24深さ14cmの円孔を穿つ。
門内に多くの円形柱座を持つ礎石や柱座の中央に出枘を持つ形式の礎石があり、この礎石も門内の礎石と同じ形式であったが近年に円孔が穿孔されたものであろう
と思われる。
◇門を入ってすぐ左手にある柱座及び出枘を持つ礎石:
径83cmの柱座、径25cmの出枘を持つ。
土橋邸礎石11 土橋邸礎石12
◇その他多くの礎石と推定される礎石がある。
土橋邸礎石13 土橋邸礎石14 土橋邸礎石15 土橋邸礎石16
土橋邸礎石17 土橋邸礎石18 土橋邸礎石19 土橋邸礎石20
土橋邸礎石21 土橋邸礎石22 土橋邸礎石23 土橋邸礎石24
土橋邸礎石25 土橋邸礎石26 土橋邸礎石27 土橋邸礎石28
2011/06/19追加:2011/06/18撮影:
2011/06/04に少なくとも礎石23個を確認するも、本日新に数個を確認し、30個に近い礎石があるものと思われる。
土橋邸礎石29 土橋邸礎石30 土橋邸礎石31
◇邸内にある石塔など:詳細は分からない。(年紀等未見)
土橋邸石製十三重石塔
・2011/06/19追加:2013/11/23修正:
「重要美術品候補物件調査報告(石造品)(昭和12年〜14年)-中-」川勝政太郎(「史迹と美術 64(1)」、1994- 所収) では
「十三重石塔 一基: 初重軸部四方には四仏の尊容を現し、各重屋根の下端には一重の垂木型を刻出す。
相輪は水煙を刻み出し・・・相輪の完全なるは喜ばしい。
十三重塔の基礎に『□治三年戊申三月十六日(干支から□は徳で1308年)』の紀年銘がある。」と記す。
但し、写真の十三重石塔はこの「調査報告」で云う石塔と思われるも、詳細に現地の十三重石塔を観察していないので
あくまで推定である。
土橋邸石燈籠1
・2012/03/22追加:2013/11/23修正:
「重要文化財正暦寺福寿院客殿修理工事報告書」奈良県教育委員会、1978 より
「川勝政太郎氏が『龍華樹院とその遺物』と題する研究の中で、京都市玄啄の土橋邸には文永10年の銘のある龍華樹院の石燈籠が
遺されていると報告されている。 ※(『龍華樹院とその遺物』は『大和志 第8巻第2号』昭和16年 所収)
この石燈籠は花崗岩製、六角形、総高2.2mの鎌倉様式をよく現したもので、竿の部分に約6cm角で
『龍華樹院 十三重 塔之石 燈籠也 願主故 □□□ 沙汰人 □□□ 文永十年癸酉』と刻む。
この刻文からこの石燈籠は文永10年(1273)龍華樹院十三重石塔に前に施入されたことが分かる。」とある。
但し、写真の土橋邸石燈籠1はこの「調査報告」で云う龍華樹院と刻む石燈籠と思われるも、詳細に現地の石燈籠を観察していない
のであくまで推定である。また竿の部分に刻む文字も写真にははっきり写ってはいないため、これから断定することもできない。
→菩提山正暦寺の正暦寺略歴の項を参照
土橋邸石燈籠2
:本石燈籠については、資料がなく不明。 ◆京都国立博物館(五条大橋橋脚礎石)
2012/09/07追加:
2012/09/07より以前、本「礎石」について、出所及び由緒不明の「塔心礎」と紹介をしていた。
しかし、小冊子「京都国立博物館 庭園散策ガイド」平成21年 では、本「礎石」は豊臣秀吉架橋の五条大橋橋脚礎石との解説がある。
確かに、京都博物館西庭園には本「礎石」に並んで五条大橋の石製橋脚と石製橋桁の展示もあり、
その石製橋脚(円柱)の径と橋脚礎石の円孔の径はほぼ見合うものである。加えて、石製橋脚の先端の形状は出枘を繰り出すものであり、この橋脚先端は橋脚礎石の二段円孔の形状にほぼ合致する。因みに、展示の礎石の円穴の径は75cm、展示の橋脚の径はおよそ65〜70cmを測る。
確かに、鴨川と云ういわば中級の河川に、橋桁2間の石製橋脚を連続して建てる場合、掘立式橋脚と云う訳にもいかず、柱穴と枘孔を二段に穿った巨大な礎石を設置する必要があったと頷くことができる。そして、
現在方広寺跡に累々と残る巨石を使った石塁を見れば、秀吉の権力を持ってすれば、五条大橋で使用する橋脚・橋桁・礎石などの石材を手当・加工するなど容易なことであったと
推測できる。
以上で、当初から「心礎」にしては少々表面が歪であると云う「心のひっかり」も氷解する。
さらには「幻の塔を求めて西東」に記載の「昭和7年賀茂川河畔から出土」との記事と符合する。
故に、本「礎石」は「塔心礎」ではなく、五条大橋橋脚礎石と訂正をすると同時に本ページから削除し、
山城の塔跡の「参考:五条大橋橋脚礎石」の項に移行する。 ◆山城おうせんどう廃寺(山城深草廃寺a):亡失 山城おうせんどう廃寺心礎
◆山城泉橋寺a
山城泉橋寺
|
 |
山城橋泉寺心礎:左図拡大図
比較的多くの写真及び実測図が残る。
詳細は 山城泉橋寺のページを参照。
心礎は売却、(寺院側では売却先を公にしない。神戸との感触あり?) |
◆山城東小廃寺
(2013/11/05):山城東小廃寺心礎については現地付近の「からすの壺」に現存することが判明する。
したがって 山城随願跡の項目に
記事を移行する。
◆推定東大寺東塔心礎
東大寺東塔心礎と推定される残欠が東大寺境内にある「西南役陣亡陸海軍人の碑」の台石となって、遺存する。
大和東大寺東塔心礎
◆伝東大寺西塔心礎
1)伝東大寺西塔心礎(2/5残欠)が奈良依水園後園に遺存する。
※残欠ではあるが、礎石の巨大さまた残存する柱座の大きさから、東大寺西塔心礎である可能性はかなり高いものと思われる。
奈良依水園伝東大寺西塔心礎
2)大阪旧藤田男爵邸(現太閤園)に東大寺伽藍石として遺存する。
※この伽藍石は依水園の2/5残欠に見合う3/5残欠との見解もあるが、3/5残欠には該当しないと思われる。
形状および大きさから判断して、東大寺東西塔いずれかの側柱礎石の可能性が高いと思われる。
大阪藤田男爵邸・現太閤園伝東大寺伽藍石
3)大阪旧藤田男爵邸(現藤田美術館)に伝東大寺東塔あるいは西塔心礎あるいは東大寺塔礎石といわれる礎石が遺存する。
※大きさから判断して、東大寺塔の心礎ではなく、東大寺側柱礎の可能性が高いと思われる。
大阪藤田男爵邸・現藤田美術館伝東大寺礎石
◆大和郡山城跡心礎
:出所不明
大和郡山城築城の時に、近隣の廃寺などから搬入されたと思われるも、出所の詮索は望むべきもない。
大和郡山城跡心礎
◆大和秋篠寺西塔心礎:亡失か 近年のことであるが、西塔心礎の所在が不明である。
|
 |
西塔心礎については、多くの文献・資料でその存在が確認できるが、
現在この心礎は秋篠寺境内に所在確認が出来ず、またその消息を尋ねるも不明である。
大和秋篠寺西塔心礎:左図拡大図:
「塔の中心礎石の写真と実測図」石田茂作 より
→大和秋篠寺 |
|
 |
2011/10/16追加:
昭和61年(1986)西塔心礎写真:「X」氏撮影・ご提供:
秋篠寺西塔心礎2:左図拡大図
秋篠寺西塔心礎3:いずれも秋篠寺にて撮影 |
◆大和唐招提寺:破壊 東京椿山荘に存在するも、近年プールを取壊、心礎を移転するに際し壊れたと云う。
大和唐招提寺の椿山荘心礎の項
◆大和山村廃寺:心礎所在場所不明、心礎現存の確認ができない
。 心礎は明治10年頃山村の某氏庭園に移され、昭和初頭には確実に存在したと思われる。(写真・実測図あり)
しかし、山村の某氏邸と伝わるのみで具体的な姓名は全く明らかではなく、またその後(昭和3年以降)に実見したと思われる文献もなく、現今でも山村某氏邸にあるのかどうかは全く不明である。
以上であるので、大和山村廃寺心礎は現段階では「亡失」とせざるを得ない。
○「ドドコロ廃寺石造相輪等調査」岸熊吉(「奈良県史蹟名勝天然記念物調査会報告書 VOL: 10」昭和3年 所収)
|
 |
大和山村廃寺心礎2:
左図拡大図 山村廃寺心礎実測図 心礎の行方を捜したところ、偶然にも今より50年前に搬出されて、山村某氏の庭園
にあることを発見する。
しかも当時専らその衝に当った同村久七氏(75歳)が健在で、直接会って聞きただしてみると確かにそうであった。
搬出の際、大きすぎるので数個に割る。今その内の主要部分2個が残る。
石質は花崗岩、大きさは4尺3寸×3尺1寸許で、表面は平滑に加工し、径2尺3寸8分深さ6分に掘り下げ、更に中央に径1尺4寸2分深さ6寸5分の孔を穿つ。 |
その他の詳細は →大和山村廃寺 を参照。 ◆大和願興寺a:天理市和爾:亡失
▲心礎は亡失。東京都にあるというも不明。
心礎は円柱造出一重円孔式。210×219×?cm、円柱造出径=90cm高さ不明、円孔径不明深さ35cm。▲
大正8年東京大山柏氏邸に移動。現在は亡失という。
(「日本の木造塔跡」)
寺跡がある位置には弘仁寺を乗せた尾根が東から西に張り出しているが、その尾根の西の終端が平地に到達した地点(現状は水田)に寺跡はある。通称「塔の丸」という地点で、大正7年に心礎が掘り出されたという。(この心礎はその後東京大山柏氏邸に移動されたと云う)。
※大山柏とは、陸軍元帥大山巌次男・陸軍少佐・公爵・考古学者・「史前学研究所」を設立・・・という異彩な経歴を持つ人物と思われる。
なお、この廃寺が願興寺であることを考証したのは田村吉永氏
<小研究「願興寺の事」(「大和志」2巻7号、1935 所収)、「大和和爾願興寺について」(「史迹と美術」297、1959 所収)>、堀池春峰氏
<「山辺の道の古代寺院と氏族」(「南都仏教」10号、1961 所収)>の功績とされる。
○「願興寺跡の発掘調査」岡林孝作(佛教藝術」Vol.235、1997 所収)
願興寺創建の由来は「東大寺要録」末寺章に「・・・小野中納言為忠建、願興寺字山口寺、在大和国添上郡上和爾」とある。
鎌倉末期もしくは室町初期の「虚空蔵絵図」(東大寺図書館蔵)の右端には願興寺の姿(1棟の草堂)が描かれ、願興寺東横道との添え書もある。
平成9年緊急発掘調査:塔基壇は一辺12.7mの正方形で、一辺34mの築地塀(瓦葺き)で囲まれ塔院を形成する。塔基壇は上面は削平されていたが、周辺には自然石を敷設した犬走り(幅70cm)があり、さらに自然石を敷いた参道
が南北に発見(南参道は幅6m、北参道は幅2m)される。中央には5m×4mの心礎抜き取り穴があった。石灯篭破片の出土もあったと云う。金堂などその他の遺構はまだ明確ではない。
大和願興寺概要図:「天理市願興寺跡ー第一次調査ー」岡村幸作(「奈良県遺跡調査概報(第一分冊)」1997年度、1998年度 所収)より
○2003/05/28撮影:
塔跡現状は何の案内もない水田(休耕田)であり、地上には見るべきものはない。下記の写真撮影時周辺にはまったく人影がなく、撮影した場所は地形図との対比で行う。従って
塔跡とした撮影箇所は推定であり、多少の「ずれ」がある可能性はある。
大和願興寺塔跡 大和願興寺塔跡
○2015/03/20追加:
「願興寺跡」岡林孝作・米川仁一・石井香代子「大和を掘る 16
1995〜1997年度発掘調査速報展」奈良県立橿原考古学研究所附属博物館、1998 所収) より
願興寺塔院全景・俯瞰;下に掲載の願興寺塔院遺構図を参照
○2015/03/20追加:
「天理市願興寺跡ー第一次調査ー」岡村幸作(「奈良県遺跡調査概報(第一分冊)」1997年度、1998年度 所収) より
上面は削平され、建物規模不明である。基壇中央に塔心礎の抜取穴(東西約5×南北約4m)が遺存する。
基壇は一辺12.7m自然石による基壇化粧を有し階段はなし。周囲に自然石を敷き詰めた幅70cmの犬走りを設け、二重基壇風をなす。
南北軸線に沿ってバラス敷の参道を設け、北側幅約2m、南側約5mとなる。
塔の四周は瓦葺の築地塀で取り囲み独立した塔院を形成する(塔院推定規模は一辺約34m)。
願興寺塔院遺構図:上に掲載の願興寺塔院全景・俯瞰の写真を参照
○2009/03/03追加:「大和志料」願興寺 より
東大寺要録(末寺章):願興寺右和銅元年・・・小野中納言忠を為し、願興寺を建て、山口寺と字す。・・・巳廃し址詳らかならず、延暦19年の古文書に虚空蔵山寺の四至を記して西は願興寺の東の横道を限るとあれは今の和邇の東山口の地にありしなるへし
○2012/03/25追加:「願興寺の事」田村吉永(「大和志」第2巻第7号・通巻10号、1935 所収) より
虚空蔵弘仁寺の延喜19年文書(大和志料所引)にその寺領を記した内に西方については「限西願興寺東横道」とある。
現在も弘仁寺寺領の西はかって塔の心礎を出した寺跡に接続している。ゆえにこの寺跡は願興寺とすべきであろう。
一方「東大寺要録」末寺章の願興寺の記事(前述)では願興寺は和爾にあり、しかも虚空蔵山の山口に当り、上津和爾、山口寺と云うのに一致する。このことによっても
、この寺跡は願興寺とすべきものであろう。
○2014/05/28追加:
「大和和邇願興寺について」田村吉永(「史迹と美術 297号」1959 所収)
東大寺文書延喜19年虚空蔵之山寺註進に「四至・・・限西願興寺東横道・・・」とあり、東大寺要録巻六の末寺の章に願興寺は和銅元年の創建、山口寺とも称し、添上郡上津和邇にあると記す。
小字「塔の丸」と称する古瓦の出土地がある。ここは大正7年一辺約7尺の長方形の中央に径3尺深さ1尺2寸の円孔を有する心礎を搬出した地である。この遺構こそ願興寺跡とすべきである。
なお注として、以下の補足がある。
「天理市史」では心礎は東京大山家へ売却、なお心礎は円孔を有したとされるが、「天理市史」ではこれとは別の心礎の写真の掲載がある。それは天理市森本町村井家庭園に所在するとし、写真では舎利孔を有するように見える。
※本稿で明徳3年の勧修寺文書に言及し、そこにある「山城国宇治郡八幡宮田願興寺大宅寺安詳寺・・」は明らかに山城国の願興寺であり、誤認であることは下掲の「山辺の道の古代寺院と氏族」で指摘するとおりである。
○2014/05/28追加:
「山辺の道の古代寺院と氏族」堀池春峰(「南都佛教 103」1961 所収) より
願興寺の塔心礎が大正7年5月頃天神山西方の田より檪本石工広田氏により夜間を利用して搬出され、東京大山邸に運送され、平面7尺余の巨石は関西線檪本駅駅にその重量と貨車の積載関係や配車の都合上相当長期にわたり放置され、当時この地方の話題となる。
但し、この心礎が今日どのようになるかは寡聞にして関知しない。
この心礎は俗称「塔の丸」、地番「宮の前」の田地にあり、この心礎を中心に方約5間の四天柱の礎石が存在していたという。これらの礎石は耕作の邪魔で、心礎搬出後石工により殆ど破壊されたという。(昭和36年「塔の丸」耕作者清水氏と天神山耕作者の老翁よりの聞取り)
しかし、「塔の丸」より搬出したと伝える礎石が今日京都北山別邸に二基現存する。
実見すると、この二基はともに同種類と認定できるもので、様式は造り出しと中央に円形の突起を有するものである。蓋し奈良期の範疇に入るもので、かの毛原廃寺の礎石に類似し、隅柱と中間柱に用いられたものと認知されるが、形式より見てこの礎石はむしろ毛原廃寺のものかも知れない。
□北村家庭園・伝願興寺礎石
※京都・北村別邸とは不詳:北村別邸とはあるいは現在の北村美術館・四君子苑とも推測されるが、良く分からない。
庭園には飛鳥山田寺、大和中宮寺、(大和大安寺)などの礎石があるも、願興寺の礎石の有無については情報がない。
Webにある「四君子苑略図」では向かって左下に2基の柱座を造出したように見える礎石があるように思われるが、これであろうか。
何れにせよ、はっきりとは分からない。
因みに、「離れ茶席」の左手に柱座を造出した礎石があるが、これが「伝大和中宮寺金堂礎2」を示すのであろう。
○2012/03/13追加:平成9年4月11日「中日新聞」 より
付近一帯は和爾氏子孫である小野氏(小野妹子・小野道風など)の根拠地であったと云う。願興寺は和銅元年(708)小野中納言が建立と云う。(「東大寺要録」)鎌倉期の絵図には和爾廃寺の位置に草葺の仏堂一棟が願興寺として描かれるとも云う。
※おそらく現在は圃場整備が完了し、塔跡は埋め戻され、全く忘れられた存在と化しているものと推定される。
○2014/09/17追加;
大山柏及び大山邸:Web情報によればおよそ次のような概要が知れる。
明治22年(1889)大山柏。大山巌・捨松夫妻の次男として東京に生まれる。
大正5年(1916)大山巌逝去、家督を相続し公爵・貴族院議員となる。陸軍の階級は少佐。
諸資料によれば、心礎が願興寺から大山邸に搬出されたのは大正7年という。
大正12年(1923)関東大震災で東京・穏田の大山邸を焼失する。
昭和4年(1924)自邸・研究所内に「史前學会」を設立し、雑誌『史前学雑誌』を発刊する。
昭和20年(1945)東京大空襲によって大山邸及び史前学研究所を焼失、所蔵文献や資料も焼失。
さらに華族制度廃止と農地解放、公職追放によって穏田の私邸などの財産の過半を没収される。
以後は穏田に子息を残し、自らは牧場と父母の別荘のあった西那須野町に隠棲する。
昭和44年(1969)大山柏逝去。
大山邸は穏田一丁目(表参道、現在は神宮前5−5−4)にあった。現在はマンションや官舎「穏田職員宿舎」などとなる。
子息は隠田に残るというも、現在も子息が居住するのかどうかは不明。
※以上によれば、もし穏田の大山柏邸に心礎が搬入されたのであれば、以下の様に推定される。
1)大正12年、昭和20年には大山邸は焼失し、また戦後大山邸跡の大部は没収され、現在はマンションなどに変貌している現状を鑑みると、戦前、戦後の混乱の中で、心礎は失われた可能性が高い。
2)心礎は戦後、他に転売された可能性もあるが、その情報は全くない。
3)子息は現地に残るという情報もあるので、仮に今も子息邸が現地にあれば、そこに心礎が残存する可能性もあるが、これも全く不明である。
○2014/09/17追加;
田村吉永著「大和和邇願興寺について」(「史迹と美術 297号」1959 所収)
では、上述のように、『「天理市史」ではこれとは別の心礎の写真の掲載がある。それは天理市森本町村井家庭園に所在するとし、写真では舎利孔を有するように見える。』との記載がある。
しかし、「天理市史(上)」の願興寺(廃)の項では、心礎は「東京の大山家に売却されたが、その他の礎石のうち二個は森本町の村井家の庭に置かれている。」との記載であり、別の心礎があったという意味の記載ではない。また、「別の心礎の写真の掲載」を探すも、別の心礎写真を本書に見つけることはできない。
※写真については後日再度探すこととするが、それはともあれ、心礎の他に四天柱礎の存在が文献には散見され、また現地と京都に願興寺から搬出されたと伝える礎石が存在する。
これは、推測するに、四天柱礎(側柱礎であるかも知れないが)の内の2個は森本町村井家に、残りの2個は京都北村家庭園に運ばれ現存する
ということなのであろうか。
2015/03/15追加:
○「天理市史 改訂上巻」昭和51年より
「和邇から弘仁寺の方へ500mほど上がった所に塔の丸という地がある。(その東が天神)そこの塔の心礎と思われる大石があった。 平面210cmの方形で、中央に径90cmの円形の造り出し、さらにその中央に深さ36cmの孔があったというから奈良時代のものであろう。これは大正7年東京の大山家へ売却されたが、その他の礎石のうち2個は森本町の村井家の庭に置かれている。この、塔の丸が願興寺の跡と推定される。・・・以下略・・・」 ◆大和楢池廃寺:天理市
楢町
2015/03/15追加:
○「山辺の道と古代寺院」(古代を考える 山辺の道」吉川弘文館、1999 所収)より
かって楢池と呼ばれる溜池の改修工事の時に多数の古瓦片と塔の心礎と思われる巨石が出土する。
しかし、現在は池の周囲で若干の古瓦片の散布を認めるだけで、何の遺構も残らない。
○「大和楢池廃寺の遺跡と遺物」近江昌司(「大和文化研究」第7巻第8号、1962年8月5日 所収) より
昭和34年檪本町にある楢池の堤防修築に際して、池の北岸が壊されたところが、寺跡と推定される遺構と若干の遺物が発見される。
遺物の大部は土地の好事家によって拾得され、一部は大和歴史館、天理大学参考館の他奈良の2、3の趣味家に伝わっている。
遺物の出土地は天理市檪本町楢小字弁才天池で、俗に楢池と云われる池が東西に三つ並び、東から順に上池、中池、下池と呼ばれ、このうち西端の下池周囲が遺物の出土地である。
現在は池の中に礎石らしい大型の石が二個あり、堤防の付近には少量の布目瓦が散布している程度で、他に徴すべき遺構は何も見られない。遺物としては次が知られる。
方形宝相華紋隅木飾板、方形宝相華紋垂先瓦、方形華紋隅木飾板、方形蓮華紋垂先瓦、八葉単弁軒丸瓦(山村廃寺出土瓦と酷似)、忍冬紋軒平瓦、八葉単弁蓮華紋軒丸瓦、偏行唐草紋軒平瓦、蓮華紋鬼板、塼仏
塔心礎:
檪本町古瓦愛好家である畑白楊氏によれば、堤防改築に際し、心礎と思われる大石が露われるという。
そして、現在池の北寄に礎石と思われる大きな石が1個あり、その石の北側辺から現れたもので、同氏が実見したときには既に彫り出して動かされていて、従って掘り出された時の状況は不明という。
|
 |
石質は花崗岩と思われ、6尺に近い大型で、底はやや尖り気味であった。
平な表面には幅1分くらいの溝が径2尺くらいの円形にめぐり、さらにその円周溝の四方から外側に放射状の溝がまっすぐ穿たれていた。そのうちの一溝は途中で途切れていた。
舎利孔は表面にはなかった。
◎伝聞による心礎書起図:左図拡大図
以上による伝聞によって作成したのが「伝聞による心礎書起図」である。
心礎とすれば、他に類例を見ない特殊な形式の心礎であり、また舎利孔が認められないので、直ちに、心礎と認めることはできないが、明らかに溝によって径2尺ほどの柱座を区分し、かつ放射状排水溝を穿つ形式は心礎に見られる形式ではある。
特殊ではあるが、心礎に必ず舎利孔があるとは限らないので、心礎である可能性を排除することはできないというのが結論であろうか。 |
心礎に言及しているのは「大和楢池廃寺の遺跡と遺物」だけであるが、(「山辺の道と古代寺院」は左記論文の内容紹介の類であろう。)
この掘り出された「心礎」がどうなったかは全く触れられず、従ってこの「心礎」の消息は不明である。
埋め戻されたのか、近隣の有力者の庭園の庭石に転用されたのか、売却されたのか、それとも破砕されたのであろうか。
なお、池中に2個の礎石様の大石があり、また池の北寄にも礎石様の大石があるとの記載があるが、現在も大石は残っているのであろうか。
◆大和日向寺a:破壊
○「飛鳥時代寺院址の研究」:
香具山の南麓にある。寺は大日堂・本堂・庫裏兼用の一宇が残り、塔跡はその堂跡の東南にある。
聖徳太子建立と伝える。
土地の古老上田清右衛門氏談:「塔跡は今より3尺ばかり高く、方形の土壇をなしていた。明治8年頃土壇を壊し、そのとき表土下5寸くらいの所より、「日向寺塔址礎石配列記憶図」(下を参照)のような配置で礎石を発掘した。就中、現在の弁天祠のある位置から、全長8尺位の中央に径4尺の円形刳り込みがあり、さらに中心に径7〜8寸の穴を穿つ大石が出土した。これ等の礎石は割って橋板・石垣に転用した。」
なお大日堂安置の大日如来は塔本尊と伝えるが、近世のものという。
また付近には日向寺の礎石と思われる円形造出を持つ礎石が法然寺庭園に2個、法然寺川石垣に1個、法然寺川スリカイ橋下に1個残存するともいう。
日向寺境内実測図 日向寺塔址礎石配列記憶図 日向寺塔址
○2004/06/13撮影:
現寺(橿原市南浦町)は天照山と号す。本尊阿弥陀如来、浄土宗。
日向寺現況:
塔跡は住宅の中に辛うじて土壇を残す。
境内の外にあるという礎石は確認できないが、大日堂の椽に礎石と思われる石が置いてある。
飛鳥日向寺塔跡1 飛鳥日向寺塔跡2 飛鳥日向寺推定礎石
2008/05/29追加: ○「大和上代寺院志」保井芳太郎:
大和志では廃日向寺は推古天皇時造と云う。現在も浄土宗日向寺があり、大日堂・弁天堂を残す。その弁天堂附近が塔跡であった。 古老の談によれば、ここに心礎と思われる長さ78尺くらいの巨石があり中央に穴があったと云う。その3方にも礎石があった。 建立時期は古瓦より見て推古朝は無理で白鳳期と思われる。
大和日向寺略図
2022/06/17追加: ○「京内廿四寺について」花谷浩(「研究論集Ⅺ」奈良国立文化財研究所学報60冊、2000 所収) より
8.日向寺 沿革や寺号は不明。「扶桑略記」推古29年(621)厩戸王子造立の9院の一つに日向寺がある。
「聖徳太子傳暦」(平安初期には成立か)では太子建立11院の一つに数えるが、割注では「或説入れず」とある。
「上宮聖徳法王帝説」(現存する聖徳太子伝記としては最古のもの。作者、成立年代ともに不詳であるが、平安初頭には成立か)の太子建立7ヶ寺には入っていない。
大脇潔は天武元年(672)7月3日条にある「八口」などを根拠に、蘇我氏同族の箭口の氏寺と考えた(「蘇我氏の氏寺からみたその本拠」<「堅田直先生古希記念論文集」真陽社、1997>)。
2022/11/10日追加: →藤原宮跡模型:平城宮での姿が再現される。
2026/01/13追加:
○「初期寺院の創建−7世紀前半における仏教寺院の導入」相原嘉之(「明日香村文化財調査研究紀要 19」明日香村教育委員会文化財課、2020 所収) より
日向寺(八口寺) 香具山南麓の南浦集落の中に、現在も日向寺がある。
『扶桑略記』推古29年(621)2月22日条に、伯戸皇子造立九院の一つとして「日向寺」の名前があがる。
ここにはかつて直径2mにも及ぶ心礎があったが、明治初年に破却された。 発掘調査も少ないことから、伽藍配置などは明確ではない。
この寺について、大脇潔氏は、天武元年(672)7月3日条にみえる「八口」などを根拠に、蘇我氏同族の箭口臣の氏寺とした(大脇1997)。
なお、飛鳥池遺跡出土「寺名木簡」に「八口(寺)」とあり、当寺と推定されている(伊藤ほか2000)。
周辺から出土する瓦には、復古瓦ではあるが花組があり、7世紀前半の丸瓦もあることから、この時期の創建と推定される。
また、川原寺式や大官大寺式瓦、大安寺所用瓦も出土することから、奈良時代までは存続していたものと推定される(奈文研1982b)。
◆大和大官大寺a;破壊 心礎は国家神道橿原神宮造営で搬出し、おそらく
(ほぼ100%)破壊。
大和吉備池廃寺・大官大寺
◆大和紀寺a(大和小山廃寺):破壊
伽藍配置は南面し、南門・中門・金堂・講堂が一列に並び、塔は金堂前面東に配置、回廊は中門から講堂に取り付く。なお心礎は明治初頭まで残されていたが亡失。
現状は公園として残され、金堂あるいは講堂(と思われる)土壇を見て取ることができるが、塔跡は素人には判然としない。なお当寺は平城京移転とともに平城京へ移転するとされる。
2022/05/28追加: ○「飛鳥・藤原京の謎を掘る」千田稔・金子裕之、文英堂、2000.3 より
紀寺:所在地の小字が「キテラ」であるため、紀寺跡をされてきたが、根拠は薄い。なお、地名は小山であり、小山廃寺とも呼ばれる。
2002/04/29撮影:
大和紀寺金堂跡 大和紀寺塔推測地
2017/03/09撮影:
大和紀寺跡
大和紀寺出土瓦:奈文研/飛鳥資料館展示
▲心礎は円柱造り出し一重円孔式、139×90.9cm、径69.5×5.4cmの円柱造り出しと径13.5×13.9cmの円孔。保井芳太郎「大和上代寺院址」▲
2007/05/01追加:
◎「大和の古代寺院跡をめぐる」より
津川長道「卯月日記」文政12年:「法然寺に詣で、その後西に行く。田の中に大きな礎石有り。此も塔の礎と見ゆ。・・・」とある。
明治初期、岡本桃里の描いた図の中に礎石図があると云う。そこには塔心礎と思わせるような彫り込みがあり、中に「水」という文字があったあるいは四天柱礎と思しき礎石があったとする。
しかし数次に渡る発掘調査でも、肝心の塔跡は不明のままである。
2008/05/29追加:
◎「大和上代寺院志」保井芳太郎 より:
「卯月日記」に記録された心礎は明治維新後も残っていたが、明治10年頃割って石垣にしたと云う。
これを記憶する者の談によれば、この心礎は頗る巨大でありその周囲に四天柱礎を立てかけられた形にあったと云う。
|
 |
岡本桃里・紀寺心礎図:左図拡大図:
円柱を受ける凹座があり、その中央には枘孔もしくは舎利孔(水とある)があったと思われる。また上記の「談」のように心礎四隅には四天柱礎が立てかけられたように見える。
紀寺址概要図:
明治20年頃、紀寺址地は畑地より水田に変更された。塔址の西北は今も畑地で周囲の水田より1尺ばかり高く、この間も礎石の出土を伝え(金堂跡か)、またその北の水田中にも数個の礎石のある事を地主は伝える(講堂跡か)。
大和紀寺礎石:由緒は不明 |
◆大和放光寺跡(片岡王寺・片岡僧寺):破壊 ◎「飛鳥時代寺院址の研究」:
聖徳太子の建立とされる。金堂、講堂、食堂、五重塔、経蔵、鐘楼、三面僧房、諸門、浴室、回廊を備えた大伽藍と伝える。現王寺小学校の地が片岡王寺の故地とされる。永承元年(1046)落雷で焼失、弘和4年(1384)金堂再建落慶供養。元亀3年(1572)松永久秀の乱により再度炎上。
明治20年頃まで、金堂跡、塔跡は芝地として、講堂跡は藪地として残っていたと云う。
古老数人の立会いのもと現地を確認すると、塔跡は高さ約5尺一辺約6間の方形の芝地として残り、塔屋敷と通称する。金堂跡は塔跡北約10間の所に、周囲より一段高く、芝地として残り、金堂屋敷と通称する。講堂跡は金堂北約15間にあり、高さ約2尺の藪地として残り、礎石の散在もあった
と云う。
□片岡王寺址実測図:塔などの土壇は地籍図・古老の立会などで追加記入と思われ
る。
□推定塔扉残欠実測図:小学校校舎増設に当たり、畑の土取に際し、発見。6尺7寸×1尺8寸(厚さ2分)一枚板の扉で反面は火災で黒く焦げている。発見位置及び大きさからして、大堂の扉では無くて、塔の扉と推測される。
「放光寺古今縁起」:審盛著:永保年中、五重塔朽損し、因って三重に縮む。との記事がある。
◎2008/05/29追加:大和上代寺院志」保井芳太郎 より:
「放光寺古今縁起」:正安4年(1302)・僧審盛著、放光寺蔵では
敏達天皇第3王女(片岡姫)が建立、金堂に続いて講堂、五重塔、経蔵、伝法堂、湯殿、回廊、諸門、鎮守、南塔院、光明院、如學院、知足院(以上4個別院)などが完備する。
永承9年(983)伽藍焼失、建久年中俗別当沙弥阿妙再興を企てるも成らず。焼け残った講堂・食堂も腐朽し、五重塔も朽損したため永保年中俗別当吉高がこれを三重に縮め銅の相輪を鉄に改めた。
僧審盛は再興を図るもその事蹟は不明。その後元徳元年(1329)金堂落慶、しかし元亀3年兵火により全焼。その後は隠元により黄檗宗として寺地を転じて再興される。(片岡山放光寺)
□放光寺跡概要図:明治20年頃土壇礎石はすべて取除く。
この図は保井芳太郎氏の幼少の記憶より推してほほ正確とする。
塔跡は今水田であるが、かっては34尺の土壇の上に中心礎を廻って約10個の礎石が残っていたといわれる。その北10間ほどにして金堂の土壇があり礎石が1列をなして78個あったと老人は記憶している。その北約20間にして講堂があり、土壇は金堂よりずーと低く、67個の礎石があったようである。
◆大和平群寺(平隆寺):破壊 ◎「飛鳥時代寺院址の研究」:平群寺は現在の平隆寺(融通念仏宗)境内とその周囲が寺域であったとされる。
平群寺は飛鳥期創建で平群氏の氏寺と云う。
嘉吉元年(1441)の「興福寺官務牒疏」:「平群寺・・・僧宇32坊・・・」。天正年中松永久秀の兵火で灰燼に帰す。
※ただし、「興福寺官務牒疏」は椿井文書の一つであり、ほぼ偽書と断定して良い。
「寺社惣堂除地改帳」元禄15年:「施鹿園寺金堂屋舗(4畝12歩)、施鹿園寺講堂屋舗(1畝26歩)、施鹿園寺塔屋舗(1畝歩)、聖徳太子御建立・・・今ハ古跡ニテ御座候、・・」
※上記は太子建立の施鹿園寺と平群寺を同一するが、同一なのかあるいは別寺かどうかは決め手がないのが現状であろう。
□「勢野村古地図」江戸期:保井氏蔵:
塔址、推定金堂跡芝地および付近には関係すると思われる地名が表示されている。
塔跡という地は今は畑地であるが、これは明治20年の開墾によるもので、それ以前は小高い芝地で中央には五輪石塔があり、5〜6個の伽藍石が列をなしてしたと云う。開墾に際し、五輪塔は平隆寺境内に移し(現存)、その下から発掘した大伽藍石は大きすぎて搬出できず、森川某に売却し小割りして搬出した。およそ35駄あったと云う。なお隣の金堂跡と思われる芝地も同年開墾された。ここにも2〜3個の伽藍石が南北に並んでいたと云う。現平隆寺本堂は若干の高みの上に立ち、おそらく講堂跡と思われる。礎石4個(円形柱座造出がある)を現平隆寺境内に残す。
□平群寺跡地籍図:明治初頭のものと思われ
るが、まだ江戸期の面影を伝える。
◎周囲はまだいくらかの田畑を残すも、住宅地に変り、上の古地図や地籍図にある塔跡の区画は寺の所有なのか個人所有なのかの判断はつかないが、個人の庭地になっていると思われる。そのため、立ち入ることを躊躇せざるをえず、塔跡の現況は実見していない。また平隆寺は(訪問時は日中)固く閉門していて、境内地に
入ることが不可であった。
□大和平群寺現況:写真中央(左平隆寺と右住宅建物の間で道路に面した生垣の中が塔跡と思われる。
昭和49年の発掘調査では、参道東で創建当時の心礎の搬入孔と抜取り穴が発見され、また現本堂の下層から東西棟と推定される建物跡が発見された。それ以外の遺構は発見されなかったが、大量の飛鳥期の瓦が出土したという。
なお、上記写真の生垣の中(塔跡)には「心礎抜取穴」と標す石柱と抜取穴の位置を示す石臼様の石製加工物があり、塔の中心の「しるし」としているようである。
◎2008/05/29追加:大和上代寺院志」保井芳太郎 より:
施鹿恩寺(施鹿薗寺):太子伝暦などによると聖徳太子建立寺院とする。
「斑鳩古事便覧」では承元4年(1210)法隆寺西郷に移り金光院と号し、天福2年(1234)さらに法隆寺北方に移る。元和8年(1622)法隆寺律学院回録の際金光院も類焼、その跡に宗源寺が建ったとする。その際金光院の一部を大念仏寺末浄念寺に移したので浄念寺を施鹿恩寺と称する。
「和州平群郡西勢野村寺社惣堂除地改帳」:
「1.除地 施鹿恩寺金堂屋敷4畝12歩 施鹿恩寺講堂屋敷1畝26歩 施鹿恩寺塔屋敷 1畝歩
2.借リ地 摂州平野大念仏寺末寺 平隆寺道場 右ハ施鹿恩寺金堂屋敷之内借地仕六拾弐年以前造立候
元禄15年」とある。
以上によれば、移転後の施鹿恩寺は元禄期も広い跡を残していた。塔屋敷は金堂の東南にあたり、明治20年頃開墾し水田と為す。塔屋敷には五輪塔と2個の礎石が残り、その五輪塔下から一大礎石を発掘する。しかしこれは小割にして森川某に売却と云う。(35駄ありと云う)
大和平隆寺跡概要図
なお平群寺(平隆寺)と施鹿恩寺(施鹿薗寺
)はおそらく別の寺で、平隆寺は寺址は不明であるが現位置とは別にあり、中世には隆盛であったが、兵火で焼失し寛永18年に至り、施鹿恩寺金堂屋敷を借地して再建され
(上記の「改帳」)現在に至ると云うことと思われる。
○2015/03/20追加:
「平隆寺」清水昭博・鶴見泰寿「大和を掘る 16
1995〜1997年度発掘調査速報展」奈良県立橿原考古学研究所附属博物館、1998 所収)より
平成8年度調査では塔基壇の残存が確認される。
平隆寺塔跡1 平隆寺塔跡2 平隆寺塔跡基壇版築
○2015/03/20追加:
「三郷町平骼尅謔Q次発掘調査概報」(「奈良県遺跡調査概報(第一分冊)」1996年度、奈良県立橿原考古学研究所、1997 所収)より
基壇は南北10.3×東西1.4m遺存する。但しこれは、SK01〜SK03を東面側柱とし、北辺をSD20、南辺をSX28とした場合の復元値である。
心礎導入坑SX16(南辺幅4.3m長さ6.2m)は北側より約20゚の角度で下がった後、ほぼ水平となる。
導入坑南側の底には瓦が敷かれる(東も同様か)。心礎抜取穴SX17は導入坑のほぼ中央にあり、4.3×2.2m、深さ1m。
平隆寺推定伽藍配置図 平隆寺塔跡復元図:SK01〜SK03を塔東側柱とした場合の復元図である。
平隆寺塔跡心礎抜取穴図
◆大和西安寺(久度寺):
心礎は破壊 2015年発掘調査により、塔跡の遺構が出土する。
大和西安寺跡
◆大和朝妻廃寺a<御所市飯田邸>:移転現存 御所市朝妻に廃寺はある。心礎は廃寺跡から少し西に上った岡田氏邸にあったが、事情により売却という。
現在この心礎は御所市竹田の飯田圭三氏邸にありと云う。
◎大和朝妻廃寺心礎:「佛教考古学論攷」
▲心礎は二重円孔式、181×181cmで、径78×9cmと径28×10cmの穴を彫る。▲
◎飯田氏邸は現存する。但し圭三氏は他界し、心礎の有無についての確認は取れないのが現状である。
□大和朝妻廃寺位置図:北600mに二光寺廃寺がある。金剛山東山麓の絶景の地に
位置する。
□大和朝妻廃寺跡1:写真中央付近
が春日小祠<写ってはいない>で、写真右手周辺が廃寺跡とされる。
□大和朝妻廃寺跡2:
写真は春日小祠、この前方が廃寺跡とされる。発掘調査なども行われたと云う。
◎「奈良県史 第6巻」:
心礎は径5尺5寸(1.67m)、外輪刳込径2尺6寸(79cm)、深さ3寸(9cm)、中央刳込径9寸5分(29cm)、深さ3寸3分(10cm)とされるが、現在は行方不明。
◎2007/01/06追加:「日本建築史要」(付図)より:
□大和朝妻廃寺心礎図
◎2008/05/29追加:「大和上代寺院志」保井芳太郎 より:
この遺跡は朝妻部落の字「寺畑」にあり、そこには近年まで低き土壇と数個の礎石を残していた(金堂か?)。さらに、ここより8間半の地点で先年塔の心礎を発掘したので、ここが塔跡であろう。心礎は岡田氏の庭に移す。
□明治8年朝妻廃寺調査図 朝妻廃寺心礎図2:先年発掘したる礎石で今岡田氏の庭に移している。
※保井氏はこの寺跡を聖徳太子建立葛木寺に比定する見解もあるが、この比定には多くの疑問点もあることを承知で、葛木寺として述べている。
参考:聖徳太子建立46院の○下注1を参照
◎2008/08/31撮影:朝妻廃寺心礎
飯田邸に心礎は現存する。
○心礎の実測値は次の通り。
大きさは151cm(約5尺)×124cm(約4尺)×約70cm(約2尺3寸)、2段円孔を持つ。
上孔は径67cm(約2尺2寸)、高さ約3cm(約1寸)、下孔は径61cm(約2尺)×深さ23cm(約7寸5分)
但し底はやや丸く加工されている。おそらく手水鉢に転用の折、掘り下げられ、やや丸く加工されたものと思われる。
◎2021/07/06追加:知識寺式心礎と思われる。
※現在の心礎はおそらく手水鉢に転用のときに改変された可能性が大きいと思われる。
上掲「奈良県史 第6巻」(平成3年)の心礎寸法とはかなりの差異がある。(「幻の塔を求めて西東」の寸法も同様)
「奈良県史 第6巻」の寸法に間違いが無く、かつこの数法が心礎の当初の大きさを示しているものであるとすれば、現在の心礎は、当初の心礎に比して、大きさに於いて
は約30〜60cm程度周囲が割られ、かつ上面に於いては6cm以上削平され、さらに下孔に於いては元々径約29cmであった径が径61cm程度まで大きく広げられ、底も4cm程度掘り下げられた(
元々は深さ19cm程度から深さ23cm程度へ)と思われる。
上掲「佛教考古学論攷」の写真(大和朝妻廃寺心礎)は現在の心礎の姿と大差は無いと思われる。
(つまりは心礎が改変されたとすれば、この写真も既に改変された後の写真であろう。岡田氏邸の時代か?)
上掲「日本建築史要」(昭和3年)の実測図(大和朝妻廃寺心礎図)は寸法表示はないが、ほぼ現状の心礎の形状と一致すると思われる。
上掲「大和上代寺院志」(昭和7年)の実測図(朝妻廃寺心礎図2)は長径5尺6寸(1.7m)、深さ3寸5分(11cm)で、一重円孔式
のように見える。大きさはほぼ合致するも、形状など正確性に疑問がある。 2021/01/29追加: ○「葛城古寺探訪ー二上・葛城・金剛山麓の古代寺院ー」葛城市歴史博物館、2016 より 是まで、2度の発掘調査が行われ、推定金堂跡とその周囲の回廊跡が発見される。 塔跡は推定金堂跡の15m南とされ、塔と金堂が南北に並んでいたと推定される。金堂は東面したと思われ、復元される寺域の東限中央付近に「ダイモン」の字が残りることなどから、伽藍配置は東面する法隆寺式伽藍と思われる。
朝妻廃寺発掘図1 朝妻廃寺発掘図2
◆摂津太田廃寺<心礎は名古屋岡谷邸に移転>(攝津三島廃寺)
:移転現存
○「日本の木造塔跡」:心礎は明治40年に発掘され、その後京都に運ばれ、現在は名古屋市東区白壁町岡谷氏邸にあるという。
心礎は1.6×1.58mの三角形で、径94×5/4cmの円穴があり、中央に30×22×16cmの矩形の孔を穿つ。発掘で舎利孔から金銀銅の舎利容器(重文)が発見される。(現在東京国立博物館蔵)
太田氏は朝鮮から渡来した呉勝(くれのすぐり)が祖先とされ、紀伊名草郡太田村から摂津三島賀美郡太田村に移住し、更に播磨飾磨郡に移住し、下太田廃寺を建立したとされる。現在寺跡は工場地帯になり、見るべきものは無いと云う。
□摂津太田廃寺心礎:「佛教考古學論攷 四 佛塔編」
2007/01/10追加: ○「大和の古塔」黒田f義、天理時報社、昭和18年 より
今日までの舎利容器の発見例には本廃寺、美濃山田寺跡、未公表ではあるが大和法隆寺五重塔、昭和15年発見の近江崇福寺跡がある。
摂津三島廃寺の舎利容器:そとを大理石の石櫃(一辺6寸2分、他辺4寸5分、高さ5寸余、身の高さ3寸6分、蓋高1寸6分)とし、中に銅鋺(高さ2寸3分、径2寸1分)銀盆(一辺8分、他辺4分、高さ2分)金盆(一辺3分、他辺2分、高さ1分)を順次入れ子にし、金盆中に舎利2・3粒があったという。
摂津三島廃寺舎利容器 三島廃寺舎利容器安置状況 摂津三島廃寺心礎 摂津三島廃寺心礎図
なお、現在舎利容器は東京国立博物館蔵となる。大阪府三島郡三島村字太田内北屋敷太田廃寺址出土舎利容器(1具・重文)、奈良期、平野拾治郎氏・太田治三郎氏寄贈 と標す。
2007/12/24追加:
○「奈良朝以前寺院址の研究」たなかしげひさ、白川書院, 1978.8 より
摂津太田廃寺舎利容器:上記の「舎利容器」と同一写真:山田寺蔵
心礎内舎利容器断面図:上
図
は摂津太田廃寺、下図は美濃山田寺(小林行雄製図)、
上記「舎利安置状況図」と同一
2009/09/05追加:
○「仏舎利埋納」飛鳥資料館、平成元年 より
心礎は180×170cmで、中央に30×21cm深さ15cmの舎利孔を持つ。
攝津太田廃寺心礎 攝津太田廃寺心礎実測図
太田廃寺石製舎利外容器2 太田廃寺舎利容器2 太田廃寺舎利容器実測図
○2018/11/20追加: 三島廃寺舎利容器(東京国立博物館)
2020/03/13追加:
○「縄生廃寺出土舎利容器に関する若干の考察」上原真人<「縄生廃寺跡発掘調査報告」昭和63年 所収> より
太田廃寺舎利容器納置方法 ▽出土舎利容器の一覧は「舎利容器一覧表」を参照。
2020/05/05追加: 現在心礎は名古屋市東区白壁町岡谷氏邸に所在という。
しかし、岡谷氏邸の位置をs_minagaは把握してはいず、心礎は未見である。 岡谷邸については、次のような「未確認」情報がある。
「かなり昔(10年〜20数年前か?)岡谷邸を訪ねるも、屋敷の門扉は固く閉ざされている。そもそのインターホン自体がないようで、案内を乞う手段がない。おそらく家主は現住しておらず、管理人も常駐はしていないような雰囲気ではある。」◆摂津芦屋廃寺<芦屋市立美術博物館> :移転現存
塔心礎:1.93×1.1×約0.5mのほぼ五角形の自然石で、上面に径30×16cmの孔を穿つ。 孔横に島津十字(径
20cm)の印刻がある。この印刻は後世のものなのかあるいは当初の方位を示す刻印なのかは判然とはしない。 昭和11年西山町旧栃木嘉郎氏邸南東に埋没していた心礎の調査が行われた。 その後、経緯は不明であるが、心礎は寺跡の南方・月若町猿丸吉左ヱ門氏邸にあったとされる。 さらに、これまた経緯は不明であるが、現在では芦屋市立美術博物館前庭に放置されている。
伽藍地は芦屋市西山町とされ、市街地化している故に、小規模の合計66次に及ぶ発掘が平成11年度までに実施される。 結果、平成11年(66次)発掘で、金堂跡の推定南辺の地形段差と基壇が検出された。 具体的には、下成基壇の一部残存と思われる花崗岩の基底列石が発掘され、白鳳期と思われる軒丸瓦、建築用「塼」の出土が多く得られた
と云う。また基壇は3回に渡り、整地造替が行われたことがはっきりしたという。さらに創建時礎石および再・再再建の礎石と思われる石も出土したという。(ただし金堂跡との推定は以上の成果および地形を含めた状況証拠からの推定と思われる。)
ところで心礎は推定金堂跡東の旧栃木邸で出土したとされ、だとすると、おそらく法起寺式であろうとの推論もなされる。
「寺社御改委細帳」元禄5年(1692):塩通山法恩寺、開創は行基、在原業平が伽藍修復、嘉吉2年(1442)の兵火で焼失、その跡に薬師堂を
建立。なお薬師堂は西ノ坊と称すると云う。
「行基年譜」:天平2年(730)菟原郡に船息院・同尼寺を建立。
「摂津志」・「摂陽郡談」・「芦屋の里」・「塩通山故事」・「務古の浦風」などの文書にもいわば「伝承の継承」と思われるが、行基との関連の記載があるという。
「摂津名所図絵」:芦屋川東岸に「薬師」として挿絵がある。 2004/03/05撮影:
近代には瓦の出土などを見、昭和42・43年には薬師堂跡と推定される礎石・石列、中世の石垣列などが発掘される。
攝津芦屋廃寺心礎1
攝津芦屋廃寺心礎2
攝津芦屋廃寺心礎3
攝津芦屋廃寺心礎4
2023/03/10追加: ○「芦屋の遺蹟シリーズ5 芦屋廃寺跡」芦屋市教育委員会、平成23年 より
芦屋廃寺は芦屋市西山町・三条町一帯にあった。 現在は宅地化が進み、現地には一つの石碑(昭和48年建立)と説明板があるのみである。
昭和48年薬師堂跡と考えられる建物跡が発掘される。 大正11年薬師堂調査区
開発の進展とともに、現在では120地点に達する調査が行われている。
平成11年調査では多数の瓦や塼が出土、さらに初めて建物の基壇痕跡が発見される。
平成13年には「寺」とスタンプされた土器、墨書土器、燈明皿などが大量に出土する。 今まで発掘された瓦の文様は白鳳・奈良期に及ぶ。
芦屋廃寺の伝承・歴史については勿論不明であるが、
芦屋には行基開創の寺院があったと伝えられている。中世・近世には塩通山法恩寺があったと伝えられ、嘉吉2年(1442)兵火で焼失、後に薬師堂(西ノ坊)として法灯を継ぐという。
○「むくげ通信 280」、2017.1.29、「播磨の古代寺院と造寺・知識集団 46― 芦屋廃寺・葦屋駅家を中心に ―」寺岡洋 より 芦屋廃寺の軒瓦:「瓦からみた西摂の古代寺院」大脇潔、2015(『地域研究
いたみ』44号)
◆摂津阿倍寺<天下茶屋公園> :移転現存
:阿部寺とも綴るようである。
高津久右衛門氏(大阪・砂糖取引商人)が心礎を所有していたが、後に高津氏は邸を大坂市に寄附する。大阪市はその跡を天下茶屋公園として整備し、心礎はそのまま天下茶屋公園に残存する。
○「日本の木造塔跡」:
心礎は、2.1m×1.5m、中央に径64cm深さ15cmの孔があり、その中央を少し外れて径13.6cm深さ7.6cmの円孔を穿つ。花崗岩製。
心礎は後に、旧高津邸に移され、戦後その高津邸は大阪市に寄付され、天下茶屋公園に整備される。そのとき心礎の孔にはセメントが詰められ、表面を平に磨きあげたと云う。
現状、天下茶屋公園はそこを生活の拠点とする人が多数いる。心礎のある附近も生活の場となり、孔も泥水とゴミが溜まっている。生活者が心礎すぐ近くにいる関係上、汚水などを除去して写真を撮れる雰囲気ではない。
(それゆえ現地説明板に孔の写真掲載があるので、それを掲載。・・・心礎5)
なお心礎の現状は、詰められたとされるセメントは取り除かれてはいる。しかし磨かれたとされる表面を取り返すことは不能である。
阿倍寺は阿倍野区松崎町2丁目の松永大明神付近に存在したとされる。戦前、松永大明神より心礎が発見され、さらに平成11年の調査で創建時(奈良時代7世紀後半頃)から16世紀初頭までの瓦が大量に出土したという。
2003/09/28撮影:
攝津阿倍寺心礎1
攝津阿倍寺心礎2
攝津阿倍寺心礎3 攝津阿倍寺心礎4
攝津阿倍寺心礎5
2011/05/29追加:
○「佛教考古學論攷」 より
摂津阿倍寺心礎6
2016/08/21追加:
○「大阪市埋蔵文化財発掘調査報告-1998年度-」(財)大阪市文化財協会、2001 より
摂津阿倍廃寺検出遺構
2017/02/10追加:
○「堂ヶ芝廃寺」佐藤隆(「新修大阪市史 史料編第1巻 考古資料編」大阪市、2004 所収) より
現在松長大明神の小詞がある附近に、かつては南北線上に二カ所の土壇があり、北の方形土壇には円形の凹穴を持つ礎石があり、南の土壇上には巨大な心礎が残っていたという。この地からは白鳳期の瓦が出土し、附近には「阿部寺」「東・南阿部寺」の小字名があり、四天王寺式伽藍配置を持つ阿部寺跡に比定される。
2026/01/03追加:
○「阿倍野区歴史講座 古図会、古地図などから見る阿倍野等の歴史」阿倍野区生涯学習推進会議、2008.3 より
第2回 古図会、古地図などから見る阿倍野等の歴史(その二)> 2.阿倍寺:
※残念ながら、この項(2.阿倍寺)の著者の記載がなく、著者は不明である。
阿倍寺は大化の改新の頃、功績を挙げた阿倍内麻呂(左大臣まで昇進)をはじめとする阿倍氏一族の寺である。
阿倍氏の本貫地は大和桜井であり、桜井の阿倍寺(跡)も阿倍氏の氏寺であり、どちらも7世紀後半の建立とされる。
摂津の阿倍寺は阿倍寺千軒とよばれるほど隆盛であったが、その後退転し、永らくその場所も不明となっていた。
ところが昭和10年に現在の四天王寺の南1kmのところにある松長大明神の祠のある場所から、塔心礎が発見され、この付近が阿倍寺跡と確認される。
その後、地主である砂糖商・高津九右衛門によって心礎は天下茶屋にある私邸に運ばれていたが、戦後大阪市に土地が寄贈され、天下茶屋公園となり、その関係で心礎は公園内に設置されている。
心礎は径60cmの孔を開け、さらに径10cmの舎利孔を開けている。
さらに、心礎の発見された場所から北数十mのところに周囲より高くなった土檀跡があり、おそらく金堂であったと推定されている。
故に、阿倍寺はおそらく四天王寺式伽藍配置を採った寺院であったと推定されている。
1999年大阪市文化財協会が土檀跡の直ぐ北側を発掘調査、そこからは飛鳥時代後期の阿倍寺創建時と推定される瓦を採取する。創建時の金堂の瓦であろう。
土檀北約30mの所に東西方向の巾2.5m、深さ0.7mの溝が確認され、そこからは室町期の瓦などを発掘する。
この溝が寺域を区画するものならば、阿倍寺は中世まで存続していたものと推定される。
ところで、阿倍寺は四天王寺式伽藍配置をとるが、桜井の阿倍寺は法隆寺式の伽藍配置である。なぜ同じ阿倍氏の寺が異なった伽藍配置を採る理由は分からない。推測するに大阪の阿倍寺は近接する聖徳太子の四天王寺を意識し、桜井の方は当時流行の法隆寺式を意識して造立したのではないかと思慮する。
阿倍寺の資料を展示した施設が2個所ある。
一つは阿倍野区民センター1F左側の創建瓦など、前述の土檀の北側に建っているマンション(イートピア阿倍野?)のロビーに出土瓦などが展示されている。
阿倍寺推定地:黒く塗られた部分が1999年発掘部分である(※出所)
阿倍寺塔心礎実測図 阿倍寺創建時瓦:拓本・飛鳥後期
中世の大溝:(※出所)
蓮華文軒丸瓦:阿倍野区民センター展示の創建瓦:阿倍野区民センターサイト から転載
※出所:いずれも、図版の出所は「大阪市埋蔵文化財発掘調査報告-1998年度-」大阪市文化財協会、2001 の 「第四章
阿倍寺跡の調査」 である。 なお、この論考の続きがあり、それは摂津四天王寺のページ(★古代の四天王寺の項)へ掲載する。
2026/01/03追加:
○「天王寺村誌」大阪府東成郡天王寺村、財団法人天王寺村公同会、大正14年 より 第三編>第一章> 第二節 阿倍寺趾
(大意)
阿倍寺は往古阿倍の臣の建立、後四天王寺の末寺となる。四天王寺六時堂千手観音は元阿倍寺の本尊なりしという。
現今阿倍寺の遺址は約169坪(本村吉井平一氏所有地)の丘形をなし、一本松(枯死)の樹下に一小祠あり、祠前に一大礎石あり。
径4尺許、中央に刹柱凹入の跡を留む。(本村泉岡宗助氏所有地) 近年発掘せられし
(1)古瓦辨毎に二蕊を有する八辨蓮華の文様あり。(阿倍王子権現蔵) (2)様式極めて古雅なる鬼瓦(上記泉岡家蔵)
(3)長さ約1尺5寸、巾1尺、量2貫大の四辨花模様付飾瓦(大和東大寺のものと同じ・本村庄司洞蔵氏蔵)
口碑に「阿倍寺千軒」または「千坊跡」と伝える字地あり、蓋し、阿倍寺の盛時の規模を伝へるものならん。
惟ふに阿倍寺は王子権現の社僧、王子権現の神宮寺・・・・・
なお、この節には「以下に記して参考に供ふ。」という書き出しで、阿倍寺に関する玉樹安造氏の考証が続けられる。
※この考証は皇室-空海-王子権現-王子権現神宮寺の関係で阿倍寺を解き明かす。
王子権現北側にある印山寺が阿倍寺の法灯を継ぐという。その享保年中の證文などの記載がある。 →詳細は割愛する、割愛部分は「天王寺村誌」の参照を請う。 2026/01/03追加:
○「考古學雑誌 25巻11號 25(11)」考古學會、昭和10年11月 「新聞所見」>「阿倍寺の遺趾発見さる」 より
「阿倍寺」の遺址発見さる (要旨) 「阿倍寺」の遺址が松長大明神裏手の丘から発見される。
同寺は聖徳太子傳「古今目録」に「四天王寺末院の事、冥興寺阿倍寺是歎」記されている。
阿倍寺千軒とて堂塔・伽藍・坊院など大規模な寺域を有していたらしいが、的確な遺構が見当たらず僅かに常盤通一本松跡に藤原時代のものと推定される礎石らしきものと、大正時代にその付近から出土した単弁瓦の破片によって、その寺域が推定される程度であったが、18日の発掘で飛鳥末期の様式を備えた塔心礎(長さ6尺6寸、巾4尺3寸で中央に径4寸、深さ2寸7分の舎利孔あり)と同礎石の南方約1間の個所から松香石の尺角敷石、壺形のもの、布目瓦破片十数個が出土した。
この礎石によって計算すれば3間四方80尺(約24m)の塔が建っていたことが分かる。しかも舎利孔のある点から見て四天王寺と同様の塔中心の伽藍らしく、従って前記の一本松の礎石は塔心礎の真北に位置し、金堂跡と推定されるに至る。
なお、この土地(塔跡)は高津の砂糖商高津久右衛門の私有で約12坪であるが、「手を入れると祟りがある」と云い伝えられ荒廃に任せていたが、昨今の大雨で表面の土砂が流れ礎石の面が現れたものである。不気味な言い伝えもあり、同氏は数名の考古学者とともに実地精査の結果、前記遺蹟であることが判明するに至ったものである。同氏は修祓を行い、鍬を入れ、発掘物を得るも、盗難を惧れ発掘物は天下茶屋の同氏邸に搬入する。(大毎10.10.10)
2026/01/03追加:
○ブログ:平斎の日記>2021-03-26阿部野の起源「安倍寺」の遺址発見さる(大阪毎日新聞 昭和十年十月二十日) より
※上記「考古學雑誌 25巻11號」の記事が「新聞」の写真と全文が掲載されている。故に転載する。
大阪毎日新聞:昭和10年10月20日新聞記事 大阪「阿部野」の名の起源をなす
「安倍寺」の遺址が十八日天王寺区松崎町二丁目三六松長大明神裏手の丘から発見され、従来史家の謎であった同寺の全貌が明らかに なった――
同寺は聖徳太子伝「古今目録」の中に「四天王寺末院の事、真興寺安倍寺是歟」と記されており、また「安倍寺千軒」とて堂塔、伽藍、坊院など大規模な寺域を有し阿部野界隈の繁栄の中心地域をなしていたらしいが、的確な遺址が見当たらず僅かに常磐通元一本松跡に藤原時代のものと見られる礎石らしい石と、大正年間その付近から出土した単弁瓦の破片によってほゞ寺域が確定されていた程度であったが十八日の発掘で飛鳥末期の形式を備えた塔礎石(長さ六尺六寸、幅四尺三寸で中央に径四寸深さ二寸七分の舎利孔あり)と同礎石の南方約一間の個所から松香石の尺角敷石、壺形のもの、布目瓦破片十数個が出土した。
この礎石によって計算すれば三間四方八十尺の塔が建てられてあったことがわかり、舎利孔のある点から見て四天王寺同様塔中心の伽藍らしく従って前記一本松の礎石は塔礎石の真北に位し恐らく金堂の跡と推定され、伽藍の遺構が判定され郷土史上に一大示唆を与えるに至った。
なおこの地は高津の砂糖商高津久右衛門氏の私有で約十二坪の丘地であるが「手を入れると祟りがある」と言い伝えられ荒廃に任せてあったが、昨今の大雨 で表面の土砂が流れ礎石の面が現れたもので、所有主は不気味な言い伝えもあるので天満宮教学部藤里好古氏に話し、同氏は数名の考古学者とともに実地踏査の結果前記遺址であることが判明するに至ったもので十八日朝高津神社神官を招いて修祓の後、鍬入れを行い午後発掘物を得たが高津氏は盗掘をおそれて発掘物は天下茶屋の同氏邸に搬入し現場には木柵を施しそのまま保存することにした。
大阪毎日新聞:昭和10年10月20日記事
2026/01/03追加:
○ブログ:平斎の日記>2021-03-25「安倍寺跡推定地」史跡碑・解説板・発掘調査報告・ガイドブック より ※阿倍寺跡の塔心礎出土地、松長大明神祠、(金堂)土檀、出土中世溝跡などの位置関係がよく示されているので転載する。
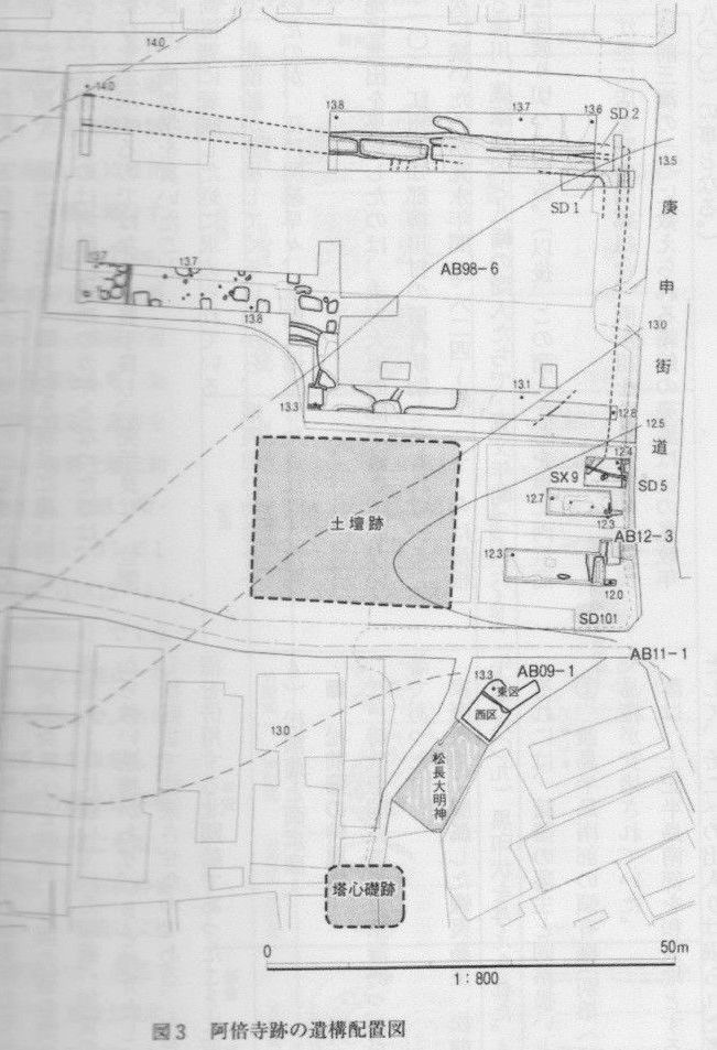
安倍寺跡の遺構配置図:(谷崎仁美論文所載第3図) ※上記の谷崎仁美論文が不明、故の原典をさんしょうすることが出来ず。 2026/01/03追加:
松長大明神 現地未見につき、GoogleMapから転載する。
阿倍寺跡石碑・説明板 松長大明神・祠 2025/03/20撮影
天下茶屋公園:公園ほぼ中央に「阿倍寺心礎」と明治天皇駐蹕遺址<駐蹕(ちゅうひつ)>碑がある。
現在、公園は綺麗に整備されている。20数年前はこの公園を生活の場とする人々が多く、冷静に心礎を観察できる環境ではなかったが、今は環境が激変している。
摂津阿倍寺心礎11 摂津阿倍寺心礎12 摂津阿倍寺心礎12+ 摂津阿倍寺心礎13
摂津阿倍寺心礎14:現地説明板より
◆摂津堂ヶ芝廃寺a(摂津百済寺) :亡失
(天王寺区)大阪市文化財協会のHPには『堂ヶ芝の地付近からは古代の瓦が多く見つかり、かつて巨大な塔心礎も残っていたことから古代の寺院跡として注目されてきた。最近、近隣の細工谷遺跡から「百済尼」・「尼寺」と記された墨書土器が見つかり、「百済尼寺」の存在が浮かび上がってきた。そこで、堂ヶ芝廃寺は、「尼寺」と対になる「百済寺」である可能性が高まっている。
』との記載がある。
なお大別王寺とする説もある。
心礎は亡失と思われる。心礎亡失の経緯は不明。
なお出土瓦の様式は白鳳前期とされ、かっては土壇様の遺構もあったとされる。
現状は写真の石碑があるのみで、何の遺構もない。
参考:参照:河内百濟寺跡
2003/11/27撮影:
□堂ヶ芝廃寺跡石碑
○「幻の塔を求めて西東」:
▲大阪 摂津百済寺 100×100cm 表面が平らで中央に方形の浅い舎利孔がある 創建・白鳳前期▲
この記録の典拠の記載はなし、亡失などの経緯は不明。しかし白鳳期の平地伽藍の心礎としては(割られているのであれば別であるが)小さすぎると思われる。
○「飛鳥時代寺院址の研究」:
現在豊川稲荷の社殿の背後(北側)に基壇様の土壇(3間×7間×3〜4尺)が残存していた。
出土瓦には飛鳥期のものが混在する。
□摂津堂ヶ芝廃寺土壇・・・現在は消滅と思われる。
2007/02/10追加:
○「摂津名所圖會」:
百済野の中にあり。今、字を堂ヶ芝といふ。
○現在、一般的にはこの堂ヶ芝廃寺が摂津百済寺跡であろうと云われる。但し、この百済寺が聖徳太子建立とされる寺院かどうかは不明。
2016/06/06追加:
○「摂津国百済寺考」藤沢一夫(「日本文化と朝鮮 第1集」朝鮮文化社、新人物往来社、1973 所収)
律令時代のそのかみ河内国錦部郡には百済郷があり、摂津国には百済郡があった。それらの地区が百濟を称したのは百済渡来氏族の居住地とせられていたからである。
摂津の百済郡については、古代以前の古記録である「四天王寺御手印縁起」では百済郡は四天王寺の東方に当たるという。
「摂津志」(享保19年/1734)では東成郡の条に「廃百済寺、四天王寺の東、もとの百済郡にあり。」という。
「摂津名所圖繪」(寛政10年/1798)は上述のとおりである。
以上によれば、百済郡は現在の天王寺区堂ヶ芝がそれにあたるであろう。そこには豊川稲荷と俗称される観音寺の堂後に堂跡土壇があり、附近から古瓦を出土する。古代寺院の跡であろう。明治23年の地図には、附近に百済寺の小字が遺存し、この寺跡が百済寺の寺跡にあたることが確定する。
「日本書紀」:敏達天皇6年(577)には「百済国王は大別王等に付して、経論・僧侶・造仏工などを献じ、遂に難波の大別王寺に安置せり」とある。この大別王寺こそが難波の百済寺の前身ということになるのではないか。
百済寺の遺物として知られるものは塔刹礎石と屋瓦があるばかりである。この塔刹礎石は太平洋戦争の戦災以降その所在を失う。それは相当な辺長のある方形柱座を浅く彫り込んだ巨大なものであった。方形柱座の心礎は日本では殆ど類例がなく、百済・新羅などの故地に多いものであり、ことに扶余(百済王都であった)の軍守里廃寺の地下式心礎も彫り出しの方形柱座を持つ心礎であったことが思いおこされる。百済寺の建立が百済王族との関係において発足したことはこのことからも裏書されるであろう。
「聖徳太子伝古今目録抄」の「一倶多羅寺のこと」の条に「近(江の字を脱せるか)国の在り、太子御建立、云々・・・」とある。この倶多羅寺は近江の百済寺と誤認されているが実は摂津の百済寺であろう。
2016/06/06追加:
ブログタイトル「摂津百済寺の心礎探索」に摂津百済寺心礎の写真
の掲載と百済寺及び心礎の解説があるので、次に写真を転載し解説を要約する。
|
 |
摂津百済寺心礎:左図拡大図
1930年刊「大阪史談会報」第5号に掲載の写真と思われる。
何分、古い時代の写真であり、また古い雑誌への掲載であり等々で不鮮明ではある。 |
堂ヶ芝廃寺は豊川閣観音寺境内周辺にあり、大阪市文化財協会の発掘調査で、白鳳〜奈良時代の四天王寺や難波宮跡などに共通する文様の瓦類などが出土する。日本書紀には、天智天皇3年(664)一帯は、唐や新羅との戦いに敗れた百済の王族・禅広が亡命したとあり、以来、一族が居住し百済郡が設けられたという。
さらに、堂ヶ芝廃寺が百済の王族の氏寺・百済寺跡とされる根拠は、大量の瓦のほか、戦前まで近くの生野区内にあった塔心礎の様態であった。その様態は日本にほとんど例のない方形の柱座を持ち、それは百済後期の都、扶余(韓国忠清南道)の軍守里廃寺のものに近いからである。但し、その心礎は戦後亡失という。
1930年刊「大阪史談会報」第5号には「百済寺礎石」と、写真入りで紹介され「今、福本元之助氏邸内に保存されている」とある。
福本氏は31年までユニチカの前身、大日本紡績副社長などを務めた関西財界の重鎮で、生野区猪飼野西4に住んでいたが、後に邸宅跡は整地され、心礎は亡失という。
2017/02/10追加:
○「摂津国百済寺考」藤沢一夫(「日本のなかの朝鮮文化 2号」 朝鮮文化社、1969 所収) より
上に掲載の藤沢一夫「摂津国百済寺考」と同一論文である。というか先に「日本のなかの朝鮮文化 2号」に掲載し、次に「日本文化と朝鮮 第1集」に掲載と思われる。
2017/02/10追加:
○堂ヶ芝廃寺現地説明板:大阪市教委設置
現地の説明板には次のようにある。
・・・堂ケ芝の地と周辺から古代の瓦片は多数出土しており、古代の寺院跡と推定されている。かつて巨大な塔心礎も残っていた。この地を大別王寺や百済寺の跡と考える説もある。・・・
2017/02/10追加:
○「堂ヶ芝廃寺」佐藤隆(「新修大阪市史 史料編第1巻 考古資料編」大阪市、2004 所収) より
百済国王は「卒」として日本から派遣された大別王等の帰国に際し、大別王に付して、経論・僧侶・造仏工などを献じ、遂に難波の大別王寺に住居・安置せりという。
この大別王寺を百濟寺の前身とする説がある。しかし、この説は大別王を百濟の王族と考えない限り成立しないが、その大別王は日本から遣わされた人物なのである。
また、堂ヶ芝廃寺を大別王寺に充てる説(石田茂作「飛鳥時代寺院址の研究」)もあるが、これは戦前においては四天王寺とともに唯二つの難波における寺院遺跡として知られていた堂ヶ島廃寺を四天王寺の外に文献に徴しうる大別王寺にあてただけで、それ以外に積極的な理由はないものと思われる。
百濟寺の遺跡については2説ある。一つは現在の生野区舎利寺の比定する説で、根拠は当地の舎利尊勝慈にあった善光寺を百濟王善光の霊廟の遺名とみなすことにある。
もう一つは堂ヶ芝廃寺に充てるもので、(「摂津名所圖會」)「百済野の中にあり。今、字を堂ヶ芝といふ。
」とあり、しかも堂ヶ芝廃寺は飛鳥から平安期の寺院址であることによる。ことに堂ヶ芝廃寺の方形柱座を浅く彫りこんだ巨大な心礎が百濟の軍守里廃寺の心礎と似ていることを考慮すると、後説が妥当と思われる。
◆河内心合寺:忘失
○「新堂廃寺 大阪府埋蔵文化財調査報告 2000-1」大阪府教育庁、2001年>p.239に心合寺廃寺心礎として次の記載がある。 「心合寺 心礎が出土
河内国高安郡 46。 心合寺跡(大竹廃寺・秦興寺跡) 八尾市大竹
【存続年代】白鳳時代〜室町時代 【備考】平瓦、面戸瓦
心合寺山古墳南西の濠から心礎が出土 一辺1.00〜 1.65m、
高さ0.3m 中世に堂塔を大幅に修復したと考えられている。」
○文献の調査するも、この心礎についての情報がなく、八尾市教育員会に由来・所在などの問い合わせをする。
その結果、八尾市教育委員会市史編纂室から、次の回答を得る。(大意)
「文献としては、「増補版八尾市史(前近代)本文編」昭和63年(1988)がある。
その中の(1)大竹廃寺(心合寺跡・秦興寺跡)の項目の221頁に塔心礎と思われる礎石があるとの記述があり「欠損しているが心合寺山古墳の南西の濠(観音池)から出土したもので、現存長一辺約1.65〜1.00m、厚さ0.3mをはかり、上面は平坦につくり、中央よりややはずれて直径0.44m、深さ0.125mの柱穴を穿っている。柱穴付近ではわずかな高まりをつくっている。石材質は花崗岩である。
いま一つ石材質のものがあり、これには段をつけている。さきの礎石が塔心礎とすれば、三重塔をかんがえてよいのではないか」
との記述がある。
もう一つ
「大阪文化誌」通巻第6号、清原得巌所蔵考古資料図録、昭和51(1976)にも心合寺礎石の記載がある。
心合寺跡の項目のP40には、「心合寺山古墳の西側の池堤に礎石が使われており、池堤の修理に際し心合寺の礎石を使用したのだろう。」とある。
しかし、現在この心礎の所在は不明となっている。」 2020/05/09追加:
○「増補版八尾市史(前近代)本文編」吉岡哲ほか、1988 より 大竹廃寺(心合寺跡・秦興寺跡):
心合寺山古墳の南西側の豪内(観音池)からも礎石・瓦片が出土する。 付近には心合寺、山寺、塔ノ久保(窪)、庵ノ前、谷ノ垣内などの小字を残す。
心合寺はシンゴウジ、シンコウウジ、シゴンジ、シンゴンジと云い伝えられたものが明治以降「心合寺」と表記されたものという。
「(太秦)廣隆寺末寺并別院記」に、河内秦寺又秦興寺或薬師寺云流記等不明云々とあって、心合寺はこの秦興寺ではないかとも云われる。
また廣隆寺の縁起には同寺を別名秦公寺と云ったともある。おそらくは、高安に多く住んだ秦氏一族の氏寺であったのかもしれない。この南には泰河勝の建立とも伝える教興寺(秦寺)もある。
本廃寺(大竹廃寺)から出土と伝える遺物に心礎がある。
これは心合寺山古墳の南西の濠(観音池)から出土したもので、現存長一辺約1.65〜1.00m、厚さ0.3mをはかり、欠損しているが、上面は平坦につくり、中央よりややはずれて直径0.44m、深さ0.125mの柱穴を穿っている。柱穴付近ではわずかな高まりをつくっている。石材質は花崗岩である。
いま一つ同石材質のものがあり、これには段をつけている。さきの礎石が塔心礎とすれば、三重塔を考えてよいのではないか。
出土瓦によれば、本廃寺については聖徳太子や秦河勝にまでさかのぼる資料は得られていないが、奈良前期には堂塔が建ち、心合寺山古墳を北東に臨む地に方1町半から2町の寺地を持ち、室町期まで存続したものと推定される。
心合寺跡付近図
2020/10/07追加: ○「八尾の古代寺院について」樋口めぐみ(「八尾市歴史民俗資料館 研究紀要」第21号、平成21年 所収) より
大竹廃寺:7世紀後半に建立されたと考えられる。心合寺跡としてはあまり調査は行われてはいない。
「八尾市史」には心合寺古墳の西南の池(観音池)から心礎(花崗岩製)が出土してと記載されている。
「高安の遺跡と遺物」原田修では心礎は西の池の堤に利用されていると記す。 しかしながら、心礎がどの部分に利用されているのは、現在確認が取れない。
◆河内智識寺西塔<京都清流亭>:移転現存
現在京都左京区南禅寺、清流亭にあると云う。心礎は安堂智識寺西塔との口伝などがある。
河内六寺の河内智識寺の項
◆河内家原寺(河内普光寺、河内安堂廃寺)<京都碧雲荘>:移転現存
現在京都左京区南禅寺、碧雲荘にあると云う。心礎は安堂普光寺から運んだとされる。
河内六寺の河内家原寺の項
◆河内原山廃寺:
心礎は東京に流出と云われる。しか
し移転先また現在も存在しているのかどうかは全く不明。
柏原市旭ヶ丘3(河内田辺廃寺西400〜500mの地・近鉄線西側)。
かっては塔基壇・講堂跡の遺存を伝える。
現状は全くの宅地と化し、地上には何も残らない。
「日本霊異記」の「河内国安宿郡内、有信天原寺。・・・」とあるのが、この寺であろうとも云われる。
○2011/05/10追加:「塔婆心礎の研究」田中重久(「考古學 第十巻第五號」昭和14年 所収)
心礎一覧表78 河内原山廃寺、今東京市某氏蔵 とあり、心礎の形状などは不明としている。この一覧表中、個人蔵となっている心礎は具体的に個人名称の明示があるが、この心礎のみ「某氏」とある。本当に名称が分からないのか、よほど憚りがあるのかは不明であるが、おそらく何かの憚りがあるのであろうか。
※この心礎についての資料は上記しかなく、果たして心礎が現存するかどうかは不明確。
◆河内山本の心礎:推定心礎、原位置は不明、移転
出所及び口碑の全く不明の心礎と推定される「石」が山本地蔵の前に置かれている。
→河内山本の心礎:推定
◆河内飛鳥寺心礎<名古屋城内織部堂前>:移転現存
河内飛鳥寺心礎は名古屋の高松静雄氏邸に移動→名古屋市に寄贈され、名古屋城織部堂(茶室)前に移動
して現存する。
但し、故地である飛鳥河内寺跡及び心礎については多くの謎が残る。
河内飛鳥寺跡
◆和泉禅興寺心礎:移転現存
長滝喜多邸庭園池中に倒置して現存する。
和泉禅興寺心礎(長滝喜多邸心礎)
◆播磨繁昌廃寺:破壊 ○「幻の塔を求めて西東」1980-81年に発掘調査され、
西塔(東塔は未検出)、金堂、講堂、築地、南門、北門を検出、その結果は薬師寺式配置とされる。寺域は東西84m以上、南北157m。西塔は1辺13〜14m。7世紀前半建立。
○「X」氏情報:現状、寺跡の確認は困難。
△側柱礎を残し・・△
○2010/08/12追加:「播磨上代寺院阯の研究」鎌谷木三次、成武堂、昭和17年 より
播磨繁昌廃寺地籍図
繁昌廃寺付近地籍図にある「635芝」と記された処がある。この処の所有者の言によれば、もと此処は高さ約70cm広さ1.8アール程の土壇があり、壇上には数個の礎石と巨大な礎石が1個土中深く埋没していたと云う。しかるに明治39年頃この巨石は破砕され、東側を流れる普光寺川の字椋ノ木の河淵へ捨石用に搬出、残余の若干個は明治40年江脇橋詰の積み石に使用と云う。(椋ノ木の河岸および江脇橋の積み石にはそれと思われる石が残存する。)以上を信じれば、此処は塔阯であろう。
また此処から北方やや東約34mに「636ノ1芝」と記された処があり、周囲から侵食されて細っている土壇が残る。金堂跡と推測される。
さらに古老の記憶によれば、「636ノ1芝」の北の耕地からも古瓦の出土を見たと云う。この付近に講堂が想定されるか。
以上から四天王寺式伽藍配置を採ったものと推定される。(その後の発掘調査で、塔は西塔とされる。地籍図の位置関係を多少ずらせば、西塔としても矛盾はないと思われる。)
○2010/08/12追加:「加古川市史 第1巻」加古川市、2008 より
繁昌廃寺伽藍配置図
○2011/05/26追加:2011/05/19撮影
現在繁昌廃寺跡は圃場整備がなされ、何も遺構は残らず、纔かに寺域西端に設置された1個の石碑によってここに繁昌廃寺があったことを知るのみである。
播磨繁昌廃寺石碑:昭和63年?建立と刻む。
繁昌廃寺跡(西から)
:写真中央付近の民家が金堂跡、塔跡は写真右端のさらに右側にある(付近住民の教示)
繁昌廃寺跡(東から)
また普光寺川の河川改修もなされ、江脇橋は現存するも、堤防・河川敷はコンクリートで蔽われ、「播磨上代寺院阯の研究」にあるような礎石の片割を見ることは出来ない。
なお地元民は次のように述べる。現在奈良国立博物館に収奪されたままの乎疑原神社五尊石仏は繁昌廃寺の本尊であり、古法華石仏が地元に返還されたように強く返還を要求する
。 ◆播磨殿原廃寺a<京都土橋邸>
:移転現存 京都土橋邸に移動。→売却
(売却先は不明)という情報もある。
※2011/06/06追加:播磨殿原廃寺心礎は売却されず
土橋邸に現存する可能性が非常に高いと思われる。
※2011/06/19追加:「売却」情報の出所は失念、ほぼ間違いなく殿原廃寺心礎は土橋邸に現存する。
※2011/06/28追加:「日本の木造塔跡」の序章の注2(p.7)に「殿原廃寺は京都市玄琢土橋邸にあったが売却」とある。しかしこの情報の出所(聞き取りか伝聞か文献に基づくものなのかなど)は全く不明。
→京都土橋永昌堂邸
○「佛教考古学論攷」:□播磨殿原廃寺心礎
○「古代寺院からみた播磨」:国府寺境内が廃寺跡。かっては心礎があったが現在は所在不明。数次の発掘調査を実施。塔跡基壇は東西10m、南北11m。塔東方に基壇、北東に基壇。法隆寺式伽藍が想定される。7世紀後半に建立と想定。
○「X」氏情報:殿原廃寺跡の確認は困難と思われる。
○「古代洲聚落の形成と発展過程」赤松啓介著:心礎・側柱礎数個を残し・・・・・
□殿原廃寺心礎(「古代聚落の形成と発展過程」からトレースおよび加工)
造出を持ち刳込円孔を持つ心礎であったようで、大きさは造出径:94cm、円穴の径:69cm・深さ:23cm、心礎の大きさの記載はなし。
▲心礎は190×140cmで、径91×3×3cmの環状溝と径70×24cmの穴を彫る。鎌谷木三次「播磨上代寺院址の研究」▲
○2006/03/11追加:「兵庫県史 考古資料編」
心礎は1938年売却搬出され、抜き取り穴が国府寺南面生垣辺りに残っていた。
○2010/08/12追加:「播磨上代寺院阯の研究」鎌谷木三次、成武堂、昭和17年 より
塔阯は国府寺正門の西脇に現存し、心礎は土壇上に高さ約36cmばかりを露出して原位置と思われる位置にある。心礎は190×140cm、表面の中央に径約70cm深さ約24cmの円形枘孔を穿孔し、更に周囲には同心円からなる径約96cm幅約3cm深さ約3cm
、V字形の環状溝が彫られている。
国府寺は天台宗、本尊薬師如来、寺院明細帳では由緒不詳とする。
播磨殿原廃寺塔跡遠望
○2011/05/10追加:「塔婆心礎の研究」田中重久(「考古學 第十巻第五號」昭和14年 所収)
今京都市上京区西賀茂玄琢下「土橋嘉平治」氏邸の庭に移っている。島田清氏が実測(「史迹と美術八ノ四」所収「播磨に於ける第四分類A種心礎について<下>」)するも、放射溝を脱しているのは遺憾である。
○2011/05/26追加:2011/05/19撮影:
播磨殿原廃寺発掘図:「兵庫県埋蔵文化財調査年報」昭和57年より:
山門の向かって左の網掛け部分が塔基壇想定地。
現在の国府寺は殿原廃寺の上に建つ。
殿原廃寺(国府寺)遠望:山門向かって左が塔跡である。
殿原廃寺塔跡1;写真中央の石垣付近に心礎があったと云う。
殿原廃寺塔跡2
殿原廃寺塔跡3:国府寺塀内、塔の北半分があった部分である。
「知識経(大智度論 巻第九十一)」近江石山寺蔵の奥書には「天平六年(734)歳次甲戌十一月廿三日寫播磨國賀茂郡既多寺 針間國造赤刀自(あかとじ)」とあると云い、殿原廃寺がこの既多寺ではないかとの説がある。
○2011/06/06追加:2011/06/04撮影:
売却情報がある?も、土橋邸には諸記録にあるように殿原廃寺心礎とほぼ同一と思われる心礎が現存する。
実測値(概要):大きさ170×160×70cm、径60cm・深さ22cmの穴を穿つ。
「造出」(「環状溝」)の径は未採寸。しかし苔に蔽われ明確でないが、円穴の周囲には確かにV字形の環状溝が掘られていると思われる。
上述のように、田中重久は「塔婆心礎の研究」で、『島田清氏が実測するも、放射溝を脱しているのは遺憾である。』と云うが、一条の放射溝とも割ろうとした楔痕とも思われる放射状溝が確かにある。
※以上のように、多少実測値に齟齬があるが、土橋邸で蹲として置かれている礎石はほぼ殿原廃寺心礎と断定してよいだろうと思われる。
※現土橋邸当主は「多くの礎石があるが、どれがどのような由来を持つのかは全く分からない」と云う。
※また、「殿原廃寺心礎は売却と云う情報があるのであれば、大きな石を鷹峯光悦寺に搬出したことがあるので、あるいはそれが殿原廃寺心礎であった可能性はあるだろう。」とも云う。
(鷹峯光悦寺山内は未見)
○2011/06/19追加:2011/06/18撮影:
土橋邸内心礎11 土橋邸内心礎12 土橋邸内心礎13 土橋邸内心礎14
土橋邸内心礎15 土橋邸内心礎16
▽再度採寸の結果:
「造出」(環状溝)の径は84cm、造出の巾は12cm内外を測る。(円穴径60cm+造出巾12cm×2=84cm)、その他の実測値は上述のとおりである。
なお、心礎表面は少々荒れ、造出及び環状溝は明瞭でない部分もあるが、断続して円穴の周囲を廻る。
一条の放射溝は単純な溝ではなく、溝の途中に2〜3個程度の彫り残しの部分がある。従って溝を横から見た断面は凸凸凸のような形状を呈する。
土橋邸内心礎放射溝
○2011/08/11追加:
「播磨に於ける第四分類A種心礎について<下>」島田清(「史迹と美術八ノ五」昭和11年か 所収) より
心礎は瑠璃光山国府寺山門脇に残存する。心礎の周囲は塔阯土壇が幾分かは残存と思われる3尺5寸ほどの高まりにある。
心礎の大きさは6尺2寸×4尺4寸高さは現高1尺8寸で上部に円孔を穿つ。円孔の径は口部においては2尺3寸7分の正円であるが、底部は2尺3寸4分〜2尺3寸8分に広がる。深さは8寸であるが縁辺では2分ほど浅くなる。
また円孔の周囲には環状溝が廻るが、現在では一部欠失し完全ではない。(本来は完形であったが火災により剥落したと思われる跡を認む。)しかしこの環状溝は円孔からの距離が不同(距離は4寸3分から3寸6分までの巾がある。)であり、巾(1寸2分から8分)や深さ(5分から3分)も不同であり造作は粗雑ではある。
なお、この環状溝には外部に通ずる放出溝を持たない。ただし、一見放出溝に見えるものを留めるが、これは火災に遭って岩間の剥落した跡に過ぎないであろう。
殿原廃寺心礎実測図0
▽「重要美術品候補物件調査報告(石造品)(昭和12年〜14年)-中-」川勝政太郎(「史迹と美術
64(1)」、1994- 所収)では「土橋邸所在殿原廃寺心礎、昭和13年調査、その大きさは長径6尺2寸(188cm)、短径4尺2寸(127cm)、高さ3尺3寸(100cm)で穴の寸法は直径2尺2寸7分(69cm)、深さ8寸(24cm)」と云う。
なお、所在地は玄琢土橋邸、所有者は東山区古門前大和大路東入三吉町 江村勝次郎と云う。
※この意味は不明である。
▽上記の採寸結果と上述の「播磨上代寺院阯の研究」及び「重要美術品候補物件調査報告-中-」との記載法量とでは、
心礎の大きさはさておき、円穴径・環状溝径において10〜12cm程度大きく齟齬する。
このことは、概ね形状などは諸記録に残る殿原廃寺心礎と合致するが、法量の面で不一致があり、土橋邸心礎が殿原廃寺心礎であると断定するには一抹の不安を残す。
▽なお、上述の鷹峯光悦寺に運んだと云う石は心礎や礎石ではなく、古い街道筋で見かける「道しるべ」の石碑であった(土橋永昌堂若主人かと思われる方の言)
と云う。◆播磨新部廃寺西塔心礎a:亡失
○西塔心礎は明治28年頃河合村西の斯波與七郎氏邸に移され、少なくとも昭和17年頃までは斯波氏邸にあり、その後は神戸の杉浦氏庭にあると云う。更に神戸から岡山<出所:「日本の木造塔跡」の序章の注2(p.7)>にあるとの情報もあるが不明。
○東塔心礎は現地の個人邸に移動して現存する。
「播磨の塔跡」の 「播磨新部大寺廃寺」の項を参照。
◆播磨見野廃寺<在姫路文学館>:移転現存
姫路文学館・望景亭に移され現存する。
現在、姫路文学館の望景亭の庭に手水鉢として置かれる。公共の文化施設である文学館内であるから、心礎としてそれに相応しい「待遇」がなされているのであろうと普通の感覚では思うが、心礎としての価値は認められていないようで、単に蹲の一つの部品として扱われているだけである。(館の案内に心礎の有無を尋ねるも心礎の有無について全く知らないとの回答であった事には驚く。)
心礎は望景亭隅に石を組み上げた上に据えられ、手水鉢となる。自然石の一辺を平にして、中央に柱穴を彫り、さらに中央に舎利孔を穿つ。
○「幻の塔を求めて西東」:
大きさは130×95×100cmで、径58/59×深さ11cmの円穴と径9/8×深さ5cmの孔を穿つ。姫路市男山寮内庭園。
※「播磨上代寺院阯の研究」からの引用であろう。
○望景亭:
姫路文学館の一角にあり、もとは大正期に建てられた個人の邸宅を補修したもので、40畳の和室と茶室を備えると云う。今は市の施設として、「文化的な催」に開放されると云うも、心礎は「文化的」なものではない」と云うことと思われる。なお見野廃寺は姫路市南東
(四郷見野)に位置し、白鳳期の創建とされる。
2002/01/20撮影:
□見野廃寺心礎1
見野廃寺心礎2 見野廃寺心礎3 見野廃寺心礎4 見野廃寺心礎5
○「古代寺院よりみた播磨」より転載
□見野廃寺心礎図
2014/01/09撮影:
○「姫路文学館」リーフレット より:
望景亭の由来;市内実業家浜本氏の別邸で大正5年から昭和5年の歳月をかけて造作、昭和33年姫路市の所有となる。昭和末期、姫路文学館の建設にあたり、西側1/3の残して、保存される。
見野廃寺心礎は一番西側の30畳敷、押入・床・出書院付3方に縁を廻らせた和室の傍に置かれる。
心礎は「手水鉢、白鳳期創建の見野廃寺から発掘された塔の心礎を転用」と説明する。
播磨見野廃寺心礎11 播磨見野廃寺心礎12 播磨見野廃寺心礎13 播磨見野廃寺心礎14
播磨見野廃寺心礎15 播磨見野廃寺心礎16 播磨見野廃寺心礎17 播磨見野廃寺心礎18
播磨見野廃寺心礎19 播磨見野廃寺心礎20 播磨見野廃寺心礎21 播磨見野廃寺心礎22
2010/07/30追加:
○「播磨上代寺院阯の研究」鎌谷木三次、成武堂、昭和17年 より
飾磨郡四郷村見野二階堂にある。ここに薬師堂と呼ぶ古堂があり、付近からかって心礎が出土したと云い、今も古瓦が多く露出する。但し近年煉瓦の原料として土採が行われ、薬師堂付近を除き遺構は消滅する。同村赤藤氏の言によれば、薬師堂境内の西に接して塚(454塚)があり、土採によって塚は壊され、塚の土中から心礎は出土と云う。なお近世の地誌類では「牛堂山(播磨国分寺)の南大門跡」のと説が流布される。
心礎は姫路市山野井の濱本八二郎氏の別邸にある。
心礎の大きさは「幻の塔を求めて西東」に引用されているので割愛する。
見野廃寺薬師堂現況 見野廃寺付近地籍図
播磨見野廃寺心礎 見野廃寺心礎実測図
2016/06/02撮影:
○播磨四郷見野廃寺
現状は、田中に薬師堂が載る土壇だけを残し、その背後(西側)すぐの塔跡は、配送センターになり、まったく何も残らない。
播磨見野廃寺跡 見野廃寺薬師堂1 見野廃寺薬師堂2
薬師堂背後(西)に接して塚(454塚)があり、この塚の土中から心礎が出土と伝えるも、この塚は削平され、配送センターの敷地となる。
見野廃寺「454塚」跡
現薬師堂の礎石としては不釣り合いな大きさの礎石を使用する。おそらくは見野廃寺の金堂・塔などの礎石を転用したのであろう。
見野廃寺推定礎石1 見野廃寺推定礎石2 見野廃寺推定礎石3 見野廃寺推定礎石4
見野廃寺推定礎石5 見野廃寺推定礎石6 見野廃寺推定礎石7
なお、戦時中、山陽線御着駅から白浜(陸軍大阪造兵廠)まで、軍用輸送線が建設されたようで、その全容は今でいう特定秘密と同じ軍機であり、明らかではないが、辛うじて、その
路盤跡がこの薬師堂附近に残るようである。 →軍用白濱鉄道
◆播磨北平野廃寺(播磨平野廃寺)<
在姫路船場本徳寺>:移転現存
播磨本徳寺(姫路船場別院本徳寺・東派)に移転現存。
○「日本の木造塔跡」:心礎は姫路本徳寺本堂裏右手の庭の庭石(手水鉢)として残存する。
心礎は
1.2×1mで径60cmの柱座の造り出しがあり、中心に径30cm深さ14cmの孔が穿孔される。
○平野廃寺は真宗常称寺の西隣のコクゾウサン(虚空蔵さん)の境内が寺跡であり、礎石が残ると云う。また礎石は常称寺の庭石にも転用されているともいう。
○2002/01/20撮影:
現在、真宗本徳寺は多少荒廃する。正門・本堂の背後の玄関・庫裏・書院といったような建物は崩壊寸前の箇所もある。訪問時は不在の様子で、廃寺との疑念もあったが、
付近での聞き取りでは住職はいるとのことであった。真宗東本願寺派の大寺であるが、もし心礎のある庭を囲む建物が老朽化のため、取り壊しあるいは寺地が転売にでもなった場合、心礎も転売あるいは行方不明になるのではと危惧される。
※後日調査すれば、姫路船場別院本徳寺の寺暦は変化に富み、かつ由緒があり、また姫路は門徒の強固な拠点でもあり、廃寺などという心配はないものと思われる。
北平野廃寺塔心礎1
北平野廃寺塔心礎2
北平野廃寺塔心礎3
北平野廃寺塔心礎4
北平野廃寺塔心礎5
本徳寺伽藍など
「古代寺院よりみた播磨」より転載 : 播磨平野廃寺心礎図
○2010/08/30追加:
「播磨上代寺院阯の研究」鎌谷木三次、成武堂、昭和17年 より
平野部落の中央に真言宗常称寺があり、その西150mに柳井乙吉氏邸がある。この付近には古瓦の散布が見られ、かっては心礎と伽藍石が発掘されたと云う。現在円形造り出し(径57cm高さ3cn)を持つ伽藍石が柳井仙次郎氏邸に2個、付近の渓流の落ち口に1個個残る。一方姫路本徳寺に据えられた心礎は平野方面から運ばれたと所伝する。平野での心礎の出土と符合する。
播磨平野廃寺現況 播磨平野廃寺心礎 平野廃寺心礎実測図
柳井仙次郎氏邸礎石 平野廃寺礎石実測図
2014/01/08追加:
○「石の詩 16」(「広報ひめじ 669」昭和59年10月15日発行)より
「平野廃寺礎石」:常称寺には平野廃寺礎石と石棺が、西隣のコクゾウサンには平野廃寺礎石と巡礼道に道標がある。
○「ふるさと探訪114」(「広報ひめじ 669」昭和59年10月15日発行)より
「コクゾウサン」は明応5年(1496)創建で本尊は木造虚空蔵菩薩。
平野廃寺出土の礎石と康安2年(1362)年紀の石仏や元文元年(1736)年紀の六地蔵がある。
○2014/01/09撮影:
◆在船場本徳寺播磨平野廃寺心礎:
現在、推測ではあるが、船場本徳寺では下に掲載の「船場本徳寺伽藍圖」中の寺務所、総会所、黒書院、内事及び池は撤去され、旧総会所を含む周囲一帯にRC造の新書院、新庫裏、新寺務所を兼ねたと思われる「新庁舎」が建築中である。
船場本徳寺伽藍圖:今北半分の様相は一変しているので、旧伽藍圖と云うことになる。
船場本徳寺「新庁舎」:写真中央の瓦葺の建物が「新庁舎」である、その奥は旧白書院であり、「新庁舎」の前(右)は旧大玄関である。
なお、明治天皇行在所である書院は畏れ多いということなのであろうか、事前に旧の内事・池付近に曳家され、保存されるようである。また大玄関及び白書院も現在健在であるので、これも残されるようである。
平野廃寺心礎は以前は旧白書院と本堂との間の庭(白書院南側)に置かれていたが、今般の工事で新「総合庁舎」の北側に庭がつくられ、心礎は既にその庭に移され、設置されている。心礎は「新庁舎」建屋北側の至近の距離に置かれ、建屋から庭を鑑賞するにあたり、嫌でも眼にはいる位置に配置される。
(※以上は注意力散漫であるため不正確な記述がある可能性がある。)
案内の寺院関係者に聞くと、心礎が今置かれている場所が最終的な配置場所で、寺院にて保存し、売却や破壊などの処置をすることは全く無いとのことである。但し、その関係者には心礎であるという認識はあっても、庭の飾り程度の考えしかなく、この心礎は古代寺院の塔の存在を証明する貴重なものであるという認識は希薄のようである。多少の心礎の説明をさせて頂いたので、多少認識を新たにして頂けたら幸いである。
播磨平野廃寺心礎11 播磨平野廃寺心礎12 播磨平野廃寺心礎13 播磨平野廃寺心礎14
播磨平野廃寺心礎15 播磨平野廃寺心礎16 播磨平野廃寺心礎17 播磨平野廃寺心礎18
播磨平野廃寺心礎19 播磨平野廃寺心礎20 播磨平野廃寺心礎21 播磨平野廃寺心礎22
播磨平野廃寺心礎23 播磨平野廃寺心礎24
船場本徳寺白書院:以前はこの手前庭に心礎は置かれていた。
船場本徳寺本堂1 船場本徳寺本堂2 船場本徳寺鐘楼 船場本徳寺大玄関
船場本徳寺景観;左から本堂、寺務所、大玄関か、2002/01/20撮影
◆播磨平野廃寺跡
現在、寺跡とされる虚空蔵の西方一体は「柳井」姓の民家が密集し、寺院跡を忍ばせるものは何もない。(礎石を保存と云う柳井邸は未見)
虚空蔵の東にある真宗常稱寺にも「礎石が手水石として転用」と云う(「日本歴史地名大系 巻次29−2 兵庫県U」)が、これも未見。
虚空蔵堂境内に礎石が保存される。現地説明板には「谷川へ転落していたものを昭和53年ここに移す」とあり、上述の「播磨上代寺院阯の研究」で云う「渓流の落ち口に1個個残る」と云う礎石が昭和53年に移されたものと推測される。
なお、同じ現地説明板では「『峯相記』に「又平野の東西の両院、東は元明天皇の御願、西は崇峻天皇の御願也、東院は形の如く相残れり、西院は跡絶えて瓦石すえ相残れり」云う。蓋し、東院とは白国廃寺、西院とは平野廃寺を云うものと思われる。
播磨平野廃寺礎石1 播磨平野廃寺礎石2 平野虚空蔵堂:向かって左は地蔵堂、右は常稱寺
平野廃寺とは関係がないが、以下の遺物が残存する。
地蔵堂石仏:中央石仏(高さ75cm)が康安2年(1362)銘と云い、広峰山牛頭天王にあった
(「日本歴史地名大系 巻次29−2 兵庫県U」)ものと云う。
境内六地蔵:元文元年(1736)年紀のものと云う。
境内移設「道標」;北平野の東西道は法華山-書写山の巡礼道で、道路拡張の伴いここに移されると云う。「左志よしや山」などとある、
◆播磨奥村廃寺<龍野市歴史文化資料館>:移転現存
心礎は龍野市歴史文化資料館に屋外展示。(移転)
▲数次の発掘調査で、約150m四方の寺域を持つこと、中心に金堂があり、その東西に2塔を有すること、金堂北に講堂がある珍しい伽藍配置であることが判明。すなわち東塔・金堂・西塔は東西の直線上に並ぶ。東西両塔は10
m四方の方形土壇らしく、両塔の心礎も発見される。7世紀末〜8世紀末の瓦が出土。▲
発見された心礎は現在、龍野市歴史文化資料館に移され、屋外展示される。
○現地情報(「X」氏情報):
案内板は立つものの、遺構は完全に畑地の下に埋没している。
○「幻の塔を求めて西東」:187×105×71cm、径30×24cmの円孔。
※これはおそらく東塔の寸法と思われるが、長径187cmは137cmの誤植もしくは勘違いと思われる。
同著の手書き「塔心礎の追加表」:
東塔心礎:137×105×71cm、径30×24cmと11.5(径?)の2重円孔式とする。
西塔心礎:200×150×85cm、径20×19/20cmの円孔を持つ。
○2006/04/29撮影:
伽藍配置図、東西心礎図、発掘概要図:
播磨奥村廃寺両塔心礎
奥村廃寺西塔心礎1
奥村廃寺西塔2
奥村廃寺西塔3
奥村廃寺西塔4
奥村廃寺西塔5
奥村廃寺東塔心礎1
奥村廃寺東塔2
奥村廃寺東塔3
奥村廃寺東塔4
奥村廃寺東塔5
以下は「古代寺院よりみた播磨」より転載
奥村廃寺伽藍配置図 奥村廃寺東西心礎図
奥村廃寺発掘概要図(2013/12/24画像入替)
○2008/05/24追加:
播磨奥村廃寺イラスト:小東憲朗画
○2013/12/22撮影:
心礎は比較的丁寧に加工した切石(特に東塔心礎)に枘孔を穿った華麗な心礎である。
なお東塔心礎が2重式であるとは見えず、上の手書き「塔心礎の追加表」にある「東塔心礎が2重円孔式」とはおそらくは下に掲載の「龍野市文化財調査報告 18
奥村廃寺−調査の概要と出土瓦の研究−」などかの転載であろう。
→「東塔心礎が2重円孔式」という見解は下に掲載の「龍野市文化財調査報告 18
奥村廃寺−調査の概要と出土瓦の研究−」に見られるが、しかし2重円孔式であるとは認められない。
確かに東塔心礎については径24cmの円孔の周囲に微かに径30cmほどの窪みが観察されるが、円孔と云うほどの窪みではない。ましてや円孔として意識して加工したような代物ではない。云われてみれば微かに窪みがあると云う程度のものである。
奥村廃寺両塔心礎1 奥村廃寺両塔心礎2 奥村廃寺両塔心礎3 奥村廃寺両塔心礎4 奥村廃寺両塔心礎5
奥村廃寺西塔心礎6 奥村廃寺西塔心礎7 奥村廃寺西塔心礎8 奥村廃寺西塔心礎9 奥村廃寺西塔心礎0
奥村廃寺東塔心礎6 奥村廃寺東塔心礎7 奥村廃寺東塔心礎8 奥村廃寺東塔心礎9 奥村廃寺東塔心礎0
奥村廃寺の故地:荒れた更地が広がるだけであり、地上には何も見るべきものはない。
奥村廃寺堂塔跡:北東より撮影、右から東塔跡金堂跡西塔が建っていた。
奥村廃寺東塔跡:北から撮影
奥村廃寺推定講堂跡:荒神参道を跨いで推定講堂が建っていた。
なお、東塔・金堂・西塔が直線上に並ぶ伽藍配置は3例知られる。本廃寺と丹波三ツ塚廃寺、常陸新治廃寺である。
2013/12/28追加:
○「龍野市文化財調査報告 18 奥村廃寺−調査の概要と出土瓦の研究−」龍野市教育委員会、1997 より
東塔心礎:金堂中心より約20m東にて心礎と瓦溜を検出する。舎利孔が発掘時下向きになっていることから、大きくは動かないが原位置をとどめていない。地業や基壇痕跡がみられず規模不明である。
心礎の大きさは135×105cm高さ71cmであり、径30cm深さ11.5cmの円孔の中に径24cmの枘穴を有し、2重円孔式とする。
奥村廃寺東塔心礎図
西塔心礎:金堂中心から約21m西で心礎と礎石破片、瓦溜を検出する。心礎は東塔より大きい。東西軸より約1m南にずれていることから原位置を保たない可能性がある。地業や基壇痕跡はみられず、建物規模は不明である。
心礎の大きさは200×150cm高さ85cmであり、ほぼ方形の形状である。表面に径50cm深さ20の円孔を持つ。
奥村廃寺西塔心礎図
◆播磨櫛田廃寺:亡失
▲詳細は不明。かっては心礎が存在した。その上に小祠(原神社)を祀っていたが、大正7年の護岸復旧工事で割られて転用されたという。▲
福円寺と云う寺名の伝承がある。
◆播磨与井廃寺a
○「古代寺院からみた播磨」:心礎は径50.5cm、深さ
24cmの円孔があり、さらに10.5cm×8cm深さ8.1cmの方形舎利孔を持つ。この心礎は昭和13年に搬出され、現在は所在不明。そのほか円座を持つ礎石数個も存在する
。
□播磨與井廃寺心礎図(「古代寺院からみた播磨」から加工)
:現在所在不明。
○「X」氏情報:西乗寺の西方の二軒目(?)の民家の西側に円形造り出し柱座をもつ礎石と西乗寺本堂下にも転用礎石が転がっている。
○2008/06/28撮影:
現地には塔土壇と思われる土壇の北半分が残る。すでに心礎は搬出されて残存しない。
礎石は心礎位置の東の土壇端に1個残存する。この礎石が原位置を保つならば脇柱礎石と推定される。
塔跡すぐ北には山が迫り、どのような伽藍配置であったのであろうか。
塔跡の土地所有者からの聞き取りは以下の通り。
・心礎を持ち出した先は京阪神と聞いているも、具体的な場所や所有者は分からない。
・心礎の掘出穴に礎石(推定)と五輪塔残欠を設置している。礎石(推定)も與井廃寺礎石と推定される。
・塔跡の発掘は戦前に行われたが、その後発掘調査は行われていない、塔跡のすぐ北の山裾にある墓地は土地所有者の墓地であるが、墓地造成にあたり発掘の話があったが(面倒なので)お断りをした。
・塔の土壇上にただ1個の塔礎石が残る。(心礎の東側で塔土壇と思われる高まりの端にある。・・上述)
また東約40mの位置にある浄土真宗西乗寺本堂の礎石に多くの柱座を持つ転用礎石がある。
播磨與井廃寺塔跡1:中央やや左が心礎掘り出し位置
播磨與井廃寺塔跡2:中央(推定)礎石位置が心礎掘り出し位置
播磨與井廃寺塔跡3 播磨與井廃寺塔跡4
播磨與井廃寺塔礎石1 播磨與井廃寺塔礎石2
播磨西乗寺全景:以下は西乗寺本堂礎石転用
播磨與井廃寺転用礎石1 播磨與井廃寺転用礎石2 播磨與井廃寺転用礎石3
播磨與井廃寺転用礎石4 播磨與井廃寺転用礎石5
なお「2004年7月31日上郡町教育委員会は『塔基壇整地面積は14m四方』と発表」とのWeb情報がある。
○2010/08/20追加:「播磨上代寺院阯の研究」鎌谷木三次、成武堂、昭和17年 より
|
 |
播磨與井廃寺心礎:左図拡大図
與井廃寺心礎実測図
播磨與井廃寺塔阯土壇
心礎には花崗岩質の石材である。大きさは長径137cm短径134cm、中央に径50.5cm深さ24cmの円孔があり、底の中央に10.5×8cm深さ8.1cmの長方形の舎利孔を持つ。
塔関係の礎石で現存するものはいずれも径65cm高さ1.5cmほどの円形造出を持つ。 |
心礎は土壇の南側に表面の一部を露出して土中深く埋没する。また柱礎の一部は背後の竹薮中にあり、一部畑地に存したが、近年耕作のために竹薮中に移される。なお俚人の言によれば、なお1、2個の柱礎が土中にあると云う。塔阯の東約40mに西乗寺があり、多くの礎石が本堂礎石として転用される。また境内から多くの古瓦を出土する。
2014/02/01撮影:
播磨與井廃寺塔跡:中央左端に石塔類残欠が写るが、その付近が心礎掘り出し位置と云う。
與井廃寺心礎掘出位置:写る石は礎石であろうか。
與井廃寺伝礎石;礎石と云うも、確証はない。
◆伯耆野方廃寺a(伯耆野方弥陀ヶ平廃寺)
:破壊か
東伯郡東郷町野方に所在する。
○2010/08/01聞取: 現地での聞き取り(4名)の結果は以下の通り。
・大門谷に古い寺院があったと聞いている。しかし今は何も残らない。心礎や礎石などの遺構は地上には全くない、また大門谷に心礎や礎石が地中に残存するといった話も知らない。
※大門谷に伽藍があったことは地元の人も認識しているが、塔については全く知らないと云う。
・野方の児童館すぐ東にある某氏邸の土蔵には寺院の礎石が転用されていると聞く。(未見)
・弥陀ヶ平に廃寺跡があり、今なお大きな礎石を残す。(弥陀ヶ平土地所有者など)
以前は果樹園であったが今は耕作を放棄し、荒地となる。従って弥陀ヶ平の廃寺跡に案内無しには行くことは困難である。時々廃寺跡を尋ねる人が来るが、そのときは弥陀ヶ平に
(軽トラックで)案内をする。(行政に案内板設置を要望するも未だ実現せず。) (案内人の談)
弥陀ヶ平の広さは1反(300坪)位はあると思う。(案内人の談)
※現在、弥陀ヶ平は荒地と化し背丈ほどのブッシュが茂り、夏場に短時間で礎石を探すのは不能。
○2010/08/01撮影: 野方・弥陀ヶ原現況
伯耆野方弥陀ヶ平概要
伯耆野方大門谷 :谷の南方を望む、左手上方に弥陀ヶ平がある。
伯耆野方弥陀ヶ平 :平坦地があるもほぼ叢木に蔽われる。
伯耆野方弥陀ヶ平入路 :中央の降り路の先に弥陀ヶ平の平坦地がある
○「幻の塔を求めて西東」: 心礎は一重円孔式、230×230×95cmで、径50cmの円穴を彫る。白鳳。
・・・このデータは下記の「千代川 VOL: 6」からの転載であろうと推定される。
2010/07/11追加: ○「野方・弥陀ヶ平廃寺」岸本浩忠、昭和43年刊(「鳥取県立博物館所蔵 古代寺院関係資料集」鳥取県立博物館、2003
所収) より
野方集落内と集落から約800m南の弥陀ヶ平にそれぞれ礎石様の石があり、周囲から瓦が出土していた。
野方集落(字宝垣)には塔心礎と4個の礎石が残されていたが、現在は破壊され詳細は不明。
字宝垣の南方約450mの弥陀ヶ平(字西ノ尾)には礎石群が残存する。
弥陀ヶ平に残る礎石配列・・・弥陀ヶ平に残る礎石建物実測図
(「東郷町誌」東郷町、昭和62年)
2010/10/22追加:
○「千代川 VOL: 6 伯耆の古廃寺 : 研究への一考察」鳥取大学歴史学研究会、1968 より
大門と呼ばれるところにかって塔心礎があり、その周囲に4個の礎石があったらしいが、位置関係は明確でない。心礎は4畳敷の大きさで、土地の人は岩屋とよんでいたというも、現在心礎は破壊され残存しない。
谷田亀寿氏の説明では、心礎の大きさは経230cm厚さ95cmの丸い自然石で、中央に経50cnの枘孔が穿てあったと云う。礎石群は現在野方部落に4個、方地(野方の北東数町にある)の覚善寺に4個残る。
覚善寺が400年前に建立されたとき、鐘撞堂の土台石として弥陀ヶ平から降りたとこの寺の寺史に記してある。これ等礎石群の柱座の径は心礎の孔の径と一致している。
また弥陀ヶ平には動いていない小さな礎石が4個露出しており、その柱間は274cmである。
瓦は心礎の置いてあった付近で小数の出土を見、弥陀ヶ平では多数の出土を見る。そしてこれ等は同范である。
従来は野方と弥陀ヶ平の2ヶ寺の存在説があったが、両地で同范の瓦を出土すること、心礎は大門というところにあり動かされた可能性が高いことなどから、鴟尾が出土した弥陀ヶ平に金堂があり、塔心礎は後世にここから動かされ、大門には北大門(南大門は地形上考えられない)があったと云う伽藍配置の寺院が想定される。
○「歴史時代の鳥取県」鳥取埋蔵文化財センター 1989 より
以前は野方・弥陀ヶ平の2寺説であったが、現在では一つの寺と考えられている。
字大門には心礎など礎石があったが現在では破壊され4個のみ残る。
※心礎の大きさの記載があるが、上記論文からの転載であろう。
弥陀ヶ平には6個の礎石が残り、周囲には多数の瓦が散在する。 2020/04/11追加:
○「東郷町誌」東郷町誌編さん委員会、1987.4(昭和62年<1987>3月末で原稿は校了) より
※ほぼそのまま転載する。 第2編 歴史>第1章 原始・古代>第5節 奈良・平安時代>3 仏教文化の開花> ◆野方廃寺
野方廃寺は、野方の集落内の小高い丘の上(標高8〜10m)に位置していたものと思われる。その中心である字「宝垣」の地目割りと道路を【図】に示した。これによると、北隣の字「北田」と接する東西線の一部を1辺とする、ほぼ正方形に近い道路の区画が想定できる。字「宝垣」の中央、北側約半分の区域である。
また、【図】の7の辺り、現・佐々木昌弘宅庭園内に、昭和の初めごろまで塔心礎(塔の中心柱を受ける礎石)と、4個の礎石が残されていたという。地元の伝承によると、塔心礎は直径2.3mで、上面の中央に直径約50cmの穴がうがってあったといわれる。後述する弥陀ヶ平にあったものを、「弁慶がかついで持って下りた」とも伝承されている。塔心礎は、道路拡張の工事の際、4個の礎石とともに道路敷に埋められたといわれ、元の状況は不明である。このほかの礎石は、野方の本庄重徳の屋敷下道路の石垣に、中村寛正の庭園に、及び部落の地蔵尊の座石にそれぞれ1個ずつ使われている。また、方地の覚善寺にある4個の礎石も野方廃寺のものと伝えられる。このうちの1個は、柱を受ける直径約45cmの丸い面がわずかに凸状を呈しているのが分かる。
野方廃寺の寺域と思われる一帯は、現在ほとんど宅地になっている。穴をうがった塔心礎があったという伝承から、塔のあったことは確実である。しかし、その規模あるいは金堂・講堂などの伽藍配置は全く不明である。仮に塔心礎の位置(佐々木昌弘宅)が創建当時のままであったとすると、道路(【図】3〜4)に近過ぎるきらいはあるものの、飛鳥寺あるいは四天王寺式の伽藍配置が想定できよう。【図】上4〜5〜6の道路は、寺域内の建物を巡る通路が、のちに道路となったものであろう。『ふるさと東郷』は、「奈良の法隆寺をまねて建立したもので、塔は三重と推定される」としている。字「宝垣」の一帯からは、瓦や鴟尾の破片も採集されている。
野方字「宝垣」の地目割りと道路 方地の覚善寺境内礎石
◆弥陀ヶ平廃寺
野方廃寺の南方、直線距離で約450m離れた丘陵地(標高約50m、本庄重徳所有の果樹園内)に、寺院跡とみられる礎石群が残存している。一帯は通称「弥陀ヶ平(みだがなる)」と呼ばれ、字「西ノ尾」地内である。
礎石は、以前から、「弥陀ヶ平の礎石配置」図の1〜6の6個が確認されていたが、最近の調査で更に地中に6個(図の□印)あることが分かった。礎石の間隔は、3.3m前後である。西北隅の1の礎石がわずかに外れているのは、後世に移動したものであろう。こう考えると、現在残る礎石の配置は3間×4間の建物となる。一般的に、3間×5間が堂の規模とされるが、弥陀ヶ平の場合、5間となるための礎石は、どの方向にも確認されない。
『ふるさと東郷』は、この礎石を金堂跡と推定している。前述したように、野方と弥陀ヶ平両廃寺は、出土した瓦などから1つの寺院とみられているが、本尊を安置する金堂が400m以上も離れた高台にあったとするには、多少の疑問が残る。なお、倉吉博物館の真田広幸の調査によると、礎石群が残る一帯は、東西37メートル、南北48メートルほどの狭い台地上にあり、礎石群はそのほぼ中央に位置していることから、七堂伽藍を建てるゆとりはないという。弥陀ヶ平の礎石群については、今後の研究を期待したい。
弥陀ヶ平を含む字「西ノ尾」と、前述した野方廃寺のあった字「宝垣」との間には、字「大門」、「二ノ大門」が挟まれている。しかし、門の遺構と推察できるような場所は発見されていない。また、弥陀ヶ平周辺には「参道」と呼ばれる山道もある。いずれも両廃寺に関連する呼び名と思われる。
弥陀ヶ平の礎石配置 弥陀ヶ平廃寺位置図 野方から見た弥陀ヶ平廃寺:↓部 弥陀ヶ平廃寺礎石
※野方にある野方廃寺と弥陀ヶ平廃寺とが同一寺院であるのか個別の寺院かははっきりせず、また野方にあったという心礎は弥陀ヶ平の字大門にあったという心礎が移されたものであるのかもはっきりしない。
両者から同一の瓦が出土するということは、同一の寺院であったかどうかは別にしても、同時代に両者に伽藍が存在したということであろう。 塔に関していえば、弥陀ヶ原の大門に心礎があったと伝えるようであり、そしてその心礎が野方に運ばれたとの口碑もあり、現に昭和初期には現存した目撃証言もあり、塔は確実に1基は存在したことは間違いない。
◆美作楢原廃寺a:破壊
○「佛教考古学論攷」:心礎50寸×・・・、径6.5×・4.8寸の円孔。
▲心礎は157×?、径20×14cmの円孔、一重円孔式、白鳳末。▲
○「佛教藝術」116号:創建寺院の礎石を転用した薬師堂がある。昭和50年の発掘調査で南北に並ぶ礎石建物2が検出された。建物1は推定約30×15mで、5×5間の建物が想定され(礎石2個と薬師堂礎石4個以上)
この建物は金堂もしくは講堂と推定される。
建物2は一辺35尺10.5mの方形基壇を持ち、礎石は現存しないが、版築が一部確認され、塔跡と推定される。
出土瓦から創建は白鳳期とされる。
2007/04/25追加:
○「吉備の古代寺院」 より
現在薬師堂(小祠)があり、径1mほどの礎石が使われる。
かっては塔心礎と思われる円孔のある礎石が存在するも、大正初年頃破壊されたと云う。
2008/12/25追加:
○「岡山縣通史」永山卯三郎、昭和5年 より
概説:寺地一帯の地は地下に古瓦埋蔵せらる。台帳面には国司とあり薬師堂と称する辺りに礎石数個あり、皆移動して本来の位置にあらず、薬師堂の東北方十五間許に阿弥陀屋敷と称する所あり。一小石仏を安置す。
礎石: ・・・中央円孔ありし直径五六尺の礎石は大正三年頃伊東嘉雄氏これを破壊すと云う、蓋し心礎なり。惜しむべし。
古瓦:大正十五年一月排水工事中礎石の西南十五間の所字扇田より古瓦破片一個を出す、岡坂源一之を蔵す。
2008/12/25追加:
○「岡山県埋蔵文化財発掘調査報告013−楢原廃寺址」1976 より
1975〜76年の発掘調査:薬師堂が寺域の一角に残り、1mほどの推定礎石がその基礎に転用される。
南1トレンチで2つの建物基壇を検出、北を建物T、南を建物Uとする。
建物T:推定基壇大きさは100尺(30m)×50尺で、数個の礎石及び抜取り穴を発見し、5×4間の建物があったとされる。
建物U:一辺約35尺(10.5m)の方形基壇が想定される。礎石は遺存せず、1箇所の礎石抜取穴を検出。基壇基部には50cm前後の石を並べ、その上には石・瓦を詰める。基壇は版築で現状約70cmを残す。
楢原廃寺トレンチ配置図 楢原廃寺塔跡:北より
楢原廃寺塔基壇北側列石1 楢原廃寺塔基壇北側列石2 楢原廃寺塔基壇北側列石3
楢原廃寺塔基壇東側列石・溝1 楢原廃寺塔基壇東側列石・溝2 楢原廃寺塔基壇東側列石・溝3
楢原廃寺塔基壇東側列石4
○2015/04/18撮影:
楢原廃寺塔跡1:写真向かって左に薬師堂があり、推定塔跡は写真の右端付近の一段と高くなった田畑付近と思われる。
楢原廃寺塔跡2:写真中央やや左の田畑付近が推定塔跡と思われる。薬師堂から南を撮影。
楢原廃寺薬師堂 薬師堂本尊
上に掲載の資料では薬師堂基礎に礎石が転用としているが、薬師堂はその後改築されたと思われ、その時基礎もコンクリート製に作り替えられ、楢原廃寺から転用と思われる礎石は薬師堂東の土留として再度転用されたものと思われる。
楢原廃寺推定礎石 楢原廃寺推定礎1 楢原廃寺推定礎2 楢原廃寺推定礎3 阿弥陀屋敷及石仏
◆備前吉岡廃寺:移転現存
寺院跡は瀬戸町塩納にある。
1981〜82年に発掘調査され、調査時に畦にあった心礎は現在万富公民館に移転する。
寺院は方1町の法隆寺式伽藍配置が想定されると云うも、建物規模ははっきりしないと云う。
心礎は表面を平に削平し、不明確ではあるが2段円孔式の心礎と思われる。
心礎のほぼ半周に沿って、心礎上辺の外周縁が欠損(後代に割られている)していると思われる。
現状心礎の大きさ:120×110×52cm、径63×凡そ2cmの柱座?と径45×凡そ1cmの?孔を穿つ。
但し、この2個の円孔の縦面ははっきりとした凹ではなくて、スプーン状の形態(球面)を採る特異なものである。
それ故、その形状から果たして本当に塔心礎であることについて、若干の疑問があるとも思われる。
出土瓦から創建は7世紀後半で、平安前期まで存続していたとされる。
備前吉岡廃寺心礎1 備前吉岡廃寺心礎2 備前吉岡廃寺心礎3 備前吉岡廃寺心礎4
「吉備の古代寺院」より:
吉岡廃寺伽藍配置想定図:下記報告書からの転載 吉岡廃寺心礎実測図
○「岡山県埋蔵文化財発掘調査報告049−吉岡廃寺」1982 より
昭和56〜57年に圃場整備に先立ち発掘調査。
調査の結果、全般的に遺構全体の残存状況は好ましくなかった。そのため、金堂・講堂・中門などの伽藍遺構は明確にすることはあたわず。しかし唯一塔跡のみは比較的保存状態が良好であった。
塔心礎は畦畔土手の一部として使われていた。大きさは径約130cm、厚さ70〜80cmで、石質は花崗岩である。
畦畔土手に設置の時、一部周囲が割られたものと思われる。
T-22で心礎抜取り穴と掘方を検出。その他のトレンチなども合わせ、塔基壇や版築なども出土し、塔基壇の規模は53尺と判断された。
出土瓦などから創建は白鳳期であり平安初期まで存続したと推定される。
吉岡廃寺心礎:畦畔土手にある状態
吉岡廃寺心礎実測図
塔心礎抜取穴断面:東より
吉岡廃寺トレンチ図
吉岡廃寺塔東側基壇・版築 吉岡廃寺塔北西隅基壇 吉岡廃寺伽藍推定図
◆備前一宮神力寺重塔心礎:破壊されるも一部残存か。
備前一宮神力寺の重塔(層塔)心礎は幕末・明治維新の頃は存在していた証言がある。
2012/05/01追加:
○「『吉備の中山』と古代吉備」薬師寺慎一、吉備人出版、2001 では
「破砕されたという心礎の一部が山神の黒住小弥太氏邸の庭に保存されている。」との記述がある。<未確認>
備前一宮神力寺重塔心礎
◆備中赤茂廃寺(英賀廃寺)<京都善田邸>
:移転現存
○「日本の木造塔跡」: 心礎は1.5×1.35cmで、35×11cmの円孔と15×11cmの舎利孔を穿つ。また円形造出を持つ。
現地には円柱座を持つ側柱礎1個が残存する。
→舎利孔を有する心礎で円形造出を持つ心礎の類例は大和大岩八大龍王所在心礎がある。
◆京都善田邸
○現在この心礎は善田邸(善田昌運堂<茶道具店>を営む。京都市中京区姉小路烏丸東入ル)にある。
※善田昌運堂は大正9年に初代善田喜一郎が、道具商土橋永昌堂から独立して開業とある。
心礎見学に関する善田社長の対応:個人所有のため、見学は謝絶とする。(見学は不可)
見学は謝絶されるが、その時の問答から、心礎は店奥にある庭に確かに現存すると思われる。
それはかなり大きな石で径1尺深さ1尺ばかりの円穴があると云う。舎利孔の有無の質問には、その存在を否定するが、赤茂廃寺の心礎であれば、舎利孔もあるはずと思われる。「舎利孔はない」との先方の見解は、先方に特に興味があり良く観察した上でのことではないとも思われる。由来についての質問には「庭は先々代の造園であり、今となっては由来は伝えられてはいない」とのことであった。
○赤茂廃寺:旧英賀郡北房町上水田赤茂。昭和54年の調査で、塔、講堂、中門、回廊などの痕跡を確認したといわれる。塔の一辺は15.6m、乱石積基壇。創建は7世紀後半で法隆寺式もしくは観世音寺式の配置とされる。現状見るべきものは何もないと思われる。
2021/12/20追加: ○「中根金作京都名庭百選」、中根金作、淡交社、1999
善田邸は著名な美術骨董商である「善田昌運堂」の善田氏の自宅である。ここの庭は善田氏が自ら庭師を指図して作庭したという。
茶室好日庵の前に造られた降り蹲踞(おりつくばい)の水鉢は長径6尺2寸、短径5尺、厚さ3尺3寸もある自然石が使われる。この水鉢は岡山県の英賀寺の古い礎石であり、逸品である。
○「町家・民家の庭の調査 京都市内未指定文化財庭園調査報告書 ; 第2冊 (平成24年度)」、京都市文化市民局文化芸術都市推進室文化財保護課, 京都造形芸術大学日本庭園・歴史遺産研究センター 編、2013.3 より
初代喜一郎は石川県の出身で、父の逝去に伴い京都に出、当初は金物屋になるつもりが、美術商土橋永昌堂に丁稚にいくことになる。初代は永昌堂に可愛がられ、大正9年に独立する。関西では松下幸之助・北村謹次郎らが顧客であった。
善田邸赤茂廃寺心礎
中でも特に眼を引くのが敷地の南端中央にあるほぼ半球状の大振りな蹲踞手水鉢である。来客時には竹樋により継続的に給水され、蹲踞のために穿たれた窪みは底に小石が敷かれた一筋の流路となって腰掛待合の南側へと流れ去る。 ◆備中赤茂廃寺(英賀廃寺)
○2007/04/25追加:「吉備の古代寺院」から
英賀廃寺伽藍想定図・心礎図:下記報告書からの転載。
○「岡山県埋蔵文化財発掘調査報告038−英賀廃寺」1980 より
昭和54〜55年の発掘調査。
廃寺は大字赤茂にあり、小字は塔推定地が遠正、講堂推定地の北が高倉、金堂推定地が観音堂と云う。
塔跡:塔心礎は昭和13年に持ち去られる(注1)も、抜き取った位置は明確である。現在この位置には石碑があり、周囲の水田より60cmほど高く、塔基壇の残存とも推定されたが、発掘調査の結果これは周囲の水田から出た瓦やゴミの集積であると判明する。
4Tでは塔東基壇を確認、さらに東で回廊を検出する。この結果、塔基壇一辺は15.60mと判明。
また1Tから心礎抜取り穴を確認。なお基壇化粧は乱石積であった。
(注1)「岡山県通史」昭和5年刊では心礎は字高倉6440番・字遠正6439番にあったと云う。
昭和13年心礎は抜き取り持ち出され、その後所在が不明であったが、昭和40年京都にあることが確認される。現在は京都市善田喜一郎邸にある。
講堂跡:ほぼ7間×4間と思われる規模の建物跡などが確認される。
金堂跡:ほぼ削平され、明確な遺構は明らかにならず。
中門跡:水田にする前は周囲より約1mほど高い荒地であったと云う。ここでも削平が激しく、明確な遺構は明らかにならなかったが、掘込地業と思われる遺構を検出する。
回廊跡:塔を囲むように6T、3T、3ATで確認される。
英賀廃寺伽藍推定図 英賀廃寺心礎図
英賀廃寺地形図 英賀廃寺トレンチ図 英賀廃寺T1・T4図 英賀廃寺塔跡平面図
英賀廃寺心礎抜取穴
英賀廃寺塔基壇:西から
英賀廃寺1T塔基壇:西から
英賀廃寺4T塔基壇:東から
○2011/07/10追加:
「岡山県通史」上下巻、永山 卯三郎、昭和5年 より
心礎:長径6尺2寸、短径5尺、厚3尺3寸。表面の繰出し図形突起部直径4尺1寸、高さ1寸5分。
上(大孔)口径1尺2寸、底径8寸2分、深4寸6分。下(小孔)口径5寸、底径2寸5分、深4寸。
心礎より南約45間に礎らしきもの1、北方約38間に赤子岩と称する礎石らしきもの1を存する。
英賀寺心礎実測図
○2011/08/11追加:
「重要美術品候補物件調査報告(石造品)(昭和12年〜14年)-中-」川勝政太郎(「史迹と美術 64(1)」、1994- 所収) より
所在地:上京区鷹峯光悦町、所有者:中京区姉小路烏丸東入善田喜一郎とする。
※この意味は不明である。しかし、現在心礎は中京区姉小路の善田邸にあるが、
少なくとも昭和13年当時は所有者は善田氏でり、その所在は鷹峯光悦町付近であるいうことであろう。
材質:石灰岩製、長径6尺3寸、短径5尺6寸5分、高さ2尺9寸5分。
表面に径4尺3寸5分、高さ1寸の円形造り出しあり、中央に1尺1寸5分の直径の穴を穿け、更にその中心に小穴を穿ける形式である。上房郡上有漢村英賀廃寺の心礎である。
○2015/04/19撮影:
英賀廃寺塔跡遠望:写真中央が塔跡、圃場整備という破壊行為が行われた様子が良く分かる。それでも辛うじて遺構は地下に残存していたようである。とはいえ、荒涼とした田畑の中で、心礎が抜き取られ、侘しく塔跡の印だけが残る状況である。
英賀廃寺塔跡1 英賀廃寺塔跡2 英賀廃寺塔跡3 英賀廃寺塔跡4 英賀廃寺塔跡5 英賀廃寺塔跡6
「日本の木造塔跡」では柱座を持つ側柱礎1個が残存すると云うも、良く分からない。
◆備中寺戸廃寺a(備中後月寺)
:移転現存
井原市西江原町寺戸。
(井原市西江原町2237<興譲館高校前>に曹洞宗国分山後月寺があり、この付近が廃寺跡と云う)
○「佛教考古学論攷」:心礎の大きさは49×43寸、径6.5(20cm)×4.8寸(15cm)の円穴を持つ。
○「幻の塔を求めて西東」:一重円孔式、心礎の大きさは148×140cm、径19.3×14.2cmの円孔、白鳳後期。
○ネット情報:興譲館高校前の道路に「曹洞宗国分山後月寺」という柱が立てられている付近から奈良期と推定される瓦が出土する。また天神山にある阪谷朗廬(仰徳園)の記念碑の土台石は寺戸廃寺の塔の礎石であると云われる。
○「日本の木造塔跡」:当寺の心礎は、明治以降の文献で記録が残り、亡失した心礎の一つである。
○2002/03/21:(X氏ご提供画像):
□後月寺塔礎石1 後月寺塔礎石2
○2011/06/24追加:「岡山県通史」上下巻、永山 卯三郎、昭和5年 より
寺戸猪原五八の談:「明治18年阪谷朗廬翁記念碑建立に方り、今の後月寺興譲館寄宿舎後方竹林の溝畔に小礎石2個(距離東西12尺、西礎石2×3尺、東礎石2尺7寸×3尺3寸)あり、その東礎石より東40尺南4尺許に在りし心礎、それは中央に円孔を穿てるものであったがそれを運搬して、記念碑の台石となす。」とある。
後月寺心礎実測図
碑の板石を建てるため、円孔の両側を穿ち、巾1尺長さ3尺8寸5分の長方形の孔を穿てり。
台石(心礎):4尺9寸(148cm)×4尺3寸(130cm)。殆ど矩形をなす。地面上高さ1尺8寸(55cm)。
円孔は今明らかあらず。直径1尺以下のものなり。
○2011/12/11撮影:
心礎は後月寺東の小丘・天神山(西江原天満宮がある)上に阪谷朗廬記念碑を含む5〜6基の賞徳碑がある。
心礎は上述のとおり台石となり、円孔などは窺い知ることはできない。
阪谷朗廬記念碑・心礎1 阪谷朗廬記念碑・心礎2
備中寺戸廃寺心礎1 備中寺戸廃寺心礎2 備中寺戸廃寺心礎3
阪谷朗廬記念碑 阪谷朗廬記念碑側面 備中後月寺堂宇
◆周防濡田廃寺:破壊
柳井市のサイト:国指定重要美術品のページに以下(大意)の記載がある。
柳井市新庄安行小字濡田(大蔵)に、明治30年頃まで心礎があったが、山陽本線敷設のとき、鉄橋の石垣石に使用するために破砕したとの伝承がある。古老の話によると、心礎は直径2mくらい、二重孔式で、この孔内には舎利が納められていたと云う。
この付近からは、瓦が多く出土し、出土瓦から奈良後期から平安・室町期まで存続した寺院とされる。
明治34年頃字安行の通称「濡田」の丘上で、和銅開珎などが掘り出され、鎮守堂を建て出土品を祀っていたが、現在は山口市弘津金石館に譲渡される。また附近から窯跡が発見されたが、山崩れで現存しないという。
2011/10/28追加:「山口県埋蔵文化財発掘調査報告大137集」1991 より
濡田廃寺概要図
◆伊予中ノ子廃寺:おそらく破壊
:松山市南土居町字中ノ子
○「飛鳥時代寺院址の研究」:来住廃寺の南方1km弱に廃寺跡がある。現状は全部開墾されているが、かつては素我神社があり、明治45年に開墾されるまで、素我神社の旧地は方5間(高さ7尺余り)の土壇であったと伝える。
その土壇上には礎石と思われる石が2個あり、この2個は付近の五十鈴神社に運ばれ現存する。
また開墾した当事者の話を総合すると、大量の瓦片(南の小川辺に捨て、今も散在する)と地下10尺位のところから3、4百貫もある巨石(形状ははっきりしない)が発掘されたという。その巨石は砕いて搬出したと云う。おそらくこの土壇は塔土壇で、巨石は心礎と思われる。
なお五十鈴神社へ移動
した礎石は表面を平に加工した自然石で、1つは手水鉢に加工され、1つは拝殿左に置かれているという。
□中ノ子廃寺塔礎石1 中ノ子廃寺塔礎石2:2005/2/11「X」氏ご提供
※礎石1は手水鉢に加工された礎石(推定)、礎石2は拝殿左に置かれたという礎石(推定)であろう。
2014/11/03追加:
○「愛媛県史 原始・古代 1」愛媛県、1982 より
内川に接するタチマチ(太刀持)堰のすぐ北側の台地一帯が廃寺跡とされる。付近は開墾され、水田や畑地になるが、もと素鵞神社があり、そばにタチマチ庵があったという。
明治末年までは方五間、高さ七尺ほどの土壇があり、礎石らしき石が二個存在していたと伝えられる。現在、礎石は五十鈴神社にあり、一個は手水鉢に、他は拝殿のそばにある。両石ともに自然石の上面を平らにしたもので造出しはない。
また、開墾時に、土壇中央部の地下から巨大な礎石が発見されたが割られて搬出されたということである。石田茂作はこれを塔跡と推定し、旧タチマチ庵の位置を金堂跡に推定している(
「飛鳥時代寺院址の研究」)。
2014/11/16撮影:
現地には廃寺を偲ばせる特に顕著なものは残存しない。
五十鈴神社遠望:東側から遠望
中ノ子廃寺塔礎石1-1 中ノ子廃寺塔礎石1-2 中ノ子廃寺塔礎石1-3
中ノ子廃寺塔礎石2-1 中ノ子廃寺塔礎石2-2 中ノ子廃寺塔礎石2-3
◆肥前塔の塚廃寺(塔塚廃寺、塔ノ塚廃寺):おそらく破壊
○大正14年「佐賀県史蹟名勝天然記念物梗概」:「大寺院の塔の跡ならむか同所は小高く森のごとき観相をなし中に五個の礎石あり、・・礎石の間東西18尺8寸南北14尺7寸礎石の最大なるもの直径3尺9寸あり」
○昭和15年「佐賀県史蹟名勝天然記念物調査報告」:「東西11m、南北12m、高さ0.6mの土壇上に、塔心礎と思われる自然石を囲み、4個の自然石があり、いずれも直径1m余、間隔は5−6m、付近に布目瓦が散乱していた。」
しかしながら昭和17年(「X」氏情報:飛行場建設)この遺跡も1mばかり削平され、消滅したと思われる。削平作業中、地下から2個の礎石、軒丸瓦などの出土を見たという。
2013/09/18追加:
○「佐賀県史蹟名勝天然紀念物調査報告 第7輯」佐賀県、1940 より
塔の塚廃寺位置図:丸に×印が遺構である。
現状:老松を中心とした小高き雑木林中に塔の礎石数個点在するのみで、他の伽藍遺跡としては何等の遺物も存在しない。
老松も以前見事なものであったが、今が暴風で折損し見る影もない。
以前の塔の塚廃寺 現在の塔の塚廃寺
塔阯:
|
 |
塔の塚廃寺礎石土壇:南方より撮影
土壇は南北38尺東西36尺高さ(礎石表面まで)4尺3寸ある。
土壇上には5個の礎石が残るが、何れも自然石である。その他に県の標柱石の土台石が礎石と推定されるが、出所が不明である。
このうち礎石A、B、Cは現位置を保つと思われるが、東西間23尺、南北間18尺となるの解せないことである。
塔の塚廃寺土壇礎石図:左図拡大図
Eは心礎と推定されるも、老松の根のため傾転覆する。Dも動くと思われる。
礎石の大きさなどは次の通りである。
A)36×26×21寸、畑からの高さ43寸
B )36×39×20寸、畑からの高さ43寸
C)42×25×23寸、畑からの高さ43寸
D)39×27×17寸
E)47×27×17寸、心礎と想定される。
F)26×22寸、標石となる。 |
2013/10/07追加:
佐賀県上峰町教育委員会文化課 よりの情報
塔の塚廃寺は今次侵略戦争中に「太刀洗陸軍飛行学校目達原分校(通称:目達原飛行場)」が建設された際に、造成工事により壊滅」する。
「この飛行場は、戦後『自衛隊目達原駐屯地』として利用」されるも、「敷地の多くは解放され、入植地」となる。
「塔の塚廃寺のあった場所もこの入植地の範囲に含まれ、その位置は長らく不明とされてきたが、昭和54年、県教育委員会が遺跡地図を作成した際に、明治時代の地籍図から別添の遺跡地図の位置にあったものと推定」されるに至る。
埋葬文化財遺跡地図:本図の下中央よりの「0054」の位置が塔の塚廃寺推定位置
「この地域は最近宅地化が進んでおり、これに伴う確認調査の結果、大規模な削平を受けていることがわかってきており、造成時に埋められた廃寺の礎石と思われる巨石も確認されて」いる。
2013/09/22撮影:
塔の塚廃寺推定地には何の「表示」も無いが、推定地の約100m西に上峰町文化財収蔵庫(非公開)があり、その門外に「案内板」がある。
塔の塚廃寺等案内板
塔の塚廃寺推定地1:南東から撮影
塔の塚廃寺推定地2:南南東から撮影
塔の塚廃寺推定地3:東から撮影
塔の塚廃寺推定地4:北東から撮影
塔の塚廃寺推定地5:北から撮影
何れの写真にも個人住宅が写るが、この住宅建設に伴う確認調査で埋められた礎石が確認されると云う。
上峰町教育委員会「ふるさと学館」内展示遺瓦:付近の畑より耕作中に採取された瓦片4点が展示される。
塔の塚廃寺古瓦1 塔の塚廃寺古瓦2 塔の塚廃寺古瓦3 塔の塚廃寺古瓦4 塔の塚廃寺古瓦5
◆豊前天台寺跡(上伊田廃寺):戦時の造成で穴に落とす/戦後の発掘調査後埋戻
田川市上伊田鎮西公園内:現在天台寺跡地は公園となる。心礎は地下に遺存すると思われる。
◎戦時の造成で基壇削平・心礎は穴に落とす/戦後の発掘調査後埋戻(現在見ることはできない)。
豊前天台寺跡
◆日向国分寺a:亡失?
▲心礎は一重円孔式、140×140×56cmで、26×15×深さ6cm(幅とあるが深さであろう)、出典は「国分寺の研究 下巻」より、国分寺としてあまりに小さい。▲
2012/05/05追加:
※心礎は未見。従って上記の心礎は現存するとも思われるが、現段階では現存するのかどうかの確認が取れない。
また、この遺物が心礎かどうかは不明である。
心礎に関する文献上の記録は日向国分寺を参照。上記では大きさは140×140とするが、「国分寺の研究 下巻」の記述が間違っていると思われる。170cm内外×150cm内外では?。
2006年以前作成:2026/02/04更新:ホームページ、日本の塔婆
|