豐  前  天  台  寺  跡

豐前天台寺跡(豊前上伊田廃寺)

豐前天台寺跡概要

田川市上伊田鎮西公園内:現在天台寺跡地は公園となる。
戦時の造成で基壇削平・心礎は穴に落とす/戦後に再発掘調査が行われ、後に心礎などは埋戻され、現在心礎を見ることは出来ない。

◎「佛教考古学論攷」 に写真掲載あり。

「佛教考古学論攷」:
豊前天台寺心礎:左図拡大図
豊前天台寺心礎実測図
径70cm、深さ7cmの円穴を彫る、円穴周囲に排水溝を廻らし、
さらに1本の排水溝を外に彫る。

◎「幻の塔を求めて西東」:伝天台寺、心礎は一重円孔式、125×118cm、径76×9cmの円穴を彫る。白鳳。

◎昭和60年からの4次の発掘調査で、伽藍配置は中門・金堂・講堂が一列に並び、塔は金堂の東で回廊と重複するものであったとされる。塔心礎は柱座径70cmで環状溝と放射溝を持つ。天台寺は伝教大師の創建とされてきたが、出土瓦、あるいは太宰府観世音寺鐘及び山城妙心寺鐘の文様との類似性などから創建は白鳳期であろうとされる。
 「叡山大師伝」では、最澄が入唐に先立ち香春岳に参り、帰朝後再びこの地を訪ずれ、天台寺を天台別院とし、この地方に18ヶ寺を創建したという。 (天台寺はその内の1ヶ寺か)
「傳教大師傳」:(弘仁)五年春爲遂渡海願向筑紫國。於八幡宇佐神宮寺自講法華經。乃託宣云。我不聞法音久歴歳年。幸値和尚得正教。自開齋殿手フ紫袈裟紫衣各一枚奉止和尚。其法衣今在山院。又於豐前國賀春神宮寺。自護法華經。于時有紫雲瑞矣。
 (近世には賀春」は「香春」に転化するとされる。)
以下は【旧豊津町HPより要約・転載】(当サイトは閉鎖と思われる。)
「太宰管内志」(江戸期):「礎石の大きさ三尺四方許にして其の数三十五、六許あり」また塔跡について「是も同程の石を二十許並べたり、中に塔の軫木を立てる石あり、径2尺5寸(75.8cm)許の円穴を彫たり、深さ5寸(15cm)許も有るべし」の記載がある。
戦前までは、この二つの遺構と土壇が残っていたという。
戦時中のグライダー練習場造成のため、土壇は削平され、礎石は穴を掘って落としこまれ、また持ち去られるなどして遺跡は壊滅し、その位置は不明となる。ただし鏡山猛氏(元九州大学教授)の遺跡略測図が残され、おおよその建物配置と規模が伝わる。それによると塔は東、金堂は西に配され、その背後に少し離れて僧坊を配した法起寺式の伽藍配置に描かれている。
昭和60年からの発掘調査で、練習場造成の際に落としこまれた礎石が三ヶ所で発見された。
金堂跡とした所からは27個の礎石が見つかったが、本来の据え付け位置が不明のため、建物の規模復元は不能である。(鏡山氏の復元は四間×五間の建物)
僧坊跡とした所からは15個の礎石が発見されたが、金堂と同様に建物復元は不可能であった。ただこの位置で基壇の掘り込み地業の痕跡が検出され、この範囲は東西九十二尺、南北五十八尺であった。鏡山氏は金堂と僧坊の間に講堂を推定したが、そのような遺構は検出されなかったことから僧坊とした建物は、実は講堂であろうと思われる。
金堂の東方では心礎がほぼ水平に据わった状態で残っているが、土層の観察から原位置ではなく鏡山氏が略測した位置から若干移動していることが明らかであった。現在、この位置では基壇の痕跡もまったく検出されず、原位置を確定することは出来ていない。さらに塔の位置判断を複雑にしたのは下層から堀立柱の回廊跡が重複して検出され、鏡山氏計測の位置が原位置であったと仮定すると塔は回廊廃絶跡に建立されたことになり、伽藍配置としては特異な形態をとっていたことになる。
出土軒瓦については新羅系、百済系、高句麗系があることが知られているが、新羅系の瓦のセットが創建瓦ではないかと考えられてきた。しかしながら発掘調査では出土した軒瓦の中では百済系とみられる軒瓦が圧倒的に多く、創建瓦については今後再検討の必要がある。

2008/08/14追加:「天武・持統朝の寺院経営」:
 豊前天台寺遺跡略測図:上で云う鏡山猛氏の遺跡略測図
 豊前天台寺発掘調査図:上で云うように、塔跡の下から掘立式回廊跡が重複して出土、そのためこの解釈は複雑な様相を呈する。
心礎・礎石の存在場所で基壇の痕跡が検出されないなどの現象もあるが、 回廊の廃絶後に塔が建造されたと解釈せざるを得ないとされる。

2009/02/24追加
天台寺阯調査」山本通(「福岡県 史蹟名勝天然記念物調査報告書 第五輯」福岡県、昭和5年3月 所収)より

○太宰管内志
江戸末期の様子が「大宰管志」<伊藤常足、天保12年(1841)刊>に記録される。

 「里俗語傅」に上伊田村の内伊田原の東寺が門と云處是天台寺の跡なり今に残れる礎石は門の跡なり昔盛なりし時は三百坊有しと云「常足」按ずるに門の跡と云物は實は本堂の跡と大塔の跡となり其二基南北に相並べり礎石の邊に古瓦残れり坊中の跡と云物げにさもありならむと思はる天台寺の事いまだ舊證を得ず、
なほ悉く云はば伊田原の地平田より少し高き所にして夏吉村より下今任村に通ふ道筋なり原の廣さ南北二里許も有むと思はる東西は五町或は十町もあるべしめづらしき平原なり東堂大塔の跡其中にあり平原よりは六七尺も高かるべし礎石の大さ三尺四方許にして其敷三十五六許あり堂の跡の廣さ四問に五間許もあるべきか其南の方十間許にあるは大塔の跡なり是も同程の石をニ十許並べり中に塔の軫木を立たる石あり径二尺五寸許の圓穴を彫たり深さ五寸許も有るべし此邊すべて短き草ばかりにして木もなく又草の生ぬすき問もなし礎石は昔のtiに聊も動きたる様は見えす破瓦の散れるは此邊ばかりなり瓦も青色なるは堅牢なる事都府樓に殊ならず坊中の跡と云物は多く東北の方にあり東西五間南北十五間許なる處是は礎石も破瓦も少し残れり共外東西南北六十間或は東西五十間南北百間許なるもあり或は畠となれるもあり又小松などの生たる處もあり是より東に低き處平田少しありて其東に同じ程の高さにて廣き平原あり此方は多く畠と成れ今是に堀の跡と思はるゝも見え又屋敷の跡とおもはるゝも元より多し。

江戸期末には以上のように、天台寺址が認識され、本堂・大塔・坊中(講堂)土壇・礎石・瓦などが遺存していた。大塔の土壇は高さ67尺(1.8〜2.1m) であり、基壇上には3尺四方許の礎石20個許と心礎が残る。心礎は径2尺5寸(76cm)許・深さ5寸(15cm)許の円孔を彫る。

○昭和5年の遺跡状況
 天台寺遺跡の碑:大正7年、金堂址土壇上に建立。
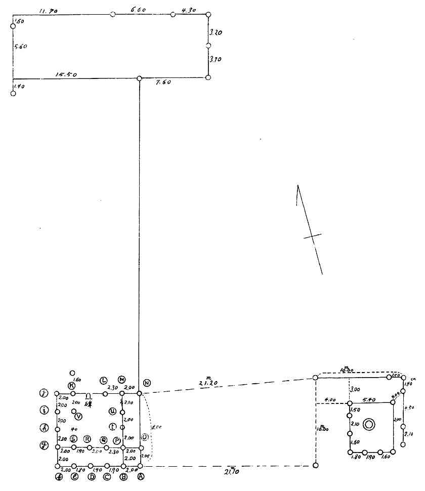
 天台寺址礎石分布図:北側が本堂址(今で云う講堂跡)、南の西が金堂、東が塔跡

・天台寺塔跡

天台寺塔心礎
 左図拡大図:土壇の高さ5尺許、土壇上に心礎と15個の礎石を残す。
天台寺址・南方より塔跡を望む
 右の土壇が塔跡、左の土壇は金堂跡土壇。
天台寺址・本堂より塔跡を望む
 本堂(講堂)跡つまり北方より望む、左が塔跡、右は金堂跡土壇。
天台寺心礎実測図
 心礎は平面を平らかに削り、その中央に径70cm・深さ7cmの円穴を穿つ。其の底面は平坦にして周囲に巾2cm深さ1cmの溝を有し、其の一端より外方へ湿気抜の溝をつくれり。
天台寺塔址礎石形状・大サ
 塔跡礎石の主要なるものの形状・大サを示す、なお柱座は認められないが平面は平に削平される。

・金堂跡
 礎石の配列形状・大サ
  金堂址礎石は23個残る。円柱座の存在する礎石は13個あり。
 天台寺塔跡礎石
  塔跡礎石とあるが、金堂跡礎石の1個であろう。この礎石は径53cm高さ1cmの柱座と云う。

・講堂跡
 天台寺本堂址:この本堂址とは今で云う講堂跡の記述と思われる。
  土壇は東西15間・南北6間許・高さ尺餘、土壇上に8個の礎石が残る。
 本堂址礎石形状・大サ(今で云う講堂跡礎石)

○天台寺並びに香春神宮寺に関する文献史料
最澄は延暦年中、入唐に際し、宇佐八幡・香春明神の託宣を受ける。延暦24年(805)帰朝後、香春明神に寺院(神宮寺)を建立(六院か)、しかし天台寺の建立については確証がない。あるいは別系統の資料では帰朝後田河郡に18ヶ所の伽藍を建立といい、天台寺はこの18院のうちの一つと伝える。
 香春神宮寺並びに天台寺に関する文献として以下が紹介される。

○元亨釋書巻一最澄傳云(元亨釋書和解による)
 賀春神宮寺に於て法華を講ぜられしに、この時豊前國田河郡公務の役人等見たりしは天に瑞雲たちて其状ことやうなりけり、やがて記録して最澄師に進上せしかば、最澄は見らるゝよりその奇怪がましきことを心に忌みおそれかたく封じて人目をはばかりつゝ、門弟義眞に告けられしやう吾入滅の後にいたりて必ず此緘をひらくべし、存生のうちは無用なりとつよくこれをいましめらる、遷化の後諸々の弟子たちその文をひらき看ればこれも経王講説の瑞相天にあらはれたる證文なりける。
されば其の文にいはく今月十八日末の時紫雲光かがやかし賀春の嶺に起て法莚の庭をおほひけるを村の民ことごとく見てその異相なるを感じあへることを記せり、又最澄の渡唐せらるる時すでにこの田河郡賀春山の下に宿せられしかば夢の中に梵僧とおぼしき人前に来て、衣を祖きて身をあらはす左の肩は人に似て右の肩をみれば石の如く見えたり、この人のいへるやう我はこれ賀春明神にてこそあれたのむらくは和尚慈悲をたれて吾この罪業ふかき身をいかんともすくひたまふぺし、さあらんにおいては我もはた貴僧このたびの求法のために異域の企をなしたまへるを只一すぢに加鏝して宦夜をかけてたゆみなかるぺし、我正身を知らまほしくおもひたまはゞそも海中の急難あらんとき光を現ずるを其験とせらるべしといヘリ、かくて最澄その明けぬる旦、山の右の方の崩れたる巌を見らるヽに草木も生ぜずして宛も夢中の半身のごとくなりしかば心中にふかくこれをあやしみ思へり、又海中を見れば浪風の様體案の如く光をかゞやかしければ、さればこそ神の言まさにいつはりなしと信じて法華院を建てみづから講談の席をはじめられけり、すなはち神宮院となづくこれなり。
さていよいよあやしむべき事はこの講席を聞かれしより後は、かの右かたにありし巌の地、自然に草木を生じつゝそれよりして年々枝葉もしげりゆくほどに里人なべて奇特のおもひをなしにける。
 ※元亨釋書:元亨二年(1322)撰述

○續日本後紀巻第六
 承和四年大宰府言、管豊前國田川郡香春岑神、辛國息長大姫大目命、忍骨命、豊比当ス、惣是三社、元来是石山而土木惣無生、莚暦年中、遣唐請盆僧最澄 、躬到此山祗云、願縁神力平得渡海 即於山下神造寺讀、爾来草木蓊鬱、紳験如在、毎水早疾疫 灾。郡司百姓就之祈祷、必蒙感應、年登人壽、異於他郡、望預官社、以表崇祠
 ※續日本後紀:貞観11年(869)完

○傅教大師流記(太宰管内志所載)
 弘仁七年丙申正月十七日最澄於豊前國田河郡赤染連清檀那冩妙法蓮教一部十六 巻、為香春明神指南恩、其慇懃既畢竟。  (中略) 大師帰朝之後、為彼神恩、道邃和尚眞筆金泥法華経一部被入當社畢、其外自書寫墨字妙法蓮華経並十六巻各一部別奉納之、又 香春山其高一里、有白巌青草、當初又明神示大師言、我山可草木云云。而彼山東腰有方丈白石、大師坐彼上七日夜講法華薬草喩品、千草萬木忽生長、此號高座石
 
※太宰管内志:伊藤常足、天保12年(1841)刊

○古縁起(太宰管内志所載)
 承和七年庚申正月十七日、最澄於豊前國田河郡、以赤染連清檀越、繕寫妙法蓮華経一部并六十巻建立一堂香春明紳指南恩 其懇懃畢、仍明神社面前砌相並造経蔵一宇
連清續萬福之本、其中奉納矣、寔明神者教興繩桂哉、最澄為利生自日域、赴到船略助滄海 無難畏 往還豈之非明神之助乎、抑去延暦四年云云  (中略) 
 此社者為比叡山王別社寺者為香春寺、寄田地延暦寺別寺、偏欲明神法楽荘厳 縁起請遣後昆耳、最澄以記矣、 永續赤染連清燈油佛餉田拾五町云云。

○大宰管志、日、
 さて上宮と云は香春の一ノ岳の上にます山王社を云、天台別院たるが故に近江四比叡.山主大山昨神を祭れり、今は社もかたばかりに成れり香春本官の神官奉仕す。

○豊國紀行(大宰管内志所載)
 上香春町云云古此處に傅教大師渡唐前後に住れし事あり、此時より香春に寺を建初ける昔は六坊有しと云、其跡社左右處々にあり今も一坊残れりとあり、今も上香春の少し北方高座石寺上に小庵ありて神宮寺名を存せり天台宗にして今は無住なり是かの於山為神造寺とあるによく叶へり。

○香春神社舊記
 香春神社宮寺有六坊山王山高座石寺、雲立山東光寺、壽龜山小蔵寺、碧水田功徳寺、無盡山大蔵寺、瑞鷲山観昔寺是也。

「廃滅」として以下の文献を挙げる。

○大宰管内志所載の一、二を左に記す
 世の中亂れて後此山に城を造れるに依って神社佛閣などやりおとろへたるなるべし、いま按ずるに兩豐記に田河町香春岳の城は天慶年中に井豫椽純友がつきたる城にして二男純再を置けり其後應安の比には大友氏の幕下千手信濃守興房此城を守り永禄の比に至って原田五郎義種居れり云云。
さて香春の城と云は一ノ岳の中腹にあり要害の地なれば初て城を造る是より次第に紳牡佛閣衰へたるものなるべし。

○應永戰覧記下巻
 天台寺は千人の衆徒會して護持国土の名藍なり、然るに頃年稍もすれば佛衣を脱し甲胃を帯して妨亂を任せ浄土寺先に進て十六寺の衆徒を引具し野臥をかたらひ.惡行をなす云云 。
 大内盛見制使を立らる鷲頭兵部大輔、桂左衛門佐其旨を承て天台寺に立入り制詞の趣をのべ寺の傍にて惡僧六人の首を刎たり、浄土寺には杉阿波守立越て衆徒等領掌す。

○應永戰覧記中巻
 應永五年正月三日光胤妻件千菊丸落行于田川郡掛于勾金伏拝鶴岡過為朝屋敷天台寺寺僧憐之隠置于経堂云云。
大内盛見入于田川郡云云 十日朝護徳谷人家寺塔不残一宇放火之以硯寺観音堂本陣、云云
寄手為押于硯寺之處天台寺衆徒者一柳袖印書大日真言其勢五百餘騎振枝自南原駈来於硯寺前興大内勢合戦及十八度小早川手者討取一宿老覺乗阿閤梨依之衆徒大崩追之至糸飛川 衆徒指天台寺引入此夜大内勢取陣於硯寺焼雲火云云寄手於薬師院搗相圖鐘聞之陶越前権守
武田安藝守等同時燃立金剛寺荒紳口之間四方之ロロ亦掛火町加木寺塔悉饒立此時宮下野守自高座石寺攻入放火佛殿諸堂十ニ日暁天寄手責入于ニ丸防衛巳盡之間大将興房於大廣問集一門郎従催最後之洒宴云云

○戸次軍談十二巻
 弘治ニ年六月廿日大友勢原田親種が香春城を攻落す件に云云 嶺上には日吉紳祠を祭り麓には堂塔寺院甍を連ねて九折坂几五六□町分ケ上る中々馬蹄の及ふ處にあらず云云

   注:「太宰管内志」伊藤常足、天保12年(1841)刊 /九州(壱岐・対馬を含)の地誌。全82巻。伊藤常足は福岡藩の学者。

○香春岳遠望
2013/10/27追加:
 天台寺跡から香春岳を望む:写真中央に写る特徴のある山容が香春岳である。(下に掲載)
 香春岳遠望1
 香春岳遠望2:何れも南より遠望、手前水平に削られた山が三ノ峰、高く聳えるのが二の峰、一ノ峰は山影で ほぼ見えない。

2009/02/24追加
天台寺跡(上伊田廃寺) 田川市文化財調査報告書第6集」田川市教育委員会、1990 より

昭和60〜64年にわたり発掘調査を実施。
当廃寺跡は昭和18年まで地上に遺跡の姿を留めていたが、昭和18年グライダーの滑空練習場建設のために削平され、礎石は全て穴の中に落とし込まれ、地上には何も遺構を残さない状態であった。偲ばれるものは纔かに鏡山猛などが行った計測図などが残るのみであった。
 ※山本通「天台寺阯調査」(概要)は上に掲載、鏡山猛計測図も上に掲載。・・・豊前天台寺遺跡略測図
そして戦後寺址は畑として利用され、掘り出された若干の礎石は散逸した。
 天台寺周辺図
 天台寺遺構実測図:今般の発掘調査による遺構配置図である。
  金堂・講堂が南北に並び、回廊が金堂を囲み、講堂に取り付く、塔跡は金堂東にあるが、東回廊と遺構が重複する。

・心礎

 天台寺塔心礎1:左図拡大図
 天台寺塔心礎2
 天台寺心礎実測図
A)外上端径73.0〜75.6cm、B)内上端径61.0〜62.0cm、C)周溝上端幅5.5cm・下幅2.5cm
心礎は原位置を動く。石質は花崗岩。周溝の深さは5mm〜7mm。この溝に連続して幅10cmの排水溝がある。

・塔跡
 天台寺塔跡発掘1        天台寺塔跡発掘2:南から      天台寺塔跡発掘3:西から
 天台寺塔跡東側発掘4:北から     天台寺塔跡東側発掘5:南から
 天台寺塔跡遺構図
塔心礎は鏡山氏論文では金堂東101尺の所にあったとされ、今般もその付近で発掘される。しかし塔の基壇はおろか堀込地業さえも全く検出されなった。心礎の東側に設定した調査区でも塔に関係する遺構は何も出土せず、要するに塔の位置を明らかにすることは出来なかった。またこの付近から8個の礎石を発掘したが、全て動かされている。この8個は戦前の調査で報告された数と一致する。
さらにこの付近では東回廊跡の柱穴が検出されていて、心礎が発掘された付近に塔があったとすれば、層位の関係から、回廊が退転した後に塔が建立されたと考えるしかないであろう。  ※鏡山猛計測図:上に掲載。・・・豊前天台寺遺跡略測図
・金堂跡
 天台寺金堂跡発掘1     天台寺金堂跡発掘2:東から      天台寺金堂跡発掘3:南から
 金堂跡新旧礎石対比図
今般の発掘では27個の礎石を発見する。但し全て原位置を保つものは無く、穴に落とし込まれていた。戦前の鏡山猛・山本通両氏の報告は22個であったが、もし5間×4間の建物であるならば28個の礎石が必要であり、27個の発見でほぼ全ての金堂礎石が発掘されたことになる。また山本氏報告では柱座を持つ礎石は13個とされるが、今般同数の礎石を発掘 する。
基壇規模及び建物規模については土壇が全て削平されているため、明確にはできないが、今般足場柱穴(南と北に5個、東と西に4個)が検出され、建物規模は5間×4間であるとほぼ確定可能となった。 基壇規模は東西50尺南北45尺程度であろう。
・講堂跡
 天台寺講堂跡発掘
基壇は削平されるも堀込地業が確認される。講堂の凡その基壇規模は東西92尺、南北58尺と推定される。
礎石は原位置から全て動く15個を発掘、内柱座を有するものは1個であった。

礎石・柱掘跡等実測図
天台寺跡九輪      九輪実測図 : 塔跡から出土、青銅製。
天台寺跡風招      風招実測図 : 約1/2程度のもの、厚さ8mm。

豊前天台寺現況

2013/10/27撮影:
○鎮西公園の資料は乏しいが、大正8年に田川郡立公園として設置され、今次侵略戦争中にグライダーの滑走練習場となる。
戦後は自動車教習所となるも、現在は使われていない。航空写真では自動車教習所の外周道路や各種クランクなどの跡をはっきりと見ることができる。今は単に荒地でしかない。
この荒地の南端に木立があり、ここが天台寺跡である。
なお、公園の北側入口では、田川護国神社の金文字の石碑と「この敷地は護国神社の境内です云々」の看板があるが、本当なのであろうか。
 天台寺跡遠望1:北方より撮影。写真中央の木立の中が天台寺跡。前面は戦後の自動車教習所の跡であろう。
 天台寺跡遠望2:同上、左に写る碑は忠霊塔、その奥背後に「天台寺遺跡」碑がある。
 天台寺推定塔跡1:写真中央に写る「藤棚」の背後の木立が塔跡と推定される。その根拠は上に掲載の「天台寺周辺図」と周囲の対比から判断が可能である。さらに、これも上に掲載の「天台寺塔跡発掘1」や「天台寺塔跡東側発掘4」・「天台寺塔跡東側発掘5」に写る「藤棚」が掲載写真に写る「藤棚」と同一のものと推定されるからである。写真は塔跡の北東より撮影。
 天台寺推定塔跡2:写真中央左手付近が塔跡であろう。写真は塔跡の北西より撮影。地上には何も残らない。
 天台寺推定金堂跡:写真中央付近が金堂跡であろう。上述の「天台寺周辺図」と周囲の対比からの判断である。地上には何も残らない。
 天台寺遺跡碑:上に掲載の「天台寺址・本堂より塔跡を望む」などの写真や昭和5年の「天台寺阯調査」の「天台寺遺跡の碑:大正7年、金堂址土壇上に建立。」と云う記載から、この碑は確かに、金堂跡土壇上に建立されたものと判断される。しかし、現在、この碑は金堂跡にはなくて、講堂跡の東に移設されているものと思われる。
 天台寺遺跡碑右側面:「往昔傳教大師入唐帰朝云々」と刻み、左側面には「大正七年四月 田川郡□育會建之」と刻む。
 天台寺跡から香春岳を望む:写真中央に写る特徴のある山容が香春岳である。

鎮西公園:以下は天台寺跡とは直接の関係はない。

2013/10/27撮影:
 鎮西公園の名称の謂れは、公園の東隣に鎮西原があり、ここに鎮西八郎為朝が屋敷を構えたと伝承することに由来するのであろう。(推測)
しかし、以上が正しいとして、その古風な謂れとは裏腹に、公園は国家神道(天皇教)の遺跡地の様相を呈する。
ここには、国家神道を象徴する田川護国(実態は亡国)神社、推定戦没者墓地、八紘一宇碑残骸、忠魂碑などが点在するのである。

 田川護国神社:大正8年伊田村から移転と云うから、郡立公園として公園が設置された時にここに移されたのであろう。それ以降、恐らくはここに護国神社があるが故に、様々な国家神道(天皇教)の象徴が建立され、それは現在も続いているものと思われる。そもそも国家神道とは亡国の宗教であり、その教えに従った結果が今次の侵略戦争であったのである。その意味では「護国」神社とは 誇大な命名であり、本来は「亡国」神社とでもすべきものであろう。なお、社殿は平成2年に改築と云う。
 推定戦没者墓碑:確認を怠たるも、恐らくは今次大戦の戦没者墓碑と推定される。この推定が正ければ、この膨大な墓碑には「國のために命を捧げた」あるいは「国家・軍隊によって消耗品の如く扱われた」人々が眠るのであろう。この墓地の入口門柱には昭和11年の年紀が刻まれるので、あるいは中国大陸への侵略が本格化し、この年紀 の頃には中国大陸での「戦没者」が出始めたのであろう時期を示すのであろうか。
 山本繁君碑:これも確認を怠る(台にある讃文を読まず)も、碑の銘文は「陸軍歩兵上等兵 山本繁君碑」とあり、軍では「兵」であったのであろうが、よほどの「勲功」があった(Web上には情報がない)と思わざるを得ない「大きさ」の石碑がある。
 「八紘一宇」残骸: 側面には「昭和16年12月8日(對米英開戦)大詔渙發記念」として「昭和17年8月建之」とある。
  ※(對米英開戦)の部分は文字が削られるも、()内のように推定される。
 鎮西公園忠霊碑:これまた確認を怠るも、恐らく戦後建立の 高さ20mくらいと思われる「立派」な忠魂碑である。戦後の建立と云う推測が正しければ、今猶、国家神道の呪縛が解けない現実を垣間見る感がある。
なお、この写真の向かって右に小さく写る碑があるが、これが「天台寺遺跡碑」 (上掲)である。
 ※この項には、推測が多く含まれるので、誤謬の指摘を乞う。誤謬は速やかに訂正するのに吝かでない。

 奇しくも、撮影日(2013/10/27)は「築城基地航空祭」であった。
(2013年10月28日 読売新聞)では「航空自衛隊築城基地(築上町など)の航空祭が27日に開かれ、松島基地(宮城県)所属のブルーインパルス6機による曲芸飛行や築城基地所属の戦闘機の編隊飛行などが披露された。秋晴れの下、家族連れら約8万人(基地渉外室発表)が訪れた。
 年1回の恒例イベントで、展示飛行には航空機約30機が参加。ブルーインパルスが白い煙をたなびかせて大空にハートや星を描くと、会場から大きな歓声が上がった。
 地上では、戦闘機F2やF15、救難ヘリコプター、対空機関砲などを展示し、隊員がそれぞれを解説。カメラを抱えた愛好家が熱心に質問し、撮影していた。
 初めて来場したという八女市立八幡小2年、村尾絆圭(ほだか)君(8)も一眼レフのカメラで撮影。「いろんな飛行機があってかっこいい。来てよかった」とうれしそうだった。」とある。
 福岡県北東部には、あたかも東京ディズニーランドの類の遊園地に集まるように老若男女が早朝より群集する。
日豊線では増車されたと思われる長編成の始発電車が既に満員であった。日中も臨時電車が運転され、沿線の各駅は雑踏であった。
 「航空祭」であるから、築城よりかなり離れた場所でも日中はジェット戦闘機が編隊で飛び、相当に五月蝿い。「八紘一宇」とか「忠君」とかの教義は今時流行 (はやら)ないので、今風の国家神道の「教化」策、しかも成功した「教化」策なのであろう。
 既に、教育現場では血塗られ、天皇教によって制定された歴史を持つ国歌や国旗への礼拝が強制されつつあると云う。
直近でも、政府主催と云う「主権回復の日」には「てんのうへいかのご臨席を仰ぎ」「てんのうへいか万歳」が三唱されたと云う。「在任中に靖国神社に参拝できなかったことは痛恨の極み」と云う首相は子供でも嘘であると分かる「てんのうの祖先であるアマテラスを祀る」と云う「伊勢」の「遷御の儀」に参列したと云う。「戦没者に敬意と感謝の誠を捧げる」ことは当然のことと嘯く 、これら「国家神道」の狂信者たる為政者は「特定秘密保護法案」を持ち出し、次は何を持ち出してくるのであろうか。 思想警察(特別高等警察)の創設、陸海空軍の創設、教育勅語に基ずく教育への回帰、靖国神社の国家祭祀と神社崇敬の強要等なのであろうか。要するに 「戦前型の天皇制ファシズム」は余りに時代錯誤であり到底実現は無理であろうから、現今の北朝鮮の支配 構造(国家神道/天皇教による皇室崇拝、国家神道/天皇教に基づく思想警察による異端の弾圧、軍事強盛国家への不断の前進、一言で言えば特権階級の人民支配)を目指すのであろうか。


2006年以前作成:2013/11/04更新:ホームページ日本の塔婆