モーターヨット(AL53)の紹介

AL53で作成した図面は実際に建造するのに必要な図面をほぼ網羅している。
すべての図面をホームページ上で公開するのは困難なので代表的な図面のみ
を掲載するが作成した図面のすべては作成図面目録を参照ください。
企画検討
初期透視図
作成図面目録(準備中)
ハルラインズ
ボディプラン
オフセットテーブル
ブルワークトップラインズ
デッキラインズ
フライングブリッジラインズ
トランサムステップラインズ
ハルボトムコアプレイスメント
ベンチレーションウェルラインズ
ハル型製作
デッキ型製作
船体構造図(AL5332)
船体構造図(2)
船体構造図(詳細)
船体構造積層作業
デッキ構造積層作業
F.B.ルーフサポート
レーダーゲート
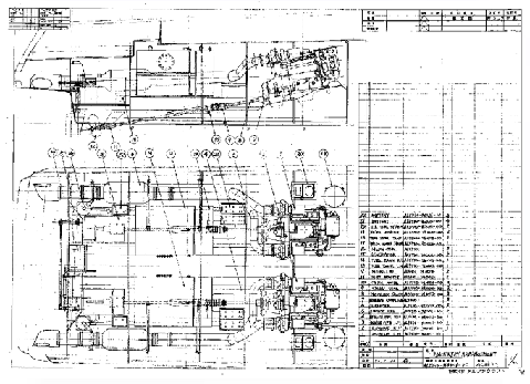
機関艤装図
機関艤装作業
舵(ラダーブレード)LH,RH
シャフトブラケットLH,RH
燃料タンク
燃料タンク組立図
定員算定書
下部運転席配置
直流電源装置図
交流電源装置図
スイッチ配置図1
スイッチ配置図2
エアコン装置配置図
換気装置図
救命及び防火装置図
1号艇(AL5331)
2号艇(AL5332)
2号艇のインテリア(改造後)