27FTハウスボート(随時配信)
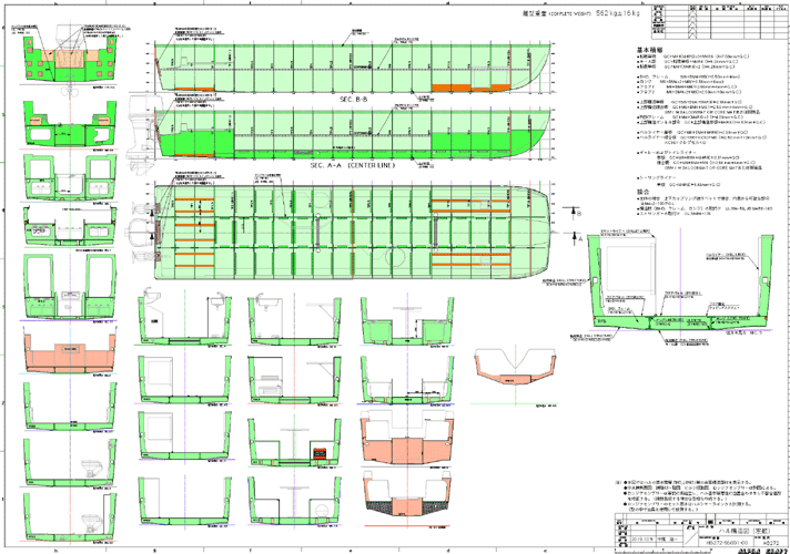
掲載する資料は不鮮明なのでハウスボート販売や製造を検討する造船所や企業には一定の契約書あるいは誓約書を交わした後に印刷した資料を一式提供します。 検討済資料リスト 企画(はじめに) ハウスボートのブランド所有権 一般配置図 必要馬力曲線 適正機関出力検討 ハル、デッキ、ライナーラインズ 型割り(各モデル共通型) 排水量等曲線 パーツリスト(非配付) 横安定に付いて(GM値) 復元力曲線(GZcurve) DC12V,24V電源系統図 ハイブリッドシステム シンプルハイブリッドシステム 燃料系統図 諸管系統図 ガラス板厚検討 HB272K-SKセクション一覧図 室内配置図 中央横断面図 室内艤装図(準備中) HB272K船体構造図1(ロンジ、フレーム) HB272K船体構造図2(フロア) HB272Kハル補強材一覧図1(フレーム) デッキ構造図 ハルライナー部品図(例) ビルジ経路図 ハル、デッキカップリング 機関艤装図(準備中) 浮き姿検討(準備中)